賃貸アパート
パルデンス1の賃貸物件情報(1K/2階)
| 家賃 | 管理費等 | 敷金 | 礼金 | 間取り | 専有面積 |
|---|---|---|---|---|---|
| 4.1万円 | なし | 4.1万円 | なし | 1K | 26.5m2 |
入居決定でお祝い金最大100,000円
Point
東北大生、宮教大生におすすめ!単身、学生者向き物件!光ファイバーインターネット対応!学生向け1Kアパート!
提供:(株)シティランド(SUUMO経由)

詳細情報 パルデンス1
物件紹介
パルデンス1は仙台市地下鉄東西線川内駅から徒歩9分にあり、駅近で通勤通学に便利なアパートです。
このお部屋は2階以上に位置しているので、通行人や周囲の住人からの視線が気になりにくく、防犯面でも安心。インターホンにはTVモニタもついているため、相手の顔を確認してから来客対応することができます。
人気の南向きのお部屋。また、フローリングなのでお掃除もラクラク。バス・トイレ別の仕様で、のんびりお風呂タイムも楽しめます。
このお部屋は2階以上に位置しているので、通行人や周囲の住人からの視線が気になりにくく、防犯面でも安心。インターホンにはTVモニタもついているため、相手の顔を確認してから来客対応することができます。
人気の南向きのお部屋。また、フローリングなのでお掃除もラクラク。バス・トイレ別の仕様で、のんびりお風呂タイムも楽しめます。
お金・契約の情報
※「-」と表示されているものは、実際は料金が発生するものもございます。詳細はお問い合わせください。
| 家賃 | 4.1万円 | 管理費・共益費 | なし |
|---|---|---|---|
| 敷金 | 4.1万円 | 礼金 | なし |
| 入居決定でお祝い金最大100,000円 | |||
| 保証金 | - | 償却・敷引 | - |
| 住宅保険料 | - | 更新料 | - |
| 契約形態 | - | 契約期間 | - |
| 入居・引渡期間 | 即時 | 現況 | - |
| 契約備考 | コンビニまで130m/東北大学川内キャンパスまで600m/コンビニ隣接/リフォーム:2008年8月内外装リフォーム済 1K 損保【2.2万円2年】 バストイレ別、エアコン、フローリング、TVインターホン、室内洗濯置、温水洗浄便座、即入居可、ディンプルキー、駅徒歩10分以内、都市ガス 敷引:実費 | ||
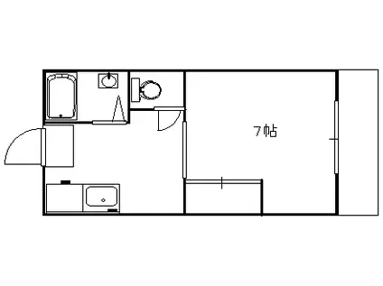
部屋の情報
| 間取り | 1K | 専有面積 | 26.5m2 |
|---|---|---|---|
| 所在階 / 向き | 2階 / 南 | バルコニー面積 | - |
| 水道 / ガス | - | ||
| 設備 | バス・トイレ別、2階以上、テレビドアホン、エアコン、温水洗浄便座、南向き、フローリング、洗濯機:室内 | ||
| 当社物件ID | 158617090 | ||
建物の情報
| 建物名 | パルデンス1 | ||
|---|---|---|---|
| 所在地 | 宮城県仙台市青葉区川内三十人町 | ||
| 交通 | 仙台市地下鉄東西線 川内駅(宮城) 徒歩9分 | ||
| 階数 | 2階建 | 総戸数 | - |
| 築年月 | 1987年04月 / 築40年 | エレベーター | - |
| 駐車場 | 空有 6000円 | バイク置き場 | - |
| 駐輪場 | - | 管理人/管理会社 | - |
| 周辺環境 | その他 ローソン仙台川内三十人町店(コンビニ)まで284m その他 ダルマ薬局川内亀岡店(ドラッグストア)まで564m その他 東北大学川内キャンパス(大学・短大)まで1415m その他 仙台川内郵便局(郵便局)まで774m その他 レキシントンプラザ八幡(ショッピングセンター)まで1424m | ||
| 建物種別 | アパート | 建物構造 | RC(鉄筋コンクリート) |
この部屋の取扱い不動産会社
| 会社名 | (株)シティランド(SUUMO経由) | ||
|---|---|---|---|
| 所在地 | 宮城県仙台市青葉区川内三十人町 53-17 | 交通 | - |
| 営業時間 | 10:00~17:30 | 定休日 | 日祝、第2・第4土曜日 |
| 免許番号 | 宮城県知事1100 | 取引態様 | 仲介 |
| 不動産会社管理番号 | 000082198458 | 当社管理番号 | 89 |
| 所属団体 | (公社)全日本不動産協会宮城県本部会員 | ||
| 公正取引協議会 | 東北地区不動産公正取引協議会加盟 | ||
| 取扱い物件情報 | 物件詳細へ | ||
※各種情報と現状に差異がある場合は、現状優先となります。問い合わせをすることで、より詳しい条件、情報を確認する事ができます。
提供:(株)シティランド(SUUMO経由)
この物件が気になったら掲載期限まであと9日
パルデンス1に条件(家賃・エリア)が近い物件一覧
| 写真 | 家賃 管理費等 | 敷金 礼金 | 間取り 専有面積 | 築年数 | 最寄り駅 所在地 | キープ | 詳細 |
|---|---|---|---|---|---|---|---|
アパート GRANDTIC OHANA(1LDK/2階) | |||||||
![]() | 6.5万円 3,000円 | なし なし | 1LDK 30.2m2 | 築5年 | JR仙山線 東照宮駅 徒歩9分 仙台市地下鉄南北線 台原駅 徒歩23分 JR東北本線 仙台駅 徒歩35分 宮城県仙台市青葉区高松 | 詳細を見る | |
マンション サンガーデン東照宮(1K/1階) | |||||||
![]() | 5.2万円 3,000円 | なし なし | 1K 31.2m2 | 築24年 | JR仙山線 東照宮駅 徒歩3分 仙台市地下鉄南北線 仙台駅 徒歩26分 仙台市地下鉄南北線 北仙台駅 徒歩26分 宮城県仙台市青葉区小松島 | 詳細を見る | |
アパート 渡幸ベルメゾンDOG&CAT Ⅲ(1LDK/2階) | |||||||
![]() | 6万円 2,000円 | 6万円 6万円 | 1LDK 41.36m2 | 築14年 | JR仙山線 陸前落合駅 徒歩22分 JR仙山線 葛岡駅 徒歩39分 JR仙山線 愛子駅 徒歩50分 宮城県仙台市青葉区栗生 | 詳細を見る | |
マンション リヴィエール木町(1K/1階) | |||||||
![]() | 5.2万円 3,000円 | なし なし | 1K 26m2 | 築24年 | 仙台市地下鉄南北線 北仙台駅 徒歩9分 宮城県仙台市青葉区木町 | 詳細を見る | |
マンション エトワール仙台第一(1K/4階) | |||||||
![]() | 4.1万円 4,000円 | なし なし | 1K 23.4m2 | 築36年 | JR仙山線 東照宮駅 徒歩11分 JR東北本線 仙台駅 徒歩17分 仙台市地下鉄南北線 広瀬通駅 徒歩20分 宮城県仙台市青葉区宮町 | 詳細を見る | |
アパート シャイニングハウスII(3DK/1階) | |||||||
![]() | 5万円 なし | なし なし | 3DK 54.95m2 | 築38年 | 仙台市地下鉄南北線 旭ケ丘駅(宮城) 徒歩21分 仙台市地下鉄南北線 黒松駅(宮城) 徒歩21分 宮城県仙台市青葉区東勝山 | 詳細を見る | |
アパート シュシュパルクⅠ(2LDK/1階) | |||||||
![]() | 6.5万円 3,500円 | なし 6.5万円 | 2LDK 48.36m2 | 築24年 | 東北本線 岩切駅 徒歩21分 宮城県宮城郡利府町神谷沢字新宮ケ崎 | 詳細を見る | |
マンション ステラハウスこめがふくろ(1K/4階) | |||||||
![]() | 5.7万円 3,000円 | 5.7万円 5.7万円 | 1K 23.65m2 | 築25年 | 仙台市地下鉄南北線 五橋駅 徒歩13分 仙台市地下鉄東西線 大町西公園駅 徒歩14分 JR東北本線 仙台駅 徒歩20分 宮城県仙台市青葉区米ケ袋 | 詳細を見る | |









