賃貸マンション
グランパセオ清澄白河Ⅱの賃貸物件情報(1DK/2階)
| 家賃 | 管理費等 | 敷金 | 礼金 | 間取り | 専有面積 |
|---|---|---|---|---|---|
| 13.9万円 | 1万円 | なし | なし | 1DK | 25.02m2 |
入居決定でお祝い金最大100,000円
Point
まずはお問い合わせ!
不動産会社は街のプロ、あなたに合った物件がきっと見つかります。
提供:ハウスコム東東京株式会社 押上店

詳細情報 グランパセオ清澄白河Ⅱ
物件紹介
グランパセオ清澄白河Ⅱは東京地下鉄半蔵門線清澄白河駅から徒歩12分にあるマンションです。
このお部屋は2階以上に位置しているので通行人や周囲の住人からの視線が気になりにくく、建物のエントランスはオートロックがついているので防犯性が高くなっています。
フローリングのお部屋なのでお掃除もラクラク。キッチンはシステムキッチン仕様になっていますので、お料理好きの方にもぴったり。バス・トイレは別なので、のんびりお風呂タイムも楽しめるでしょう。また、雨の日でも浴室乾燥機を使えば、お洗濯も問題ありません。
通信設備面では、インターネットが無料で使えるので、月々の出費を抑えられるのも魅力です。また、CATVにも対応しているので、おうち時間も充実するでしょう(別途工事、CATVの契約料等が必要な場合あり)。
建物にはエレベーターがついているので、重い荷物があっても安心。共用部には宅配ボックスが設定されているので、不在の時にも荷物を受け取ることができます。
このお部屋は2階以上に位置しているので通行人や周囲の住人からの視線が気になりにくく、建物のエントランスはオートロックがついているので防犯性が高くなっています。
フローリングのお部屋なのでお掃除もラクラク。キッチンはシステムキッチン仕様になっていますので、お料理好きの方にもぴったり。バス・トイレは別なので、のんびりお風呂タイムも楽しめるでしょう。また、雨の日でも浴室乾燥機を使えば、お洗濯も問題ありません。
通信設備面では、インターネットが無料で使えるので、月々の出費を抑えられるのも魅力です。また、CATVにも対応しているので、おうち時間も充実するでしょう(別途工事、CATVの契約料等が必要な場合あり)。
建物にはエレベーターがついているので、重い荷物があっても安心。共用部には宅配ボックスが設定されているので、不在の時にも荷物を受け取ることができます。
お金・契約の情報
※「-」と表示されているものは、実際は料金が発生するものもございます。詳細はお問い合わせください。
| 家賃 | 13.9万円 | 管理費・共益費 | 1万円 |
|---|---|---|---|
| 敷金 | なし | 礼金 | なし |
| 入居決定でお祝い金最大100,000円 | |||
| 保証金 | - | 償却・敷引 | - |
| 住宅保険料 | 1円 | 更新料 | - |
| その他費用 | プレミアデスク2年(税込):2.2万円 | ||
| 保証会社利用 | 必須 | 保証会社名 | ジェイリース |
| 保証会社費用 | - | 保証会社備考 | 【ジェイリース】初回保証料月額総賃料の50%/年次保証料10,000円/口座振替手数料月次330円(税込) |
| 契約形態 | - | 契約期間 | 2年 |
| 入居・引渡期間 | 即時 | 現況 | - |
| 入居可能条件 | 事務所不可、楽器不可、ペット不可 | ||
| 契約備考 | 鍵交換費用:38500 その他設備/条件:室内洗濯機置き場、独立洗面台、防犯カメラ、クローゼット、シューズボックス | ||
部屋の情報
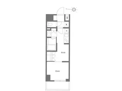
| 間取り | 1DK | 専有面積 | 25.02m2 |
|---|---|---|---|
| 所在階 / 向き | 2階 / 西 | バルコニー面積 | - |
| 水道 / ガス | 水道【公営】、ガス【都市】 | ||
| 設備 | バス・トイレ別、オートロック、宅配ボックス、浴室乾燥機、インターネット対応、システムキッチン、エアコン、エレベーター、温水洗浄便座、バルコニー、フローリング、2口コンロ、コンロ:ガス、CATV、インターネット使用料無料、給湯 | ||
| 当社物件ID | 153143568 | ||
建物の情報
| 建物名 | グランパセオ清澄白河Ⅱ | ||
|---|---|---|---|
| 所在地 | 東京都江東区石島 | ||
| 交通 | 東京地下鉄半蔵門線 清澄白河駅 徒歩12分 東京都新宿線 住吉駅(東京) 徒歩13分 | ||
| 階数 | 10階建 | 総戸数 | 74戸 |
| 築年月 | 2024年02月 / 築3年 | エレベーター | あり |
| 駐車場 | ご確認ください | バイク置き場 | - |
| 駐輪場 | あり | 管理人/管理会社 | - |
| 周辺環境 | その他 ドラッグストア その他 公園 その他 銀行 その他 * | ||
| 建物種別 | マンション | 建物構造 | RC(鉄筋コンクリート) |
この部屋の取扱い不動産会社
| 会社名 | ハウスコム東東京株式会社 西葛西店 | ||
|---|---|---|---|
| 所在地 | 東京都江戸川区15-3第1荒井ビル1階 | 交通 | - |
| 営業時間 | 10:00~18:00 | 定休日 | - |
| 免許番号 | 東京都知事(1)第108283号 | 取引態様 | 仲介 |
| 不動産会社管理番号 | HC5-4321529-0202-0186 | 当社管理番号 | 468 |
| 所属団体 | 、 | ||
| 取扱い物件情報 | 物件詳細へ | ||
※各種情報と現状に差異がある場合は、現状優先となります。問い合わせをすることで、より詳しい条件、情報を確認する事ができます。
提供:ハウスコム東東京株式会社 西葛西店
この物件が気になったら掲載期限まであと12日
グランパセオ清澄白河Ⅱに条件(家賃・エリア)が近い物件一覧
| 写真 | 家賃 管理費等 | 敷金 礼金 | 間取り 専有面積 | 築年数 | 最寄り駅 所在地 | キープ | 詳細 |
|---|---|---|---|---|---|---|---|
マンション ラクラス日本橋久松町(1LDK/9階) | |||||||
![]() | 22.2万円 1.3万円 | 22.2万円 22.2万円 | 1LDK 41.83m2 | 築21年 | 都営浅草線 東日本橋駅 徒歩4分 都営新宿線 馬喰横山駅 徒歩4分 JR総武線快速 馬喰町駅 徒歩6分 東京都中央区日本橋久松町 | 詳細を見る | |
マンション アーバネックス東京八丁堀(1LDK/2階) | |||||||
![]() | 16.3万円 1.5万円 | 16.3万円 なし | 1LDK 25.02m2 | 築4年 | 東京地下鉄日比谷線 八丁堀駅(東京) 徒歩4分 京葉線 八丁堀駅(東京) 徒歩4分 東京地下鉄日比谷線 築地駅 徒歩8分 東京都中央区入船2丁目 | 詳細を見る | |
マンション HF曳舟レジデンス(1LDK/4階) | |||||||
![]() | 17.4万円 1.4万円 | 17.4万円 17.4万円 | 1LDK 44.42m2 | 築8年 | 京成押上線 京成曳舟駅 徒歩8分 京成押上線 押上駅 徒歩16分 東京都墨田区京島 | 詳細を見る | |
マンション スカイコート日本橋第2(1K/6階) | |||||||
![]() | 9.2万円 6,500円 | 9.2万円 9.2万円 | 1K 20.23m2 | 築25年 | 東京地下鉄半蔵門線 水天宮前駅 徒歩3分 東京地下鉄日比谷線 茅場町駅 徒歩11分 京葉線 八丁堀駅(東京) 徒歩13分 東京都中央区日本橋箱崎町 | 詳細を見る | |
マンション RJRプレシア菊川駅前(1K/9階) | |||||||
![]() | 12.7万円 1万円 | 12.7万円 12.7万円 | 1K 26.34m2 | 築5年 | 東京都新宿線 菊川駅(東京) 徒歩3分 東京地下鉄半蔵門線 住吉駅(東京) 徒歩9分 東京都墨田区菊川3丁目 | 詳細を見る | |
タウンハウス 大田菜園長屋(2LDK) | |||||||
![]() | 15.2万円 5,000円 | 15.2万円 15.2万円 | 2LDK 52.17m2 | 築10年 | 京浜急行電鉄本線 雑色駅 徒歩8分 京浜急行電鉄本線 六郷土手駅 徒歩13分 東京都大田区東六郷3丁目 | 詳細を見る | |
マンション ヴェルト日本橋Ⅲ(1K/6階) | |||||||
![]() | 11.8万円 1.1万円 | なし 11.8万円 | 1K 22.4m2 | 築23年 | 東京地下鉄日比谷線 小伝馬町駅 徒歩2分 総武本線 馬喰町駅 徒歩3分 東京都新宿線 馬喰横山駅 徒歩3分 東京都中央区日本橋大伝馬町 | 詳細を見る | |
マンション PRISM OJIMA(ワンルーム/4階) | |||||||
![]() | 11.5万円 1.5万円 | なし なし | ワンルーム 24m2 | 築3年 | 都営新宿線 大島駅(東京) 徒歩5分 JR総武線 亀戸駅 徒歩15分 都営新宿線 西大島駅 徒歩15分 東京都江東区大島 | 詳細を見る | |









