賃貸マンション
赤石パルメゾンの賃貸物件情報(3DK/1階)
| 家賃 | 管理費等 | 敷金 | 礼金 | 間取り | 専有面積 |
|---|---|---|---|---|---|
| 6.2万円 | なし | 6.2万円 | 6.2万円 | 3DK | 63m2 |
入居決定でお祝い金最大100,000円
- 保証金
- -
- 償却・敷引
- -
- 築年数
- 築35年
- 所在階
- 1階
- 向き
- 北西
Point
まずはお問い合わせ!
不動産会社は街のプロ、あなたに合った物件がきっと見つかります。
提供:KURAS岡本店(株)StarLifes(SUUMO経由)

詳細情報 赤石パルメゾン
物件紹介
赤石パルメゾンは山陽電鉄本線林崎松江海岸駅から徒歩9分にあり、駅近で通勤通学に便利なマンションです。
人気の南向き・フローリングのお部屋。角部屋でもあるため、周囲の居住者の生活音も気になりにくい場所です。バス・トイレ別の仕様で、のんびりお風呂タイムも楽しめます。
通信設備面ではCATVに対応しているので、おうち時間も充実するでしょう(別途工事、契約料が必要な場合あり)。
人気の南向き・フローリングのお部屋。角部屋でもあるため、周囲の居住者の生活音も気になりにくい場所です。バス・トイレ別の仕様で、のんびりお風呂タイムも楽しめます。
通信設備面ではCATVに対応しているので、おうち時間も充実するでしょう(別途工事、契約料が必要な場合あり)。
お金・契約の情報
※「-」と表示されているものは、実際は料金が発生するものもございます。詳細はお問い合わせください。
| 家賃 | 6.2万円 | 管理費・共益費 | なし |
|---|---|---|---|
| 敷金 | 6.2万円 | 礼金 | 6.2万円 |
| 入居決定でお祝い金最大100,000円 | |||
| 保証金 | - | 償却・敷引 | - |
| 住宅保険料 | - | 更新料 | - |
| 保証会社利用 | 必須 | 保証会社名 | - |
| 保証会社費用 | - | 保証会社備考 | 保証会社利用必 初回総賃料50% 80% |
| 契約形態 | - | 契約期間 | - |
| 入居・引渡期間 | 即時 | 現況 | - |
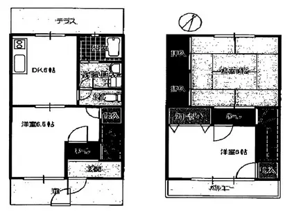
| 契約備考 | 3DK 二人入居可/子供可 普通借家2年 損保【2万円2年】 バストイレ別、バルコニー、ガスコンロ対応、クロゼット、フローリング、室内洗濯置、陽当り良好、角住戸、脱衣所、洗面所独立、洗面化粧台、駐輪場、押入、CATV、即入居可、最上階、二人入居相談、2沿線利用可、駅まで平坦、眺望良好、浴室に窓、クロゼット2ヶ所、平坦地、南面2室、2駅利用可、3駅以上利用可、駅徒歩10分以内、上階無し、和室、和室8畳以上、全居室6畳以上、オープンキッチン、プロパンガス、洗面所にドア、南面バルコニー、保証会社利用可、初期費用カード決済可、通風良好 | ||
部屋の情報
| 間取り | 3DK | 専有面積 | 63m2 |
|---|---|---|---|
| 所在階 / 向き | 1階 / 北西 | バルコニー面積 | - |
| 水道 / ガス | - | ||
| 設備 | バス・トイレ別、南向き、角部屋、バルコニー、フローリング、洗髪洗面化粧台、コンロ:ガス、CATV、洗濯機:室内 | ||
| 当社物件ID | 134208599 | ||
建物の情報
| 建物名 | 赤石パルメゾン | ||
|---|---|---|---|
| 所在地 | 兵庫県明石市松江 | ||
| 交通 | 山陽電鉄本線 林崎松江海岸駅 徒歩9分 山陽電鉄本線 藤江駅 徒歩24分 JR山陽本線 西明石駅 徒歩25分 | ||
| 階数 | 2階建 | 総戸数 | - |
| 築年月 | 1992年02月 / 築35年 | エレベーター | - |
| 駐車場 | 空有 付無料 | バイク置き場 | - |
| 駐輪場 | あり | 管理人/管理会社 | - |
| 周辺環境 | その他 スギドラッグ 明石松江店(ドラッグストア)まで547m その他 明石市立貴崎幼稚園(幼稚園・保育園)まで255m その他 明石市立貴崎小学校(小学校)まで265m その他 まつだ整骨院(その他)まで349m その他 ドラッグストアコスモス 貴崎店(ドラッグストア)まで369m その他 松江公園(公園)まで614m | ||
| 建物種別 | マンション | 建物構造 | PC(プレキャストコンクリート) |
この部屋の取扱い不動産会社
| 会社名 | KURAS垂水店(株)StarLifes(SUUMO経由) | ||
|---|---|---|---|
| 所在地 | 兵庫県神戸市垂水区神田町 2-40-603 | 交通 | - |
| 営業時間 | 9:30~19:00 | 定休日 | 水曜日 |
| 免許番号 | 兵庫県知事12247 | 取引態様 | 仲介 |
| 不動産会社管理番号 | 100436748264 | 当社管理番号 | 89 |
| 所属団体 | (公社)全日本不動産協会兵庫県本部会員 | ||
| 公正取引協議会 | (公社)近畿地区不動産公正取引協議会加盟 | ||
| 取扱い物件情報 | 物件詳細へ | ||
※各種情報と現状に差異がある場合は、現状優先となります。問い合わせをすることで、より詳しい条件、情報を確認する事ができます。
提供:KURAS垂水店(株)StarLifes(SUUMO経由)
この物件が気になったら掲載期限まであと10日
赤石パルメゾンに条件(家賃・エリア)が近い物件一覧
| 写真 | 家賃 管理費等 | 敷金 礼金 | 間取り 専有面積 | 築年数 | 最寄り駅 所在地 | キープ | 詳細 |
|---|---|---|---|---|---|---|---|
マンション ビレッジハウス尾上(3DK/1階) | |||||||
![]() | 5.16万円 なし | なし なし | 3DK 57.96m2 | 築60年 | 山陽電鉄本線 尾上の松駅 徒歩12分 山陽電鉄本線 浜の宮駅 徒歩22分 兵庫県加古川市尾上町池田 | 詳細を見る | |
マンション 播磨城の宮1号棟(3DK/5階) | |||||||
![]() | 5.3万円 2,400円 | なし なし | 3DK 57.8m2 | 築45年 | JR山陽本線 土山駅 徒歩18分 山陽電鉄本線 播磨町駅 徒歩27分 JR山陽本線 東加古川駅 徒歩30分 兵庫県加古郡播磨町野添城 | 詳細を見る | |
アパート シャーメゾンアムール(3LK/2階) | |||||||
![]() | 8.5万円 5,000円 | 2万円 なし | 3LK 74.13m2 | 築17年 | JR山陽本線 加古川駅 徒歩18分 山陽電鉄本線 尾上の松駅 徒歩33分 兵庫県加古川市加古川町木村 | 詳細を見る | |
アパート パニエ・ド・フルールⅡB(1LDK/2階) | |||||||
![]() | 5.7万円 3,500円 | なし 5.7万円 | 1LDK 50.02m2 | 築11年 | 山陽電気鉄道本線 播磨町駅 徒歩7分 山陽電気鉄道本線 別府駅(兵庫) 徒歩19分 山陽電気鉄道本線 西二見駅 徒歩25分 兵庫県加古郡播磨町古田1丁目 | 詳細を見る | |
マンション レオパレス1(2LDK/1階) | |||||||
![]() | 6万円 なし | なし なし | 2LDK 55.17m2 | 築38年 | 山陽本線 加古川駅 徒歩12分 山陽電気鉄道本線 尾上の松駅 徒歩26分 山陽電気鉄道本線 浜の宮駅 徒歩37分 兵庫県加古川市加古川町粟津 | 詳細を見る | |
アパート グランドゥール殿元(3DK/1階) | |||||||
![]() | 5.2万円 なし | なし 5.2万円 | 3DK 55.44m2 | 築31年 | 山陽本線 宝殿駅 徒歩13分 山陽本線 加古川駅 徒歩41分 加古川線 加古川駅 徒歩41分 兵庫県加古川市東神吉町西井ノ口 | 詳細を見る | |
一戸建て 加古川線 日岡駅 徒歩52分 築55年(6DK) | |||||||
![]() | 6.9万円 なし | 10万円 10万円 | 6DK 119.08m2 | 築55年 | 加古川線 日岡駅 徒歩52分 兵庫県加古川市東神吉町升田 | 詳細を見る | |
マンション シーサイドパストラル林崎II(2LDK/1階) | |||||||
![]() | 8.6万円 6,000円 | なし 20万円 | 2LDK 67.12m2 | 築29年 | 山陽電気鉄道本線 林崎松江海岸駅 徒歩3分 山陽電気鉄道本線 西新町駅 徒歩23分 山陽本線 西明石駅 徒歩30分 兵庫県明石市林崎町3丁目 | 詳細を見る | |






