賃貸マンション
メイクスデザイン東十条の賃貸物件情報(1K/7階)
| 家賃 | 管理費等 | 敷金 | 礼金 | 間取り | 専有面積 |
|---|---|---|---|---|---|
| 10万円 | 1.2万円 | 10万円 | 10万円 | 1K | 25.98m2 |
入居決定でお祝い金最大100,000円
- 保証金
- -
- 償却・敷引
- -
- 築年数
- 築5年
- 所在階
- 7階
- 向き
- -
Point
まずはお問い合わせ!
不動産会社は街のプロ、あなたに合った物件がきっと見つかります。
提供:(株)アドバンスリビング(SUUMO経由)

詳細情報 メイクスデザイン東十条
物件紹介
メイクスデザイン東十条はJR京浜東北線東十条駅から徒歩4分にあり、駅近で通勤通学に便利なマンションです。
このお部屋は2階以上に位置しているので通行人や周囲の住人からの視線が気になりにくく、建物のエントランスはオートロックがついているので防犯性が高くなっています。
おしゃれなデザイナーズ物件!また、楽器相談が可能な物件となっているので、楽器演奏をお考えの方はぜひ相談してみてください。キッチンはシステムキッチン仕様になっていますので、お料理好きの方にもぴったり。バス・トイレは別なので、のんびりお風呂タイムも楽しめるでしょう。また、雨の日でも浴室乾燥機を使えば、お洗濯も問題ありません。
通信設備面では、インターネットが無料で使えるので、月々の出費を抑えられるのも魅力です。また、BSアンテナ・CSアンテナもありますので、おうち時間も充実するでしょう(別途工事、BS・CSの契約料等が必要な場合あり)。
建物にはエレベーターがついているので、重い荷物があっても安心。共用部には宅配ボックスが設定されているので、不在の時にも荷物を受け取ることができます。
このお部屋は2階以上に位置しているので通行人や周囲の住人からの視線が気になりにくく、建物のエントランスはオートロックがついているので防犯性が高くなっています。
おしゃれなデザイナーズ物件!また、楽器相談が可能な物件となっているので、楽器演奏をお考えの方はぜひ相談してみてください。キッチンはシステムキッチン仕様になっていますので、お料理好きの方にもぴったり。バス・トイレは別なので、のんびりお風呂タイムも楽しめるでしょう。また、雨の日でも浴室乾燥機を使えば、お洗濯も問題ありません。
通信設備面では、インターネットが無料で使えるので、月々の出費を抑えられるのも魅力です。また、BSアンテナ・CSアンテナもありますので、おうち時間も充実するでしょう(別途工事、BS・CSの契約料等が必要な場合あり)。
建物にはエレベーターがついているので、重い荷物があっても安心。共用部には宅配ボックスが設定されているので、不在の時にも荷物を受け取ることができます。
お金・契約の情報
※「-」と表示されているものは、実際は料金が発生するものもございます。詳細はお問い合わせください。
| 家賃 | 10万円 | 管理費・共益費 | 1.2万円 |
|---|---|---|---|
| 敷金 | 10万円 | 礼金 | 10万円 |
| 入居決定でお祝い金最大100,000円 | |||
| 保証金 | - | 償却・敷引 | - |
| 住宅保険料 | - | 更新料 | - |
| 保証会社利用 | 必須 | 保証会社名 | - |
| 保証会社費用 | - | 保証会社備考 | 保証会社利用必 (1)月額保証料:家賃(賃料+管理費)の1%(2)初回保証料:家賃の80%(3)手数料:月550円(税込) |
| 契約形態 | - | 契約期間 | - |
| 入居・引渡期間 | - | 現況 | - |
| 入居可能条件 | 楽器相談 | ||
| 契約備考 | お客様が安心してお部屋を見学して頂き、ご契約が出来る環境を作る事を心掛け、全てのお客様に弊社を選んで良かったと思って頂ける様に、誠実さと物件情報量を駆使した丁寧な営業させていただいております。お客様との出会いそして「ありがとう!」の一言の為に、努力はいっさい惜しみません。是非とも、弊社アドバンスリビングへご来店くださいませ。スタッフ一同、心よりお待ちしております。 合計3.3万円(内訳:鍵交換費用(税込・必須)3.3万円) 更新料 新賃料1.50ヶ月分 安心入居サポート(必須) 月額2200円 1K 楽器相談/事務所利用不可 普通借家2年 バストイレ別、バルコニー、エアコン、ガスコンロ対応、クロゼット、浴室乾燥機、オートロック、室内洗濯置、シューズボックス、システムキッチン、温水洗浄便座、エレベーター、洗面所独立、2口コンロ、宅配ボックス、外壁タイル張り、防犯カメラ、保証人不要、敷金1ヶ月、デザイナーズ、2沿線利用可、ディンプルキー、CS、ネット使用料不要、ダブルロックキー、保証金不要、24時間換気システム、楽器相談、人感照明センサー、2駅利用可、3駅以上利用可、3沿線以上利用可、駅徒歩5分以内、駅徒歩10分以内、築5年以内、都市ガス、BS、年内入居可、礼金1ヶ月、初期費用カード決済可 入居日:'26年3月中旬 | ||
部屋の情報
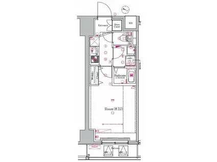
| 間取り | 1K | 専有面積 | 25.98m2 |
|---|---|---|---|
| 所在階 / 向き | 7階 / - | バルコニー面積 | 3m2 |
| 水道 / ガス | - | ||
| 設備 | バス・トイレ別、2階以上、オートロック、宅配ボックス、浴室乾燥機、インターネット対応、システムキッチン、エアコン、エレベーター、温水洗浄便座、バルコニー、洗髪洗面化粧台、2口コンロ、コンロ:ガス、デザイナーズ、CSアンテナ、BSアンテナ、インターネット使用料無料、洗濯機:室内 | ||
| 当社物件ID | 101564138 | ||
建物の情報
| 建物名 | メイクスデザイン東十条 | ||
|---|---|---|---|
| 所在地 | 東京都北区東十条 | ||
| 交通 | JR京浜東北線 東十条駅 徒歩4分 東京メトロ南北線 王子神谷駅 徒歩12分 JR埼京線 十条駅(東京) バス乗車時間:2分 最寄りバス停で下車 徒歩2分 | ||
| 階数 | 10階建 | 総戸数 | - |
| 築年月 | 2021年07月 / 築5年 | エレベーター | あり |
| 駐車場 | なし | バイク置き場 | - |
| 駐輪場 | - | 管理人/管理会社 | - |
| 周辺環境 | その他 北区立西が丘小学校(小学校)まで1164m その他 北区立なでしこ小学校(小学校)まで1705m その他 ドトールコーヒーショップ 東十条店(飲食店)まで184m その他 ケンタッキーフライドチキン 赤羽スズラン通り店(飲食店)まで1596m その他 まいばすけっと 赤羽南2丁目店(スーパー)まで854m その他 OK(オーケー) 十条店(スーパー)まで914m | ||
| 建物種別 | マンション | 建物構造 | RC(鉄筋コンクリート) |
この部屋の取扱い不動産会社
| 会社名 | (株)アドバンスリビング(SUUMO経由) | ||
|---|---|---|---|
| 所在地 | 東京都江東区門前仲町1-7-11 名取ビル302 | 交通 | - |
| 営業時間 | 10:00~19:00 | 定休日 | 無し |
| 免許番号 | 東京都知事110317 | 取引態様 | 仲介 |
| 不動産会社管理番号 | 100483779134 | 当社管理番号 | 89 |
| 所属団体 | (公社)東京都宅地建物取引業協会会員 | ||
| 公正取引協議会 | (公社)首都圏不動産公正取引協議会加盟 | ||
| 取扱い物件情報 | 物件詳細へ | ||
※各種情報と現状に差異がある場合は、現状優先となります。問い合わせをすることで、より詳しい条件、情報を確認する事ができます。
提供:(株)アドバンスリビング(SUUMO経由)
この物件が気になったら掲載期限まであと10日
メイクスデザイン東十条に条件(家賃・エリア)が近い物件一覧
| 写真 | 家賃 管理費等 | 敷金 礼金 | 間取り 専有面積 | 築年数 | 最寄り駅 所在地 | キープ | 詳細 |
|---|---|---|---|---|---|---|---|
マンション メゾン クロロ(1LDK/3階) | |||||||
![]() | 15.1万円 1.5万円 | 15.1万円 15.1万円 | 1LDK 42m2 | 築1年 | 東武東上線 ときわ台駅(東京) 徒歩7分 東武東上線 中板橋駅 徒歩9分 東武東上線 上板橋駅 徒歩21分 東京都板橋区常盤台 | 詳細を見る | |
マンション コンソルテ(1LDK/2階) | |||||||
![]() | 14.3万円 5,000円 | 14.3万円 14.3万円 | 1LDK 46.3m2 | 築14年 | 西武池袋線 東長崎駅 徒歩9分 西武池袋線 椎名町駅 徒歩10分 東京メトロ有楽町線 要町駅 徒歩12分 東京都豊島区長崎 | 詳細を見る | |
マンション ザ・ジェミニス池袋(ワンルーム/4階) | |||||||
![]() | 10.8万円 なし | 10.8万円 10.8万円 | ワンルーム 17.03m2 | 築3年 | JR山手線 池袋駅 徒歩10分 東武東上線 北池袋駅 徒歩13分 東京メトロ有楽町線 要町駅 徒歩16分 東京都豊島区池袋 | 詳細を見る | |
アパート レオパレスセードルⅡ(1K/1階) | |||||||
![]() | 7.6万円 5,500円 | なし 7.6万円 | 1K 28.74m2 | 築18年 | 東武伊勢崎・大師線 竹ノ塚駅 徒歩23分 東京都足立区東伊興1丁目 | 詳細を見る | |
マンション アルファコート西新井(1LDK/1階) | |||||||
![]() | 16.2万円 9,000円 | 16.2万円 なし | 1LDK 41.03m2 | 築4年 | 東武伊勢崎線 西新井駅 徒歩6分 東武伊勢崎線 梅島駅 徒歩15分 東武大師線 大師前駅 徒歩19分 東京都足立区西新井栄町 | 詳細を見る | |
マンション クレスト目白(1DK/1階) | |||||||
![]() | 11.7万円 9,000円 | 11.7万円 11.7万円 | 1DK 36.67m2 | 築26年 | 東京メトロ副都心線 雑司が谷駅(東京メトロ) 徒歩3分 都電荒川線 鬼子母神前駅 徒歩4分 JR山手線 目白駅 徒歩7分 東京都豊島区目白 | 詳細を見る | |
マンション メゾン大塚(ワンルーム/8階) | |||||||
![]() | 9万円 2.8万円 | 9万円 18万円 | ワンルーム 25.32m2 | 築40年 | 山手線 大塚駅(東京) 徒歩2分 東京都豊島区南大塚1丁目 | 詳細を見る | |
マンション HYS RVE(1K/3階) | |||||||
![]() | 11.1万円 8,000円 | 11.1万円 11.1万円 | 1K 25.5m2 | 築10年 | 京成本線 新三河島駅 徒歩3分 JR常磐線 三河島駅 徒歩7分 JR山手線 西日暮里駅 徒歩11分 東京都荒川区西日暮里 | 詳細を見る | |









