賃貸マンション
リブリ・ADONISの賃貸物件情報(1K/2階)
| 家賃 | 管理費等 | 敷金 | 礼金 | 間取り | 専有面積 |
|---|---|---|---|---|---|
| 8.5万円 | 4,000円 | なし | 8.5万円 | 1K | 26.08m2 |
入居決定でお祝い金最大100,000円
- 保証金
- -
- 償却・敷引
- -
- 築年数
- 築14年
- 所在階
- 2階
- 向き
- 南
Point
弊社では全物件初期費用クレジットカード決済が可能♪また他社様の物件もご紹介可能です!お気軽にご連絡下さいませ♪
提供:(株)アップル神奈川金沢文庫店(SUUMO経由)

詳細情報 リブリ・ADONIS
物件紹介
リブリ・ADONISは東急東横線大倉山駅から徒歩12分にあるマンションです。
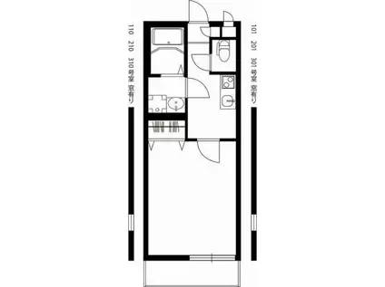
このお部屋は2階以上に位置しているので、通行人や周囲の住人からの視線が気になりにくく、防犯面でも安心。建物のエントランスはオートロックがついており、インターホンにはTVモニタもついているため、相手の顔を確認してから来客対応することができます。
人気の南向きのお部屋。また、フローリングなのでお掃除もラクラク。キッチンはシステムキッチン仕様になっていますので、お料理好きの方にもぴったり。バス・トイレは別なので、のんびりお風呂タイムも楽しめるでしょう。また、雨の日でも浴室乾燥機を使えば、お洗濯も問題ありません。
通信設備面では、インターネット接続が可能です。また、BSアンテナ・CSアンテナがありCATVにも対応しているので、おうち時間も充実するでしょう(別途工事、契約料が必要な場合あり)。
このお部屋は2階以上に位置しているので、通行人や周囲の住人からの視線が気になりにくく、防犯面でも安心。建物のエントランスはオートロックがついており、インターホンにはTVモニタもついているため、相手の顔を確認してから来客対応することができます。
人気の南向きのお部屋。また、フローリングなのでお掃除もラクラク。キッチンはシステムキッチン仕様になっていますので、お料理好きの方にもぴったり。バス・トイレは別なので、のんびりお風呂タイムも楽しめるでしょう。また、雨の日でも浴室乾燥機を使えば、お洗濯も問題ありません。
通信設備面では、インターネット接続が可能です。また、BSアンテナ・CSアンテナがありCATVにも対応しているので、おうち時間も充実するでしょう(別途工事、契約料が必要な場合あり)。
お金・契約の情報
※「-」と表示されているものは、実際は料金が発生するものもございます。詳細はお問い合わせください。
| 家賃 | 8.5万円 | 管理費・共益費 | 4,000円 |
|---|---|---|---|
| 敷金 | なし | 礼金 | 8.5万円 |
| 入居決定でお祝い金最大100,000円 | |||
| 保証金 | - | 償却・敷引 | - |
| 住宅保険料 | - | 更新料 | - |
| 保証会社利用 | 必須 | 保証会社名 | - |
| 保証会社費用 | - | 保証会社備考 | 保証会社利用必 保証人代行会社名:株式会社スマートクレジット(プランP)基本料:月額支払合計の100% 、月額料:月額支払合計の1.1%、口振手数料:330円/月 |
| 契約形態 | 定期借家 | 契約期間 | 2年 |
| 入居・引渡期間 | - | 現況 | - |
| 契約備考 | [退去時費用 ルームクリーニング費:41,800円※故意・過失等別途実費]駐輪場(空有) 保証会社:株式会社スマートクレジット 合計4.84万円(内訳:室内消毒代/リブリクラブ会員費(2年間)/鍵交換費用等) 1K 定期借家2年 損保【要】 バストイレ別、バルコニー、エアコン、クロゼット、フローリング、TVインターホン、浴室乾燥機、オートロック、室内洗濯置、シューズボックス、システムキッチン、温水洗浄便座、洗面所独立、洗面化粧台、2口コンロ、駐輪場、光ファイバー、敷金不要、防犯カメラ、2沿線利用可、2駅利用可、プロパンガス、高速ネット対応、礼金1ヶ月、保証会社利用可 入居日:'26年1月下旬 | ||
部屋の情報
| 間取り | 1K | 専有面積 | 26.08m2 |
|---|---|---|---|
| 所在階 / 向き | 2階 / 南 | バルコニー面積 | - |
| 水道 / ガス | - | ||
| 設備 | バス・トイレ別、2階以上、オートロック、テレビドアホン、浴室乾燥機、インターネット対応、システムキッチン、エアコン、温水洗浄便座、南向き、バルコニー、フローリング、洗髪洗面化粧台、2口コンロ、洗濯機:室内 | ||
| 当社物件ID | 5025037 | ||
建物の情報
| 建物名 | リブリ・ADONIS | ||
|---|---|---|---|
| 所在地 | 神奈川県横浜市港北区樽町 | ||
| 交通 | 東急東横線 大倉山駅(神奈川) 徒歩12分 東急東横線 綱島駅 徒歩13分 JR横浜線 菊名駅 徒歩28分 | ||
| 階数 | 3階建 | 総戸数 | 30戸 |
| 築年月 | 2012年05月 / 築14年 | エレベーター | - |
| 駐車場 | なし | バイク置き場 | - |
| 駐輪場 | あり | 管理人/管理会社 | - |
| 周辺環境 | その他 エンゼルファミリー大曽根店(スーパー)まで381m その他 デニーズ(飲食店)まで676m その他 サイゼリア(飲食店)まで697m その他 T-PLATZ(ショッピングセンター)まで692m その他 ファミリーマート(コンビニ)まで869m その他 東急ストア フードステーション大倉山店(スーパー)まで937m | ||
| 建物種別 | マンション | 建物構造 | 鉄骨造 |
この部屋の取扱い不動産会社
| 会社名 | (株)アップル神奈川金沢文庫店(SUUMO経由) | ||
|---|---|---|---|
| 所在地 | 神奈川県横浜市金沢区谷津町 359 ししくら2階 | 交通 | - |
| 営業時間 | 10時~19時 | 定休日 | 毎週水曜日 |
| 免許番号 | 神奈川県知事13668 | 取引態様 | 仲介 |
| 不動産会社管理番号 | 100480208889 | 当社管理番号 | 89 |
| 取扱い物件情報 | 物件詳細へ | ||
※各種情報と現状に差異がある場合は、現状優先となります。問い合わせをすることで、より詳しい条件、情報を確認する事ができます。
提供:(株)アップル神奈川金沢文庫店(SUUMO経由)
この物件が気になったら掲載期限まであと12日
リブリ・ADONISに条件(家賃・エリア)が近い物件一覧
| 写真 | 家賃 管理費等 | 敷金 礼金 | 間取り 専有面積 | 築年数 | 最寄り駅 所在地 | キープ | 詳細 |
|---|---|---|---|---|---|---|---|
アパート エスポワール湘南(2LDK/2階) | |||||||
![]() | 8.5万円 なし | 17万円 8.5万円 | 2LDK 55.11m2 | 築21年 | 神奈川県藤沢市柄沢1丁目 | 詳細を見る | |
マンション 集GARDEN(1K/1階) | |||||||
![]() | 5.8万円 3,000円 | 11.6万円 なし | 1K 21.26m2 | 築17年 | JR東海道本線 辻堂駅 徒歩3分 神奈川県藤沢市辻堂元町 | 詳細を見る | |
アパート ジュネスアイ(2DK/1階) | |||||||
![]() | 6万円 3,000円 | 12万円 なし | 2DK 39.4m2 | 築40年 | 湘南モノレール 片瀬山駅 徒歩6分 湘南モノレール 西鎌倉駅 徒歩11分 神奈川県鎌倉市津西1丁目 | 詳細を見る | |
アパート ヴィア コート(2K/1階) | |||||||
![]() | 10.2万円 5,000円 | なし 10.2万円 | 2K 45m2 | 築15年 | 京急本線 京急川崎駅 徒歩25分 JR南武線 鹿島田駅 徒歩28分 神奈川県川崎市幸区小向町 | 詳細を見る | |
マンション 元住吉センチュリー21(ワンルーム/7階) | |||||||
![]() | 6.8万円 なし | 6.8万円 6.8万円 | ワンルーム 16.5m2 | 築39年 | 東急東横線 元住吉駅 徒歩2分 東急目黒線 元住吉駅 徒歩2分 神奈川県川崎市中原区木月2丁目 | 詳細を見る | |
マンション フューレ元住吉(1K/2階) | |||||||
![]() | 6万円 2,000円 | なし なし | 1K 26.86m2 | 築34年 | JR南武線 武蔵中原駅 徒歩19分 東急東横線 元住吉駅 徒歩22分 JR南武線 武蔵新城駅 徒歩26分 神奈川県川崎市高津区明津 | 詳細を見る | |
アパート ヴィシェット大倉山(1K/2階) | |||||||
![]() | 7.4万円 3,000円 | なし なし | 1K 18m2 | 築9年 | 東急東横線 大倉山駅(神奈川) 徒歩8分 東急東横線 綱島駅 徒歩16分 神奈川県横浜市港北区大曽根 | 詳細を見る | |
アパート ベイルーム南林間(1K/1階) | |||||||
![]() | 5.9万円 5,000円 | なし なし | 1K 20.5m2 | 築1年 | 小田急江ノ島線 鶴間駅 徒歩5分 小田急江ノ島線 南林間駅 徒歩6分 小田急江ノ島線 中央林間駅 徒歩25分 神奈川県大和市鶴間 | 詳細を見る | |









