賃貸アパート
マルモハイムの賃貸物件情報(3DK/2階)
| 家賃 | 管理費等 | 敷金 | 礼金 | 間取り | 専有面積 |
|---|---|---|---|---|---|
| 4.8万円 | 500円 | なし | なし | 3DK | 41m2 |
入居決定でお祝い金最大100,000円
Point
三船地所仲介限定!契約一時金がゼロ!ゼロ賃貸対象物件!TVモニタホン、エアコン1台、駐車場1台込。温水洗浄便座付!インターネット使用料割引あり(速度120Mまで無料WiFi/J:COMNET)
提供:ハウスメイトネットワーク君津店(株)三船地所(SUUMO経由)

詳細情報 マルモハイム
物件紹介
マルモハイムはJR内房線君津駅から徒歩19分にあるアパートです。
このお部屋は2階以上に位置しているので、通行人や周囲の住人からの視線が気になりにくく、防犯面でも安心。インターホンにはTVモニタもついているため、相手の顔を確認してから来客対応することができます。
人気の南向きのお部屋。バス・トイレ別の仕様で、のんびりお風呂タイムも楽しめます。
通信設備面では、インターネットが無料で使えるので、月々の出費を抑えられるのも魅力です。また、CATVにも対応しているので、おうち時間も充実するでしょう(別途工事、CATVの契約料等が必要な場合あり)。
このお部屋は2階以上に位置しているので、通行人や周囲の住人からの視線が気になりにくく、防犯面でも安心。インターホンにはTVモニタもついているため、相手の顔を確認してから来客対応することができます。
人気の南向きのお部屋。バス・トイレ別の仕様で、のんびりお風呂タイムも楽しめます。
通信設備面では、インターネットが無料で使えるので、月々の出費を抑えられるのも魅力です。また、CATVにも対応しているので、おうち時間も充実するでしょう(別途工事、CATVの契約料等が必要な場合あり)。
お金・契約の情報
※「-」と表示されているものは、実際は料金が発生するものもございます。詳細はお問い合わせください。
| 家賃 | 4.8万円 | 管理費・共益費 | 500円 |
|---|---|---|---|
| 敷金 | なし | 礼金 | なし |
| 入居決定でお祝い金最大100,000円 | |||
| 保証金 | - | 償却・敷引 | - |
| 住宅保険料 | - | 更新料 | - |
| 保証会社利用 | 必須 | 保証会社名 | - |
| 保証会社費用 | - | 保証会社備考 | 保証会社利用必 初回保証料月賃料合計の100%(最低4万円)/更新保証料10%(最低1.5万円/年)。※60歳以上は連帯保証人要 |
| 契約形態 | - | 契約期間 | - |
| 入居・引渡期間 | 即時 | 現況 | - |
| 契約備考 | ・君津市役所まで900m!君津駅まで1.6km! ・近隣スーパーまで450m!コインランドリーまで500m! ・前面道路から一段上がっているので、見晴らし◎ ・ゼロ賃貸の場合、初期費用6万円~ ・仲介手数料割引100%OFF!通常プランでも初期費用10万円~ すもう丸クラブ会費:3300円/更新事務手数料:52800円/口座振替手数料:440円 3DK 法人希望/事務所利用不可 損保【要】 バストイレ別、エアコン、ガスコンロ対応、TVインターホン、室内洗濯置、南向き、追焚機能浴室、温水洗浄便座、押入、CATV、即入居可、最上階、駐車場1台無料、CATVインターネット、ネット使用料不要、浴室に窓、3駅以上利用可、上階無し、和室、プロパンガス、敷金・礼金不要 | ||
部屋の情報
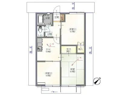
| 間取り | 3DK | 専有面積 | 41m2 |
|---|---|---|---|
| 所在階 / 向き | 2階 / 南 | バルコニー面積 | - |
| 水道 / ガス | - | ||
| 設備 | バス・トイレ別、2階以上、テレビドアホン、追い焚き、インターネット対応、エアコン、温水洗浄便座、南向き、コンロ:ガス、CATV、インターネット使用料無料、洗濯機:室内 | ||
| 当社物件ID | 25555467 | ||
建物の情報
| 建物名 | マルモハイム | ||
|---|---|---|---|
| 所在地 | 千葉県君津市北子安 | ||
| 交通 | JR内房線 君津駅 徒歩19分 JR内房線 青堀駅 徒歩65分 JR内房線 木更津駅 徒歩87分 | ||
| 階数 | 2階建 | 総戸数 | 6戸 |
| 築年月 | 1991年02月 / 築36年 | エレベーター | - |
| 駐車場 | 空有 平置駐 | バイク置き場 | - |
| 駐輪場 | - | 管理人/管理会社 | - |
| 周辺環境 | その他 北子安(小学校)まで1100m その他 君津(中学校)まで500m その他 セブンイレブン君津南子安4丁目店(コンビニ)まで848m その他 ミニストップ君津北子安店(コンビニ)まで928m その他 病院(病院)まで350m その他 スーパー(スーパー)まで450m | ||
| 建物種別 | アパート | 建物構造 | 木造 |
この部屋の取扱い不動産会社
| 会社名 | ハウスメイトネットワーク君津店(株)三船地所(SUUMO経由) | ||
|---|---|---|---|
| 所在地 | 千葉県君津市南久保2-14-1 | 交通 | - |
| 営業時間 | 09:30~18:00 | 定休日 | 水曜日/日曜日 |
| 免許番号 | 千葉県知事6280 | 取引態様 | 仲介 |
| 不動産会社管理番号 | 100470816461 | 当社管理番号 | 89 |
| 所属団体 | (一社)千葉県宅地建物取引業協会会員 | ||
| 公正取引協議会 | (公社)首都圏不動産公正取引協議会加盟 | ||
| 取扱い物件情報 | 物件詳細へ | ||
※各種情報と現状に差異がある場合は、現状優先となります。問い合わせをすることで、より詳しい条件、情報を確認する事ができます。
提供:ハウスメイトネットワーク君津店(株)三船地所(SUUMO経由)
この物件が気になったら掲載期限まであと10日
マルモハイムに条件(家賃・エリア)が近い物件一覧
| 写真 | 家賃 管理費等 | 敷金 礼金 | 間取り 専有面積 | 築年数 | 最寄り駅 所在地 | キープ | 詳細 |
|---|---|---|---|---|---|---|---|
アパート レオパレスエスポワールTⅡ(1K/1階) | |||||||
![]() | 5.9万円 5,000円 | なし 5.9万円 | 1K 23.18m2 | 築19年 | 内房線 五井駅 徒歩24分 千葉県市原市岩崎1丁目 | 詳細を見る | |
アパート RAFALE-ERI(ワンルーム/3階) | |||||||
![]() | 6.1万円 5,000円 | なし 6.1万円 | ワンルーム 26.3m2 | 築6年 | JR内房線 木更津駅 徒歩15分 JR久留里線 木更津駅 徒歩15分 千葉県木更津市新田 | 詳細を見る | |
アパート サニーコートC棟(1LDK/2階) | |||||||
![]() | 5.8万円 2,000円 | 5.8万円 なし | 1LDK 51.23m2 | 築23年 | 千葉県木更津市請西東6丁目 | 詳細を見る | |
アパート レオパレスいけだ(1K/1階) | |||||||
![]() | 5.8万円 5,000円 | なし 5.8万円 | 1K 23.71m2 | 築23年 | 内房線 君津駅 徒歩20分 千葉県君津市北子安3丁目 | 詳細を見る | |
アパート 秋本ハイツB(2DK/2階) | |||||||
![]() | 3.9万円 なし | 7.8万円 なし | 2DK 34.71m2 | 築43年 | 内房線 木更津駅 徒歩20分 千葉県木更津市長須賀 | 詳細を見る | |
アパート グリーンヒルズB(2DK/2階) | |||||||
![]() | 4.1万円 3,000円 | 8.2万円 なし | 2DK 39.74m2 | 築38年 | 千葉県市原市国分寺台中央 | 詳細を見る | |
アパート フィールドコーポII(2DK/1階) | |||||||
![]() | 6.6万円 3,000円 | なし なし | 2DK 47.07m2 | 築19年 | JR内房線 君津駅 徒歩3分 千葉県君津市中野 | 詳細を見る | |
アパート レオパレスリベェールヤマダ2(1K/1階) | |||||||
![]() | 5.1万円 5,000円 | なし 5.1万円 | 1K 23.18m2 | 築25年 | 内房線 青堀駅 徒歩4分 千葉県富津市大堀2丁目 | 詳細を見る | |


/105x80-f1-q70-wp1)






