賃貸マンション
ビレッジハウス福田1 2号棟の賃貸物件情報(3DK/3階)
| 家賃 | 管理費等 | 敷金 | 礼金 | 間取り | 専有面積 |
|---|---|---|---|---|---|
| 3.91万円 | なし | なし | なし | 3DK | 53.08m2 |
入居決定でお祝い金最大100,000円
- 保証金
- -
- 償却・敷引
- -
- 築年数
- 築37年
- 所在階
- 3階
- 向き
- 南
Point
まずはお問い合わせ!
不動産会社は街のプロ、あなたに合った物件がきっと見つかります。
提供:ビレッジハウス住まい相談センター

詳細情報 ビレッジハウス福田1 2号棟
物件紹介
このお部屋は2階以上に位置しているので、通行人や周囲の住人からの視線が気になりにくく、防犯面でも安心です。
人気の南向きのお部屋。角部屋でもあるため、周囲の居住者の生活音も気になりにくい場所です。バス・トイレ別の仕様で、のんびりお風呂タイムも楽しめます。
ペット飼育の相談ができますので、あなたの大切な家族の一員も快適に暮らせるか、ぜひ確認してみてください。
人気の南向きのお部屋。角部屋でもあるため、周囲の居住者の生活音も気になりにくい場所です。バス・トイレ別の仕様で、のんびりお風呂タイムも楽しめます。
ペット飼育の相談ができますので、あなたの大切な家族の一員も快適に暮らせるか、ぜひ確認してみてください。
お金・契約の情報
※「-」と表示されているものは、実際は料金が発生するものもございます。詳細はお問い合わせください。
| 家賃 | 3.91万円 | 管理費・共益費 | なし |
|---|---|---|---|
| 敷金 | なし | 礼金 | なし |
| フリーレント | 1ヶ月 | ||
| 入居決定でお祝い金最大100,000円 | |||
| 保証金 | - | 償却・敷引 | - |
| 住宅保険料 | 1万円(2年) | 更新料 | - |
| 保証会社利用 | - | 保証会社名 | - |
| 保証会社費用 | - | 保証会社備考 | - |
| 契約形態 | - | 契約期間 | - |
| 入居・引渡期間 | - | 現況 | 空室 |
| 入居可能条件 | 2人入居可、高齢者相談、学生可、ペット相談 | ||
| 契約備考 | 契約種類:普通契約、24時間緊急対応、ウォシュレット、ウォームレット | ||
部屋の情報
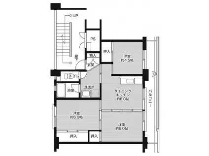
| 間取り | 3DK | 専有面積 | 53.08m2 |
|---|---|---|---|
| 所在階 / 向き | 3階 / 南 | バルコニー面積 | - |
| 水道 / ガス | - | ||
| 設備 | バス・トイレ別、エアコン、角部屋、バルコニー、給湯、洗濯機:室内 | ||
| 当社物件ID | 32985599 | ||
建物の情報
| 建物名 | ビレッジハウス福田1 2号棟 | ||
|---|---|---|---|
| 所在地 | 静岡県磐田市福田中島3589-1 | ||
| 交通 | 東海道本線 磐田駅 バス乗車時間:35分 新道バス停で下車 徒歩71分 | ||
| 階数 | 5階建 | 総戸数 | - |
| 築年月 | 1989年09月 / 築37年 | エレベーター | - |
| 駐車場 | 空有 3,300円/月 円 | バイク置き場 | - |
| 駐輪場 | - | 管理人/管理会社 | 日勤 |
| 建物種別 | マンション | 建物構造 | RC(鉄筋コンクリート) |
この部屋の取扱い不動産会社
| 会社名 | ビレッジハウス住まい相談センター | ||
|---|---|---|---|
| 所在地 | 愛知県名古屋市中区大須4-10-32 上前津KDビル5階 | 交通 | 名城線「上前津駅」徒歩3分 |
| 営業時間 | 平日:9:00-18:30/土日祝:9:00-18:00 | 定休日 | 年末年始休業:2025年12月27日~2026年1月4日 |
| 免許番号 | 東京都知事(2)第100758号 | 取引態様 | 貸主 |
| 不動産会社管理番号 | 00008748844 | 当社管理番号 | 459 |
| 所属団体 | 公益社団法人東京都宅地建物取引業協会会員 日本賃貸住宅管理協会会員 | ||
| 取扱い物件情報 | 物件詳細へ | ||
※各種情報と現状に差異がある場合は、現状優先となります。問い合わせをすることで、より詳しい条件、情報を確認する事ができます。
提供:ビレッジハウス住まい相談センター
この物件が気になったら掲載期限まであと13日
ビレッジハウス福田1 2号棟に条件(家賃・エリア)が近い物件一覧
| 写真 | 家賃 管理費等 | 敷金 礼金 | 間取り 専有面積 | 築年数 | 最寄り駅 所在地 | キープ | 詳細 |
|---|---|---|---|---|---|---|---|
マンション VIVACE(1K/2階) | |||||||
![]() | 4.8万円 2,000円 | なし なし | 1K 30.35m2 | 築26年 | 東海道本線 磐田駅 徒歩10分 静岡県磐田市 | 詳細を見る | |
アパート センチュリーレジデンスII(2LDK/2階) | |||||||
![]() | 5.3万円 3,000円 | なし なし | 2LDK 49.85m2 | 築25年 | 静岡県磐田市見付 | 詳細を見る | |
マンション アネーロ(2LDK/2階) | |||||||
![]() | 5.9万円 3,000円 | なし なし | 2LDK 56.84m2 | 築20年 | 静岡県磐田市千手堂 | 詳細を見る | |
マンション ハミング白木(2DK/2階) | |||||||
![]() | 5.7万円 3,000円 | なし なし | 2DK 50.45m2 | 築31年 | 静岡県磐田市見付 | 詳細を見る | |
アパート 紫陽花I(2DK/1階) | |||||||
![]() | 3.9万円 3,000円 | なし なし | 2DK 44.7m2 | 築20年 | 静岡県磐田市水堀 | 詳細を見る | |
マンション ラフォーレ見付(2LDK/3階) | |||||||
![]() | 5.6万円 3,000円 | なし なし | 2LDK 50.05m2 | 築33年 | 静岡県磐田市見付 | 詳細を見る | |
アパート 紫陽花II(2DK/1階) | |||||||
![]() | 3.9万円 3,000円 | なし なし | 2DK 40.5m2 | 築20年 | 静岡県磐田市水堀 | 詳細を見る | |
マンション コンフォートシティFUKUROI(2LDK/4階) | |||||||
![]() | 5.2万円 3,000円 | なし なし | 2LDK 57.93m2 | 築33年 | 東海道本線 愛野駅(静岡) 徒歩60分 静岡県袋井市田町2丁目 | 詳細を見る | |







