賃貸マンション
ビレッジハウス志度1号棟の賃貸物件情報(3DK/5階)
| 家賃 | 管理費等 | 敷金 | 礼金 | 間取り | 専有面積 |
|---|---|---|---|---|---|
| 2.65万円 | なし | なし | なし | 3DK | 53.96m2 |
入居決定でお祝い金最大100,000円
Point
まずはお問い合わせ!
不動産会社は街のプロ、あなたに合った物件がきっと見つかります。
提供:ビレッジハウス住まい相談センター

詳細情報 ビレッジハウス志度1号棟
物件紹介
ビレッジハウス志度1号棟は高松琴平電鉄志度線琴電志度駅から徒歩35分にあるマンションです。
このお部屋は2階以上に位置しているので、通行人や周囲の住人からの視線が気になりにくく、防犯面でも安心。インターホンにはTVモニタもついているため、相手の顔を確認してから来客対応することができます。
人気の南向きのお部屋。角部屋でもあるため、周囲の居住者の生活音も気になりにくい場所です。バス・トイレ別の仕様で、のんびりお風呂タイムも楽しめます。
ペット飼育の相談ができますので、あなたの大切な家族の一員も快適に暮らせるか、ぜひ確認してみてください。
このお部屋は2階以上に位置しているので、通行人や周囲の住人からの視線が気になりにくく、防犯面でも安心。インターホンにはTVモニタもついているため、相手の顔を確認してから来客対応することができます。
人気の南向きのお部屋。角部屋でもあるため、周囲の居住者の生活音も気になりにくい場所です。バス・トイレ別の仕様で、のんびりお風呂タイムも楽しめます。
ペット飼育の相談ができますので、あなたの大切な家族の一員も快適に暮らせるか、ぜひ確認してみてください。
お金・契約の情報
※「-」と表示されているものは、実際は料金が発生するものもございます。詳細はお問い合わせください。
| 家賃 | 2.65万円 | 管理費・共益費 | なし |
|---|---|---|---|
| 敷金 | なし | 礼金 | なし |
| フリーレント | 1ヶ月 | ||
| 入居決定でお祝い金最大100,000円 | |||
| 保証金 | - | 償却・敷引 | - |
| 住宅保険料 | 1万円(2年) | 更新料 | - |
| 保証会社利用 | - | 保証会社名 | - |
| 保証会社費用 | - | 保証会社備考 | - |
| 契約形態 | - | 契約期間 | - |
| 入居・引渡期間 | - | 現況 | 空室 |
| 入居可能条件 | 2人入居可、高齢者相談、学生可、ペット相談 | ||
| 契約備考 | 契約種類:普通契約、24時間緊急対応、ウォシュレット、ウォームレット | ||
部屋の情報
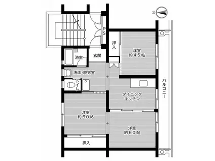
| 間取り | 3DK | 専有面積 | 53.96m2 |
|---|---|---|---|
| 所在階 / 向き | 5階 / 南 | バルコニー面積 | - |
| 水道 / ガス | - | ||
| 設備 | バス・トイレ別、テレビドアホン、追い焚き、エアコン、角部屋、バルコニー、給湯、洗濯機:室内 | ||
| 当社物件ID | 156544990 | ||
建物の情報
| 建物名 | ビレッジハウス志度1号棟 | ||
|---|---|---|---|
| 所在地 | 香川県さぬき市鴨庄4601-2 | ||
| 交通 | 高松琴平電鉄志度線 琴電志度駅 徒歩35分 高徳線 志度駅 徒歩42分 | ||
| 階数 | 5階建 | 総戸数 | - |
| 築年月 | 1981年09月 / 築45年 | エレベーター | - |
| 駐車場 | 空有 円 | バイク置き場 | - |
| 駐輪場 | - | 管理人/管理会社 | 日勤 |
| 建物種別 | マンション | 建物構造 | RC(鉄筋コンクリート) |
この部屋の取扱い不動産会社
| 会社名 | ビレッジハウス住まい相談センター | ||
|---|---|---|---|
| 所在地 | 愛知県名古屋市中区大須4-10-32 上前津KDビル5階 | 交通 | 名城線「上前津駅」徒歩3分 |
| 営業時間 | 平日:9:00-18:30/土日祝:9:00-18:00 | 定休日 | 年末年始休業:2025年12月27日~2026年1月4日 |
| 免許番号 | 東京都知事(2)第100758号 | 取引態様 | 貸主 |
| 不動産会社管理番号 | 00009839252 | 当社管理番号 | 459 |
| 所属団体 | 公益社団法人東京都宅地建物取引業協会会員 日本賃貸住宅管理協会会員 | ||
| 取扱い物件情報 | 物件詳細へ | ||
※各種情報と現状に差異がある場合は、現状優先となります。問い合わせをすることで、より詳しい条件、情報を確認する事ができます。
提供:ビレッジハウス住まい相談センター
この物件が気になったら掲載期限まであと13日
ビレッジハウス志度1号棟に条件(家賃・エリア)が近い物件一覧
| 写真 | 家賃 管理費等 | 敷金 礼金 | 間取り 専有面積 | 築年数 | 最寄り駅 所在地 | キープ | 詳細 |
|---|---|---|---|---|---|---|---|
アパート フォレストパークB(2DK/1階) | |||||||
![]() | 3.2万円 4,400円 | なし なし | 2DK 39.74m2 | 築33年 | JR予讃線 国分駅(香川) 徒歩23分 香川県高松市国分寺町柏原 | 詳細を見る | |
アパート メゾン富士(2DK/2階) | |||||||
![]() | 4万円 なし | 4万円 なし | 2DK 40.89m2 | 築26年 | JR高徳線 讃岐津田駅 徒歩8分 香川県さぬき市津田町津田 | 詳細を見る | |
マンション ガーデンハイツ三名弐番館(1DK/3階) | |||||||
![]() | 3.5万円 3,000円 | なし なし | 1DK 31.45m2 | 築28年 | 高松琴平電鉄琴平線 仏生山駅 徒歩14分 香川県高松市三名町 | 詳細を見る | |
アパート クレイドル橋谷Ⅰ・Ⅱ(1K/2階) | |||||||
![]() | 3.1万円 3,000円 | なし なし | 1K 26m2 | 築27年 | 高松琴平電鉄長尾線 元山駅(高松) 徒歩40分 香川県高松市由良町 | 詳細を見る | |
アパート ウインディア屋島(2DK/2階) | |||||||
![]() | 4万円 なし | なし なし | 2DK 41.54m2 | 築31年 | 高松琴平電鉄志度線 春日川駅 徒歩27分 香川県高松市屋島西町 | 詳細を見る | |
一戸建て 高松琴平電鉄長尾線 木太東口駅 徒歩4分 築54年(4K) | |||||||
![]() | 3.8万円 なし | 11.4万円 なし | 4K 66.25m2 | 築54年 | 高松琴平電鉄長尾線 木太東口駅 徒歩4分 香川県高松市木太町 | 詳細を見る | |
アパート カーサセトウチ(2DK/2階) | |||||||
![]() | 3.8万円 なし | なし 3.8万円 | 2DK 39.75m2 | 築36年 | 高松琴平電鉄志度線 古高松駅 徒歩6分 JR高徳線 古高松南駅 徒歩10分 高松琴平電鉄志度線 八栗駅 徒歩10分 香川県高松市高松町 | 詳細を見る | |
アパート リッチモンド潤A・B(1K/1階) | |||||||
![]() | 2.8万円 なし | なし なし | 1K 18m2 | 築36年 | JR高徳線 木太町駅 徒歩9分 高松琴平電鉄志度線 春日川駅 徒歩11分 高松琴平電鉄志度線 沖松島駅 徒歩22分 香川県高松市木太町 | 詳細を見る | |




/105x80-f1-q70-wp1)
/105x80-f1-q70-wp1)
/105x80-f1-q70-wp1)
/105x80-f1-q70-wp1)

