賃貸マンション
京都市烏丸線 烏丸御池駅 徒歩3分 10階建 築23年の賃貸物件情報(1K/10階)
| 家賃 | 管理費等 | 敷金 | 礼金 | 間取り | 専有面積 |
|---|---|---|---|---|---|
| 8.1万円 | 8,000円 | 8.1万円 | 20万円 | 1K | 43.77m2 |
入居決定でお祝い金最大100,000円
Point
正直、駅近いです 近所にオシャレな喫茶店満載〜、ご自身の穴場スポットを探索。
提供:株式会社 京都ライフ 河原町四条店(賃貸スモッカ経由)

詳細情報 京都市烏丸線 烏丸御池駅 徒歩3分 10階建 築23年
物件紹介
京都市烏丸線烏丸御池駅から徒歩3分にあり、駅近で通勤通学に便利なマンションです。
このお部屋は2階以上に位置しているので通行人や周囲の住人からの視線が気になりにくく、建物のエントランスはオートロックがついているので防犯性が高くなっています。
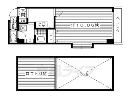
フローリングのお部屋なのでお掃除もラクラク。室内には多目的に利用できる人気のロフトもあり、お部屋のアレンジも自在です。バス・トイレ別の仕様で、のんびりお風呂タイムも楽しめます。また、浴室乾燥機を使えば、雨の日でもお洗濯は問題ありません。
通信設備面では、インターネット接続が可能です。また、BSアンテナもありますので、おうち時間も充実するでしょう(別途工事、契約料が必要な場合あり)。
建物にはエレベーターがついているので、重い荷物があっても安心。
このお部屋は2階以上に位置しているので通行人や周囲の住人からの視線が気になりにくく、建物のエントランスはオートロックがついているので防犯性が高くなっています。
フローリングのお部屋なのでお掃除もラクラク。室内には多目的に利用できる人気のロフトもあり、お部屋のアレンジも自在です。バス・トイレ別の仕様で、のんびりお風呂タイムも楽しめます。また、浴室乾燥機を使えば、雨の日でもお洗濯は問題ありません。
通信設備面では、インターネット接続が可能です。また、BSアンテナもありますので、おうち時間も充実するでしょう(別途工事、契約料が必要な場合あり)。
建物にはエレベーターがついているので、重い荷物があっても安心。
お金・契約の情報
※「-」と表示されているものは、実際は料金が発生するものもございます。詳細はお問い合わせください。
| 家賃 | 8.1万円 | 管理費・共益費 | 8,000円 |
|---|---|---|---|
| 敷金 | 8.1万円 | 礼金 | 20万円 |
| 入居決定でお祝い金最大100,000円 | |||
| 保証金 | - | 償却・敷引 | - |
| 住宅保険料 | 住宅保険料あり | 更新料 | - |
| 契約形態 | - | 契約期間 | 2年 |
| 入居・引渡期間 | 2026年03月中旬 | 現況 | 賃貸中 |
| 契約備考 | 地下鉄烏丸御池駅まですぐの1Kマンションです(徒歩3分)。阪急、地下鉄のダブルアクセス。嬉しい3点セパレートなど充実の設備。オートロックでセキュリティも安心です。スーパー、ドラッグストアなど近くにあって便利ですよ。光ファイバー対応しています。 更新料:1ヶ月 保証会社:利用必須 初回:月額賃料等の40%、更新時:1万円/1年 その他設備/条件:最上階の物件、独立洗面台 | ||
部屋の情報
| 間取り | 1K | 専有面積 | 43.77m2 |
|---|---|---|---|
| 間取り詳細 | 洋室(10.9帖)、K(3帖)、その他(6帖) | ||
| 所在階 / 向き | 10階 / 東 | バルコニー面積 | - |
| 水道 / ガス | - | ||
| 設備 | バス・トイレ別、2階以上、オートロック、浴室乾燥機、インターネット対応、エアコン、エレベーター、温水洗浄便座、バルコニー、フローリング、ロフトあり、オール電化、コンロ:IH、BSアンテナ、洗濯機:室内 | ||
| 当社物件ID | 160536818 | ||
建物の情報
| 建物名 | 京都市烏丸線 烏丸御池駅 徒歩3分 10階建 築23年 | ||
|---|---|---|---|
| 所在地 | 京都府京都市中京区役行者町 | ||
| 交通 | 京都市烏丸線 烏丸御池駅 徒歩3分 京都市烏丸線 四条駅(京都市営) 徒歩7分 | ||
| 階数 | 10階建 | 総戸数 | - |
| 築年月 | 2004年02月 / 築23年 | エレベーター | あり |
| 駐車場 | - | バイク置き場 | - |
| 駐輪場 | あり | 管理人/管理会社 | - |
| 建物種別 | マンション | 建物構造 | RC(鉄筋コンクリート) |
この部屋の取扱い不動産会社
| 会社名 | 株式会社 京都ライフ 河原町四条店(賃貸スモッカ経由) | ||
|---|---|---|---|
| 所在地 | 京都市中京区河原町通三条下る三丁目奈良屋町291-2 Wise core BLD.1階 | 交通 | - |
| 営業時間 | - | 定休日 | - |
| 免許番号 | 京都府知事(11)第6353号 | 取引態様 | 仲介 |
| 不動産会社管理番号 | kyotolife_13341-10-C-26 | 当社管理番号 | 463 |
| 所属団体 | 京都府宅地建物取引業協会\n公益社団法人近畿地区不動産公正取引協議会 | ||
| 公正取引協議会 | 全国宅地建物取引業保証協会 | ||
| 取扱い物件情報 | 物件詳細へ | ||
※各種情報と現状に差異がある場合は、現状優先となります。問い合わせをすることで、より詳しい条件、情報を確認する事ができます。
提供:株式会社 京都ライフ 河原町四条店(賃貸スモッカ経由)
この物件が気になったら掲載期限まであと6日
京都市烏丸線 烏丸御池駅 徒歩3分 10階建 築23年に条件(家賃・エリア)が近い物件一覧
| 写真 | 家賃 管理費等 | 敷金 礼金 | 間取り 専有面積 | 築年数 | 最寄り駅 所在地 | キープ | 詳細 |
|---|---|---|---|---|---|---|---|
マンション 京都市烏丸線 四条駅(京都市営) 徒歩3分 築16年(1DK/4階) | |||||||
![]() | 8.5万円 1万円 | 5万円 20万円 | 1DK 34.93m2 | 築16年 | 京都市烏丸線 四条駅(京都市営) 徒歩3分 京都市烏丸線 烏丸御池駅 徒歩14分 京都府京都市下京区神明町 | 詳細を見る | |
アパート レオネクスト園部木崎町(1K/2階) | |||||||
![]() | 6.2万円 7,000円 | なし 6.2万円 | 1K 30.84m2 | 築16年 | JR山陰本線 園部駅 徒歩19分 JR山陰本線 吉富駅(京都) 徒歩38分 JR山陰本線 船岡駅(京都) 徒歩42分 京都府南丹市園部町木崎町薮中 | 詳細を見る | |
マンション 京都市東西線 六地蔵駅(京都市営) 徒歩3分 築1年(1LDK/2階) | |||||||
![]() | 7.7万円 5,000円 | なし 11.55万円 | 1LDK 29.89m2 | 築1年 | 京都市東西線 六地蔵駅(京都市営) 徒歩3分 奈良線 六地蔵駅(JR) 徒歩4分 京都府宇治市六地蔵柿ノ木町 | 詳細を見る | |
マンション 山陰本線 二条駅 徒歩5分 築22年(1K/4階) | |||||||
![]() | 5.6万円 2,000円 | 5.6万円 なし | 1K 24.9m2 | 築22年 | 山陰本線 二条駅 徒歩5分 京都市東西線 西大路御池駅 徒歩19分 京都府京都市中京区聚楽廻南町 | 詳細を見る | |
アパート 京阪電気鉄道京阪線 石清水八幡宮駅 徒歩29分 築19年(1K/1階) | |||||||
![]() | 6万円 7,000円 | なし 6万円 | 1K 19.87m2 | 築19年 | 京阪電気鉄道京阪線 石清水八幡宮駅 徒歩29分 京阪電気鉄道京阪線 橋本駅(京都) 徒歩40分 京都府八幡市八幡軸 | 詳細を見る | |
マンション 近鉄京都線 小倉駅(京都) 徒歩5分 築20年(1K/1階) | |||||||
![]() | 5.6万円 3,000円 | 5.6万円 5.6万円 | 1K 29.6m2 | 築20年 | 近鉄京都線 小倉駅(京都) 徒歩5分 近鉄京都線 伊勢田駅 徒歩17分 京都府宇治市小倉町天王 | 詳細を見る | |
マンション 阪急電鉄京都線 長岡天神駅 徒歩5分 築29年(3DK/2階) | |||||||
![]() | 9.5万円 4,000円 | 10万円 10万円 | 3DK 55.05m2 | 築29年 | 阪急電鉄京都線 長岡天神駅 徒歩5分 東海道本線 長岡京駅 徒歩7分 京都府長岡京市開田4丁目 | 詳細を見る | |








