賃貸アパート
プティハウス中目黒の賃貸物件情報(4LDK/2階)
| 家賃 | 管理費等 | 敷金 | 礼金 | 間取り | 専有面積 |
|---|---|---|---|---|---|
| 48.6万円 | なし | 48.6万円 | 48.6万円 | 4LDK | 101.85m2 |
入居決定でお祝い金最大100,000円
- 保証金
- -
- 償却・敷引
- -
- 築年数
- 築36年
- 所在階
- 2階
- 向き
- -
Point
お探しの方には嬉しい事務所利用可。広々とした延床面積101.85平米の居室空間
提供:ROOMPIA(株)アンビション・エージェンシー中目黒店(SUUMO経由)

詳細情報 プティハウス中目黒
物件紹介
プティハウス中目黒は東京メトロ日比谷線中目黒駅から徒歩6分にあり、駅近で通勤通学に便利なアパートです。
このお部屋は2階以上に位置しているので、通行人や周囲の住人からの視線が気になりにくく、防犯面でも安心。インターホンにはTVモニタもついているため、相手の顔を確認してから来客対応することができます。
こちらは楽器相談が可能な物件。楽器演奏をお考えの方はぜひ相談してみてください。人気の角部屋で周囲の居住者の生活音も気になりにくく、また、フローリングのお部屋なのでお掃除もラクラク。キッチンはシステムキッチン仕様になっていますので、お料理好きの方にもぴったり。バス・トイレは別なので、のんびりお風呂タイムも楽しめるでしょう。また、雨の日でも浴室乾燥機を使えば、お洗濯も問題ありません。
このお部屋は2階以上に位置しているので、通行人や周囲の住人からの視線が気になりにくく、防犯面でも安心。インターホンにはTVモニタもついているため、相手の顔を確認してから来客対応することができます。
こちらは楽器相談が可能な物件。楽器演奏をお考えの方はぜひ相談してみてください。人気の角部屋で周囲の居住者の生活音も気になりにくく、また、フローリングのお部屋なのでお掃除もラクラク。キッチンはシステムキッチン仕様になっていますので、お料理好きの方にもぴったり。バス・トイレは別なので、のんびりお風呂タイムも楽しめるでしょう。また、雨の日でも浴室乾燥機を使えば、お洗濯も問題ありません。
お金・契約の情報
※「-」と表示されているものは、実際は料金が発生するものもございます。詳細はお問い合わせください。
| 家賃 | 48.6万円 | 管理費・共益費 | なし |
|---|---|---|---|
| 敷金 | 48.6万円 | 礼金 | 48.6万円 |
| 入居決定でお祝い金最大100,000円 | |||
| 保証金 | - | 償却・敷引 | - |
| 住宅保険料 | - | 更新料 | - |
| 契約形態 | 定期借家 | 契約期間 | 2年 |
| 入居・引渡期間 | 相談 | 現況 | - |
| 入居可能条件 | 事務所可 | ||
| 契約備考 | 内装フルリフォーム・2階3階定期借家契約・再契約可 4LDK 事務所利用相談 定期借家2年 損保【要】 バストイレ別、エアコン、ガスコンロ対応、室内洗濯置、シューズボックス、システムキッチン、3口以上コンロ、2沿線利用可、エアコン全室、事務所相談、トイレ2ヶ所、都市ガス | ||
部屋の情報
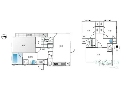
| 間取り | 4LDK | 専有面積 | 101.85m2 |
|---|---|---|---|
| 所在階 / 向き | 2階 / - | バルコニー面積 | - |
| 水道 / ガス | - | ||
| 設備 | バス・トイレ別、2階以上、システムキッチン、エアコン、2口コンロ、コンロ:ガス、洗濯機:室内 | ||
| 当社物件ID | 160503468 | ||
建物の情報
| 建物名 | プティハウス中目黒 | ||
|---|---|---|---|
| 所在地 | 東京都目黒区上目黒 | ||
| 交通 | 東急東横線 中目黒駅 徒歩6分 東京メトロ日比谷線 中目黒駅 徒歩6分 東急東横線 祐天寺駅 徒歩10分 | ||
| 階数 | 3階建 | 総戸数 | - |
| 築年月 | 1990年04月 / 築36年 | エレベーター | - |
| 駐車場 | なし | バイク置き場 | - |
| 駐輪場 | - | 管理人/管理会社 | - |
| 周辺環境 | その他 中目黒GT(ショッピングセンター)まで549m その他 カルディコーヒーファーム中目黒店(スーパー)まで449m その他 ナチュラルローソン祐天寺一丁目店(コンビニ)まで242m その他 ウエルシア上目黒2丁目店(ドラッグストア)まで224m | ||
| 建物種別 | アパート | 建物構造 | 木造 |
この部屋の取扱い不動産会社
| 会社名 | (株)高木商事(SUUMO経由) | ||
|---|---|---|---|
| 所在地 | 東京都目黒区上目黒3-3-4 | 交通 | - |
| 営業時間 | - | 定休日 | - |
| 免許番号 | 東京都知事488 | 取引態様 | 仲介 |
| 不動産会社管理番号 | 100491926246 | 当社管理番号 | 89 |
| 所属団体 | (公社)東京都宅地建物取引業協会会員 | ||
| 公正取引協議会 | (公社)首都圏不動産公正取引協議会加盟 | ||
| 取扱い物件情報 | 物件詳細へ | ||
※各種情報と現状に差異がある場合は、現状優先となります。問い合わせをすることで、より詳しい条件、情報を確認する事ができます。
提供:(株)高木商事(SUUMO経由)
この物件が気になったら掲載期限まであと11日
プティハウス中目黒に条件(家賃・エリア)が近い物件一覧
| 写真 | 家賃 管理費等 | 敷金 礼金 | 間取り 専有面積 | 築年数 | 最寄り駅 所在地 | キープ | 詳細 |
|---|---|---|---|---|---|---|---|
マンション THE CONOE(2DK/3階) | |||||||
![]() | 35万円 1万円 | 35万円 35万円 | 2DK 51.99m2 | 築11年 | 東急東横線 代官山駅 徒歩2分 JR山手線 恵比寿駅 徒歩10分 東京メトロ日比谷線 恵比寿駅 徒歩10分 東京都渋谷区恵比寿西 | 詳細を見る | |
マンション AIFLAT渋谷西原(2LDK/3階) | |||||||
![]() | 33.8万円 2万円 | 33.8万円 なし | 2LDK 54m2 | 築1年 | 京王新線 幡ケ谷駅 徒歩2分 京王線 笹塚駅 徒歩12分 小田急線 代々木上原駅 徒歩13分 東京都渋谷区西原 | 詳細を見る | |
マンション シティコート目黒(2LDK/2階) | |||||||
![]() | 30万円 1万円 | 30万円 30万円 | 2LDK 54.65m2 | 築24年 | JR山手線 目黒駅 徒歩2分 東京メトロ南北線 白金台駅 徒歩13分 東急目黒線 不動前駅 徒歩19分 東京都品川区上大崎 | 詳細を見る | |
マンション ザ・パークメゾン代々木上原(2LDK/1階) | |||||||
![]() | 29.5万円 5,000円 | 29.5万円 29.5万円 | 2LDK 64.38m2 | 築9年 | 東京メトロ千代田線 代々木上原駅 徒歩2分 小田急線 東北沢駅 徒歩13分 東京メトロ千代田線 代々木公園駅 徒歩15分 東京都渋谷区上原 | 詳細を見る | |
マンション スタイリオ桜新町(2LDK/1階) | |||||||
![]() | 30万円 1.5万円 | 30万円 なし | 2LDK 52.52m2 | 築1年 | 東急田園都市線 桜新町駅 徒歩6分 東急田園都市線 駒沢大学駅 徒歩17分 東急世田谷線 世田谷駅 徒歩23分 東京都世田谷区新町 | 詳細を見る | |
マンション クロスエアタワー(2LDK/15階) | |||||||
![]() | 38万円 2万円 | 38万円 38万円 | 2LDK 61.68m2 | 築14年 | 東急田園都市線 池尻大橋駅 徒歩6分 東京メトロ日比谷線 中目黒駅 徒歩16分 東急東横線 中目黒駅 徒歩16分 東京都目黒区大橋 | 詳細を見る | |
マンション パークアクシス幡ヶ谷(2LDK/8階) | |||||||
![]() | 31.7万円 1.2万円 | 31.7万円 31.7万円 | 2LDK 57.17m2 | 築18年 | 京王電鉄京王線 幡ケ谷駅 徒歩2分 東京都渋谷区幡ヶ谷1丁目 | 詳細を見る | |
マンション 東急ドエル・アルス大井1丁目(3LDK/13階) | |||||||
![]() | 32万円 なし | 64万円 32万円 | 3LDK 73.42m2 | 築28年 | JR京浜東北線 大井町駅 徒歩4分 東急大井町線 大井町駅 徒歩5分 東京都品川区大井 | 詳細を見る | |









