賃貸アパート
プエンテ福栄の賃貸物件情報(1LDK/1階)
| 家賃 | 管理費等 | 敷金 | 礼金 | 間取り | 専有面積 |
|---|---|---|---|---|---|
| 10万円 | なし | 10万円 | 10万円 | 1LDK | 37.74m2 |
入居決定でお祝い金最大100,000円
- 保証金
- -
- 償却・敷引
- -
- 築年数
- 築7年
- 所在階
- 1階
- 向き
- 南東
Point
設備が充実してます。対面式キッチン、独立洗面台、暖房換気乾燥機、システムキッチン、LEDシーリングライト、エアコン、温水便座等が設備で付いています☆彡駅前に24時間営業のスーパーあり。
提供:京成不動産(株)南行徳センター(SUUMO経由)

詳細情報 プエンテ福栄
物件紹介
プエンテ福栄は東京メトロ東西線南行徳駅から徒歩9分にあり、駅近で通勤通学に便利なアパートです。
このお部屋のインターホンにはTVモニタがついているため、相手の顔を確認してから来客対応することができます。
人気の南向きのお部屋。角部屋でもあるため、周囲の居住者の生活音も気になりにくい場所です。キッチンはシステムキッチン仕様になっていますので、お料理好きの方にもぴったり。バス・トイレは別なので、のんびりお風呂タイムも楽しめるでしょう。また、雨の日でも浴室乾燥機を使えば、お洗濯も問題ありません。
このお部屋のインターホンにはTVモニタがついているため、相手の顔を確認してから来客対応することができます。
人気の南向きのお部屋。角部屋でもあるため、周囲の居住者の生活音も気になりにくい場所です。キッチンはシステムキッチン仕様になっていますので、お料理好きの方にもぴったり。バス・トイレは別なので、のんびりお風呂タイムも楽しめるでしょう。また、雨の日でも浴室乾燥機を使えば、お洗濯も問題ありません。
お金・契約の情報
※「-」と表示されているものは、実際は料金が発生するものもございます。詳細はお問い合わせください。
| 家賃 | 10万円 | 管理費・共益費 | なし |
|---|---|---|---|
| 敷金 | 10万円 | 礼金 | 10万円 |
| 入居決定でお祝い金最大100,000円 | |||
| 保証金 | - | 償却・敷引 | - |
| 住宅保険料 | - | 更新料 | - |
| 保証会社利用 | 必須 | 保証会社名 | 日本セーフティー |
| 保証会社費用 | - | 保証会社備考 | 日本セーフティー利用必 初回保証料:月額賃料総額の50% 月次保証料:800円 口座振替手数料440円税込/月 |
| 契約形態 | - | 契約期間 | - |
| 入居・引渡期間 | - | 現況 | - |
| 契約備考 | 敷地内(室内含む)禁煙。退去時の室内清掃費63030円税込は借主負担とし、敷金より精算いたします。駐車スペースは軽自動車のみ駐車可能。 合計3.3万円(内訳:鍵交換代(税込)3.3万円) 1LDK ルームシェア相談 損保【2.15万円2年】 バストイレ別、エアコン、クロゼット、TVインターホン、浴室乾燥機、室内洗濯置、シューズボックス、システムキッチン、追焚機能浴室、角住戸、温水洗浄便座、脱衣所、洗面所独立、洗面化粧台、2面採光、3口以上コンロ、保証人不要、二人入居相談、防犯シャッター、駅まで平坦、内装リフォーム済、床下収納、ダブルロックキー、平坦地、ルームシェア相談、駅徒歩10分以内、東南向き、都市ガス、通風良好 入居日:'26年4月下旬 | ||
部屋の情報
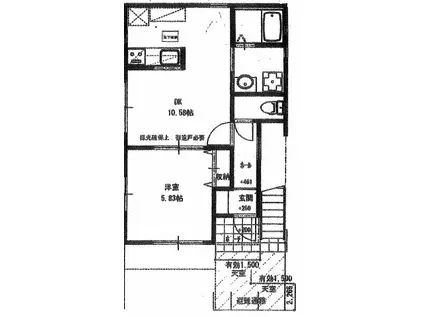
| 間取り | 1LDK | 専有面積 | 37.74m2 |
|---|---|---|---|
| 所在階 / 向き | 1階 / 南東 | バルコニー面積 | - |
| 水道 / ガス | - | ||
| 設備 | バス・トイレ別、テレビドアホン、浴室乾燥機、追い焚き、システムキッチン、エアコン、温水洗浄便座、南向き、角部屋、床下収納、洗髪洗面化粧台、2口コンロ、洗濯機:室内 | ||
| 当社物件ID | 160436965 | ||
建物の情報
| 建物名 | プエンテ福栄 | ||
|---|---|---|---|
| 所在地 | 千葉県市川市福栄 | ||
| 交通 | 東京メトロ東西線 南行徳駅 徒歩9分 東京メトロ東西線 行徳駅 徒歩15分 東京メトロ東西線 浦安駅(千葉) 徒歩26分 | ||
| 階数 | 2階建 | 総戸数 | 2戸 |
| 築年月 | 2020年02月 / 築7年 | エレベーター | - |
| 駐車場 | 空有 付無料 | バイク置き場 | - |
| 駐輪場 | - | 管理人/管理会社 | - |
| 周辺環境 | その他 ワイズマート南行徳店(スーパー)まで503m その他 ナカムラヤダイニング南行徳店(スーパー)まで484m その他 ローソン市川福栄三丁目店(コンビニ)まで392m その他 セブンイレブン市川行徳店(コンビニ)まで439m その他 ウェルパーク南行徳えんぴつ公園店(ドラッグストア)まで597m その他 南行徳駅前郵便局(郵便局)まで781m | ||
| 建物種別 | アパート | 建物構造 | 木造 |
この部屋の取扱い不動産会社
| 会社名 | 京成不動産(株)南行徳センター(SUUMO経由) | ||
|---|---|---|---|
| 所在地 | 千葉県市川市相之川4-6-6 Royal bliss南行徳駅前1階 | 交通 | - |
| 営業時間 | 10:00~18:30 | 定休日 | 火・水曜 |
| 免許番号 | 国土交通大臣5540 | 取引態様 | 仲介 |
| 不動産会社管理番号 | 100489445146 | 当社管理番号 | 89 |
| 所属団体 | (一社)不動産流通経営協会会員 | ||
| 公正取引協議会 | (公社)首都圏不動産公正取引協議会加盟 | ||
| 取扱い物件情報 | 物件詳細へ | ||
※各種情報と現状に差異がある場合は、現状優先となります。問い合わせをすることで、より詳しい条件、情報を確認する事ができます。
提供:京成不動産(株)南行徳センター(SUUMO経由)
この物件が気になったら掲載期限まであと11日
プエンテ福栄に条件(家賃・エリア)が近い物件一覧
| 写真 | 家賃 管理費等 | 敷金 礼金 | 間取り 専有面積 | 築年数 | 最寄り駅 所在地 | キープ | 詳細 |
|---|---|---|---|---|---|---|---|
マンション 津田沼スカイハイツ(4LDK/5階) | |||||||
![]() | 11万円 1万円 | 11万円 11万円 | 4LDK 76.8m2 | 築44年 | JR総武線 津田沼駅 徒歩15分 京成松戸線 前原駅 徒歩15分 京成松戸線 新津田沼駅 徒歩19分 千葉県船橋市前原西 | 詳細を見る | |
アパート LIKES飯山満町A棟(1LDK/3階) | |||||||
![]() | 8.3万円 4,000円 | なし なし | 1LDK 32.85m2 | 築1年 | 東葉高速鉄道 飯山満駅 徒歩17分 京成松戸線 前原駅 徒歩17分 JR総武線 東船橋駅 徒歩26分 千葉県船橋市飯山満町 | 詳細を見る | |
アパート ハピネスロッサ(2LDK/1階) | |||||||
![]() | 8.2万円 3,000円 | 8.2万円 なし | 2LDK 49.27m2 | 築27年 | JR総武線 東船橋駅 徒歩10分 京成本線 大神宮下駅 徒歩28分 千葉県船橋市駿河台 | 詳細を見る | |
マンション ディームス浦安(1DK/2階) | |||||||
![]() | 11.6万円 8,000円 | 11.6万円 11.6万円 | 1DK 24.73m2 | 築5年 | 東京地下鉄東西線 浦安駅(千葉) 徒歩6分 東京地下鉄東西線 南行徳駅 徒歩20分 千葉県浦安市当代島2丁目 | 詳細を見る | |
マンション リアライズ新松戸(3LDK/3階) | |||||||
![]() | 9.2万円 3,000円 | なし 9.2万円 | 3LDK 62.4m2 | 築38年 | 流鉄流山線 幸谷駅 徒歩6分 JR武蔵野線 新松戸駅 徒歩7分 JR常磐線 新松戸駅 徒歩7分 千葉県松戸市新松戸北 | 詳細を見る | |
マンション ハイネス菅谷(1DK/2階) | |||||||
![]() | 6.8万円 なし | なし なし | 1DK 28m2 | 築43年 | JR総武線快速 市川駅 徒歩7分 京成本線 市川真間駅 徒歩9分 JR総武線 本八幡駅 徒歩18分 千葉県市川市新田 | 詳細を見る | |
マンション アンビックス・プリア(1K/2階) | |||||||
![]() | 9万円 6,500円 | なし なし | 1K 28.35m2 | 築21年 | 京成本線 京成西船駅 徒歩5分 JR総武線 西船橋駅 徒歩9分 東京メトロ東西線 西船橋駅 徒歩9分 千葉県船橋市西船 | 詳細を見る | |
マンション ジュモー京成船橋(1K/3階) | |||||||
![]() | 8万円 1.2万円 | 8万円 16万円 | 1K 26.55m2 | 築13年 | 京成本線 京成船橋駅 徒歩1分 JR総武線 船橋駅 徒歩3分 東武野田線 船橋駅 徒歩3分 千葉県船橋市本町 | 詳細を見る | |









