賃貸マンション
京都市東西線 太秦天神川駅 徒歩8分 6階建 築42年の賃貸物件情報(2LDK/5階)
| 家賃 | 管理費等 | 敷金 | 礼金 | 間取り | 専有面積 |
|---|---|---|---|---|---|
| 6.8万円 | 5,000円 | なし | なし | 2LDK | 47.85m2 |
入居決定でお祝い金最大100,000円
Point
地下鉄駅近く 地下鉄東西線西大路御池駅まで徒歩圏内 近隣にはスーパー等有り
提供:株式会社 京都ライフ 立命館大学前店(賃貸スモッカ経由)

詳細情報 京都市東西線 太秦天神川駅 徒歩8分 6階建 築42年
物件紹介
京都市東西線太秦天神川駅から徒歩8分にあり、駅近で通勤通学に便利なマンションです。
このお部屋は2階以上に位置しているので、通行人や周囲の住人からの視線が気になりにくく、防犯面でも安心です。
バス・トイレ別の仕様で、のんびりお風呂タイムも楽しめます。
通信設備面ではBSアンテナがありますので、おうち時間も充実するでしょう(別途工事、契約料が必要な場合あり)。
建物にはエレベーターがついているので、重い荷物があっても安心。
このお部屋は2階以上に位置しているので、通行人や周囲の住人からの視線が気になりにくく、防犯面でも安心です。
バス・トイレ別の仕様で、のんびりお風呂タイムも楽しめます。
通信設備面ではBSアンテナがありますので、おうち時間も充実するでしょう(別途工事、契約料が必要な場合あり)。
建物にはエレベーターがついているので、重い荷物があっても安心。
お金・契約の情報
※「-」と表示されているものは、実際は料金が発生するものもございます。詳細はお問い合わせください。
| 家賃 | 6.8万円 | 管理費・共益費 | 5,000円 |
|---|---|---|---|
| 敷金 | なし | 礼金 | なし |
| 入居決定でお祝い金最大100,000円 | |||
| 保証金 | - | 償却・敷引 | - |
| 住宅保険料 | 住宅保険料あり | 更新料 | - |
| 契約形態 | - | 契約期間 | 2年 |
| 入居・引渡期間 | 2026年03月中旬 | 現況 | 賃貸中 |
| 契約備考 | 地下鉄東西線西大路御池駅まで徒歩圏内 近隣にはスーパー等が有りお買い物に便利ですよ 更新料:1ヶ月 その他設備/条件:分譲賃貸 | ||
部屋の情報
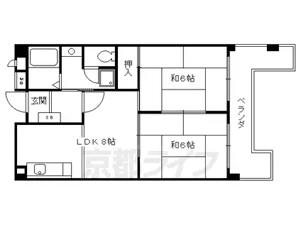
| 間取り | 2LDK | 専有面積 | 47.85m2 |
|---|---|---|---|
| 間取り詳細 | 和室(6帖)、和室(6帖)、LDK(8帖) | ||
| 所在階 / 向き | 5階 / 東 | バルコニー面積 | - |
| 水道 / ガス | ガス【都市】 | ||
| 設備 | バス・トイレ別、2階以上、エアコン、エレベーター、温水洗浄便座、バルコニー、BSアンテナ、洗濯機:室内 | ||
| 当社物件ID | 160164424 | ||
建物の情報
| 建物名 | 京都市東西線 太秦天神川駅 徒歩8分 6階建 築42年 | ||
|---|---|---|---|
| 所在地 | 京都府京都市右京区太秦門田町 | ||
| 交通 | 京都市東西線 太秦天神川駅 徒歩8分 山陰本線 花園駅(京都) 徒歩20分 | ||
| 階数 | 6階建 | 総戸数 | - |
| 築年月 | 1984年10月 / 築42年 | エレベーター | あり |
| 駐車場 | - | バイク置き場 | - |
| 駐輪場 | あり | 管理人/管理会社 | - |
| 建物種別 | マンション | 建物構造 | RC(鉄筋コンクリート) |
この部屋の取扱い不動産会社
| 会社名 | 株式会社 京都ライフ 立命館大学前店(賃貸スモッカ経由) | ||
|---|---|---|---|
| 所在地 | 京都市北区小松原北町26-5 | 交通 | - |
| 営業時間 | - | 定休日 | - |
| 免許番号 | 京都府知事(11)第6353号 | 取引態様 | 仲介 |
| 不動産会社管理番号 | kyotolife_32268-509-14 | 当社管理番号 | 463 |
| 所属団体 | 京都府宅地建物取引業協会\n公益社団法人近畿地区不動産公正取引協議会 | ||
| 公正取引協議会 | 全国宅地建物取引業保証協会 | ||
| 取扱い物件情報 | 物件詳細へ | ||
※各種情報と現状に差異がある場合は、現状優先となります。問い合わせをすることで、より詳しい条件、情報を確認する事ができます。
提供:株式会社 京都ライフ 立命館大学前店(賃貸スモッカ経由)
この物件が気になったら掲載期限まであと5日
京都市東西線 太秦天神川駅 徒歩8分 6階建 築42年に条件(家賃・エリア)が近い物件一覧
| 写真 | 家賃 管理費等 | 敷金 礼金 | 間取り 専有面積 | 築年数 | 最寄り駅 所在地 | キープ | 詳細 |
|---|---|---|---|---|---|---|---|
マンション 阪急電鉄京都線 西京極駅 徒歩17分 築31年(1K/2階) | |||||||
![]() | 4.3万円 6,000円 | なし 5万円 | 1K 22.57m2 | 築31年 | 阪急電鉄京都線 西京極駅 徒歩17分 京都市東西線 太秦天神川駅 徒歩20分 京都府京都市右京区梅津石灘町 | 詳細を見る | |
一戸建て 山陰本線 太秦駅(JR) 徒歩13分 築49年(1DK) | |||||||
![]() | 5万円 なし | 5万円 5万円 | 1DK 38m2 | 築49年 | 山陰本線 太秦駅(JR) 徒歩13分 京都市東西線 太秦天神川駅 徒歩24分 京都府京都市右京区太秦御所ノ内町 | 詳細を見る | |
マンション 京都市東西線 太秦天神川駅 徒歩2分 築33年(1DK/6階) | |||||||
![]() | 6.3万円 5,000円 | なし なし | 1DK 30.36m2 | 築33年 | 京都市東西線 太秦天神川駅 徒歩2分 山陰本線 花園駅(京都) 徒歩15分 京都府京都市右京区太秦木ノ下町 | 詳細を見る | |
マンション 阪急電鉄京都線 西院駅(阪急) 徒歩4分 築55年(1LDK/10階) | |||||||
![]() | 9.95万円 9,000円 | なし 9.95万円 | 1LDK 42.98m2 | 築55年 | 阪急電鉄京都線 西院駅(阪急) 徒歩4分 京都市東西線 西大路御池駅 徒歩13分 京都府京都市右京区西院三蔵町 | 詳細を見る | |
アパート 奈良線 木幡駅(JR) 徒歩11分 築9年(1LDK/1階) | |||||||
![]() | 8.5万円 8,000円 | なし 15万円 | 1LDK 44.45m2 | 築9年 | 奈良線 木幡駅(JR) 徒歩11分 京阪電気鉄道宇治線 木幡駅(京阪) 徒歩14分 京都府宇治市木幡 | 詳細を見る | |
マンション 阪急電鉄京都線 東向日駅 徒歩9分 築35年(1K/2階) | |||||||
![]() | 4.9万円 3,000円 | なし 4.9万円 | 1K 22.94m2 | 築35年 | 阪急電鉄京都線 東向日駅 徒歩9分 東海道本線 向日町駅 徒歩14分 京都府向日市寺戸町西野辺 | 詳細を見る | |







