賃貸マンション
チョコレートヒルズ古河の賃貸物件情報(1LDK/2階)
| 家賃 | 管理費等 | 敷金 | 礼金 | 間取り | 専有面積 |
|---|---|---|---|---|---|
| 4.3万円 | 5,000円 | なし | なし | 1LDK | 47.06m2 |
入居決定でお祝い金最大100,000円
Point
まずはお問い合わせ!
不動産会社は街のプロ、あなたに合った物件がきっと見つかります。
提供:グローバル・ソリューションズ(株)(SUUMO経由)

詳細情報 チョコレートヒルズ古河
物件紹介
チョコレートヒルズ古河はJR宇都宮線古河駅から徒歩10分にあり、駅近で通勤通学に便利なマンションです。
このお部屋は2階以上に位置しているので、通行人や周囲の住人からの視線が気になりにくく、防犯面でも安心です。
人気の角部屋で周囲の居住者の生活音も気になりにくく、また、フローリングのお部屋なのでお掃除もラクラク。キッチンはシステムキッチン仕様になっていますので、お料理好きの方にもぴったり。また、バス・トイレは別で、のんびりお風呂タイムも楽しめるでしょう。
建物にはエレベーターがついているので、重い荷物があっても安心。共用部には宅配ボックスが設定されているので、不在の時にも荷物を受け取ることができます。
このお部屋は2階以上に位置しているので、通行人や周囲の住人からの視線が気になりにくく、防犯面でも安心です。
人気の角部屋で周囲の居住者の生活音も気になりにくく、また、フローリングのお部屋なのでお掃除もラクラク。キッチンはシステムキッチン仕様になっていますので、お料理好きの方にもぴったり。また、バス・トイレは別で、のんびりお風呂タイムも楽しめるでしょう。
建物にはエレベーターがついているので、重い荷物があっても安心。共用部には宅配ボックスが設定されているので、不在の時にも荷物を受け取ることができます。
お金・契約の情報
※「-」と表示されているものは、実際は料金が発生するものもございます。詳細はお問い合わせください。
| 家賃 | 4.3万円 | 管理費・共益費 | 5,000円 |
|---|---|---|---|
| 敷金 | なし | 礼金 | なし |
| 入居決定でお祝い金最大100,000円 | |||
| 保証金 | - | 償却・敷引 | - |
| 住宅保険料 | 1円 | 更新料 | - |
| 保証会社利用 | 必須 | 保証会社名 | - |
| 保証会社費用 | - | 保証会社備考 | (大手法人契約除く)オセロ(初回:総賃料の50%/継続保証料:1年毎に1万円)外国籍GTN(初回:総賃料の100%/+敷金1ヵ月/月額1,000円/引落手数料330円) |
| 契約形態 | - | 契約期間 | 2年 |
| 入居・引渡期間 | 即時 | 現況 | - |
| 契約備考 | 月額(ライフサポート24(月) 1320円) 鍵交換費用:19800 その他設備/条件:室内洗濯機置き場、独立洗面台、クローゼット、照明器具付き | ||
部屋の情報
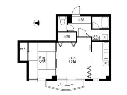
| 間取り | 1LDK | 専有面積 | 47.06m2 |
|---|---|---|---|
| 間取り詳細 | LDK(13帖)、和室(6帖) | ||
| 所在階 / 向き | 2階 / 東 | バルコニー面積 | - |
| 水道 / ガス | ガス【プロパン】 | ||
| 設備 | バス・トイレ別、宅配ボックス、システムキッチン、エアコン、エレベーター、バルコニー、フローリング、シャワー | ||
| 当社物件ID | 149633974 | ||
建物の情報
| 建物名 | チョコレートヒルズ古河 | ||
|---|---|---|---|
| 所在地 | 茨城県古河市古河 | ||
| 交通 | 東北本線 古河駅 徒歩10分 | ||
| 階数 | 4階建 | 総戸数 | - |
| 築年月 | 1991年01月 / 築35年 | エレベーター | あり |
| 駐車場 | ご確認ください | バイク置き場 | - |
| 駐輪場 | あり | 管理人/管理会社 | - |
| 周辺環境 | その他 ドラッグストア その他 公園 その他 銀行 その他 * | ||
| 建物種別 | マンション | 建物構造 | RC(鉄筋コンクリート) |
この部屋の取扱い不動産会社
| 会社名 | ハウスコム埼玉株式会社 久喜店 | ||
|---|---|---|---|
| 所在地 | 埼玉県久喜市2-6YAORIビル1階 | 交通 | - |
| 営業時間 | 10:00~18:00 | 定休日 | - |
| 免許番号 | 埼玉県知事(1)第24888号 | 取引態様 | 仲介 |
| 不動産会社管理番号 | HC4-4165130-204-0168 | 当社管理番号 | 468 |
| 所属団体 | 、 | ||
| 取扱い物件情報 | 物件詳細へ | ||
※各種情報と現状に差異がある場合は、現状優先となります。問い合わせをすることで、より詳しい条件、情報を確認する事ができます。
提供:ハウスコム埼玉株式会社 久喜店
この物件が気になったら掲載期限まであと5日
チョコレートヒルズ古河に条件(家賃・エリア)が近い物件一覧
| 写真 | 家賃 管理費等 | 敷金 礼金 | 間取り 専有面積 | 築年数 | 最寄り駅 所在地 | キープ | 詳細 |
|---|---|---|---|---|---|---|---|
アパート ソワール尾崎(2DK/2階) | |||||||
![]() | 3.8万円 2,000円 | 3.8万円 なし | 2DK 39.6m2 | 築35年 | 茨城県古河市尾崎 | 詳細を見る | |
アパート ミルクパレスA 202(2LDK/2階) | |||||||
![]() | 6.2万円 6,000円 | なし 6.2万円 | 2LDK 61.6m2 | 築20年 | 茨城県坂東市岩井 | 詳細を見る | |
アパート メゾン・ド・ルミナス A(2LDK/2階) | |||||||
![]() | 6.7万円 4,000円 | なし 3.35万円 | 2LDK 67.16m2 | 築15年 | JR宇都宮線 古河駅 徒歩52分 茨城県古河市茶屋新田 | 詳細を見る | |
アパート ツインハイツ松並(2DK/1階) | |||||||
![]() | 4.2万円 なし | 4.2万円 なし | 2DK 46.37m2 | 築28年 | 東北本線 古河駅 徒歩18分 茨城県古河市松並2丁目 | 詳細を見る | |
アパート レオパレスパティオ(1K/1階) | |||||||
![]() | 4.8万円 4,500円 | なし 4.8万円 | 1K 23.18m2 | 築23年 | 東武野田線 川間駅 徒歩150分 関東鉄道常総線 水海道駅 徒歩161分 東武野田線 七光台駅 徒歩170分 茨城県坂東市鵠戸 | 詳細を見る | |
アパート T-アビタシオン(ワンルーム/1階) | |||||||
![]() | 4万円 2,000円 | なし なし | ワンルーム 26.49m2 | 築10年 | 茨城県古河市大山 | 詳細を見る | |
アパート オレンジヒルズA(1K/1階) | |||||||
![]() | 3.6万円 6,000円 | なし 3.6万円 | 1K 28.2m2 | 築21年 | 湘南新宿ライン宇須 野木駅 徒歩53分 茨城県古河市東牛谷 | 詳細を見る | |
アパート 大山ニューライズ Ⅱ(2LDK/2階) | |||||||
![]() | 6.5万円 3,900円 | なし 6.5万円 | 2LDK 59.58m2 | 新築 | 東北本線 栗橋駅 徒歩47分 茨城県古河市大山 | 詳細を見る | |








