賃貸マンション
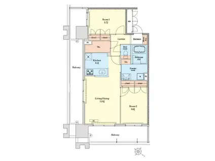
RJRプレシア天神サウスの賃貸物件情報(2LDK/2階)
| 家賃 | 管理費等 | 敷金 | 礼金 | 間取り | 専有面積 |
|---|---|---|---|---|---|
| 21.1万円 | 9,000円 | 21.1万円 | 42.2万円 | 2LDK | 63.48m2 |
入居決定でお祝い金最大100,000円
- 保証金
- -
- 償却・敷引
- -
- 築年数
- 築6年
- 所在階
- 2階
- 向き
- 南東
Point
人気のRJRシリーズが募集中!お気軽にお問い合わせください。
提供:(株)JR九州の仲介(SUUMO経由)

詳細情報 RJRプレシア天神サウス
物件紹介
RJRプレシア天神サウスは地下鉄七隈線渡辺通駅から徒歩3分にあり、駅近で通勤通学に便利なマンションです。
このお部屋は2階以上に位置しているので、通行人や周囲の住人からの視線が気になりにくく、防犯面でも安心。建物のエントランスはオートロックがついており、インターホンにはTVモニタもついているため、相手の顔を確認してから来客対応することができます。
人気の南向きのお部屋。また、フローリングなのでお掃除もラクラク。キッチンはシステムキッチン仕様になっていますので、お料理好きの方にもぴったり。バス・トイレは別なので、のんびりお風呂タイムも楽しめるでしょう。また、雨の日でも浴室乾燥機を使えば、お洗濯も問題ありません。
通信設備面では、インターネットが無料で使えるので、月々の出費を抑えられるのも魅力です(別途工事等が必要な場合あり)。
建物にはエレベーターがついているので、重い荷物があっても安心。共用部には宅配ボックスが設定されているので、不在の時にも荷物を受け取ることができます。
このお部屋は2階以上に位置しているので、通行人や周囲の住人からの視線が気になりにくく、防犯面でも安心。建物のエントランスはオートロックがついており、インターホンにはTVモニタもついているため、相手の顔を確認してから来客対応することができます。
人気の南向きのお部屋。また、フローリングなのでお掃除もラクラク。キッチンはシステムキッチン仕様になっていますので、お料理好きの方にもぴったり。バス・トイレは別なので、のんびりお風呂タイムも楽しめるでしょう。また、雨の日でも浴室乾燥機を使えば、お洗濯も問題ありません。
通信設備面では、インターネットが無料で使えるので、月々の出費を抑えられるのも魅力です(別途工事等が必要な場合あり)。
建物にはエレベーターがついているので、重い荷物があっても安心。共用部には宅配ボックスが設定されているので、不在の時にも荷物を受け取ることができます。
お金・契約の情報
※「-」と表示されているものは、実際は料金が発生するものもございます。詳細はお問い合わせください。
| 家賃 | 21.1万円 | 管理費・共益費 | 9,000円 |
|---|---|---|---|
| 敷金 | 21.1万円 | 礼金 | 42.2万円 |
| 入居決定でお祝い金最大100,000円 | |||
| 保証金 | - | 償却・敷引 | - |
| 住宅保険料 | - | 更新料 | - |
| 保証会社利用 | 必須 | 保証会社名 | - |
| 保証会社費用 | - | 保証会社備考 | 保証会社利用必 月額総額の40% 月額保証料1% |
| 契約形態 | - | 契約期間 | - |
| 入居・引渡期間 | - | 現況 | - |
| 契約備考 | 巡回管理/仲介手数料1.1ヶ月、消毒費用:16,500万円※任意、1年未満の解約で短期解約違約金賃料の一か月分、退去時故意過失は実費請求 鍵交換代:49500円 2LDK 二人入居可 損保【2.4万円2年】 バストイレ別、エアコン、ガスコンロ対応、クロゼット、シャワー付洗面台、TVインターホン、浴室乾燥機、オートロック、室内洗濯置、シューズボックス、システムキッチン、追焚機能浴室、温水洗浄便座、洗面所独立、宅配ボックス、3口以上コンロ、対面式キッチン、防犯カメラ、保証人不要、敷金1ヶ月、全居室フローリング、2面バルコニー、ディンプルキー、駅まで平坦、ネット使用料不要、コインランドリー、エレベーター2基、3駅以上利用可、3沿線以上利用可、駅徒歩5分以内、敷地内ごみ置き場、東南向き、LDK12畳以上、都市ガス、礼金2ヶ月、家賃カード決済可 入居日:'26年2月下旬 | ||
部屋の情報
| 間取り | 2LDK | 専有面積 | 63.48m2 |
|---|---|---|---|
| 所在階 / 向き | 2階 / 南東 | バルコニー面積 | - |
| 水道 / ガス | - | ||
| 設備 | バス・トイレ別、2階以上、オートロック、テレビドアホン、宅配ボックス、浴室乾燥機、追い焚き、インターネット対応、システムキッチン、エアコン、エレベーター、温水洗浄便座、南向き、バルコニー、フローリング、洗髪洗面化粧台、2口コンロ、コンロ:ガス、インターネット使用料無料、洗濯機:室内 | ||
| 当社物件ID | 34983149 | ||
建物の情報
| 建物名 | RJRプレシア天神サウス | ||
|---|---|---|---|
| 所在地 | 福岡県福岡市中央区渡辺通 | ||
| 交通 | 地下鉄七隈線 渡辺通駅 徒歩3分 西鉄天神大牟田線 薬院駅 徒歩6分 地下鉄空港線 天神駅 徒歩13分 | ||
| 階数 | 16階建 | 総戸数 | 202戸 |
| 築年月 | 2020年04月 / 築6年 | エレベーター | あり |
| 駐車場 | なし | バイク置き場 | - |
| 駐輪場 | - | 管理人/管理会社 | - |
| 周辺環境 | その他 BiVi福岡(ショッピングセンター)まで184m その他 天神ロフトビル(ショッピングセンター)まで325m その他 ツルハドラッグ渡辺通店(ドラッグストア)まで307m その他 やよい軒高砂店(飲食店)まで453m その他 福岡渡辺通郵便局(郵便局)まで232m その他 ローソン電気ビル北館店(コンビニ)まで106m | ||
| 建物種別 | マンション | 建物構造 | RC(鉄筋コンクリート) |
この部屋の取扱い不動産会社
| 会社名 | (株)JR九州の仲介(SUUMO経由) | ||
|---|---|---|---|
| 所在地 | 福岡県福岡市博多区吉塚本町 13-27 2階 | 交通 | - |
| 営業時間 | 10:00~17:00 | 定休日 | 水・日・祝 |
| 免許番号 | 福岡県知事20829 | 取引態様 | 仲介 |
| 不動産会社管理番号 | 100483921644 | 当社管理番号 | 89 |
| 所属団体 | (公社)福岡県宅地建物取引業協会会員 | ||
| 公正取引協議会 | (一社)九州不動産公正取引協議会加盟 | ||
| 取扱い物件情報 | 物件詳細へ | ||
※各種情報と現状に差異がある場合は、現状優先となります。問い合わせをすることで、より詳しい条件、情報を確認する事ができます。
提供:(株)JR九州の仲介(SUUMO経由)
この物件が気になったら掲載期限まであと10日
RJRプレシア天神サウスに条件(家賃・エリア)が近い物件一覧
| 写真 | 家賃 管理費等 | 敷金 礼金 | 間取り 専有面積 | 築年数 | 最寄り駅 所在地 | キープ | 詳細 |
|---|---|---|---|---|---|---|---|
マンション アントゥール薬院(2LDK/10階) | |||||||
| 22.2万円 1.5万円 | なし なし | 2LDK 67.22m2 | 築24年 | 福岡市七隈線 薬院駅 徒歩4分 福岡市七隈線 薬院大通駅 徒歩6分 福岡市七隈線 渡辺通駅 徒歩8分 福岡県福岡市中央区 | 詳細を見る | ||
マンション MODERN PALAZZO 博多デュオグランデイースト(2LDK/7階) | |||||||
| 17.4万円 5,000円 | なし なし | 2LDK 53.06m2 | 築1年 | 福岡市空港線 博多駅 徒歩12分 福岡市七隈線 渡辺通駅 徒歩18分 福岡市空港線 祇園駅(福岡) 徒歩19分 福岡県福岡市博多区美野島1丁目5-1 | 詳細を見る | ||
マンション アンピール天神東(2LDK/8階) | |||||||
| 18万円 なし | 18万円 36万円 | 2LDK 59.97m2 | 築22年 | 福岡市七隈線 天神南駅 徒歩8分 福岡市七隈線 渡辺通駅 徒歩9分 福岡市箱崎線 中洲川端駅 徒歩13分 福岡県福岡市中央区春吉2丁目 | 詳細を見る | ||
タウンハウス アルバ御笠の森(2LDK) | |||||||
![]() | 18万円 4,000円 | なし 36万円 | 2LDK 90.26m2 | 築7年 | 西鉄天神大牟田線 雑餉隈駅 徒歩16分 西鉄天神大牟田線 桜並木駅 徒歩17分 鹿児島本線 南福岡駅 徒歩22分 福岡県大野城市仲畑4丁目 | 詳細を見る | |
マンション S-RESIDENCE平尾ウエスト(2LDK/4階) | |||||||
| 30万円 1万円 | なし なし | 2LDK 73.96m2 | 築2年 | 西鉄天神大牟田線 西鉄平尾駅 徒歩8分 福岡市七隈線 薬院大通駅 徒歩11分 福岡市七隈線 薬院駅 徒歩13分 福岡県福岡市中央区 | 詳細を見る | ||
マンション プライマル福岡平尾(2LDK/1階) | |||||||
| 17.8万円 9,000円 | なし なし | 2LDK 64.93m2 | 築4年 | 西鉄天神大牟田線 西鉄平尾駅 徒歩7分 福岡市七隈線 薬院大通駅 徒歩10分 福岡市七隈線 薬院駅 徒歩11分 福岡県福岡市中央区 | 詳細を見る | ||
マンション シグレア下大利(3LDK/5階) | |||||||
![]() | 14万円 6,000円 | なし 28万円 | 3LDK 70.08m2 | 新築 | 西鉄天神大牟田線 下大利駅 徒歩5分 JR鹿児島本線 水城駅 徒歩10分 福岡県大野城市下大利 | 詳細を見る | |
マンション 博多南線 博多南駅 徒歩6分 築26年(4LDK/8階) | |||||||
![]() | 13.5万円 なし | 13.5万円 27万円 | 4LDK 96.16m2 | 築26年 | 博多南線 博多南駅 徒歩6分 鹿児島本線 南福岡駅 徒歩47分 福岡県春日市 | 詳細を見る | |




