賃貸マンション
パークアクシス新宿百人町の賃貸物件情報(1DK/5階)
| 家賃 | 管理費等 | 敷金 | 礼金 | 間取り | 専有面積 |
|---|---|---|---|---|---|
| 15.1万円 | 1.5万円 | 15.1万円 | なし | 1DK | 26.1m2 |
入居決定でお祝い金最大100,000円
Point
まずはお問い合わせ!
不動産会社は街のプロ、あなたに合った物件がきっと見つかります。
提供:いい部屋ネット大東建託リーシング(株)新宿店(SUUMO経由)

詳細情報 パークアクシス新宿百人町
物件紹介
パークアクシス新宿百人町はJR中央線大久保駅から徒歩6分にあり、駅近で通勤通学に便利なマンションです。
このお部屋は2階以上に位置しているので、通行人や周囲の住人からの視線が気になりにくく、防犯面でも安心。建物のエントランスはオートロックがついており、インターホンにはTVモニタもついているため、相手の顔を確認してから来客対応することができます。
こちらは楽器相談が可能な物件。楽器演奏をお考えの方はぜひ相談してみてください。フローリングのお部屋なのでお掃除もラクラク。キッチンはシステムキッチン仕様になっていますので、お料理好きの方にもぴったり。バス・トイレは別なので、のんびりお風呂タイムも楽しめるでしょう。また、雨の日でも浴室乾燥機を使えば、お洗濯も問題ありません。
通信設備面では、インターネット接続が可能です。また、BSアンテナ・CSアンテナがありCATVにも対応しているので、おうち時間も充実するでしょう(別途工事、契約料が必要な場合あり)。
建物にはエレベーターがついているので、重い荷物があっても安心。共用部には宅配ボックスが設定されているので、不在の時にも荷物を受け取ることができます。また、ペット飼育の相談ができますので、あなたの大切な家族の一員も快適に暮らせるか、ぜひ確認してみてください。
コンビニまで徒歩7分の場所にあり、日用品や食料品のお買い物にも便利です。
このお部屋は2階以上に位置しているので、通行人や周囲の住人からの視線が気になりにくく、防犯面でも安心。建物のエントランスはオートロックがついており、インターホンにはTVモニタもついているため、相手の顔を確認してから来客対応することができます。
こちらは楽器相談が可能な物件。楽器演奏をお考えの方はぜひ相談してみてください。フローリングのお部屋なのでお掃除もラクラク。キッチンはシステムキッチン仕様になっていますので、お料理好きの方にもぴったり。バス・トイレは別なので、のんびりお風呂タイムも楽しめるでしょう。また、雨の日でも浴室乾燥機を使えば、お洗濯も問題ありません。
通信設備面では、インターネット接続が可能です。また、BSアンテナ・CSアンテナがありCATVにも対応しているので、おうち時間も充実するでしょう(別途工事、契約料が必要な場合あり)。
建物にはエレベーターがついているので、重い荷物があっても安心。共用部には宅配ボックスが設定されているので、不在の時にも荷物を受け取ることができます。また、ペット飼育の相談ができますので、あなたの大切な家族の一員も快適に暮らせるか、ぜひ確認してみてください。
コンビニまで徒歩7分の場所にあり、日用品や食料品のお買い物にも便利です。
お金・契約の情報
※「-」と表示されているものは、実際は料金が発生するものもございます。詳細はお問い合わせください。
| 家賃 | 15.1万円 | 管理費・共益費 | 1.5万円 |
|---|---|---|---|
| 敷金 | 15.1万円 | 礼金 | なし |
| 入居決定でお祝い金最大100,000円 | |||
| 保証金 | - | 償却・敷引 | - |
| 住宅保険料 | 1円 | 更新料 | - |
| その他費用 | 室内清掃費:5.5万円、33000円: | ||
| 保証会社利用 | 必須 | 保証会社名 | - |
| 保証会社費用 | - | 保証会社備考 | 保証会社名:レジデントアシスタンス株式会社/初回保証委託料(最低20000円):月額賃料等の50%、 2年目以降:9600円/年 |
| 契約形態 | - | 契約期間 | 2年 |
| 入居・引渡期間 | 即時 | 現況 | - |
| 入居可能条件 | 事務所不可、楽器可、ペット相談 | ||
| 契約備考 | 月額(口座振替事務手数料 220円) その他設備/条件:室内洗濯機置き場 | ||
部屋の情報
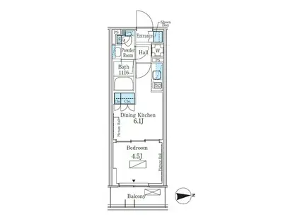
| 間取り | 1DK | 専有面積 | 26.1m2 |
|---|---|---|---|
| 所在階 / 向き | 5階 / 東 | バルコニー面積 | 3m2 |
| 水道 / ガス | - | ||
| 設備 | バス・トイレ別、オートロック、宅配ボックス、浴室乾燥機、システムキッチン、エアコン、エレベーター、バルコニー、フローリング、CATV、CSアンテナ、BSアンテナ | ||
| 当社物件ID | 157377687 | ||
建物の情報
| 建物名 | パークアクシス新宿百人町 | ||
|---|---|---|---|
| 所在地 | 東京都新宿区百人町3丁目 | ||
| 交通 | 総武・中央緩行線 大久保駅(東京) 徒歩6分 山手線 新大久保駅 徒歩9分 | ||
| 階数 | 7階建 | 総戸数 | - |
| 築年月 | 2024年01月 / 築3年 | エレベーター | あり |
| 駐車場 | なし | バイク置き場 | あり |
| 駐輪場 | - | 管理人/管理会社 | - |
| 周辺環境 | コンビニ 徒歩7分(507m) その他 ドラッグストア その他 公園 その他 銀行 その他 * | ||
| 建物種別 | マンション | 建物構造 | RC(鉄筋コンクリート) |
この部屋の取扱い不動産会社
| 会社名 | ハウスコム東東京株式会社 中野店 | ||
|---|---|---|---|
| 所在地 | 東京都中野区24-9ナカノサウステラ レジデンス棟1階 | 交通 | - |
| 営業時間 | 10:00~18:00 | 定休日 | - |
| 免許番号 | 東京都知事(1)第108283号 | 取引態様 | 仲介 |
| 不動産会社管理番号 | HC5-4113769-534-0174 | 当社管理番号 | 468 |
| 所属団体 | 、 | ||
| 取扱い物件情報 | 物件詳細へ | ||
※各種情報と現状に差異がある場合は、現状優先となります。問い合わせをすることで、より詳しい条件、情報を確認する事ができます。
提供:ハウスコム東東京株式会社 中野店
この物件が気になったら掲載期限まであと5日
パークアクシス新宿百人町の空き部屋一覧
全部で39の空き部屋があります。
パークアクシス新宿百人町に条件(家賃・エリア)が近い物件一覧
| 写真 | 家賃 管理費等 | 敷金 礼金 | 間取り 専有面積 | 築年数 | 最寄り駅 所在地 | キープ | 詳細 |
|---|---|---|---|---|---|---|---|
アパート コンフォール駒込(1LDK/2階) | |||||||
![]() | 14万円 6,000円 | なし なし | 1LDK 41.8m2 | 築8年 | JR山手線 駒込駅 徒歩8分 東京メトロ南北線 西ケ原駅 徒歩12分 JR京浜東北線 上中里駅 徒歩12分 東京都豊島区駒込 | 詳細を見る | |
マンション PREMIUM CUBE G 後楽園(2K/14階) | |||||||
![]() | 15万円 1.5万円 | 15万円 15万円 | 2K 27.49m2 | 築4年 | 東京メトロ丸ノ内線 後楽園駅 徒歩11分 都営三田線 春日駅(東京) 徒歩11分 東京メトロ有楽町線 江戸川橋駅 徒歩15分 東京都文京区小石川 | 詳細を見る | |
マンション 西早稲田2丁目マンション工事(1K/2階) | |||||||
![]() | 10.7万円 1.2万円 | 10.7万円 21.4万円 | 1K 26.19m2 | 新築 | 東京地下鉄副都心線 西早稲田駅 徒歩6分 東京都新宿区西早稲田2丁目 | 詳細を見る | |
マンション ロイヤルドミニオン(3LDK/1階) | |||||||
![]() | 23万円 1万円 | なし 46万円 | 3LDK 65.06m2 | 築30年 | 東京メトロ丸ノ内線 新中野駅 徒歩5分 東京メトロ丸ノ内線 中野坂上駅 徒歩13分 JR中央線 中野駅(東京) 徒歩15分 東京都中野区中央 | 詳細を見る | |
マンション ガリシアレジデンス六本木(1K/2階) | |||||||
![]() | 12.6万円 1.5万円 | 12.6万円 12.6万円 | 1K 25.6m2 | 築12年 | 東京メトロ日比谷線 六本木駅 徒歩5分 東京メトロ千代田線 乃木坂駅 徒歩8分 都営大江戸線 麻布十番駅 徒歩20分 東京都港区西麻布 | 詳細を見る | |
マンション ライオンズマンション駒込第2(2LDK/8階) | |||||||
![]() | 18万円 1.5万円 | 18万円 18万円 | 2LDK 48.91m2 | 築47年 | JR京浜東北線 田端駅 徒歩9分 JR山手線 駒込駅 徒歩12分 東京メトロ千代田線 千駄木駅 徒歩15分 東京都文京区本駒込 | 詳細を見る | |
マンション 夏目坂マンション(1LDK/2階) | |||||||
![]() | 17.8万円 5,000円 | 17.8万円 17.8万円 | 1LDK 47.89m2 | 築50年 | 東京メトロ東西線 早稲田駅(メトロ) 徒歩5分 都営大江戸線 若松河田駅 徒歩10分 東京メトロ副都心線 西早稲田駅 徒歩21分 東京都新宿区戸山 | 詳細を見る | |
マンション TREFORM(ワンルーム/3階) | |||||||
![]() | 12万円 1.5万円 | 12万円 18万円 | ワンルーム 38.16m2 | 築15年 | 東京メトロ丸ノ内線 新大塚駅 徒歩3分 JR山手線 大塚駅(東京) 徒歩10分 都電荒川線 向原駅(東京) 徒歩11分 東京都豊島区南大塚 | 詳細を見る | |



/105x80-f1-q70-wp1)




