賃貸マンション
サーパス騎射場1303の賃貸物件情報(2LDK/13階)
| 家賃 | 管理費等 | 敷金 | 礼金 | 間取り | 専有面積 |
|---|---|---|---|---|---|
| 11万円 | 5,000円 | 22万円 | 11万円 | 2LDK | 64.16m2 |
入居決定でお祝い金最大100,000円
Point
分譲賃貸マンション、2LDKファミリータイプ、駐車場機械式セダンなら敷地内に取れます。
提供:(株)川商ハウス本店(SUUMO経由)

詳細情報 サーパス騎射場1303
物件紹介
サーパス騎射場1303は鹿児島市電谷山線騎射場駅から徒歩1分にあり、駅近で通勤通学に便利なマンションです。
このお部屋は2階以上に位置しているので、通行人や周囲の住人からの視線が気になりにくく、防犯面でも安心。建物のエントランスはオートロックがついており、インターホンにはTVモニタもついているため、相手の顔を確認してから来客対応することができます。
人気の南向きのお部屋。また、フローリングなのでお掃除もラクラク。キッチンはシステムキッチン仕様になっていますので、お料理好きの方にもぴったり。バス・トイレは別なので、のんびりお風呂タイムも楽しめるでしょう。また、雨の日でも浴室乾燥機を使えば、お洗濯も問題ありません。
建物にはエレベーターがついているので、重い荷物があっても安心。
このお部屋は2階以上に位置しているので、通行人や周囲の住人からの視線が気になりにくく、防犯面でも安心。建物のエントランスはオートロックがついており、インターホンにはTVモニタもついているため、相手の顔を確認してから来客対応することができます。
人気の南向きのお部屋。また、フローリングなのでお掃除もラクラク。キッチンはシステムキッチン仕様になっていますので、お料理好きの方にもぴったり。バス・トイレは別なので、のんびりお風呂タイムも楽しめるでしょう。また、雨の日でも浴室乾燥機を使えば、お洗濯も問題ありません。
建物にはエレベーターがついているので、重い荷物があっても安心。
お金・契約の情報
※「-」と表示されているものは、実際は料金が発生するものもございます。詳細はお問い合わせください。
| 家賃 | 11万円 | 管理費・共益費 | 5,000円 |
|---|---|---|---|
| 敷金 | 22万円 | 礼金 | 11万円 |
| 入居決定でお祝い金最大100,000円 | |||
| 保証金 | - | 償却・敷引 | - |
| 住宅保険料 | - | 更新料 | - |
| 契約形態 | - | 契約期間 | - |
| 入居・引渡期間 | - | 現況 | - |
| 契約備考 | 退去予定日 2026年04月30日家賃保証会社契約必須、別途保証料が必要です。 合計2.75万円(内訳:火災保険料(月額)1150円/鍵交換料26400円) 2LDK 損保【要】 バストイレ別、エアコン、ガスコンロ対応、フローリング、シャワー付洗面台、TVインターホン、浴室乾燥機、オートロック、室内洗濯置、シューズボックス、システムキッチン、南向き、温水洗浄便座、脱衣所、エレベーター、洗面所独立、外壁タイル張り、最上階、分譲賃貸、LDK15畳以上、ディンプルキー、敷金2ヶ月、眺望良好、クロゼット2ヶ所、耐火構造、駅徒歩5分以内、バス停徒歩3分以内、高層階、当社管理物件、和室、全居室6畳以上、都市ガス、IT重説対応物件 入居日:'26年5月上旬 | ||
部屋の情報
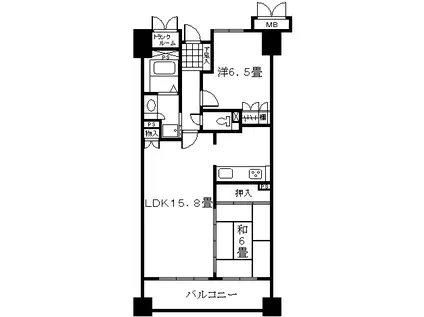
| 間取り | 2LDK | 専有面積 | 64.16m2 |
|---|---|---|---|
| 所在階 / 向き | 13階 / 南 | バルコニー面積 | - |
| 水道 / ガス | - | ||
| 設備 | バス・トイレ別、2階以上、オートロック、テレビドアホン、浴室乾燥機、システムキッチン、エアコン、エレベーター、温水洗浄便座、南向き、フローリング、洗髪洗面化粧台、コンロ:ガス、洗濯機:室内 | ||
| 当社物件ID | 39626695 | ||
建物の情報
| 建物名 | サーパス騎射場1303 | ||
|---|---|---|---|
| 所在地 | 鹿児島県鹿児島市下荒田 | ||
| 交通 | 鹿児島市電谷山線 騎射場駅 徒歩1分 | ||
| 階数 | 13階建 | 総戸数 | 1戸 |
| 築年月 | 2003年02月 / 築24年 | エレベーター | あり |
| 駐車場 | 空有 9000円 | バイク置き場 | - |
| 駐輪場 | - | 管理人/管理会社 | - |
| 周辺環境 | その他 ローソン(コンビニ)まで80m その他 八幡小学校(小学校)まで373m その他 天保山中学校(中学校)まで1145m その他 タイヨー騎射場店(ショッピングセンター)まで15m | ||
| 建物種別 | マンション | 建物構造 | SRC(鉄骨鉄筋コンクリート) |
この部屋の取扱い不動産会社
| 会社名 | (株)川商ハウス本店(SUUMO経由) | ||
|---|---|---|---|
| 所在地 | 鹿児島県鹿児島市新屋敷町 1-7 | 交通 | - |
| 営業時間 | 9:30~17:30 | 定休日 | 毎週水曜日 |
| 免許番号 | 鹿児島県知事483 | 取引態様 | 仲介 |
| 不動産会社管理番号 | 100494214280 | 当社管理番号 | 89 |
| 所属団体 | (公社)鹿児島県宅地建物取引業協会会員 | ||
| 公正取引協議会 | (一社)九州不動産公正取引協議会加盟 | ||
| 取扱い物件情報 | 物件詳細へ | ||
※各種情報と現状に差異がある場合は、現状優先となります。問い合わせをすることで、より詳しい条件、情報を確認する事ができます。
提供:(株)川商ハウス本店(SUUMO経由)
この物件が気になったら掲載期限まであと10日
サーパス騎射場1303に条件(家賃・エリア)が近い物件一覧
| 写真 | 家賃 管理費等 | 敷金 礼金 | 間取り 専有面積 | 築年数 | 最寄り駅 所在地 | キープ | 詳細 |
|---|---|---|---|---|---|---|---|
マンション シティハイツ三洋(3LDK/12階) | |||||||
![]() | 11万円 なし | なし なし | 3LDK 65m2 | 築41年 | 鹿児島市電唐湊線 都通駅 徒歩6分 鹿児島市電唐湊線 中洲通駅 徒歩7分 JR鹿児島本線 鹿児島中央駅 徒歩9分 鹿児島県鹿児島市上之園町 | 詳細を見る | |
一戸建て 日豊本線 仙巌園駅 徒歩14分 築46年(6DK) | |||||||
![]() | 7.5万円 なし | 7.5万円 なし | 6DK 103.98m2 | 築46年 | 日豊本線 仙巌園駅 徒歩14分 鹿児島県鹿児島市稲荷町 | 詳細を見る | |
マンション S-FORT鹿児島駅前ベイサイド(1LDK/10階) | |||||||
![]() | 6.7万円 4,000円 | なし なし | 1LDK 32.06m2 | 築10年 | 鹿児島市唐湊線 桜島桟橋通駅 徒歩1分 鹿児島県鹿児島市小川町 | 詳細を見る | |
アパート A・グランドパレスⅡ(2LDK/2階) | |||||||
![]() | 6.7万円 4,000円 | 6.7万円 なし | 2LDK 50.84m2 | 築1年 | 鹿児島県鹿児島市吉野町 | 詳細を見る | |
マンション IRISSPIRA.BRIGHT AS(2LDK/9階) | |||||||
![]() | 14.2万円 6,600円 | 28.4万円 なし | 2LDK 54.45m2 | 築7年 | 鹿児島市谷山線 二中通駅 徒歩1分 鹿児島県鹿児島市荒田1丁目 | 詳細を見る | |
マンション 第三小窪ビル(4LDK/1階) | |||||||
![]() | 7万円 なし | なし なし | 4LDK 65m2 | 築40年 | JR指宿枕崎線 慈眼寺駅 徒歩8分 JR指宿枕崎線 谷山駅(JR) 徒歩22分 JR指宿枕崎線 坂之上駅 徒歩27分 鹿児島県鹿児島市谷山中央 | 詳細を見る | |
マンション フォレスト5(1LDK/9階) | |||||||
![]() | 7.8万円 5,000円 | 11.7万円 なし | 1LDK 40.2m2 | 築6年 | 鹿児島市電唐湊線 天文館通駅 徒歩8分 鹿児島市電谷山線 甲東中学校前駅 徒歩9分 鹿児島県鹿児島市松原町 | 詳細を見る | |
マンション メゾン ド ヴァン・ドゥ(ワンルーム/2階) | |||||||
![]() | 8万円 1万円 | 16万円 なし | ワンルーム 36.08m2 | 築7年 | 鹿児島市谷山線 鴨池駅 徒歩4分 鹿児島県鹿児島市鴨池2丁目 | 詳細を見る | |









