賃貸マンション
ジェムシティ幸の賃貸物件情報(3LDK/13階)
| 家賃 | 管理費等 | 敷金 | 礼金 | 間取り | 専有面積 |
|---|---|---|---|---|---|
| 13.8万円 | なし | 41.4万円 | なし | 3LDK | 86.26m2 |
入居決定でお祝い金最大100,000円
Point
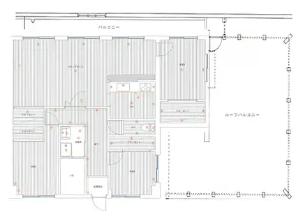
最上階ルーフバルコニーより望む別府市一望の景色 共同温泉あり広々19.5帖のLDK、その他各室、洗面化粧台、洗濯パン、トイレR5年リフォーム済 ペット可 小型犬、猫どちらか1匹全室照明器具あり
提供:(有)青葉興産(SUUMO経由)

詳細情報 ジェムシティ幸
物件紹介
ジェムシティ幸はJR日豊本線別府駅から徒歩13分にあるマンションです。
このお部屋は2階以上に位置しているので通行人や周囲の住人からの視線が気になりにくく、建物のエントランスはオートロックがついているので防犯性が高くなっています。
人気の南向き・フローリングのお部屋。角部屋でもあるため、周囲の居住者の生活音も気になりにくい場所です。室内にはウォークインクローゼットがありますので、たくさんの荷物も効率的に収納ができます。キッチンはシステムキッチン仕様になっていますので、お料理好きの方にもぴったり。また、バス・トイレは別で、のんびりお風呂タイムも楽しめるでしょう。
建物にはエレベーターがついているので、重い荷物があっても安心。また、ペット飼育の相談ができますので、あなたの大切な家族の一員も快適に暮らせるか、ぜひ確認してみてください。
このお部屋は2階以上に位置しているので通行人や周囲の住人からの視線が気になりにくく、建物のエントランスはオートロックがついているので防犯性が高くなっています。
人気の南向き・フローリングのお部屋。角部屋でもあるため、周囲の居住者の生活音も気になりにくい場所です。室内にはウォークインクローゼットがありますので、たくさんの荷物も効率的に収納ができます。キッチンはシステムキッチン仕様になっていますので、お料理好きの方にもぴったり。また、バス・トイレは別で、のんびりお風呂タイムも楽しめるでしょう。
建物にはエレベーターがついているので、重い荷物があっても安心。また、ペット飼育の相談ができますので、あなたの大切な家族の一員も快適に暮らせるか、ぜひ確認してみてください。
お金・契約の情報
※「-」と表示されているものは、実際は料金が発生するものもございます。詳細はお問い合わせください。
| 家賃 | 13.8万円 | 管理費・共益費 | なし |
|---|---|---|---|
| 敷金 | 41.4万円 | 礼金 | なし |
| 入居決定でお祝い金最大100,000円 | |||
| 保証金 | - | 償却・敷引 | - |
| 住宅保険料 | - | 更新料 | - |
| 保証会社利用 | 必須 | 保証会社名 | - |
| 保証会社費用 | - | 保証会社備考 | 保証会社利用必 アルファー 100% |
| 契約形態 | - | 契約期間 | - |
| 入居・引渡期間 | 即時 | 現況 | - |
| 入居可能条件 | ペット相談 | ||
| 契約備考 | 通勤管理/リフォーム:2023年2月トイレ、洗面、フロア、全室クロス/共同温泉あり 午前9時から正午まで清掃 ペット相談可(別途礼金1ヶ月) 鍵交換費用20000円から 3LDK 損保【要】 バストイレ別、バルコニー、オートロック、室内洗濯置、陽当り良好、シューズボックス、システムキッチン、温水洗浄便座、エレベーター、即入居可、最上階、ペット相談、IHクッキングヒーター、駐車場1台無料、ウォークインクロゼット、南西角住戸、全居室フローリング、内装リフォーム済、眺望良好、ルーフバルコニー、南面リビング、3面バルコニー、敷地内ごみ置き場、南西向き、日勤管理、LDK18畳以上、ダウンライト、通風良好 | ||
部屋の情報
| 間取り | 3LDK | 専有面積 | 86.26m2 |
|---|---|---|---|
| 所在階 / 向き | 13階 / 南西 | バルコニー面積 | 50m2 |
| 水道 / ガス | - | ||
| 設備 | バス・トイレ別、2階以上、オートロック、ウォークインクローゼット、システムキッチン、エレベーター、温水洗浄便座、南向き、角部屋、バルコニー、フローリング、コンロ:IH、洗濯機:室内 | ||
| 当社物件ID | 160029946 | ||
建物の情報
| 建物名 | ジェムシティ幸 | ||
|---|---|---|---|
| 所在地 | 大分県別府市幸町 | ||
| 交通 | JR日豊本線 別府駅(大分) 徒歩13分 | ||
| 階数 | 13階建 | 総戸数 | - |
| 築年月 | 1999年01月 / 築28年 | エレベーター | あり |
| 駐車場 | 空有 付無料 | バイク置き場 | - |
| 駐輪場 | - | 管理人/管理会社 | - |
| 周辺環境 | その他 アテオ南石垣店(スーパー)まで502m その他 ダイレックス幸店(スーパー)まで178m その他 ローソン別府富士見通り五丁目店(コンビニ)まで235m その他 別府市立別府中央小学校(小学校)まで975m その他 別府幸郵便局(郵便局)まで430m その他 大分銀行別府支店(銀行)まで488m | ||
| 建物種別 | マンション | 建物構造 | SRC(鉄骨鉄筋コンクリート) |
この部屋の取扱い不動産会社
| 会社名 | (有)青葉興産(SUUMO経由) | ||
|---|---|---|---|
| 所在地 | 大分県別府市南荘園町 17-13 | 交通 | - |
| 営業時間 | - | 定休日 | - |
| 免許番号 | 大分県知事1796 | 取引態様 | 仲介 |
| 不動産会社管理番号 | 100477195629 | 当社管理番号 | 89 |
| 所属団体 | (公社)大分県宅地建物取引業協会会員 | ||
| 公正取引協議会 | (一社)九州不動産公正取引協議会加盟 | ||
| 取扱い物件情報 | 物件詳細へ | ||
※各種情報と現状に差異がある場合は、現状優先となります。問い合わせをすることで、より詳しい条件、情報を確認する事ができます。
提供:(有)青葉興産(SUUMO経由)
この物件が気になったら掲載期限まであと3日
ジェムシティ幸に条件(家賃・エリア)が近い物件一覧
| 写真 | 家賃 管理費等 | 敷金 礼金 | 間取り 専有面積 | 築年数 | 最寄り駅 所在地 | キープ | 詳細 |
|---|---|---|---|---|---|---|---|
マンション LA RIVIEREII(2LDK/2階) | |||||||
![]() | 10.8万円 5,000円 | なし なし | 2LDK 63m2 | 築2年 | JR日豊本線 別府駅(大分) 徒歩16分 大分県別府市若草町 | 詳細を見る | |
マンション SEAGARDEN船小路(3LDK/9階) | |||||||
![]() | 15.2万円 5,000円 | なし 15.2万円 | 3LDK 97.55m2 | 新築 | JR日豊本線 別府大学駅 徒歩20分 JR日豊本線 別府駅(大分) 徒歩33分 JR日豊本線 亀川駅 徒歩47分 大分県別府市船小路町 | 詳細を見る | |
アパート PREMILIFE都町18(1LDK/3階) | |||||||
![]() | 8.6万円 5,500円 | なし なし | 1LDK 41.2m2 | 築2年 | 日豊本線 大分駅 徒歩15分 大分県大分市都町3丁目 | 詳細を見る | |
アパート ベル・セゾン金池南(2LDK/1階) | |||||||
![]() | 8.8万円 5,000円 | なし なし | 2LDK 47.77m2 | 築1年 | 久大本線 古国府駅 徒歩14分 大分県大分市金池南2丁目 | 詳細を見る | |
一戸建て 久大本線 古国府駅 徒歩8分 築29年(3LDK) | |||||||
![]() | 8.7万円 5,000円 | なし 8.7万円 | 3LDK 103.5m2 | 築29年 | 久大本線 古国府駅 徒歩8分 大分県大分市 | 詳細を見る | |
一戸建て 日豊本線 大分駅 徒歩25分 築17年(3LDK) | |||||||
![]() | 18万円 なし | なし 54万円 | 3LDK 133.01m2 | 築17年 | 日豊本線 大分駅 徒歩25分 大分県大分市中島東1丁目 | 詳細を見る | |
アパート MERCI HAYA(2LDK/1階) | |||||||
![]() | 8.9万円 5,000円 | なし 10万円 | 2LDK 61.38m2 | 新築 | 久大本線 古国府駅 徒歩20分 大分県大分市 | 詳細を見る | |
マンション センチュリーハイツ日名子(2LDK/9階) | |||||||
![]() | 8.9万円 7,500円 | なし 8.9万円 | 2LDK 60.42m2 | 築38年 | JR日豊本線 別府駅(大分) 徒歩7分 大分県別府市秋葉町 | 詳細を見る | |









