賃貸マンション
アンビックス神田の賃貸物件情報(ワンルーム/4階)
| 家賃 | 管理費等 | 敷金 | 礼金 | 間取り | 専有面積 |
|---|---|---|---|---|---|
| 14.56万円 | 1.744万円 | 14.56万円 | 14.56万円 | ワンルーム | 31.5m2 |
入居決定でお祝い金最大100,000円
- 保証金
- -
- 償却・敷引
- -
- 築年数
- 築14年
- 所在階
- 4階
- 向き
- 南
Point
★システムキッチン・2口ガスコンロ★バストイレ別★室内洗濯機置場★追焚★浴室乾燥機★エアコン★クローゼット★シューズボックス★駐輪場★バイク置場★詳細はお気軽にお問い合わせください!★
提供:(株)ユウキ・ホーム麻布十番店(SUUMO経由)

詳細情報 アンビックス神田
物件紹介
アンビックス神田は東京メトロ銀座線神田駅から徒歩2分にあり、駅近で通勤通学に便利なマンションです。
このお部屋は2階以上に位置しているので通行人や周囲の住人からの視線が気になりにくく、建物のエントランスはオートロックがついているので防犯性が高くなっています。
人気の南向き・フローリングのお部屋。角部屋でもあるため、周囲の居住者の生活音も気になりにくい場所です。キッチンはシステムキッチン仕様になっていますので、お料理好きの方にもぴったり。バス・トイレは別なので、のんびりお風呂タイムも楽しめるでしょう。また、雨の日でも浴室乾燥機を使えば、お洗濯も問題ありません。
共用部には宅配ボックスが設定されているので、不在の時にも荷物を受け取ることができます。
このお部屋は2階以上に位置しているので通行人や周囲の住人からの視線が気になりにくく、建物のエントランスはオートロックがついているので防犯性が高くなっています。
人気の南向き・フローリングのお部屋。角部屋でもあるため、周囲の居住者の生活音も気になりにくい場所です。キッチンはシステムキッチン仕様になっていますので、お料理好きの方にもぴったり。バス・トイレは別なので、のんびりお風呂タイムも楽しめるでしょう。また、雨の日でも浴室乾燥機を使えば、お洗濯も問題ありません。
共用部には宅配ボックスが設定されているので、不在の時にも荷物を受け取ることができます。
お金・契約の情報
※「-」と表示されているものは、実際は料金が発生するものもございます。詳細はお問い合わせください。
| 家賃 | 14.56万円 | 管理費・共益費 | 1.744万円 |
|---|---|---|---|
| 敷金 | 14.56万円 | 礼金 | 14.56万円 |
| 入居決定でお祝い金最大100,000円 | |||
| 保証金 | - | 償却・敷引 | - |
| 住宅保険料 | - | 更新料 | - |
| 保証会社利用 | 必須 | 保証会社名 | - |
| 保証会社費用 | - | 保証会社備考 | 保証会社利用必 初回保証料:賃料総額の50% 詳細はお問い合わせください。 |
| 契約形態 | - | 契約期間 | - |
| 入居・引渡期間 | 相談 | 現況 | - |
| 契約備考 | 巡回管理/駐輪場・バイク置場:空・詳細要確認 合計7.15万円(内訳:契約事務手数料1.1万円エステム安心クラブ入会金0.55万円鍵交換代5.5万円) 室内清掃費用 96250円 エステム安心クラブ 月額990円 ワンルーム 単身者可/二人入居可 普通借家2年 損保【2万円2年】 バストイレ別、バルコニー、エアコン、ガスコンロ対応、クロゼット、フローリング、浴室乾燥機、オートロック、室内洗濯置、シューズボックス、システムキッチン、南向き、追焚機能浴室、角住戸、温水洗浄便座、洗面所独立、洗面化粧台、2口コンロ、駐輪場、宅配ボックス、防犯カメラ、分譲賃貸、オートバス、保証人不要、バイク置場、2沿線利用可、2駅利用可、3駅以上利用可、3沿線以上利用可、駅徒歩5分以内、駅徒歩10分以内、都市ガス、南面バルコニー、保証会社利用可 | ||
部屋の情報
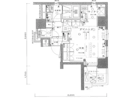
| 間取り | ワンルーム | 専有面積 | 31.5m2 |
|---|---|---|---|
| 所在階 / 向き | 4階 / 南 | バルコニー面積 | - |
| 水道 / ガス | - | ||
| 設備 | バス・トイレ別、2階以上、オートロック、宅配ボックス、浴室乾燥機、追い焚き、システムキッチン、エアコン、温水洗浄便座、南向き、角部屋、バルコニー、フローリング、洗髪洗面化粧台、2口コンロ、コンロ:ガス、洗濯機:室内 | ||
| 当社物件ID | 10222423 | ||
建物の情報
| 建物名 | アンビックス神田 | ||
|---|---|---|---|
| 所在地 | 東京都千代田区神田鍛冶町 | ||
| 交通 | 東京メトロ銀座線 神田駅(東京) 徒歩2分 東京メトロ丸ノ内線 淡路町駅 徒歩5分 都営新宿線 小川町駅(東京) 徒歩5分 | ||
| 階数 | 9階建 | 総戸数 | 38戸 |
| 築年月 | 2012年05月 / 築14年 | エレベーター | - |
| 駐車場 | なし | バイク置き場 | あり |
| 駐輪場 | あり | 管理人/管理会社 | - |
| 周辺環境 | その他 まいばすけっと 神田鍛冶町店(スーパー)まで14m その他 ファミリーマート 神田駅北店(コンビニ)まで160m その他 コーエイドラッグ神田店(ドラッグストア)まで320m | ||
| 建物種別 | マンション | 建物構造 | RC(鉄筋コンクリート) |
この部屋の取扱い不動産会社
| 会社名 | (株)ユウキ・ホーム麻布十番店(SUUMO経由) | ||
|---|---|---|---|
| 所在地 | 東京都港区麻布十番2-19-10 | 交通 | - |
| 営業時間 | AM9:30~PM9:30 | 定休日 | 無休 |
| 免許番号 | 東京都知事76214 | 取引態様 | 仲介 |
| 不動産会社管理番号 | 100478523015 | 当社管理番号 | 89 |
| 所属団体 | (公社)東京都宅地建物取引業協会会員 | ||
| 公正取引協議会 | (公社)首都圏不動産公正取引協議会加盟 | ||
| 取扱い物件情報 | 物件詳細へ | ||
※各種情報と現状に差異がある場合は、現状優先となります。問い合わせをすることで、より詳しい条件、情報を確認する事ができます。
提供:(株)ユウキ・ホーム麻布十番店(SUUMO経由)
この物件が気になったら掲載期限まであと11日
アンビックス神田に条件(家賃・エリア)が近い物件一覧
| 写真 | 家賃 管理費等 | 敷金 礼金 | 間取り 専有面積 | 築年数 | 最寄り駅 所在地 | キープ | 詳細 |
|---|---|---|---|---|---|---|---|
マンション BPRレジデンス蔵前(1K/5階) | |||||||
![]() | 10.9万円 5,000円 | 10.9万円 10.9万円 | 1K 25.65m2 | 築20年 | 東京都大江戸線 蔵前駅 徒歩2分 東京都浅草線 蔵前駅 徒歩4分 東京地下鉄銀座線 田原町駅(東京) 徒歩6分 東京都台東区蔵前3丁目 | 詳細を見る | |
マンション LUMEED南千住(ワンルーム/2階) | |||||||
![]() | 12.9万円 1.1万円 | なし 12.9万円 | ワンルーム 26.03m2 | 築2年 | 東京地下鉄日比谷線 南千住駅 徒歩8分 常磐線 南千住駅 徒歩10分 東京地下鉄日比谷線 三ノ輪駅 徒歩13分 東京都台東区清川2丁目 | 詳細を見る | |
マンション プレール・ドゥーク浅草Ⅳ(1LDK/2階) | |||||||
![]() | 16.2万円 1.2万円 | 16.2万円 16.2万円 | 1LDK 40.36m2 | 築7年 | 東武伊勢崎・大師線 浅草駅(東武・都営・メトロ) 徒歩8分 東京地下鉄銀座線 浅草駅(東武・都営・メトロ) 徒歩8分 東京地下鉄銀座線 田原町駅(東京) 徒歩20分 東京都台東区浅草3丁目 | 詳細を見る | |
マンション ラヴィーナ北上野(1K/8階) | |||||||
![]() | 9万円 7,000円 | 9万円 9万円 | 1K 25.29m2 | 築18年 | 東京地下鉄日比谷線 入谷駅(東京) 徒歩3分 山手線 鶯谷駅 徒歩10分 山手線 上野駅 徒歩15分 東京都台東区北上野2丁目 | 詳細を見る | |
マンション PASEO文京茗荷谷(1LDK/4階) | |||||||
![]() | 17.8万円 1.2万円 | なし なし | 1LDK 40.1m2 | 築6年 | 東京地下鉄丸ノ内線 新大塚駅 徒歩7分 東京地下鉄丸ノ内線 茗荷谷駅 徒歩8分 東京地下鉄有楽町線 護国寺駅 徒歩10分 東京都文京区大塚4丁目 | 詳細を見る | |
マンション プライムアーバン日本橋浜町(1K/2階) | |||||||
![]() | 15.4万円 8,000円 | 15.4万円 なし | 1K 34.68m2 | 築21年 | 東京都新宿線 浜町駅 徒歩3分 東京地下鉄半蔵門線 水天宮前駅 徒歩6分 東京地下鉄日比谷線 人形町駅 徒歩8分 東京都中央区日本橋浜町2丁目 | 詳細を見る | |
マンション プレール・ドゥーク八丁堀(1K/3階) | |||||||
![]() | 9万円 1万円 | 9万円 9万円 | 1K 21.4m2 | 築21年 | 京葉線 八丁堀駅(東京) 徒歩5分 東京地下鉄東西線 茅場町駅 徒歩7分 東京地下鉄半蔵門線 水天宮前駅 徒歩11分 東京都中央区新川1丁目 | 詳細を見る | |
マンション グランカーサ上野松が谷(1DK/6階) | |||||||
![]() | 13.9万円 1万円 | なし なし | 1DK 25.24m2 | 築1年 | つくばエクスプレス 浅草駅(つくばEXP) 徒歩7分 東京地下鉄銀座線 稲荷町駅(東京) 徒歩8分 東京地下鉄銀座線 田原町駅(東京) 徒歩9分 東京都台東区松が谷2丁目 | 詳細を見る | |









