賃貸アパート
ソルナクレイシア雑司が谷の賃貸物件情報(1K/1階)
| 家賃 | 管理費等 | 敷金 | 礼金 | 間取り | 専有面積 |
|---|---|---|---|---|---|
| 7万円 | 1万円 | なし | 7万円 | 1K | 16.37m2 |
入居決定でお祝い金最大100,000円
- 保証金
- -
- 償却・敷引
- -
- 築年数
- 新築
- 所在階
- 1階
- 向き
- -
- 交通
- 東京地下鉄副都心線 雑司が谷駅(東京メトロ) 徒歩3分
東京都荒川線 鬼子母神前駅 徒歩4分
- 所在地
- 東京都豊島区雑司が谷2丁目
ソルナクレイシア雑司が谷
[地図を表示]
Point
忙しい朝にも嬉しい、洗面所が独立している物件。こちらは閑静な住宅地に立地する物件です。
提供:DIGROOM 上野店(株)NOMA(SUUMO経由)

詳細情報 ソルナクレイシア雑司が谷
物件紹介
ソルナクレイシア雑司が谷は東京メトロ副都心線雑司が谷駅から徒歩2分にあり、駅近で通勤通学に便利なアパートです。
建物のエントランスはオートロックがついており、インターホンにはTVモニタもついているため、相手の顔を確認してから来客対応することができます。
人気の角部屋で周囲の居住者の生活音も気になりにくく、また、フローリングのお部屋なのでお掃除もラクラク。キッチンはシステムキッチン仕様になっていますので、お料理好きの方にもぴったり。また、バス・トイレは別で、のんびりお風呂タイムも楽しめるでしょう。
通信設備面では、インターネットが無料で使えるので、月々の出費を抑えられるのも魅力です。また、BSアンテナ・CSアンテナがありCATVにも対応しているので、おうち時間も充実するでしょう(別途工事、BS・CS・CATVの契約料等が必要な場合あり)。
建物のエントランスはオートロックがついており、インターホンにはTVモニタもついているため、相手の顔を確認してから来客対応することができます。
人気の角部屋で周囲の居住者の生活音も気になりにくく、また、フローリングのお部屋なのでお掃除もラクラク。キッチンはシステムキッチン仕様になっていますので、お料理好きの方にもぴったり。また、バス・トイレは別で、のんびりお風呂タイムも楽しめるでしょう。
通信設備面では、インターネットが無料で使えるので、月々の出費を抑えられるのも魅力です。また、BSアンテナ・CSアンテナがありCATVにも対応しているので、おうち時間も充実するでしょう(別途工事、BS・CS・CATVの契約料等が必要な場合あり)。
お金・契約の情報
※「-」と表示されているものは、実際は料金が発生するものもございます。詳細はお問い合わせください。
| 家賃 | 7万円 | 管理費・共益費 | 1万円 |
|---|---|---|---|
| 敷金 | なし | 礼金 | 7万円 |
| 入居決定でお祝い金最大100,000円 | |||
| 保証金 | - | 償却・敷引 | - |
| 住宅保険料 | 1円 | 更新料 | - |
| その他費用 | 24時間メンテナンス:1.65万円 | ||
| 保証会社利用 | 必須 | 保証会社名 | - |
| 保証会社費用 | - | 保証会社備考 | 総賃料の60%〜、年間保証料:1.3万、口座振替手数料:月額330円 |
| 契約形態 | - | 契約期間 | 2年 |
| 入居・引渡期間 | 2026年03月上旬 | 現況 | 未完成 |
| 入居可能条件 | 事務所不可、2人入居不可、楽器不可、ペット不可 | ||
| 契約備考 | 室内清掃費用:38500 その他設備/条件:室内洗濯機置き場、独立洗面台、ルームシェア不可、クローゼット | ||
部屋の情報
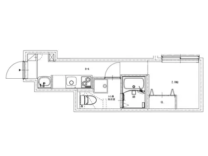
| 間取り | 1K | 専有面積 | 16.37m2 |
|---|---|---|---|
| 所在階 / 向き | 1階 / - | バルコニー面積 | - |
| 水道 / ガス | 水道【公営】、ガス【都市】 | ||
| 設備 | バス・トイレ別、テレビドアホン、システムキッチン、エアコン、温水洗浄便座、フローリング、洗髪洗面化粧台、シャワー、給湯 | ||
| 当社物件ID | 160496370 | ||
建物の情報
| 建物名 | ソルナクレイシア雑司が谷 | ||
|---|---|---|---|
| 所在地 | 東京都豊島区雑司が谷2丁目 | ||
| 交通 | 東京地下鉄副都心線 雑司が谷駅(東京メトロ) 徒歩3分 東京都荒川線 鬼子母神前駅 徒歩4分 | ||
| 階数 | 3階建 | 総戸数 | - |
| 築年月 | 2026年03月 / 新築 | エレベーター | - |
| 駐車場 | - | バイク置き場 | - |
| 駐輪場 | - | 管理人/管理会社 | - |
| 周辺環境 | その他 ドラッグストア その他 公園 その他 銀行 その他 * | ||
| 建物種別 | アパート | 建物構造 | 鉄骨造 |
この部屋の取扱い不動産会社
| 会社名 | ハウスコム東東京株式会社 高田馬場店 | ||
|---|---|---|---|
| 所在地 | 東京都新宿区17-18マルシメビル1階 | 交通 | - |
| 営業時間 | 10:00~18:00 | 定休日 | 水曜定休 |
| 免許番号 | 東京都知事(1)第108283号 | 取引態様 | 仲介 |
| 不動産会社管理番号 | HC2-5406242-103-0227 | 当社管理番号 | 468 |
| 所属団体 | 、 | ||
| 取扱い物件情報 | 物件詳細へ | ||
※各種情報と現状に差異がある場合は、現状優先となります。問い合わせをすることで、より詳しい条件、情報を確認する事ができます。
提供:ハウスコム東東京株式会社 高田馬場店
この物件が気になったら掲載期限まであと5日
ソルナクレイシア雑司が谷に条件(家賃・エリア)が近い物件一覧
| 写真 | 家賃 管理費等 | 敷金 礼金 | 間取り 専有面積 | 築年数 | 最寄り駅 所在地 | キープ | 詳細 |
|---|---|---|---|---|---|---|---|
マンション シャルム豊玉(ワンルーム/8階) | |||||||
![]() | 9.2万円 1万円 | 9.2万円 9.2万円 | ワンルーム 34.34m2 | 築24年 | 西武池袋線 練馬駅 徒歩1分 都営大江戸線 練馬駅 徒歩3分 東京都練馬区豊玉北 | 詳細を見る | |
マンション メゾン龍岡 タツオカ(2DK/3階) | |||||||
![]() | 9.9万円 5,000円 | 19.8万円 なし | 2DK 47.39m2 | 築55年 | 東京メトロ千代田線 湯島駅 徒歩8分 東京メトロ丸ノ内線 本郷三丁目駅 徒歩8分 JR山手線 御徒町駅 徒歩14分 東京都文京区湯島 | 詳細を見る | |
アパート みつこしハイツ(ワンルーム/2階) | |||||||
![]() | 5.5万円 なし | なし なし | ワンルーム 19.44m2 | 築65年 | 西武池袋線 椎名町駅 徒歩7分 西武池袋線 東長崎駅 徒歩10分 都営大江戸線 落合南長崎駅 徒歩12分 東京都豊島区南長崎 | 詳細を見る | |
マンション ナカフジハイム高円寺(1K/1階) | |||||||
![]() | 7.2万円 5,000円 | なし なし | 1K 19.74m2 | 築37年 | 中央本線 高円寺駅 徒歩10分 東京都中野区大和町3丁目 | 詳細を見る | |
マンション 榎本ハイム(ワンルーム/3階) | |||||||
![]() | 6.5万円 なし | 6.5万円 6.5万円 | ワンルーム 16m2 | 築38年 | JR埼京線 板橋駅 徒歩6分 都営三田線 西巣鴨駅 徒歩6分 東武東上線 北池袋駅 徒歩10分 東京都北区滝野川 | 詳細を見る | |
マンション OZIO常盤台(ワンルーム/5階) | |||||||
![]() | 8.8万円 5,000円 | なし なし | ワンルーム 26.63m2 | 築19年 | 東武東上線 ときわ台駅(東京) 徒歩9分 東武東上線 上板橋駅 徒歩10分 西武有楽町線 小竹向原駅 徒歩28分 東京都板橋区東新町 | 詳細を見る | |
アパート ハーモニーテラス上中里(ワンルーム/1階) | |||||||
![]() | 6.6万円 4,000円 | 6.6万円 6.6万円 | ワンルーム 12.1m2 | 築3年 | JR高崎線 尾久駅 徒歩6分 JR京浜東北線 上中里駅 徒歩8分 都電荒川線 荒川車庫前駅 徒歩12分 東京都北区上中里 | 詳細を見る | |
アパート 第2あざみ荘(1K/2階) | |||||||
![]() | 5万円 1,000円 | 5万円 5万円 | 1K 24.38m2 | 築48年 | 都営三田線 高島平駅 徒歩5分 都営三田線 新高島平駅 徒歩15分 都営三田線 西台駅 徒歩15分 東京都板橋区高島平 | 詳細を見る | |




/105x80-f1-q70-wp1)



