賃貸マンション
ライオンズマンション王子公園東の賃貸物件情報(1DK/5階)
| 家賃 | 管理費等 | 敷金 | 礼金 | 間取り | 専有面積 |
|---|---|---|---|---|---|
| 4.8万円 | 5,000円 | なし | なし | 1DK | 29.12m2 |
入居決定でお祝い金最大100,000円
- 保証金
- -
- 償却・敷引
- -
- 築年数
- 築38年
- 所在階
- 5階
- 向き
- 南
Point
ライオンズマンション王子公園東:阪急神戸本線王子公園駅にも近くて便利。倉石保育所が徒歩4分の場所にあります。こちらのお部屋で新しい生活を始めてみませんか。こちらの物件はマンションです。CHINTAI ROOM 六甲本店 キュリアは住まい探しを通して、お客様のお悩みを解決して参りました。神戸市灘区地域
提供:CHINTAI ROOM 六甲本店

詳細情報 ライオンズマンション王子公園東
物件紹介
ライオンズマンション王子公園東は阪急電鉄神戸線王子公園駅から徒歩6分にあり、駅近で通勤通学に便利なマンションです。
このお部屋は2階以上に位置しているので、通行人や周囲の住人からの視線が気になりにくく、防犯面でも安心。建物のエントランスはオートロックがついており、インターホンにはTVモニタもついているため、相手の顔を確認してから来客対応することができます。
人気の南向きのお部屋。また、フローリングなのでお掃除もラクラク。
通信設備面では、インターネット接続が可能です。また、BSアンテナ・CSアンテナがありCATVにも対応しているので、おうち時間も充実するでしょう(別途工事、契約料が必要な場合あり)。
建物にはエレベーターがついているので、重い荷物があっても安心。共用部には宅配ボックスが設定されているので、不在の時にも荷物を受け取ることができます。
このお部屋は2階以上に位置しているので、通行人や周囲の住人からの視線が気になりにくく、防犯面でも安心。建物のエントランスはオートロックがついており、インターホンにはTVモニタもついているため、相手の顔を確認してから来客対応することができます。
人気の南向きのお部屋。また、フローリングなのでお掃除もラクラク。
通信設備面では、インターネット接続が可能です。また、BSアンテナ・CSアンテナがありCATVにも対応しているので、おうち時間も充実するでしょう(別途工事、契約料が必要な場合あり)。
建物にはエレベーターがついているので、重い荷物があっても安心。共用部には宅配ボックスが設定されているので、不在の時にも荷物を受け取ることができます。
お金・契約の情報
※「-」と表示されているものは、実際は料金が発生するものもございます。詳細はお問い合わせください。
| 家賃 | 4.8万円 | 管理費・共益費 | 5,000円 |
|---|---|---|---|
| 敷金 | なし | 礼金 | なし |
| 入居決定でお祝い金最大100,000円 | |||
| 保証金 | - | 償却・敷引 | - |
| 住宅保険料 | 住宅保険料あり(2年) | 更新料 | - |
| 保証会社利用 | 必須 | 保証会社名 | - |
| 保証会社費用 | - | 保証会社備考 | 初回50%、10,000円/年 |
| 契約形態 | - | 契約期間 | 2年 |
| 入居・引渡期間 | 即時 | 現況 | 空室 |
| 入居可能条件 | 2人入居可、高齢者可、学生可 | ||
| 契約備考 | こだわりポイント満載のライオンズマンション王子公園東。倉石保育所が徒歩4分の場所にあります。室内設備はエアコン・追い焚き・BS・CSなど豊富に揃っており、過ごしやすいお部屋になっております。阪急神戸本線王子公園近くでなら、交通面で不自由のない暮らしができるでしょう。まずはCHINTAI ROOM 六甲本店 キュリアにお問い合わせください。 | ||
部屋の情報
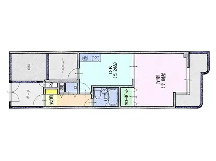
| 間取り | 1DK | 専有面積 | 29.12m2 |
|---|---|---|---|
| 所在階 / 向き | 5階 / 南 | バルコニー面積 | - |
| 水道 / ガス | 水道【公営】、ガス【都市】 | ||
| 設備 | オートロック、テレビドアホン、宅配ボックス、追い焚き、光ファイバー対応、エアコン、エレベーター、バルコニー、フローリング、コンロ:ガス、CATV、CSアンテナ、BSアンテナ、シャワー、給湯、洗濯機:室内、1口コンロ | ||
| 当社物件ID | 157677799 | ||
建物の情報
| 建物名 | ライオンズマンション王子公園東 | ||
|---|---|---|---|
| 所在地 | 兵庫県神戸市灘区岸地通4丁目 4-11 | ||
| 交通 | 阪急電鉄神戸線 王子公園駅 徒歩6分 東海道本線 灘駅 徒歩10分 | ||
| 階数 | 地下1地上10階建 | 総戸数 | 37戸 |
| 築年月 | 1988年03月 / 築38年 | エレベーター | あり |
| 駐車場 | 近隣 1.6万円/月 徒歩1分(50m) | バイク置き場 | あり |
| 駐輪場 | あり | 管理人/管理会社 | 巡回 |
| 周辺環境 | 販売店 徒歩3分(226m) 中学校 神戸市立原田中学校 徒歩12分(925m) 小学校 神戸市立稗田小学校 徒歩1分(75m) 病院 徒歩4分(293m) | ||
| 建物種別 | マンション | 建物構造 | SRC(鉄骨鉄筋コンクリート) |
この部屋の取扱い不動産会社
| 会社名 | CHINTAI ROOM 六甲本店 | ||
|---|---|---|---|
| 所在地 | 兵庫県 神戸市灘区森後町1丁目4番10号 フレグランス六甲1F | 交通 | JR東海道本線「六甲道駅」徒歩1分 |
| 営業時間 | 10:00-19:30 | 定休日 | なし |
| 免許番号 | 兵庫県知事(2)第11891号 | 取引態様 | 仲介 |
| 不動産会社管理番号 | 1654282 | 当社管理番号 | 377 |
| 取扱い物件情報 | 物件詳細へ | ||
※各種情報と現状に差異がある場合は、現状優先となります。問い合わせをすることで、より詳しい条件、情報を確認する事ができます。
提供:CHINTAI ROOM 六甲本店
この物件が気になったら掲載期限まであと4日
ライオンズマンション王子公園東に条件(家賃・エリア)が近い物件一覧
| 写真 | 家賃 管理費等 | 敷金 礼金 | 間取り 専有面積 | 築年数 | 最寄り駅 所在地 | キープ | 詳細 |
|---|---|---|---|---|---|---|---|
アパート サンロード・Ⅳ(1K/1階) | |||||||
![]() | 4.75万円 4,000円 | なし 4.75万円 | 1K 33.15m2 | 築23年 | 山陽本線 魚住駅 徒歩15分 山陽電気鉄道本線 山陽魚住駅 徒歩28分 兵庫県明石市魚住町清水 | 詳細を見る | |
アパート オリーブハイツ志染駅前(1K/1階) | |||||||
![]() | 5.2万円 5,000円 | なし なし | 1K 24m2 | 築2年 | 神戸電鉄粟生線 志染駅 徒歩5分 神戸電鉄粟生線 恵比須駅 徒歩29分 兵庫県三木市志染町西自由が丘1丁目 | 詳細を見る | |
アパート ラフィーネ緑が丘(ワンルーム/1階) | |||||||
![]() | 4.6万円 4,000円 | なし なし | ワンルーム 22.4m2 | 築19年 | 神戸電鉄粟生線 緑が丘駅(兵庫) 徒歩15分 神戸電鉄粟生線 広野ゴルフ場前駅 徒歩22分 神戸電鉄粟生線 押部谷駅 徒歩25分 兵庫県三木市緑が丘町東 | 詳細を見る | |
マンション ビレッジハウス志染(3DK/1階) | |||||||
![]() | 5.77万円 なし | なし なし | 3DK 54.38m2 | 築46年 | 神戸電鉄粟生線 志染駅 徒歩19分 神戸電鉄粟生線 恵比須駅 徒歩29分 神戸電鉄粟生線 広野ゴルフ場前駅 徒歩29分 兵庫県三木市志染町西自由が丘2丁目 | 詳細を見る | |
マンション ビレッジハウス朝日ヶ丘(2K/4階) | |||||||
![]() | 3.52万円 なし | なし なし | 2K 28.98m2 | 築61年 | 神戸電鉄粟生線 三木駅(神戸電鉄) 徒歩31分 神戸電鉄粟生線 三木上の丸駅 徒歩41分 兵庫県三木市別所町朝日ケ丘 | 詳細を見る | |
アパート FLAT大村Ⅱ(1K/1階) | |||||||
![]() | 5.1万円 4,500円 | なし 7万円 | 1K 22.35m2 | 築12年 | 神戸電鉄粟生線 大村駅(兵庫) 徒歩5分 神戸電鉄粟生線 三木駅(神戸電鉄) 徒歩18分 兵庫県三木市大村 | 詳細を見る | |
アパート サンシャイン大塚(1K/2階) | |||||||
![]() | 4.8万円 なし | 4.8万円 4.8万円 | 1K 23.77m2 | 築24年 | 神戸電鉄粟生線 恵比須駅 徒歩4分 神戸電鉄粟生線 三木上の丸駅 徒歩6分 神戸電鉄粟生線 三木駅(神戸電鉄) 徒歩10分 兵庫県三木市大塚 | 詳細を見る | |
アパート ヒカルサ稲美天満Ⅱ(1LDK/1階) | |||||||
![]() | 7.65万円 3,900円 | なし 7.65万円 | 1LDK 44.7m2 | 新築 | 兵庫県加古郡稲美町六分一 | 詳細を見る | |









