賃貸マンション
ビレッジハウス東松山タワー1号棟の賃貸物件情報(3LDK/9階)
| 家賃 | 管理費等 | 敷金 | 礼金 | 間取り | 専有面積 |
|---|---|---|---|---|---|
| 7.05万円 | なし | なし | なし | 3LDK | 64.82m2 |
入居決定でお祝い金最大100,000円
- 保証金
- -
- 償却・敷引
- -
- 築年数
- 築29年
- 所在階
- 9階
- 向き
- 南東
Point
まずはお問い合わせ!
不動産会社は街のプロ、あなたに合った物件がきっと見つかります。
提供:ビレッジハウス住まい相談センター

詳細情報 ビレッジハウス東松山タワー1号棟
物件紹介
ビレッジハウス東松山タワー1号棟は東武鉄道東上線つきのわ駅から徒歩28分にあるマンションです。
このお部屋は2階以上に位置しているので、通行人や周囲の住人からの視線が気になりにくく、防犯面でも安心。インターホンにはTVモニタもついているため、相手の顔を確認してから来客対応することができます。
人気の南向きのお部屋。また、フローリングなのでお掃除もラクラク。バス・トイレ別の仕様で、のんびりお風呂タイムも楽しめます。
通信設備面では、インターネット接続が可能です(別途工事、契約料が必要な場合あり)。
建物にはエレベーターがついているので、重い荷物があっても安心。
このお部屋は2階以上に位置しているので、通行人や周囲の住人からの視線が気になりにくく、防犯面でも安心。インターホンにはTVモニタもついているため、相手の顔を確認してから来客対応することができます。
人気の南向きのお部屋。また、フローリングなのでお掃除もラクラク。バス・トイレ別の仕様で、のんびりお風呂タイムも楽しめます。
通信設備面では、インターネット接続が可能です(別途工事、契約料が必要な場合あり)。
建物にはエレベーターがついているので、重い荷物があっても安心。
お金・契約の情報
※「-」と表示されているものは、実際は料金が発生するものもございます。詳細はお問い合わせください。
| 家賃 | 7.05万円 | 管理費・共益費 | なし |
|---|---|---|---|
| 敷金 | なし | 礼金 | なし |
| フリーレント | 1ヶ月 | ||
| 入居決定でお祝い金最大100,000円 | |||
| 保証金 | - | 償却・敷引 | - |
| 住宅保険料 | 1万円(2年) | 更新料 | - |
| 保証会社利用 | - | 保証会社名 | - |
| 保証会社費用 | - | 保証会社備考 | - |
| 契約形態 | - | 契約期間 | - |
| 入居・引渡期間 | - | 現況 | 空室 |
| 入居可能条件 | 2人入居可、高齢者相談、学生可 | ||
| 契約備考 | 契約種類:普通契約、24時間緊急対応 | ||
部屋の情報
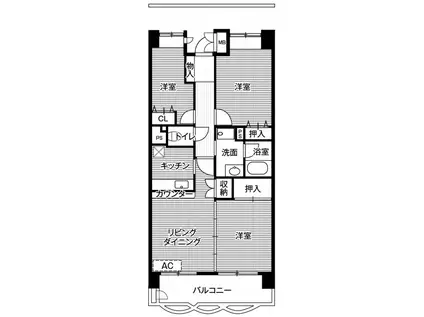
| 間取り | 3LDK | 専有面積 | 64.82m2 |
|---|---|---|---|
| 所在階 / 向き | 9階 / 南東 | バルコニー面積 | - |
| 水道 / ガス | - | ||
| 設備 | バス・トイレ別、テレビドアホン、追い焚き、エアコン、バルコニー、給湯、洗濯機:室内 | ||
| 当社物件ID | 119164599 | ||
建物の情報
| 建物名 | ビレッジハウス東松山タワー1号棟 | ||
|---|---|---|---|
| 所在地 | 埼玉県東松山市大字市ノ川385-1 | ||
| 交通 | 東武鉄道東上線 つきのわ駅 徒歩28分 東武鉄道東上線 東松山駅 徒歩31分 東武鉄道東上線 森林公園駅(埼玉) 徒歩62分 | ||
| 階数 | 10階建 | 総戸数 | - |
| 築年月 | 1997年11月 / 築29年 | エレベーター | - |
| 駐車場 | 空有 3,080円/月 円 | バイク置き場 | - |
| 駐輪場 | - | 管理人/管理会社 | 日勤 |
| 建物種別 | マンション | 建物構造 | SRC(鉄骨鉄筋コンクリート) |
この部屋の取扱い不動産会社
| 会社名 | ビレッジハウス住まい相談センター | ||
|---|---|---|---|
| 所在地 | 愛知県名古屋市中区大須4-10-32 上前津KDビル5階 | 交通 | 名城線「上前津駅」徒歩3分 |
| 営業時間 | 平日:9:00-18:30/土日祝:9:00-18:00 | 定休日 | 年中無休(年末年始を除く) |
| 免許番号 | 東京都知事(2)第100758号 | 取引態様 | 貸主 |
| 不動産会社管理番号 | 00013864451 | 当社管理番号 | 459 |
| 所属団体 | 公益社団法人東京都宅地建物取引業協会会員 日本賃貸住宅管理協会会員 | ||
| 取扱い物件情報 | 物件詳細へ | ||
※各種情報と現状に差異がある場合は、現状優先となります。問い合わせをすることで、より詳しい条件、情報を確認する事ができます。
提供:ビレッジハウス住まい相談センター
この物件が気になったら掲載期限まであと12日
ビレッジハウス東松山タワー1号棟に条件(家賃・エリア)が近い物件一覧
| 写真 | 家賃 管理費等 | 敷金 礼金 | 間取り 専有面積 | 築年数 | 最寄り駅 所在地 | キープ | 詳細 |
|---|---|---|---|---|---|---|---|
アパート ピュアライフ坂戸(1K/2階) | |||||||
![]() | 5.6万円 3,000円 | なし なし | 1K 21m2 | 築8年 | 東武東上線 坂戸駅(埼玉) 徒歩5分 東武東上線 北坂戸駅 徒歩29分 東武東上線 若葉駅 徒歩30分 埼玉県坂戸市三光町 | 詳細を見る | |
アパート パディーI(ワンルーム/2階) | |||||||
![]() | 5.2万円 4,000円 | なし なし | ワンルーム 25.05m2 | 築8年 | 東武東上線 高坂駅 徒歩14分 東武東上線 北坂戸駅 徒歩40分 埼玉県東松山市 | 詳細を見る | |
アパート メゾンアルファ(3DK/2階) | |||||||
![]() | 5.5万円 なし | 5.5万円 5.5万円 | 3DK 57m2 | 築23年 | 秩父鉄道 石原駅(埼玉) 徒歩13分 JR高崎線 熊谷駅 徒歩36分 JR高崎線 籠原駅 徒歩57分 埼玉県熊谷市石原 | 詳細を見る | |
マンション ガーデンスクエア北坂戸(3LDK/2階) | |||||||
![]() | 10.4万円 5,000円 | 10.4万円 なし | 3LDK 72m2 | 築34年 | 東武鉄道東上線 北坂戸駅 徒歩5分 埼玉県坂戸市薬師町 | 詳細を見る | |
マンション レオネクストグレイス(1K/2階) | |||||||
![]() | 5.5万円 5,000円 | なし 5.5万円 | 1K 26.08m2 | 築12年 | 東武鉄道東上線 高坂駅 徒歩14分 埼玉県東松山市大字宮鼻 | 詳細を見る | |
アパート JACK WAKAMATSUI(1LDK/1階) | |||||||
![]() | 6.15万円 3,500円 | なし 6.15万円 | 1LDK 32.15m2 | 新築 | 東武東上線 東松山駅 徒歩13分 東武東上線 高坂駅 徒歩43分 埼玉県東松山市若松町 | 詳細を見る | |
アパート メゾン友(3DK/2階) | |||||||
![]() | 5.3万円 なし | なし なし | 3DK 52.89m2 | 築35年 | 東武東上線 東松山駅 徒歩12分 東武東上線 森林公園駅(埼玉) 徒歩28分 東武東上線 高坂駅 徒歩58分 埼玉県東松山市美土里町 | 詳細を見る | |








