賃貸マンション
南千里グリーンハイツの賃貸物件情報(2LDK/4階)
| 家賃 | 管理費等 | 敷金 | 礼金 | 間取り | 専有面積 |
|---|---|---|---|---|---|
| 6.5万円 | なし | なし | 13万円 | 2LDK | 66.36m2 |
入居決定でお祝い金最大100,000円
- 保証金
- -
- 償却・敷引
- -
- 築年数
- 築53年
- 所在階
- 4階
- 向き
- 東
- 交通
- 大阪モノレール本線 万博記念公園駅(大阪) 徒歩22分
阪急千里線 南千里駅 徒歩24分
JR東海道本線 岸辺駅 徒歩26分
- 所在地
- 大阪府吹田市山田西
南千里グリーンハイツ
[地図を表示]
Point
大切なペットと一緒に暮らせます しっかりとした建物構造で安心です
提供:賃貸・売買のクラスモJR吹田駅前店合同会社ギャラクシー(SUUMO経由)

詳細情報 南千里グリーンハイツ
物件紹介
南千里グリーンハイツは大阪モノレール本線万博記念公園駅から徒歩22分にあるマンションです。
このお部屋は2階以上に位置しているので、通行人や周囲の住人からの視線が気になりにくく、防犯面でも安心。インターホンにはTVモニタもついているため、相手の顔を確認してから来客対応することができます。
フローリングのお部屋なのでお掃除もラクラク。キッチンはシステムキッチン仕様になっていますので、お料理好きの方にもぴったり。また、バス・トイレは別で、のんびりお風呂タイムも楽しめるでしょう。
ペット飼育の相談ができますので、あなたの大切な家族の一員も快適に暮らせるか、ぜひ確認してみてください。
このお部屋は2階以上に位置しているので、通行人や周囲の住人からの視線が気になりにくく、防犯面でも安心。インターホンにはTVモニタもついているため、相手の顔を確認してから来客対応することができます。
フローリングのお部屋なのでお掃除もラクラク。キッチンはシステムキッチン仕様になっていますので、お料理好きの方にもぴったり。また、バス・トイレは別で、のんびりお風呂タイムも楽しめるでしょう。
ペット飼育の相談ができますので、あなたの大切な家族の一員も快適に暮らせるか、ぜひ確認してみてください。
お金・契約の情報
※「-」と表示されているものは、実際は料金が発生するものもございます。詳細はお問い合わせください。
| 家賃 | 6.5万円 | 管理費・共益費 | なし |
|---|---|---|---|
| 敷金 | なし | 礼金 | 13万円 |
| 入居決定でお祝い金最大100,000円 | |||
| 保証金 | - | 償却・敷引 | - |
| 住宅保険料 | - | 更新料 | - |
| 保証会社利用 | 必須 | 保証会社名 | 全保連 |
| 保証会社費用 | - | 保証会社備考 | 全保連利用必 初回保証料:総賃料の50% 更新料:10,000円/年 |
| 契約形態 | - | 契約期間 | - |
| 入居・引渡期間 | 即時 | 現況 | - |
| 入居可能条件 | ペット相談 | ||
| 契約備考 | 大阪モノレール彩都線万博記念公園駅徒歩22分/巡回管理/新婚様・カップル様 大歓迎・応援中医療従事者様 大歓迎・応援中新社会人様 大歓迎・応援中 2LDK 二人入居可/ペット相談 損保【要】 バストイレ別、バルコニー、エアコン、ガスコンロ対応、フローリング、TVインターホン、室内洗濯置、陽当り良好、システムキッチン、追焚機能浴室、脱衣所、洗面所独立、駐輪場、押入、即入居可、閑静な住宅地、敷金不要、ペット相談、グリル付、振分、二人入居相談、バイク置場、眺望良好、高温差湯式、3駅以上利用可、3沿線以上利用可、敷地内ごみ置き場、リビングの隣和室、和室、畳コーナー、都市ガス、洗面所にドア、礼金2ヶ月、通風良好 | ||
部屋の情報
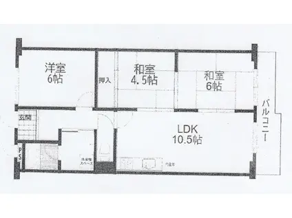
| 間取り | 2LDK | 専有面積 | 66.36m2 |
|---|---|---|---|
| 所在階 / 向き | 4階 / 東 | バルコニー面積 | - |
| 水道 / ガス | - | ||
| 設備 | バス・トイレ別、2階以上、テレビドアホン、追い焚き、システムキッチン、エアコン、バルコニー、フローリング、洗髪洗面化粧台、コンロ:ガス、洗濯機:室内 | ||
| 当社物件ID | 159784728 | ||
建物の情報
| 建物名 | 南千里グリーンハイツ | ||
|---|---|---|---|
| 所在地 | 大阪府吹田市山田西 | ||
| 交通 | 大阪モノレール本線 万博記念公園駅(大阪) 徒歩22分 阪急千里線 南千里駅 徒歩24分 JR東海道本線 岸辺駅 徒歩26分 | ||
| 階数 | 5階建 | 総戸数 | - |
| 築年月 | 1973年07月 / 築53年 | エレベーター | - |
| 駐車場 | なし | バイク置き場 | あり |
| 駐輪場 | あり | 管理人/管理会社 | - |
| 周辺環境 | その他 ローソン吹田山田西一丁目店(コンビニ)まで632m その他 ファミリーマート吹田山田西店(コンビニ)まで666m その他 ジャパン吹田店(ショッピングセンター)まで622m その他 フレスコ山田西店(スーパー)まで372m その他 吹田山田西二郵便局(郵便局)まで529m その他 ココカラファイン千里山田西店(ドラッグストア)まで475m | ||
| 建物種別 | マンション | 建物構造 | SRC(鉄骨鉄筋コンクリート) |
この部屋の取扱い不動産会社
| 会社名 | 賃貸・売買のクラスモJR吹田駅前店合同会社ギャラクシー(SUUMO経由) | ||
|---|---|---|---|
| 所在地 | 大阪府吹田市朝日町 2 さんくす2番館138 | 交通 | - |
| 営業時間 | 10時~19時 | 定休日 | 水曜日 |
| 免許番号 | 大阪府知事59875 | 取引態様 | 仲介 |
| 不動産会社管理番号 | 100470286843 | 当社管理番号 | 89 |
| 所属団体 | (一社)大阪府宅地建物取引業協会会員 | ||
| 公正取引協議会 | (公社)近畿地区不動産公正取引協議会加盟 | ||
| 取扱い物件情報 | 物件詳細へ | ||
※各種情報と現状に差異がある場合は、現状優先となります。問い合わせをすることで、より詳しい条件、情報を確認する事ができます。
提供:賃貸・売買のクラスモJR吹田駅前店合同会社ギャラクシー(SUUMO経由)
この物件が気になったら掲載期限まであと10日
南千里グリーンハイツに条件(家賃・エリア)が近い物件一覧
| 写真 | 家賃 管理費等 | 敷金 礼金 | 間取り 専有面積 | 築年数 | 最寄り駅 所在地 | キープ | 詳細 |
|---|---|---|---|---|---|---|---|
アパート レオパレス山田東Ⅱ(1K/1階) | |||||||
| 6.2万円 5,000円 | なし なし | 1K 19.87m2 | 築17年 | 東海道本線 千里丘駅 徒歩26分 大阪モノレール本線 山田駅(大阪) 徒歩27分 大阪府吹田市山田東1丁目2-24 | 詳細を見る | ||
アパート アンソレイエ N(1LDK/2階) | |||||||
![]() | 6.7万円 3,500円 | なし 6.7万円 | 1LDK 33.34m2 | 築14年 | 大阪モノレール本線 南摂津駅 徒歩9分 大阪モノレール本線 摂津駅 徒歩28分 阪急京都線 正雀駅 徒歩38分 大阪府摂津市新在家 | 詳細を見る | |
マンション エルセレーノ吹田(1K/4階) | |||||||
| 6.3万円 7,000円 | なし 6.3万円 | 1K 28.08m2 | 築20年 | 阪急電鉄千里線 下新庄駅 徒歩11分 阪急電鉄千里線 吹田駅(阪急) 徒歩12分 おおさか東線 南吹田駅 徒歩12分 大阪府吹田市寿町1丁目2-27-27 | 詳細を見る | ||
マンション ドゥーエ本庄(1K/10階) | |||||||
| 8万円 6,000円 | なし 8万円 | 1K 25.22m2 | 築18年 | 大阪市谷町線 天神橋筋六丁目駅 徒歩9分 大阪市谷町線 中崎町駅 徒歩10分 大阪市御堂筋線 中津駅(大阪メトロ) 徒歩13分 大阪府大阪市北区本庄西2丁目7-2 | 詳細を見る | ||
アパート PLACIDE (1K/1階) | |||||||
| 6.3万円 4,000円 | 6.3万円 なし | 1K 28.49m2 | 築3年 | 東海道本線 岸辺駅 徒歩17分 東海道本線 吹田駅(JR) 徒歩22分 阪急電鉄京都線 正雀駅 徒歩28分 大阪府吹田市原町1丁目2230-3 | 詳細を見る | ||
マンション セレニテ新大阪プリエ(1K/14階) | |||||||
| 7.8万円 7,300円 | なし なし | 1K 21.98m2 | 築5年 | 東海道本線 東淀川駅 徒歩2分 大阪市御堂筋線 新大阪駅 徒歩12分 大阪市御堂筋線 東三国駅 徒歩14分 大阪府大阪市東淀川区西淡路1丁目13-2 | 詳細を見る | ||
マンション サンシャイン南茨木(3LDK/4階) | |||||||
| 9.9万円 8,000円 | なし 19.8万円 | 3LDK 75m2 | 築29年 | 大阪モノレール本線 沢良宜駅 徒歩10分 阪急電鉄京都線 南茨木駅 徒歩11分 東海道本線 千里丘駅 徒歩20分 大阪府茨木市沢良宜西3丁目6-6 | 詳細を見る | ||
アパート シエテ淡路(1K/1階) | |||||||
| 5.3万円 5,000円 | なし なし | 1K 26.5m2 | 築21年 | 阪急電鉄千里線 淡路駅 徒歩8分 東海道本線 東淀川駅 徒歩10分 阪急電鉄京都線 崇禅寺駅 徒歩12分 大阪府大阪市東淀川区淡路3丁目8-19 | 詳細を見る | ||
吹田市の町名から探す
吹田市の部屋を間取りから探す
吹田市の駅から探す
吹田市と隣接している市区町村から探す
- 吹田市(6,330)
- 大阪市都島区(1,752)
- 大阪市福島区(2,016)
- 大阪市此花区(446)
- 大阪市西区(4,280)
- 大阪市港区(1,307)
- 大阪市大正区(854)
- 大阪市天王寺区(1,313)
- 大阪市浪速区(3,447)
- 大阪市西淀川区(1,860)
- 大阪市東淀川区(5,119)
- 大阪市東成区(2,227)
- 大阪市生野区(1,654)
- 大阪市旭区(1,760)
- 大阪市城東区(1,981)
- 大阪市阿倍野区(1,404)
- 大阪市住吉区(1,924)
- 大阪市東住吉区(2,010)
- 大阪市西成区(846)
- 大阪市淀川区(5,315)
- 大阪市鶴見区(1,065)
- 大阪市住之江区(1,146)
- 大阪市平野区(2,025)
- 大阪市北区(5,474)
- 大阪市中央区(4,498)
- 豊中市(4,845)
- 茨木市(3,268)
- 箕面市(1,670)
- 摂津市(1,116)


