賃貸マンション
ライオンズタワー柏の賃貸物件情報(3LDK/27階)
| 家賃 | 管理費等 | 敷金 | 礼金 | 間取り | 専有面積 |
|---|---|---|---|---|---|
| 39万円 | なし | 78万円 | 39万円 | 3LDK | 78.95m2 |
入居決定でお祝い金最大100,000円
Point
セキュリティ面は、TVインターホン・オートロックなど充実しているので安心して生活できます。
提供:ネクストライフ柏店(株)ネクストライフ千葉(SUUMO経由)

詳細情報 ライオンズタワー柏
物件紹介
ライオンズタワー柏はJR常磐線柏駅から徒歩3分にあり、駅近で通勤通学に便利なマンションです。
このお部屋は2階以上に位置しているので、通行人や周囲の住人からの視線が気になりにくく、防犯面でも安心。建物のエントランスはオートロックがついており、インターホンにはTVモニタもついているため、相手の顔を確認してから来客対応することができます。
人気の南向き・フローリングのお部屋。角部屋でもあるため、周囲の居住者の生活音も気になりにくい場所です。室内にはウォークインクローゼットがありますので、たくさんの荷物も効率的に収納ができます。キッチンはシステムキッチン仕様になっていますので、お料理好きの方にもぴったり。バス・トイレは別なので、のんびりお風呂タイムも楽しめるでしょう。また、雨の日でも浴室乾燥機を使えば、お洗濯も問題ありません。
通信設備面では、インターネット接続が可能です。また、BSアンテナがありCATVにも対応しているので、おうち時間も充実するでしょう(別途工事、契約料が必要な場合あり)。
床暖房があり、冬も足元から暖かく快適に過ごすことができます。建物にはエレベーターがついているので、重い荷物があっても安心。共用部には宅配ボックスが設定されているので、不在の時にも荷物を受け取ることができます。また、ペット飼育の相談ができますので、あなたの大切な家族の一員も快適に暮らせるか、ぜひ確認してみてください。
コンビニまで徒歩1分の場所にあり、日用品や食料品のお買い物にも便利です。
このお部屋は2階以上に位置しているので、通行人や周囲の住人からの視線が気になりにくく、防犯面でも安心。建物のエントランスはオートロックがついており、インターホンにはTVモニタもついているため、相手の顔を確認してから来客対応することができます。
人気の南向き・フローリングのお部屋。角部屋でもあるため、周囲の居住者の生活音も気になりにくい場所です。室内にはウォークインクローゼットがありますので、たくさんの荷物も効率的に収納ができます。キッチンはシステムキッチン仕様になっていますので、お料理好きの方にもぴったり。バス・トイレは別なので、のんびりお風呂タイムも楽しめるでしょう。また、雨の日でも浴室乾燥機を使えば、お洗濯も問題ありません。
通信設備面では、インターネット接続が可能です。また、BSアンテナがありCATVにも対応しているので、おうち時間も充実するでしょう(別途工事、契約料が必要な場合あり)。
床暖房があり、冬も足元から暖かく快適に過ごすことができます。建物にはエレベーターがついているので、重い荷物があっても安心。共用部には宅配ボックスが設定されているので、不在の時にも荷物を受け取ることができます。また、ペット飼育の相談ができますので、あなたの大切な家族の一員も快適に暮らせるか、ぜひ確認してみてください。
コンビニまで徒歩1分の場所にあり、日用品や食料品のお買い物にも便利です。
お金・契約の情報
※「-」と表示されているものは、実際は料金が発生するものもございます。詳細はお問い合わせください。
| 家賃 | 39万円 | 管理費・共益費 | なし |
|---|---|---|---|
| 敷金 | 78万円 | 礼金 | 39万円 |
| 入居決定でお祝い金最大100,000円 | |||
| 保証金 | - | 償却・敷引 | - |
| 住宅保険料 | 1円 | 更新料 | - |
| 保証会社利用 | 必須 | 保証会社名 | - |
| 保証会社費用 | - | 保証会社備考 | 初回:総家賃の50% 月額1.5% |
| 契約形態 | - | 契約期間 | 3年 |
| 入居・引渡期間 | 即時 | 現況 | - |
| 入居可能条件 | 2人入居可、ペット可 | ||
| 契約備考 | 保険要加入 ペット飼育時敷金積み増し料金(償却)有り その他設備/条件:室内洗濯機置き場、独立洗面台、クローゼット | ||
部屋の情報
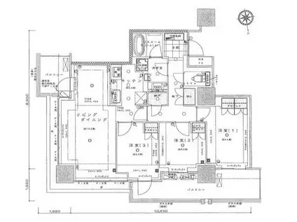
| 間取り | 3LDK | 専有面積 | 78.95m2 |
|---|---|---|---|
| 間取り詳細 | LDK(16.5帖)、洋室(6帖)、洋室(6帖)、洋室(6.4帖) | ||
| 所在階 / 向き | 27階 / 北 | バルコニー面積 | - |
| 水道 / ガス | 水道【公営】、ガス【都市】 | ||
| 設備 | バス・トイレ別、オートロック、テレビドアホン、宅配ボックス、浴室乾燥機、ウォークインクローゼット、追い焚き、システムキッチン、カウンターキッチン、エアコン、エレベーター、温水洗浄便座、角部屋、バルコニー、フローリング、床暖房、3口コンロ、コンロ:ガス | ||
| 当社物件ID | 154917168 | ||
建物の情報
| 建物名 | ライオンズタワー柏 | ||
|---|---|---|---|
| 所在地 | 千葉県柏市柏1丁目 | ||
| 交通 | 常磐線 柏駅 徒歩3分 | ||
| 階数 | 地下1地上27階建 | 総戸数 | - |
| 築年月 | 2016年03月 / 築11年 | エレベーター | あり |
| 駐車場 | なし | バイク置き場 | - |
| 駐輪場 | あり | 管理人/管理会社 | - |
| 周辺環境 | コンビニ 徒歩1分(66m) その他 ドラッグストア その他 公園 その他 銀行 その他 * | ||
| 建物種別 | マンション | 建物構造 | RC(鉄筋コンクリート) |
この部屋の取扱い不動産会社
| 会社名 | ハウスコム千葉株式会社 柏店 | ||
|---|---|---|---|
| 所在地 | 千葉県柏市4-5金子ビル1階 | 交通 | - |
| 営業時間 | 10:00~18:00 | 定休日 | - |
| 免許番号 | 千葉県知事(1)第18235号 | 取引態様 | 仲介 |
| 不動産会社管理番号 | HC2-377223-2710-0042 | 当社管理番号 | 468 |
| 所属団体 | 、 | ||
| 取扱い物件情報 | 物件詳細へ | ||
※各種情報と現状に差異がある場合は、現状優先となります。問い合わせをすることで、より詳しい条件、情報を確認する事ができます。
提供:ハウスコム千葉株式会社 柏店
この物件が気になったら掲載期限まであと5日
ライオンズタワー柏に条件(家賃・エリア)が近い物件一覧
| 写真 | 家賃 管理費等 | 敷金 礼金 | 間取り 専有面積 | 築年数 | 最寄り駅 所在地 | キープ | 詳細 |
|---|---|---|---|---|---|---|---|
一戸建て 千代田・常磐緩行線 南柏駅 徒歩9分 築7年(4LDK) | |||||||
![]() | 25万円 なし | 50万円 25万円 | 4LDK 110.13m2 | 築7年 | 千代田・常磐緩行線 南柏駅 徒歩9分 千葉県柏市今谷上町 | 詳細を見る | |
マンション パークシティ柏の葉キャンパスサウスフロント(3LDK/11階) | |||||||
![]() | 24万円 なし | 48万円 24万円 | 3LDK 74.85m2 | 築8年 | つくばエクスプレス 柏の葉キャンパス駅 徒歩4分 千葉県柏市若柴 | 詳細を見る | |
マンション ヴィスタガーデン柏の葉キャンパス(4LDK/7階) | |||||||
![]() | 28万円 なし | 56万円 28万円 | 4LDK 88.06m2 | 築20年 | つくばエクスプレス 柏の葉キャンパス駅 徒歩6分 千葉県柏市若柴 | 詳細を見る | |
マンション パークシティ柏の葉キャンパスサウスフロン(3LDK/11階) | |||||||
![]() | 24万円 なし | 48万円 24万円 | 3LDK 74.85m2 | 築8年 | つくばエクスプレス 柏の葉キャンパス駅 徒歩4分 千葉県柏市若柴 | 詳細を見る | |
マンション アレーズKASHIWANOHA(3LDK/3階) | |||||||
![]() | 23.5万円 1.3万円 | 11.75万円 なし | 3LDK 76.17m2 | 築1年 | つくばエクスプレス 柏の葉キャンパス駅 徒歩10分 つくばエクスプレス 柏たなか駅 徒歩21分 千葉県柏市若柴 | 詳細を見る | |
アパート ザ・ハウス天王台 ガレージハウス(1LDK/2階) | |||||||
![]() | 29.85万円 5,000円 | 29.85万円 29.85万円 | 1LDK 85.69m2 | 築2年 | JR成田線 東我孫子駅 徒歩6分 JR常磐線 天王台駅 徒歩15分 JR成田線 湖北駅 徒歩44分 千葉県我孫子市東我孫子 | 詳細を見る | |
マンション パークシティ柏の葉キャンパス ザ・ゲートタワー ウエスト(2LDK/33階) | |||||||
![]() | 24.5万円 1.5万円 | 24.5万円 なし | 2LDK 59.81m2 | 築9年 | つくばエクスプレス 柏の葉キャンパス駅 徒歩4分 千葉県柏市若柴 | 詳細を見る | |
一戸建て 常磐線 柏駅 徒歩7分 築19年(5LDK) | |||||||
![]() | 25万円 なし | 25万円 25万円 | 5LDK 134.99m2 | 築19年 | 常磐線 柏駅 徒歩7分 東武鉄道野田線 柏駅 徒歩7分 千葉県柏市旭町2丁目 | 詳細を見る | |

/105x80-f1-q70-wp1)





