賃貸マンション
ジオーブルミナスの賃貸物件情報(ワンルーム/7階)
| 家賃 | 管理費等 | 敷金 | 礼金 | 間取り | 専有面積 |
|---|---|---|---|---|---|
| 19.6万円 | 9,000円 | なし | 19.6万円 | ワンルーム | 26.95m2 |
入居決定でお祝い金最大100,000円
Point
★システムキッチン・IHコンロ★室内洗濯機置場★フローリング★エレベーター★クローゼット★シューズボックス★モニター付インターホン★オートロック★24時間ゴミ出し可能★詳細はお問い合わせ下さい!★
提供:(株)ユウキ・ホーム麻布十番サテライト店(SUUMO経由)

詳細情報 ジオーブルミナス
物件紹介
ジオーブルミナスは東京メトロ銀座線銀座駅から徒歩4分にあり、駅近で通勤通学に便利なマンションです。
このお部屋は2階以上に位置しているので、通行人や周囲の住人からの視線が気になりにくく、防犯面でも安心。建物のエントランスはオートロックがついており、インターホンにはTVモニタもついているため、相手の顔を確認してから来客対応することができます。
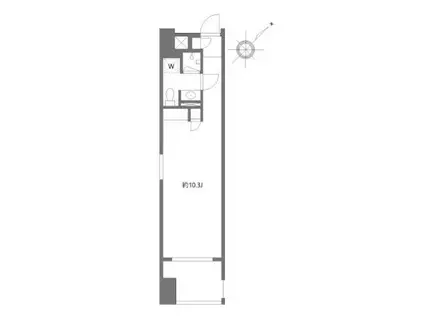
人気の南向き・フローリングのお部屋。角部屋でもあるため、周囲の居住者の生活音も気になりにくい場所です。キッチンはシステムキッチン仕様になっていますので、お料理好きの方にもぴったり。また、バス・トイレは別で、のんびりお風呂タイムも楽しめるでしょう。
通信設備面では、インターネットが無料で使えるので、月々の出費を抑えられるのも魅力です(別途工事等が必要な場合あり)。
建物にはエレベーターがついているので、重い荷物があっても安心。共用部には宅配ボックスが設定されているので、不在の時にも荷物を受け取ることができます。
このお部屋は2階以上に位置しているので、通行人や周囲の住人からの視線が気になりにくく、防犯面でも安心。建物のエントランスはオートロックがついており、インターホンにはTVモニタもついているため、相手の顔を確認してから来客対応することができます。
人気の南向き・フローリングのお部屋。角部屋でもあるため、周囲の居住者の生活音も気になりにくい場所です。キッチンはシステムキッチン仕様になっていますので、お料理好きの方にもぴったり。また、バス・トイレは別で、のんびりお風呂タイムも楽しめるでしょう。
通信設備面では、インターネットが無料で使えるので、月々の出費を抑えられるのも魅力です(別途工事等が必要な場合あり)。
建物にはエレベーターがついているので、重い荷物があっても安心。共用部には宅配ボックスが設定されているので、不在の時にも荷物を受け取ることができます。
お金・契約の情報
※「-」と表示されているものは、実際は料金が発生するものもございます。詳細はお問い合わせください。
| 家賃 | 19.6万円 | 管理費・共益費 | 9,000円 |
|---|---|---|---|
| 敷金 | なし | 礼金 | 19.6万円 |
| 入居決定でお祝い金最大100,000円 | |||
| 保証金 | - | 償却・敷引 | - |
| 住宅保険料 | - | 更新料 | - |
| 保証会社利用 | 必須 | 保証会社名 | - |
| 保証会社費用 | - | 保証会社備考 | 保証会社利用必 初回保証料:月額総賃料の100% 詳細はお問い合わせください |
| 契約形態 | 定期借家 | 契約期間 | 2年 |
| 入居・引渡期間 | 相談 | 現況 | - |
| 契約備考 | 巡回管理/短期解約違約金:1年未満2ヶ月 合計6.05万円(内訳:プレミアデスク/2年2.2万円鍵交換代3.85万円) 室内清掃費用 44000円 ワンルーム 単身者可 定期借家2年 損保【2万円2年】 バルコニー、エアコン、クロゼット、フローリング、TVインターホン、オートロック、室内洗濯置、シューズボックス、システムキッチン、南向き、角住戸、温水洗浄便座、エレベーター、宅配ボックス、敷金不要、防犯カメラ、IHクッキングヒーター、保証人不要、2沿線利用可、ネット使用料不要、全室南向き、南面リビング、全室東南向き、2駅利用可、3駅以上利用可、3沿線以上利用可、駅徒歩5分以内、駅徒歩10分以内、24時間ゴミ出し可、敷地内ごみ置き場、都市ガス、シャワールーム、保証会社利用可 | ||
部屋の情報
| 間取り | ワンルーム | 専有面積 | 26.95m2 |
|---|---|---|---|
| 所在階 / 向き | 7階 / - | バルコニー面積 | - |
| 水道 / ガス | - | ||
| 設備 | 2階以上、オートロック、テレビドアホン、宅配ボックス、インターネット対応、システムキッチン、エアコン、エレベーター、温水洗浄便座、南向き、角部屋、バルコニー、フローリング、コンロ:IH、インターネット使用料無料、洗濯機:室内 | ||
| 当社物件ID | 125275782 | ||
建物の情報
| 建物名 | ジオーブルミナス | ||
|---|---|---|---|
| 所在地 | 東京都中央区銀座 | ||
| 交通 | 東京メトロ銀座線 銀座駅 徒歩4分 都営浅草線 東銀座駅 徒歩5分 JR山手線 新橋駅 徒歩8分 | ||
| 階数 | 地下1地上13階建 | 総戸数 | - |
| 築年月 | 2006年09月 / 築20年 | エレベーター | あり |
| 駐車場 | なし | バイク置き場 | - |
| 駐輪場 | - | 管理人/管理会社 | - |
| 周辺環境 | その他 ヘルス薬局銀座店(ドラッグストア)まで163m その他 肉のハナマサ 銀座店(スーパー)まで317m その他 ファミリーマート 銀座昭和通り店(コンビニ)まで369m | ||
| 建物種別 | マンション | 建物構造 | SRC(鉄骨鉄筋コンクリート) |
この部屋の取扱い不動産会社
| 会社名 | (株)ユウキ・ホーム麻布十番網代公園店(SUUMO経由) | ||
|---|---|---|---|
| 所在地 | 東京都港区麻布十番2-19-10 桂麻布十番ビル1階 | 交通 | - |
| 営業時間 | 9:00~20:30 | 定休日 | なし |
| 免許番号 | 東京都知事76214 | 取引態様 | 仲介 |
| 不動産会社管理番号 | 100487495374 | 当社管理番号 | 89 |
| 所属団体 | (公社)東京都宅地建物取引業協会会員 | ||
| 公正取引協議会 | (公社)首都圏不動産公正取引協議会加盟 | ||
| 取扱い物件情報 | 物件詳細へ | ||
※各種情報と現状に差異がある場合は、現状優先となります。問い合わせをすることで、より詳しい条件、情報を確認する事ができます。
提供:(株)ユウキ・ホーム麻布十番網代公園店(SUUMO経由)
この物件が気になったら掲載期限まであと11日
ジオーブルミナスに条件(家賃・エリア)が近い物件一覧
| 写真 | 家賃 管理費等 | 敷金 礼金 | 間取り 専有面積 | 築年数 | 最寄り駅 所在地 | キープ | 詳細 |
|---|---|---|---|---|---|---|---|
マンション KDXレジデンス両国(1K/2階) | |||||||
![]() | 12万円 1万円 | 12万円 12万円 | 1K 25.48m2 | 築11年 | 東京都大江戸線 両国駅 徒歩5分 総武・中央緩行線 両国駅 徒歩11分 東京都墨田区亀沢2丁目 | 詳細を見る | |
マンション ルーブル墨田立花(2DK/4階) | |||||||
![]() | 15.38万円 1.62万円 | なし 15.38万円 | 2DK 41.44m2 | 築9年 | 東武鉄道亀戸線 東あずま駅 徒歩3分 総武・中央緩行線 平井駅(東京) 徒歩11分 東武鉄道亀戸線 亀戸水神駅 徒歩15分 東京都墨田区立花3丁目 | 詳細を見る | |
マンション コンフォリア台東根岸(1DK/3階) | |||||||
![]() | 12.2万円 1万円 | 12.2万円 なし | 1DK 25.56m2 | 築7年 | 東京地下鉄日比谷線 入谷駅(東京) 徒歩6分 京浜東北・根岸線 鶯谷駅 徒歩10分 山手線 上野駅 徒歩17分 東京都台東区根岸3丁目 | 詳細を見る | |
マンション シーズンフラッツ錦糸町ウエスト(1DK/3階) | |||||||
![]() | 13.5万円 1万円 | なし なし | 1DK 29.64m2 | 築4年 | 総武本線 錦糸町駅 徒歩10分 東京地下鉄半蔵門線 錦糸町駅 徒歩10分 東京都墨田区緑4丁目 | 詳細を見る | |
マンション ドゥーエ入谷2(1LDK/5階) | |||||||
![]() | 14万円 1.5万円 | なし なし | 1LDK 28.43m2 | 築3年 | 東京地下鉄日比谷線 入谷駅(東京) 徒歩3分 山手線 鶯谷駅 徒歩11分 京浜東北・根岸線 鶯谷駅 徒歩11分 東京都台東区入谷1丁目 | 詳細を見る | |
マンション 峰マンション(1SDK/2階) | |||||||
![]() | 13万円 5,000円 | 13万円 13万円 | 1SDK 37.56m2 | 築50年 | 東京地下鉄日比谷線 仲御徒町駅 徒歩6分 東京都大江戸線 新御徒町駅 徒歩7分 山手線 御徒町駅 徒歩9分 東京都台東区台東4丁目 | 詳細を見る | |
マンション メインステージ秋葉原駅前(1K/7階) | |||||||
![]() | 12万円 1.2万円 | 12万円 12万円 | 1K 22.63m2 | 築23年 | 山手線 秋葉原駅 徒歩4分 東京地下鉄千代田線 新御茶ノ水駅 徒歩7分 東京地下鉄銀座線 末広町駅(東京) 徒歩8分 東京都千代田区外神田1丁目 | 詳細を見る | |
マンション プレサンスブルーム浅草(1LDK/12階) | |||||||
![]() | 20万円 1.5万円 | 20万円 なし | 1LDK 43m2 | 築4年 | 東武伊勢崎・大師線 浅草駅(東武・都営・メトロ) 徒歩8分 東京地下鉄銀座線 浅草駅(東武・都営・メトロ) 徒歩8分 東京都浅草線 浅草駅(東武・都営・メトロ) 徒歩8分 東京都台東区浅草6丁目 | 詳細を見る | |








