賃貸マンション
パークサイド鷺沼の賃貸物件情報(2LDK/4階)
| 家賃 | 管理費等 | 敷金 | 礼金 | 間取り | 専有面積 |
|---|---|---|---|---|---|
| 11.5万円 | 3,000円 | 11.5万円 | 11.5万円 | 2LDK | 59.46m2 |
入居決定でお祝い金最大100,000円
- 保証金
- -
- 償却・敷引
- -
- 築年数
- 築34年
- 所在階
- 4階
- 向き
- 南東
Point
収納はクロゼット・シューズボックスなどが備え付けられているので、衣類や日用品の収納に重宝します。
提供:アパマンショップ菊名店

詳細情報 パークサイド鷺沼
物件紹介
パークサイド鷺沼は東急田園都市線鷺沼駅から徒歩14分にあるマンションです。
このお部屋は2階以上に位置しているので、通行人や周囲の住人からの視線が気になりにくく、防犯面でも安心。インターホンにはTVモニタもついているため、相手の顔を確認してから来客対応することができます。
こちらは楽器相談が可能な物件。楽器演奏をお考えの方はぜひ相談してみてください。人気の南向き・フローリングのお部屋。角部屋でもあるため、周囲の居住者の生活音も気になりにくい場所です。キッチンはシステムキッチン仕様になっていますので、お料理好きの方にもぴったり。また、バス・トイレは別で、のんびりお風呂タイムも楽しめるでしょう。
通信設備面では、インターネット接続が可能です。また、BSアンテナがありCATVにも対応しているので、おうち時間も充実するでしょう(別途工事、契約料が必要な場合あり)。
建物にはエレベーターがついているので、重い荷物があっても安心。
コンビニまで徒歩20分の場所にあり、日用品や食料品のお買い物にも便利です。
このお部屋は2階以上に位置しているので、通行人や周囲の住人からの視線が気になりにくく、防犯面でも安心。インターホンにはTVモニタもついているため、相手の顔を確認してから来客対応することができます。
こちらは楽器相談が可能な物件。楽器演奏をお考えの方はぜひ相談してみてください。人気の南向き・フローリングのお部屋。角部屋でもあるため、周囲の居住者の生活音も気になりにくい場所です。キッチンはシステムキッチン仕様になっていますので、お料理好きの方にもぴったり。また、バス・トイレは別で、のんびりお風呂タイムも楽しめるでしょう。
通信設備面では、インターネット接続が可能です。また、BSアンテナがありCATVにも対応しているので、おうち時間も充実するでしょう(別途工事、契約料が必要な場合あり)。
建物にはエレベーターがついているので、重い荷物があっても安心。
コンビニまで徒歩20分の場所にあり、日用品や食料品のお買い物にも便利です。
お金・契約の情報
※「-」と表示されているものは、実際は料金が発生するものもございます。詳細はお問い合わせください。
| 家賃 | 11.5万円 | 管理費・共益費 | 3,000円 |
|---|---|---|---|
| 敷金 | 11.5万円 | 礼金 | 11.5万円 |
| 入居決定でお祝い金最大100,000円 | |||
| 保証金 | - | 償却・敷引 | - |
| 住宅保険料 | 1円 | 更新料 | - |
| その他費用 | 鍵交換代:2.2万円 | ||
| 保証会社利用 | 必須 | 保証会社名 | - |
| 保証会社費用 | - | 保証会社備考 | 初回保証料:月額総賃料50% 月額保証料:月額総賃料1% |
| 契約形態 | - | 契約期間 | 2年 |
| 入居・引渡期間 | 相談 | 現況 | - |
| 入居可能条件 | 2人入居可 | ||
| 契約備考 | 鍵交換代 22000円 保証会社利用必須 初回保証料:月額総賃料50% 月額保証料:月額総賃料1% 鍵交換費用:22000 その他設備/条件:室内洗濯機置き場、独立洗面台、クローゼット、シューズボックス | ||
部屋の情報
| 間取り | 2LDK | 専有面積 | 59.46m2 |
|---|---|---|---|
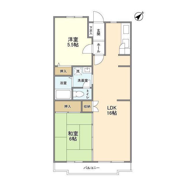
| 間取り詳細 | 和室(6帖)、洋室(5.5帖)、LDK(16帖) | ||
| 所在階 / 向き | 4階 / 南東 | バルコニー面積 | - |
| 水道 / ガス | 水道【公営】、ガス【プロパン】 | ||
| 設備 | バス・トイレ別、テレビドアホン、エアコン、エレベーター、バルコニー、フローリング、2口コンロ、BSアンテナ、シャワー、給湯、タイル張り | ||
| 当社物件ID | 2386587 | ||
建物の情報
| 建物名 | パークサイド鷺沼 | ||
|---|---|---|---|
| 所在地 | 神奈川県川崎市宮前区有馬8丁目 | ||
| 交通 | 東急田園都市線 鷺沼駅 徒歩14分 横浜市ブルーライン 中川駅(神奈川) 徒歩20分 | ||
| 階数 | 5階建 | 総戸数 | - |
| 築年月 | 1992年04月 / 築34年 | エレベーター | あり |
| 駐車場 | なし 1.43万円/月 | バイク置き場 | - |
| 駐輪場 | あり | 管理人/管理会社 | - |
| 周辺環境 | コンビニ 徒歩20分(1551m) 販売店 徒歩18分(1402m) その他 ドラッグストア その他 公園 その他 銀行 その他 * | ||
| 建物種別 | マンション | 建物構造 | RC(鉄筋コンクリート) |
この部屋の取扱い不動産会社
| 会社名 | ハウスコム東神奈川株式会社 溝の口店 | ||
|---|---|---|---|
| 所在地 | 神奈川県川崎市高津区8-1溝ノ口丸広ビル1階 | 交通 | - |
| 営業時間 | 10:00~18:00 | 定休日 | - |
| 免許番号 | 神奈川県知事(1)第31769号 | 取引態様 | 仲介 |
| 不動産会社管理番号 | HC2-5658-403-0073 | 当社管理番号 | 468 |
| 所属団体 | 、 | ||
| 取扱い物件情報 | 物件詳細へ | ||
※各種情報と現状に差異がある場合は、現状優先となります。問い合わせをすることで、より詳しい条件、情報を確認する事ができます。
提供:ハウスコム東神奈川株式会社 溝の口店
この物件が気になったら掲載期限まであと4日
パークサイド鷺沼に条件(家賃・エリア)が近い物件一覧
| 写真 | 家賃 管理費等 | 敷金 礼金 | 間取り 専有面積 | 築年数 | 最寄り駅 所在地 | キープ | 詳細 |
|---|---|---|---|---|---|---|---|
マンション LEXE AZEST横濱関内(1K/4階) | |||||||
![]() | 8.8万円 8,000円 | なし なし | 1K 24.71m2 | 築2年 | 京浜東北・根岸線 石川町駅 徒歩3分 神奈川県横浜市中区松影町1丁目 | 詳細を見る | |
マンション グリフィン新横浜・アリーナ前(1K/8階) | |||||||
![]() | 7.4万円 4,000円 | なし 7.4万円 | 1K 21.56m2 | 築25年 | JR横浜線 新横浜駅 徒歩5分 ブルーライン 北新横浜駅 徒歩17分 JR横浜線 菊名駅 徒歩18分 神奈川県横浜市港北区新横浜 | 詳細を見る | |
アパート レオパレスOTANIII(1K/2階) | |||||||
![]() | 8万円 5,500円 | なし 8万円 | 1K 23.18m2 | 築16年 | JR京浜東北線 本郷台駅 徒歩12分 JR京浜東北線 港南台駅 徒歩30分 神奈川県横浜市栄区鍛冶ケ谷 | 詳細を見る | |
マンション LE`A横濱アヴニールレアヨコハマアヴニール(1K/7階) | |||||||
![]() | 7.75万円 6,000円 | なし 7.75万円 | 1K 20.27m2 | 築8年 | 京急本線 南太田駅 徒歩4分 ブルーライン 吉野町駅 徒歩7分 京急本線 黄金町駅 徒歩10分 神奈川県横浜市南区南太田 | 詳細を見る | |
マンション リアライズ沢下町II(1K/4階) | |||||||
![]() | 5.7万円 7,000円 | なし なし | 1K 24.79m2 | 築19年 | JR東海道本線 金山駅(愛知) 徒歩7分 地下鉄名城線 西高蔵駅 徒歩17分 愛知県名古屋市熱田区沢下町 | 詳細を見る | |
マンション ポートヴィラ本牧II(2DK/2階) | |||||||
![]() | 9.6万円 3,000円 | なし 9.6万円 | 2DK 42m2 | 築24年 | JR根岸線 山手駅 徒歩23分 JR京浜東北線 山手駅 徒歩23分 みなとみらい線 元町・中華街駅 徒歩29分 神奈川県横浜市中区本牧町 | 詳細を見る | |
マンション レオパレスなかやま(1K/2階) | |||||||
![]() | 8.3万円 5,500円 | なし 8.3万円 | 1K 19.87m2 | 築21年 | 鶴見線 鶴見小野駅 徒歩3分 神奈川県横浜市鶴見区下野谷町2丁目 | 詳細を見る | |
マンション エクセリア横浜(1K/9階) | |||||||
![]() | 8.2万円 8,000円 | なし 16.4万円 | 1K 23.66m2 | 築21年 | ブルーライン 高島町駅 徒歩3分 みなとみらい線 新高島駅 徒歩7分 JR京浜東北線 横浜駅 徒歩8分 神奈川県横浜市西区高島 | 詳細を見る | |








