賃貸マンション
サンライフ勝山公園セントラルシティの賃貸物件情報(3LDK/5階)
| 家賃 | 管理費等 | 敷金 | 礼金 | 間取り | 専有面積 |
|---|---|---|---|---|---|
| 17万円 | なし | 17万円 | 34万円 | 3LDK | 77.19m2 |
入居決定でお祝い金最大100,000円
- 保証金
- -
- 償却・敷引
- 17万円
- 築年数
- 築10年
- 所在階
- 5階
- 向き
- 南
Point
★タウンハウジングはLINE&チャット対応でお手軽にスムーズな物件探しが可能★掲載しきれない他の写真もLINEでお届けできます★土日祝日対応★
提供:(株)タウンハウジング福岡小倉店(SUUMO経由)

詳細情報 サンライフ勝山公園セントラルシティ
物件紹介
サンライフ勝山公園セントラルシティは北九州モノレール旦過駅から徒歩13分にあるマンションです。
このお部屋は2階以上に位置しているので、通行人や周囲の住人からの視線が気になりにくく、防犯面でも安心。建物のエントランスはオートロックがついており、インターホンにはTVモニタもついているため、相手の顔を確認してから来客対応することができます。
人気の南向き・フローリングのお部屋。室内にはウォークインクローゼットがありますので、たくさんの荷物も効率的に収納ができます。キッチンはシステムキッチン仕様になっていますので、お料理好きの方にもぴったり。また、バス・トイレは別で、のんびりお風呂タイムも楽しめるでしょう。
通信設備面では、インターネット接続が可能です(別途工事、契約料が必要な場合あり)。
このお部屋は2階以上に位置しているので、通行人や周囲の住人からの視線が気になりにくく、防犯面でも安心。建物のエントランスはオートロックがついており、インターホンにはTVモニタもついているため、相手の顔を確認してから来客対応することができます。
人気の南向き・フローリングのお部屋。室内にはウォークインクローゼットがありますので、たくさんの荷物も効率的に収納ができます。キッチンはシステムキッチン仕様になっていますので、お料理好きの方にもぴったり。また、バス・トイレは別で、のんびりお風呂タイムも楽しめるでしょう。
通信設備面では、インターネット接続が可能です(別途工事、契約料が必要な場合あり)。
お金・契約の情報
※「-」と表示されているものは、実際は料金が発生するものもございます。詳細はお問い合わせください。
| 家賃 | 17万円 | 管理費・共益費 | なし |
|---|---|---|---|
| 敷金 | 17万円 | 礼金 | 34万円 |
| 入居決定でお祝い金最大100,000円 | |||
| 保証金 | - | 償却・敷引 | 17万円 |
| 住宅保険料 | - | 更新料 | - |
| 保証会社利用 | 必須 | 保証会社名 | - |
| 保証会社費用 | - | 保証会社備考 | 保証会社利用必 シーアイゼット賃料等の77%+1,100円 |
| 契約形態 | - | 契約期間 | - |
| 入居・引渡期間 | - | 現況 | - |
| 契約備考 | ★2025年11月から福岡県内3店舗目としてオープンしました。全国で直営約140店舗あり地域に密着したお部屋探しをサポートしています。お部屋探しはグループ創業46年の実績と安心のタウンハウジングにお任せください。年間には7万件以上の仲介実績を持つなど幅広い不動産ニーズに対応しています★ 3LDK 普通借家2年 損保【2.5万円2年】 バストイレ別、バルコニー、ガスコンロ対応、クロゼット、フローリング、TVインターホン、オートロック、室内洗濯置、シューズボックス、システムキッチン、南向き、追焚機能浴室、脱衣所、洗面所独立、洗面化粧台、光ファイバー、3口以上コンロ、対面式キッチン、駐車場1台無料、分譲賃貸、グリル付、ウォークインクロゼット、敷金1ヶ月、全居室フローリング、玄関ホール、2沿線利用可、LDK15畳以上、ネット専用回線、保証金不要、3駅以上利用可、敷地内ごみ置き場、南面バルコニー、高速ネット対応、礼金2ヶ月、IT重説対応物件、初期費用カード決済可 入居日:'26年4月中旬 | ||
部屋の情報
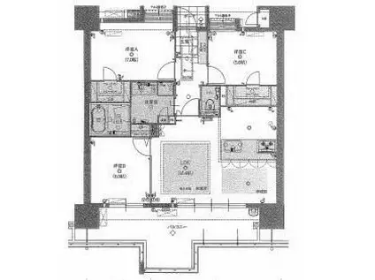
| 間取り | 3LDK | 専有面積 | 77.19m2 |
|---|---|---|---|
| 所在階 / 向き | 5階 / 南 | バルコニー面積 | 18m2 |
| 水道 / ガス | - | ||
| 設備 | バス・トイレ別、2階以上、オートロック、テレビドアホン、ウォークインクローゼット、追い焚き、インターネット対応、システムキッチン、南向き、バルコニー、フローリング、洗髪洗面化粧台、2口コンロ、コンロ:ガス、洗濯機:室内 | ||
| 当社物件ID | 26030825 | ||
建物の情報
| 建物名 | サンライフ勝山公園セントラルシティ | ||
|---|---|---|---|
| 所在地 | 福岡県北九州市小倉北区大手町 | ||
| 交通 | 北九州モノレール 旦過駅 徒歩13分 JR日豊本線 西小倉駅 徒歩14分 北九州モノレール 平和通駅 徒歩15分 | ||
| 階数 | 14階建 | 総戸数 | 74戸 |
| 築年月 | 2016年11月 / 築10年 | エレベーター | - |
| 駐車場 | 空有 付無料 | バイク置き場 | - |
| 駐輪場 | - | 管理人/管理会社 | - |
| 周辺環境 | その他 サンリブ西小倉(ショッピングセンター)まで930m その他 リバーウォーク北九州(ショッピングセンター)まで1040m その他 ハローデイハローパーク大手町店(スーパー)まで650m その他 スピナマート大手町店(スーパー)まで830m その他 ローソン小倉田町店(コンビニ)まで660m その他 マツモトキヨシスピナガーデン大手町店(ドラッグストア)まで830m | ||
| 建物種別 | マンション | 建物構造 | RC(鉄筋コンクリート) |
この部屋の取扱い不動産会社
| 会社名 | (株)タウンハウジング福岡小倉店(SUUMO経由) | ||
|---|---|---|---|
| 所在地 | 福岡県北九州市小倉北区室町2-2-4 アヴィニールビル1階 | 交通 | - |
| 営業時間 | AM9:00~PM18:00 | 定休日 | 毎週水曜日 |
| 免許番号 | 福岡県知事18888 | 取引態様 | 仲介 |
| 不動産会社管理番号 | 100488787341 | 当社管理番号 | 89 |
| 取扱い物件情報 | 物件詳細へ | ||
※各種情報と現状に差異がある場合は、現状優先となります。問い合わせをすることで、より詳しい条件、情報を確認する事ができます。
提供:(株)タウンハウジング福岡小倉店(SUUMO経由)
この物件が気になったら掲載期限まであと10日
サンライフ勝山公園セントラルシティに条件(家賃・エリア)が近い物件一覧
| 写真 | 家賃 管理費等 | 敷金 礼金 | 間取り 専有面積 | 築年数 | 最寄り駅 所在地 | キープ | 詳細 |
|---|---|---|---|---|---|---|---|
マンション MYS CASETTA KOKURA -ミースカセッタ小倉-(2LDK/12階) | |||||||
![]() | 13.4万円 7,000円 | なし 13.4万円 | 2LDK 60.17m2 | 築1年 | 鹿児島本線 小倉駅(福岡) 徒歩6分 鹿児島本線 西小倉駅 徒歩7分 北九州高速鉄道 平和通駅 徒歩7分 福岡県北九州市小倉北区浅野2丁目 | 詳細を見る | |
マンション プリメイロ パッソ(3LDK/8階) | |||||||
![]() | 12万円 4,500円 | なし なし | 3LDK 82.56m2 | 築5年 | 北九州高速鉄道 旦過駅 徒歩17分 北九州高速鉄道 香春口三萩野駅 徒歩20分 福岡県北九州市小倉北区大田町 | 詳細を見る | |
マンション フローリィ279(2LDK/7階) | |||||||
![]() | 10.75万円 7,000円 | なし 10.75万円 | 2LDK 52.07m2 | 築1年 | 北九州高速鉄道 平和通駅 徒歩6分 北九州高速鉄道 旦過駅 徒歩7分 鹿児島本線 小倉駅(福岡) 徒歩14分 福岡県北九州市小倉北区中津口1丁目 | 詳細を見る | |
マンション フェルト515(2LDK/9階) | |||||||
![]() | 11.5万円 5,000円 | 23万円 なし | 2LDK 64.03m2 | 築19年 | 鹿児島本線 西小倉駅 徒歩5分 鹿児島本線 小倉駅(福岡) 徒歩10分 北九州高速鉄道 平和通駅 徒歩10分 福岡県北九州市小倉北区室町2丁目 | 詳細を見る | |
アパート アピアランス中井(2LDK/2階) | |||||||
![]() | 12.8万円 3,200円 | なし 25.6万円 | 2LDK 62.81m2 | 築1年 | 鹿児島本線 九州工大前駅 徒歩18分 鹿児島本線 西小倉駅 徒歩30分 福岡県北九州市小倉北区 | 詳細を見る | |
マンション 小倉D.C.TOWER(2LDK/24階) | |||||||
![]() | 22万円 なし | 22万円 44万円 | 2LDK 74.47m2 | 築16年 | 鹿児島本線 西小倉駅 徒歩2分 鹿児島本線 小倉駅(福岡) 徒歩9分 福岡県北九州市小倉北区室町2丁目 | 詳細を見る | |
アパート シャーメゾンステージ青葉(3LDK/1階) | |||||||
![]() | 16.5万円 6,000円 | なし 33万円 | 3LDK 75.89m2 | 築3年 | 鹿児島本線 西小倉駅 徒歩13分 北九州高速鉄道 平和通駅 徒歩23分 鹿児島本線 小倉駅(福岡) 徒歩25分 福岡県北九州市小倉北区青葉2丁目 | 詳細を見る | |
マンション グランドパレスロイヤルコート大手町(2LDK/8階) | |||||||
![]() | 12.8万円 なし | なし 25.6万円 | 2LDK 78.78m2 | 築28年 | 日豊本線 南小倉駅 徒歩12分 北九州高速鉄道 香春口三萩野駅 徒歩18分 鹿児島本線 西小倉駅 徒歩20分 福岡県北九州市小倉北区大手町 | 詳細を見る | |









