賃貸マンション
プライムメゾン江古田の杜ウエストの賃貸物件情報(2LDK/3階)
| 家賃 | 管理費等 | 敷金 | 礼金 | 間取り | 専有面積 |
|---|---|---|---|---|---|
| 22万円 | 1.5万円 | 22万円 | なし | 2LDK | 55.06m2 |
入居決定でお祝い金最大100,000円
- 保証金
- -
- 償却・敷引
- -
- 築年数
- 築8年
- 所在階
- 3階
- 向き
- 南
Point
内見可。礼金0、フリーレント1ヶ月、仲介手数料無料。キッズスペース、多目的ルーム、スタジオ、食堂、ゲストルーム等の充実した共用スペース。レンタサイクルの利用も可能。
提供:シャーメゾンショップ (株)イチイ高田馬場店(SUUMO経由)

詳細情報 プライムメゾン江古田の杜ウエスト
物件紹介
プライムメゾン江古田の杜ウエストは都営大江戸線新江古田駅から徒歩10分にあり、駅近で通勤通学に便利なマンションです。
このお部屋は2階以上に位置しているので、通行人や周囲の住人からの視線が気になりにくく、防犯面でも安心。建物のエントランスはオートロックがついており、インターホンにはTVモニタもついているため、相手の顔を確認してから来客対応することができます。
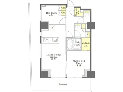
人気の南向き・フローリングのお部屋。室内にはウォークインクローゼットがありますので、たくさんの荷物も効率的に収納ができます。キッチンはシステムキッチン仕様になっていますので、お料理好きの方にもぴったり。バス・トイレは別なので、のんびりお風呂タイムも楽しめるでしょう。また、雨の日でも浴室乾燥機を使えば、お洗濯も問題ありません。
通信設備面では、インターネットが無料で使えるので、月々の出費を抑えられるのも魅力です。また、CATVにも対応しているので、おうち時間も充実するでしょう(別途工事、CATVの契約料等が必要な場合あり)。
床暖房があり、冬も足元から暖かく快適に過ごすことができます。建物にはエレベーターがついているので、重い荷物があっても安心。共用部には宅配ボックスが設定されているので、不在の時にも荷物を受け取ることができます。
このお部屋は2階以上に位置しているので、通行人や周囲の住人からの視線が気になりにくく、防犯面でも安心。建物のエントランスはオートロックがついており、インターホンにはTVモニタもついているため、相手の顔を確認してから来客対応することができます。
人気の南向き・フローリングのお部屋。室内にはウォークインクローゼットがありますので、たくさんの荷物も効率的に収納ができます。キッチンはシステムキッチン仕様になっていますので、お料理好きの方にもぴったり。バス・トイレは別なので、のんびりお風呂タイムも楽しめるでしょう。また、雨の日でも浴室乾燥機を使えば、お洗濯も問題ありません。
通信設備面では、インターネットが無料で使えるので、月々の出費を抑えられるのも魅力です。また、CATVにも対応しているので、おうち時間も充実するでしょう(別途工事、CATVの契約料等が必要な場合あり)。
床暖房があり、冬も足元から暖かく快適に過ごすことができます。建物にはエレベーターがついているので、重い荷物があっても安心。共用部には宅配ボックスが設定されているので、不在の時にも荷物を受け取ることができます。
お金・契約の情報
※「-」と表示されているものは、実際は料金が発生するものもございます。詳細はお問い合わせください。
| 家賃 | 22万円 | 管理費・共益費 | 1.5万円 |
|---|---|---|---|
| 敷金 | 22万円 | 礼金 | なし |
| フリーレント | あり | ||
| 入居決定でお祝い金最大100,000円 | |||
| 保証金 | - | 償却・敷引 | - |
| 住宅保険料 | - | 更新料 | - |
| 保証会社利用 | 必須 | 保証会社名 | - |
| 保証会社費用 | - | 保証会社備考 | 保証会社利用必 【らくらくパートナー(オリコ)】 契約事務手数料:33000円(入居後、初回家賃引き落とし時) 継続保証料:(賃料+管理費+シャーメゾンライフSUPPORT24)×2%/月 ※法人契約の場合は個別にご相談ください。 |
| 契約形態 | 定期借家 | 契約期間 | 2年 |
| 入居・引渡期間 | 即時 | 現況 | - |
| 契約備考 | 常駐管理/江古田の杜リブインラボ協議会費として月額200円ご負担いただきます(契約期間分一括払い、中途解約による返戻金無し)。シャーメゾンライフSUPPORT24加入費として月額1320円かかります。退室時、借主様にハウスクリーニング代として92180円(税込)をご負担いただきます。再契約時には、礼金として新賃料の1ヶ月分がかかります。短期解約違約金設定有り(1年未満で解約の場合、賃料の1ヶ月分)。 合計2.75万円(内訳:鍵交換代2.75万円) 室内清掃費用 92180円 シャーメゾンライフSUPPORT 月額1320円 2LDK 二人入居可/子供可/事務所利用不可/フリーレント1ヶ月管理費は対象外。契約開始から1年以内に解約の場合は、免除された賃料と同額の違約金支払い発生。 定期借家2年 損保【要】 バストイレ別、バルコニー、エアコン、ガスコンロ対応、クロゼット、TVインターホン、浴室乾燥機、オートロック、室内洗濯置、陽当り良好、システムキッチン、南向き、追焚機能浴室、温水洗浄便座、脱衣所、洗面所独立、洗面化粧台、駐輪場、宅配ボックス、CATV、光ファイバー、即入居可、礼金不要、3口以上コンロ、防犯カメラ、グリル付、全居室洋室、ウォークインクロゼット、保証人不要、仲介手数料不要、敷金1ヶ月、バイク置場、全居室フローリング、2面バルコニー、ディンプルキー、ネット使用料不要、フリーレント、エアコン全室、ダブルロックキー、24時間換気システム、複層ガラス、エアコン3台、フロントサービス、ミストサウナ、エレベーター2基、3駅以上利用可、3沿線以上利用可、ゲストルーム、風除室、敷地内ごみ置き場、来客用パーキング、当社管理物件、LDK12畳以上、都市ガス、洗面所にドア、L字型バルコニー、シューズWIC、保証会社利用可、IT重説対応物件、初期費用カード決済可 | ||
部屋の情報
| 間取り | 2LDK | 専有面積 | 55.06m2 |
|---|---|---|---|
| 所在階 / 向き | 3階 / 南 | バルコニー面積 | - |
| 水道 / ガス | - | ||
| 設備 | バス・トイレ別、2階以上、オートロック、テレビドアホン、宅配ボックス、浴室乾燥機、ウォークインクローゼット、追い焚き、インターネット対応、システムキッチン、エアコン、エレベーター、温水洗浄便座、南向き、バルコニー、フローリング、洗髪洗面化粧台、2口コンロ、コンロ:ガス、CATV、インターネット使用料無料、洗濯機:室内 | ||
| 当社物件ID | 28035155 | ||
建物の情報
| 建物名 | プライムメゾン江古田の杜ウエスト | ||
|---|---|---|---|
| 所在地 | 東京都中野区江古田 | ||
| 交通 | 都営大江戸線 新江古田駅 徒歩11分 西武新宿線 沼袋駅 徒歩15分 JR中央線 中野駅(東京) バス乗車時間:22分 最寄りバス停で下車 徒歩2分 | ||
| 階数 | 9階建 | 総戸数 | 88戸 |
| 築年月 | 2018年08月 / 築8年 | エレベーター | あり |
| 駐車場 | 空有 33000円/機械式駐 | バイク置き場 | あり |
| 駐輪場 | あり | 管理人/管理会社 | - |
| 周辺環境 | その他 どらっぐぱぱす 新江古田駅前店(ドラッグストア)まで817m その他 オーケー 豊玉南店(スーパー)まで514m その他 コモディイイダ 沼袋店(スーパー)まで681m その他 サミットストア 江原町店(スーパー)まで604m その他 マルマンストア 江古田店(スーパー)まで291m その他 江古田の森公園(公園)まで169m | ||
| 建物種別 | マンション | 建物構造 | RC(鉄筋コンクリート) |
この部屋の取扱い不動産会社
| 会社名 | (株)イチイ国際部(SUUMO経由) | ||
|---|---|---|---|
| 所在地 | 東京都新宿区高田馬場2-2-3 ハードビル1階 | 交通 | - |
| 営業時間 | 10:00~18:30 | 定休日 | 水曜、第1・第2・第3火曜 |
| 免許番号 | 東京都知事39368 | 取引態様 | 仲介 |
| 不動産会社管理番号 | 100488162896 | 当社管理番号 | 89 |
| 所属団体 | (公社)全日本不動産協会東京都本部会員 | ||
| 公正取引協議会 | (公社)首都圏不動産公正取引協議会加盟 | ||
| 取扱い物件情報 | 物件詳細へ | ||
※各種情報と現状に差異がある場合は、現状優先となります。問い合わせをすることで、より詳しい条件、情報を確認する事ができます。
提供:(株)イチイ国際部(SUUMO経由)
この物件が気になったら掲載期限まであと11日
プライムメゾン江古田の杜ウエストに条件(家賃・エリア)が近い物件一覧
| 写真 | 家賃 管理費等 | 敷金 礼金 | 間取り 専有面積 | 築年数 | 最寄り駅 所在地 | キープ | 詳細 |
|---|---|---|---|---|---|---|---|
マンション コンフォール(1LDK/3階) | |||||||
![]() | 13.4万円 4,000円 | 6.7万円 20.1万円 | 1LDK 42.6m2 | 築18年 | 京王井の頭線 永福町駅 徒歩10分 東京メトロ丸ノ内線 方南町駅 徒歩15分 京王井の頭線 西永福駅 徒歩16分 東京都杉並区大宮 | 詳細を見る | |
マンション ルフォンプログレ高田馬場ノース(2LDK/2階) | |||||||
![]() | 31.2万円 2万円 | 31.2万円 なし | 2LDK 50.35m2 | 築1年 | 西武新宿線 下落合駅(東京) 徒歩5分 東京メトロ東西線 高田馬場駅 徒歩10分 JR山手線 高田馬場駅 徒歩10分 東京都新宿区高田馬場 | 詳細を見る | |
マンション エスタート新宿(1K/5階) | |||||||
![]() | 15.3万円 8,000円 | 15.3万円 なし | 1K 25.01m2 | 築11年 | 京王新線 初台駅 徒歩6分 JR山手線 新宿駅 徒歩10分 都営大江戸線 都庁前駅 徒歩11分 東京都新宿区西新宿 | 詳細を見る | |
マンション AGLAIA 新宿西落合(1LDK/1階) | |||||||
![]() | 14.5万円 2万円 | 14.5万円 なし | 1LDK 30.02m2 | 築1年 | 東京都大江戸線 落合南長崎駅 徒歩4分 東京都新宿区西落合1丁目 | 詳細を見る | |
マンション ロイジェント井荻C棟(1LDK/3階) | |||||||
![]() | 15万円 6,000円 | なし 30万円 | 1LDK 40.55m2 | 築5年 | 西武新宿線 井荻駅 徒歩5分 西武新宿線 下井草駅 徒歩13分 西武新宿線 上井草駅 徒歩15分 東京都杉並区井草 | 詳細を見る | |
マンション メゾンカルム市谷仲之町(1LDK/2階) | |||||||
![]() | 22.2万円 8,000円 | 22.2万円 22.2万円 | 1LDK 43.06m2 | 築10年 | 都営新宿線 曙橋駅 徒歩5分 都営大江戸線 牛込柳町駅 徒歩9分 東京メトロ丸ノ内線 四谷三丁目駅 徒歩13分 東京都新宿区市谷仲之町 | 詳細を見る | |
マンション アルス恵比寿メイクス(ワンルーム/7階) | |||||||
![]() | 21万円 なし | 21万円 なし | ワンルーム 31.27m2 | 築25年 | JR山手線 恵比寿駅 徒歩3分 東急東横線 代官山駅 徒歩8分 東急東横線 中目黒駅 徒歩16分 東京都渋谷区恵比寿西 | 詳細を見る | |
マンション ミーレ高井戸(1LDK/2階) | |||||||
![]() | 15.6万円 6,000円 | 15.6万円 7.8万円 | 1LDK 40.26m2 | 築3年 | 京王井の頭線 高井戸駅 徒歩7分 京王井の頭線 富士見ケ丘駅 徒歩15分 京王線 八幡山駅 徒歩17分 東京都杉並区高井戸東 | 詳細を見る | |





/105x80-f1-q70-wp1)



