賃貸マンション
アクティ汐留の賃貸物件情報(2LDK/35階)
| 家賃 | 管理費等 | 敷金 | 礼金 | 間取り | 専有面積 |
|---|---|---|---|---|---|
| 39.3万円 | 1.1万円 | 39.3万円 | 78.6万円 | 2LDK | 89.22m2 |
入居決定でお祝い金最大100,000円
Point
まずはお問い合わせ!
不動産会社は街のプロ、あなたに合った物件がきっと見つかります。
提供:アパマンショップ五反田店

詳細情報 アクティ汐留
物件紹介
アクティ汐留は山手線浜松町駅から徒歩3分にあり、駅近で通勤通学に便利なマンションです。
このお部屋は2階以上に位置しているので、通行人や周囲の住人からの視線が気になりにくく、防犯面でも安心。建物のエントランスはオートロックがついており、インターホンにはTVモニタもついているため、相手の顔を確認してから来客対応することができます。
人気の南向き・フローリングのお部屋。角部屋でもあるため、周囲の居住者の生活音も気になりにくい場所です。キッチンはシステムキッチン仕様になっていますので、お料理好きの方にもぴったり。バス・トイレは別なので、のんびりお風呂タイムも楽しめるでしょう。また、雨の日でも浴室乾燥機を使えば、お洗濯も問題ありません。
通信設備面では、インターネット接続が可能です。また、CSアンテナがありCATVにも対応しているので、おうち時間も充実するでしょう(別途工事、契約料が必要な場合あり)。
建物にはエレベーターがついているので、重い荷物があっても安心。共用部には宅配ボックスが設定されているので、不在の時にも荷物を受け取ることができます。
コンビニまで徒歩25分の場所にあり、日用品や食料品のお買い物にも便利です。
このお部屋は2階以上に位置しているので、通行人や周囲の住人からの視線が気になりにくく、防犯面でも安心。建物のエントランスはオートロックがついており、インターホンにはTVモニタもついているため、相手の顔を確認してから来客対応することができます。
人気の南向き・フローリングのお部屋。角部屋でもあるため、周囲の居住者の生活音も気になりにくい場所です。キッチンはシステムキッチン仕様になっていますので、お料理好きの方にもぴったり。バス・トイレは別なので、のんびりお風呂タイムも楽しめるでしょう。また、雨の日でも浴室乾燥機を使えば、お洗濯も問題ありません。
通信設備面では、インターネット接続が可能です。また、CSアンテナがありCATVにも対応しているので、おうち時間も充実するでしょう(別途工事、契約料が必要な場合あり)。
建物にはエレベーターがついているので、重い荷物があっても安心。共用部には宅配ボックスが設定されているので、不在の時にも荷物を受け取ることができます。
コンビニまで徒歩25分の場所にあり、日用品や食料品のお買い物にも便利です。
お金・契約の情報
※「-」と表示されているものは、実際は料金が発生するものもございます。詳細はお問い合わせください。
| 家賃 | 39.3万円 | 管理費・共益費 | 1.1万円 |
|---|---|---|---|
| 敷金 | 39.3万円 | 礼金 | 78.6万円 |
| 入居決定でお祝い金最大100,000円 | |||
| 保証金 | - | 償却・敷引 | - |
| 住宅保険料 | 2.4万円(2年) | 更新料 | - |
| 保証会社利用 | 必須 | 保証会社名 | その他 |
| 保証会社費用 | - | 保証会社備考 | 加入料:総賃料(賃料+共益費+駐輪料)の50% 更新料:1年ごとに総賃料の25%利用設備(駐車場・バ |
| 契約形態 | - | 契約期間 | 2年 |
| 入居・引渡期間 | 相談 | 現況 | - |
| 契約備考 | 床暖房使用料 220円/鍵発行手数料 22000円/床暖房初回登録料 1100円、[退去時費用:退去時費用 56,100円 ※故意・過失等別途実費] | ||
部屋の情報
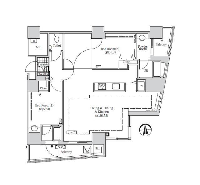
| 間取り | 2LDK | 専有面積 | 89.22m2 |
|---|---|---|---|
| 所在階 / 向き | 35階 / 南 | バルコニー面積 | 3m2 |
| 水道 / ガス | ガス【都市】 | ||
| 設備 | バス・トイレ別、オートロック、テレビドアホン、宅配ボックス、浴室乾燥機、追い焚き、光ファイバー対応、システムキッチン、温水洗浄便座、角部屋、バルコニー、フローリング、コンロ:IH、CATV、CSアンテナ、洗濯機:室内 | ||
| 当社物件ID | 11378571 | ||
建物の情報
| 建物名 | アクティ汐留 | ||
|---|---|---|---|
| 所在地 | 東京都港区海岸1丁目 | ||
| 交通 | 山手線 浜松町駅 徒歩3分 | ||
| 階数 | 56階建 | 総戸数 | 683戸 |
| 築年月 | 2004年02月 / 築22年 | エレベーター | - |
| 駐車場 | 空有 7.7万円/月 | バイク置き場 | あり |
| 駐輪場 | あり | 管理人/管理会社 | - |
| 周辺環境 | 小学校 京橋築地小学校 徒歩25分(1927m) その他 芝一郵便局 徒歩18分(1418m) その他 セブンイレブン 徒歩27分(2142m) その他 (株)りそな銀行/田町支店 徒歩25分(1979m) その他 セブンイレブン 徒歩28分(2217m) その他 ファミリーマート 田町駅北店 徒歩26分(2065m) その他 築地本願寺心の電話 徒歩26分(2012m) その他 ファミリーマート築地本願寺前店 徒歩24分(1904m) | ||
| 建物種別 | マンション | 建物構造 | RC(鉄筋コンクリート) |
この部屋の取扱い不動産会社
| 会社名 | アパマンショップ目黒西口店 | ||
|---|---|---|---|
| 所在地 | 東京都品川区上大崎2丁目 27-1サンフェリスタ目黒1F | 交通 | 山手線目黒から徒歩1分 |
| 営業時間 | 10:00〜19:00(オンライン接客・内見可能) | 定休日 | 水曜日 |
| 免許番号 | 国土交通大臣(5)6971 | 取引態様 | 仲介 |
| 不動産会社管理番号 | 111580954 | 当社管理番号 | 4 |
| 所属団体 | (公社)東京都宅地建物取引協会 | ||
| 公正取引協議会 | (公社) 首都圏不動産公正取引協議会加盟 | ||
| 取扱い物件情報 | 物件詳細へ | ||
※各種情報と現状に差異がある場合は、現状優先となります。問い合わせをすることで、より詳しい条件、情報を確認する事ができます。
提供:アパマンショップ目黒西口店
この物件が気になったら掲載期限まであと13日
アクティ汐留に条件(家賃・エリア)が近い物件一覧
| 写真 | 家賃 管理費等 | 敷金 礼金 | 間取り 専有面積 | 築年数 | 最寄り駅 所在地 | キープ | 詳細 |
|---|---|---|---|---|---|---|---|
一戸建て 東京地下鉄東西線 木場駅 徒歩7分 築10年(2LDK) | |||||||
![]() | 24万円 なし | 48万円 24万円 | 2LDK 70.43m2 | 築10年 | 東京地下鉄東西線 木場駅 徒歩7分 東京都大江戸線 門前仲町駅 徒歩17分 京葉線 越中島駅 徒歩19分 東京都江東区木場6丁目 | 詳細を見る | |
アパート 御殿山テラスⅡ(2LDK/1階) | |||||||
![]() | 23.9万円 3,000円 | 23.9万円 なし | 2LDK 57.6m2 | 築2年 | 山手線 大崎駅 徒歩8分 京浜急行電鉄本線 北品川駅 徒歩14分 東京都品川区北品川5丁目 | 詳細を見る | |
マンション リージア大井町(1LDK/13階) | |||||||
![]() | 24万円 1.5万円 | 24万円 なし | 1LDK 40.03m2 | 築3年 | JR京浜東北線 大井町駅 徒歩4分 京急本線 立会川駅 徒歩15分 東急大井町線 下神明駅 徒歩16分 東京都品川区大井 | 詳細を見る | |
マンション プラウド東陽町サウス(3LDK/3階) | |||||||
![]() | 28万円 なし | 56万円 28万円 | 3LDK 73.73m2 | 築8年 | 東京地下鉄東西線 東陽町駅 徒歩4分 東京都江東区東陽2丁目 | 詳細を見る | |




