賃貸アパート
メゾンシノダの賃貸物件情報(2DK/2階)
| 家賃 | 管理費等 | 敷金 | 礼金 | 間取り | 専有面積 |
|---|---|---|---|---|---|
| 6万円 | なし | 12万円 | 6万円 | 2DK | 38m2 |
入居決定でお祝い金最大100,000円
Point
駅北口徒歩15分、南側駐車場なので日当たり良好です。2台目駐車場相談可
提供:シャーメゾンショップ (有)鈴木商事(SUUMO経由)

詳細情報 メゾンシノダ
物件紹介
メゾンシノダはJR東海道本線茅ケ崎駅から徒歩15分にあるアパートです。
このお部屋は2階以上に位置しているので、通行人や周囲の住人からの視線が気になりにくく、防犯面でも安心です。
人気の南向きのお部屋。バス・トイレ別の仕様で、のんびりお風呂タイムも楽しめます。
通信設備面ではCATVに対応しているので、おうち時間も充実するでしょう(別途工事、契約料が必要な場合あり)。
このお部屋は2階以上に位置しているので、通行人や周囲の住人からの視線が気になりにくく、防犯面でも安心です。
人気の南向きのお部屋。バス・トイレ別の仕様で、のんびりお風呂タイムも楽しめます。
通信設備面ではCATVに対応しているので、おうち時間も充実するでしょう(別途工事、契約料が必要な場合あり)。
お金・契約の情報
※「-」と表示されているものは、実際は料金が発生するものもございます。詳細はお問い合わせください。
| 家賃 | 6万円 | 管理費・共益費 | なし |
|---|---|---|---|
| 敷金 | 12万円 | 礼金 | 6万円 |
| 入居決定でお祝い金最大100,000円 | |||
| 保証金 | - | 償却・敷引 | - |
| 住宅保険料 | - | 更新料 | - |
| 保証会社利用 | 必須 | 保証会社名 | - |
| 保証会社費用 | - | 保証会社備考 | 保証会社利用必 アーク賃貸保証 初回保証料、月額支払い総額の40%、年間保証料1万円 他にも保証プランがございます。 |
| 契約形態 | - | 契約期間 | - |
| 入居・引渡期間 | 即時 | 現況 | - |
| 契約備考 | フレスポ茅ヶ崎まで904m/セブンイレブン茅ケ崎十間坂店まで152m 2DK 損保【1.5万円2年】 バストイレ別、バルコニー、ガスコンロ対応、室内洗濯置、陽当り良好、南向き、温水洗浄便座、2口コンロ、CATV、即入居可、最上階、駅まで平坦、都市ガス、通風良好 | ||
部屋の情報
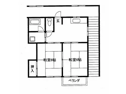
| 間取り | 2DK | 専有面積 | 38m2 |
|---|---|---|---|
| 所在階 / 向き | 2階 / 南 | バルコニー面積 | - |
| 水道 / ガス | - | ||
| 設備 | バス・トイレ別、2階以上、温水洗浄便座、南向き、バルコニー、2口コンロ、コンロ:ガス、CATV、洗濯機:室内 | ||
| 当社物件ID | 118294761 | ||
建物の情報
| 建物名 | メゾンシノダ | ||
|---|---|---|---|
| 所在地 | 神奈川県茅ヶ崎市十間坂 | ||
| 交通 | JR東海道本線 茅ケ崎駅 徒歩15分 | ||
| 階数 | 2階建 | 総戸数 | - |
| 築年月 | 1986年01月 / 築41年 | エレベーター | - |
| 駐車場 | 空有 8000円 | バイク置き場 | - |
| 駐輪場 | - | 管理人/管理会社 | - |
| 周辺環境 | その他 すき家1国茅ヶ崎十間坂店(飲食店)まで419m その他 イトーヨーカドー茅ヶ崎店(スーパー)まで961m その他 セブンイレブン茅ケ崎十間坂店(コンビニ)まで152m その他 フレスポ茅ヶ崎(ショッピングセンター)まで904m その他 茅ヶ崎茶屋町郵便局(郵便局)まで315m | ||
| 建物種別 | アパート | 建物構造 | 木造 |
この部屋の取扱い不動産会社
| 会社名 | シャーメゾンショップ (有)鈴木商事(SUUMO経由) | ||
|---|---|---|---|
| 所在地 | 神奈川県茅ヶ崎市元町 4-38 | 交通 | - |
| 営業時間 | AM10:00~PM6:00 | 定休日 | 火曜日、水曜日 |
| 免許番号 | 神奈川県知事2263 | 取引態様 | 仲介 |
| 不動産会社管理番号 | 100274138443 | 当社管理番号 | 89 |
| 所属団体 | (公社)神奈川県宅地建物取引業協会会員 | ||
| 公正取引協議会 | (公社)首都圏不動産公正取引協議会加盟 | ||
| 取扱い物件情報 | 物件詳細へ | ||
※各種情報と現状に差異がある場合は、現状優先となります。問い合わせをすることで、より詳しい条件、情報を確認する事ができます。
提供:シャーメゾンショップ (有)鈴木商事(SUUMO経由)
この物件が気になったら掲載期限まであと9日
メゾンシノダに条件(家賃・エリア)が近い物件一覧
| 写真 | 家賃 管理費等 | 敷金 礼金 | 間取り 専有面積 | 築年数 | 最寄り駅 所在地 | キープ | 詳細 |
|---|---|---|---|---|---|---|---|
マンション 茅ケ崎シーサイドパレス(ワンルーム/5階) | |||||||
![]() | 7.6万円 3,000円 | 7.6万円 7.6万円 | ワンルーム 30.8m2 | 築60年 | JR東海道本線 茅ケ崎駅 徒歩22分 神奈川県茅ヶ崎市中海岸 | 詳細を見る | |
アパート レオパレスSTUDIO 71(1K/1階) | |||||||
![]() | 3.6万円 5,000円 | なし なし | 1K 20.28m2 | 築24年 | 神奈川県平塚市南豊田 | 詳細を見る | |
マンション レオパレス代官町(1K/3階) | |||||||
![]() | 6.4万円 5,000円 | なし 6.4万円 | 1K 20.81m2 | 築16年 | 東海道本線 辻堂駅 徒歩16分 神奈川県茅ヶ崎市代官町茅ケ崎市代官町 | 詳細を見る | |
アパート サニーヒル(1K/1階) | |||||||
![]() | 6.6万円 3,000円 | 6.6万円 なし | 1K 33.06m2 | 築16年 | 神奈川県藤沢市並木台 | 詳細を見る | |
アパート レオパレスメルベーユ湘南A(1K/2階) | |||||||
![]() | 5.4万円 5,000円 | なし 5.4万円 | 1K 19.87m2 | 築22年 | JR相模線 北茅ケ崎駅 徒歩16分 JR相模線 香川駅(神奈川) 徒歩29分 神奈川県茅ヶ崎市高田 | 詳細を見る | |
マンション 湘南小糸第一第2号棟(3LDK/5階) | |||||||
![]() | 9万円 3,000円 | なし 9万円 | 3LDK 72.18m2 | 築45年 | 湘南新宿ライン高海 辻堂駅 徒歩35分 小田急江ノ島線 善行駅 徒歩51分 神奈川県藤沢市大庭 | 詳細を見る | |
マンション GENOVIA平塚Ⅳ(1K/11階) | |||||||
![]() | 9.7万円 1万円 | なし なし | 1K 21.18m2 | 築1年 | 東海道本線 平塚駅 徒歩8分 湘南新宿ライン高海 平塚駅 徒歩8分 神奈川県平塚市明石町 | 詳細を見る | |
マンション カスタリア麻布十番七面坂(ワンルーム/5階) | |||||||
![]() | 16.2万円 8,000円 | 16.2万円 なし | ワンルーム 27.9m2 | 築22年 | 東京都大江戸線 麻布十番駅 徒歩4分 東京都大江戸線 赤羽橋駅 徒歩12分 東京都港区麻布十番2丁目 | 詳細を見る | |









