賃貸アパート
FX寿 A棟の賃貸物件情報(2DK/1階)
| 家賃 | 管理費等 | 敷金 | 礼金 | 間取り | 専有面積 |
|---|---|---|---|---|---|
| 5.2万円 | なし | 10.4万円 | 5.2万円 | 2DK | 45.42m2 |
入居決定でお祝い金最大100,000円
- 保証金
- -
- 償却・敷引
- -
- 築年数
- 築29年
- 所在階
- 1階
- 向き
- 南
Point
まずはお問い合わせ!
不動産会社は街のプロ、あなたに合った物件がきっと見つかります。
提供:ミニミニFC玉島店(電話番号→お問い合わせ係)(株)さくらコーポレーション(SUUMO経由)

詳細情報 FX寿 A棟
物件紹介
FX寿 A棟は水島臨海鉄道倉敷市駅から徒歩19分にあるアパートです。
このお部屋のインターホンにはTVモニタがついているため、相手の顔を確認してから来客対応することができます。
人気の南向きのお部屋。また、フローリングなのでお掃除もラクラク。バス・トイレ別の仕様で、のんびりお風呂タイムも楽しめます。
通信設備面ではBSアンテナがありますので、おうち時間も充実するでしょう(別途工事、契約料が必要な場合あり)。
このお部屋のインターホンにはTVモニタがついているため、相手の顔を確認してから来客対応することができます。
人気の南向きのお部屋。また、フローリングなのでお掃除もラクラク。バス・トイレ別の仕様で、のんびりお風呂タイムも楽しめます。
通信設備面ではBSアンテナがありますので、おうち時間も充実するでしょう(別途工事、契約料が必要な場合あり)。
お金・契約の情報
※「-」と表示されているものは、実際は料金が発生するものもございます。詳細はお問い合わせください。
| 家賃 | 5.2万円 | 管理費・共益費 | なし |
|---|---|---|---|
| 敷金 | 10.4万円 | 礼金 | 5.2万円 |
| 入居決定でお祝い金最大100,000円 | |||
| 保証金 | - | 償却・敷引 | - |
| 住宅保険料 | - | 更新料 | - |
| 契約形態 | - | 契約期間 | - |
| 入居・引渡期間 | 即時 | 現況 | - |
| 契約備考 | 水島本線球場前駅徒歩48分 2DK 二人入居可/子供可 普通借家1年 損保【1.7万円2年】 バストイレ別、エアコン、クロゼット、フローリング、室内洗濯置、陽当り良好、シューズボックス、南向き、脱衣所、洗面所独立、洗面化粧台、駐輪場、押入、即入居可、閑静な住宅地、駐車場1台無料、保証人不要、駐車2台可、二人入居相談、2沿線利用可、専用庭、敷金2ヶ月、眺望良好、クロゼット2ヶ所、3駅以上利用可、平面駐車場、和室、畳コーナー、全居室6畳以上、都市ガス、礼金1ヶ月、通風良好 | ||
部屋の情報
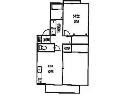
| 間取り | 2DK | 専有面積 | 45.42m2 |
|---|---|---|---|
| 所在階 / 向き | 1階 / 南 | バルコニー面積 | - |
| 水道 / ガス | - | ||
| 設備 | バス・トイレ別、エアコン、南向き、フローリング、洗髪洗面化粧台、専用庭、洗濯機:室内 | ||
| 当社物件ID | 99732682 | ||
建物の情報
| 建物名 | FX寿 A棟 | ||
|---|---|---|---|
| 所在地 | 岡山県倉敷市大島 | ||
| 交通 | 水島臨海鉄道 倉敷市駅 徒歩19分 JR山陽本線 倉敷駅 徒歩23分 JR山陽本線 中庄駅 徒歩45分 | ||
| 階数 | 2階建 | 総戸数 | - |
| 築年月 | 1998年03月 / 築29年 | エレベーター | - |
| 駐車場 | 空有 平置駐 | バイク置き場 | - |
| 駐輪場 | あり | 管理人/管理会社 | - |
| 周辺環境 | その他 倉敷市立万寿東小学校(小学校)まで580m その他 まつやま内科クリニック(病院)まで894m その他 倉敷市立東中学校(中学校)まで628m その他 倉敷市立北中学校(中学校)まで1753m その他 天満屋倉敷店(ショッピングセンター)まで1455m その他 アリオ倉敷(ショッピングセンター)まで1724m | ||
| 建物種別 | アパート | 建物構造 | 軽量鉄骨造 |
この部屋の取扱い不動産会社
| 会社名 | エイブルネットワーク庭瀬駅前店BRUNO不動産(株)(SUUMO経由) | ||
|---|---|---|---|
| 所在地 | 岡山県岡山市北区庭瀬 237-8 | 交通 | - |
| 営業時間 | 9:00~17:30 | 定休日 | 年末年始 |
| 免許番号 | 国土交通大臣10228 | 取引態様 | 仲介 |
| 不動産会社管理番号 | 100465873083 | 当社管理番号 | 89 |
| 所属団体 | (一社)岡山県不動産協会会員 | ||
| 公正取引協議会 | 中国地区不動産公正取引協議会加盟 | ||
| 取扱い物件情報 | 物件詳細へ | ||
※各種情報と現状に差異がある場合は、現状優先となります。問い合わせをすることで、より詳しい条件、情報を確認する事ができます。
提供:エイブルネットワーク庭瀬駅前店BRUNO不動産(株)(SUUMO経由)
この物件が気になったら掲載期限まであと11日
FX寿 A棟に条件(家賃・エリア)が近い物件一覧
| 写真 | 家賃 管理費等 | 敷金 礼金 | 間取り 専有面積 | 築年数 | 最寄り駅 所在地 | キープ | 詳細 |
|---|---|---|---|---|---|---|---|
マンション ルラシオン岡山野田屋町(ワンルーム/4階) | |||||||
![]() | 5.25万円 5,500円 | なし 5.25万円 | ワンルーム 25.5m2 | 築20年 | 岡山電軌東山本線 西川緑道公園駅 徒歩4分 JR山陽本線 岡山駅 徒歩8分 岡山県岡山市北区野田屋町 | 詳細を見る | |
アパート ディアス西川原(1K/1階) | |||||||
![]() | 3.8万円 なし | なし 3.8万円 | 1K 23m2 | 築29年 | JR山陽本線 西川原駅 徒歩4分 JR津山線 法界院駅 徒歩14分 岡山県岡山市中区西川原 | 詳細を見る | |
アパート ソレアードハイムA棟(1LDK/1階) | |||||||
![]() | 5.2万円 なし | 5.2万円 なし | 1LDK 44.52m2 | 築19年 | JR山陽本線 新倉敷駅 徒歩53分 山陽新幹線 新倉敷駅 徒歩53分 岡山県倉敷市玉島乙島 | 詳細を見る | |
アパート フェリシダ矢蔵 I(2LDK/2階) | |||||||
![]() | 4.9万円 3,500円 | なし 7万円 | 2LDK 57.22m2 | 築18年 | JR伯備線 総社駅 徒歩13分 JR吉備線 東総社駅 徒歩32分 岡山県総社市中原 | 詳細を見る | |
アパート メゾンプリエージュ(2LDK/2階) | |||||||
![]() | 6万円 3,500円 | 6万円 なし | 2LDK 51.66m2 | 築21年 | 岡山県岡山市中区平井4丁目 | 詳細を見る | |
アパート レオパレスうしお(1K/2階) | |||||||
![]() | 5.8万円 4,500円 | なし 5.8万円 | 1K 20.28m2 | 築19年 | 岡山県倉敷市児島下の町2丁目 | 詳細を見る | |
マンション ロイヤルパレス西田(1K/3階) | |||||||
![]() | 3.5万円 2,000円 | なし なし | 1K 26.56m2 | 築32年 | 宇野線 久々原駅 徒歩16分 岡山県倉敷市西田 | 詳細を見る | |
マンション クライン・ガルテン中山下(1DK/6階) | |||||||
![]() | 5.4万円 5,000円 | 10.8万円 5.4万円 | 1DK 37m2 | 築50年 | 岡山電軌清輝橋線 郵便局前駅 徒歩4分 岡山電軌東山本線 県庁通り駅 徒歩5分 JR山陽本線 岡山駅 徒歩15分 岡山県岡山市北区中山下 | 詳細を見る | |








