賃貸マンション
三田ガーデンヒルズ ノースヒルの賃貸物件情報(ワンルーム/2階)
| 家賃 | 管理費等 | 敷金 | 礼金 | 間取り | 専有面積 |
|---|---|---|---|---|---|
| 38万円 | なし | 38万円 | 38万円 | ワンルーム | 29.34m2 |
入居決定でお祝い金最大100,000円
- 保証金
- -
- 償却・敷引
- -
- 築年数
- 築2年
- 所在階
- 2階
- 向き
- -
Point
当社は港区に密着しており、多種多様な賃貸住宅情報をお取り扱いしております。ご希望の条件がございましたら、当社へお問い合わせ下さい。
提供:NAVI HOME(株)目黒店(SUUMO経由)

詳細情報 三田ガーデンヒルズ ノースヒル
物件紹介
三田ガーデンヒルズ ノースヒルは東京メトロ南北線麻布十番駅から徒歩6分にあり、駅近で通勤通学に便利なマンションです。
このお部屋は2階以上に位置しているので、通行人や周囲の住人からの視線が気になりにくく、防犯面でも安心。建物のエントランスはオートロックがついており、インターホンにはTVモニタもついているため、相手の顔を確認してから来客対応することができます。
人気の南向きのお部屋。また、フローリングなのでお掃除もラクラク。キッチンはシステムキッチン仕様になっていますので、お料理好きの方にもぴったり。バス・トイレは別なので、のんびりお風呂タイムも楽しめるでしょう。また、雨の日でも浴室乾燥機を使えば、お洗濯も問題ありません。
通信設備面では、インターネットが無料で使えるので、月々の出費を抑えられるのも魅力です(別途工事等が必要な場合あり)。
床暖房があり、冬も足元から暖かく快適に過ごすことができます。建物にはエレベーターがついているので、重い荷物があっても安心。共用部には宅配ボックスが設定されているので、不在の時にも荷物を受け取ることができます。
このお部屋は2階以上に位置しているので、通行人や周囲の住人からの視線が気になりにくく、防犯面でも安心。建物のエントランスはオートロックがついており、インターホンにはTVモニタもついているため、相手の顔を確認してから来客対応することができます。
人気の南向きのお部屋。また、フローリングなのでお掃除もラクラク。キッチンはシステムキッチン仕様になっていますので、お料理好きの方にもぴったり。バス・トイレは別なので、のんびりお風呂タイムも楽しめるでしょう。また、雨の日でも浴室乾燥機を使えば、お洗濯も問題ありません。
通信設備面では、インターネットが無料で使えるので、月々の出費を抑えられるのも魅力です(別途工事等が必要な場合あり)。
床暖房があり、冬も足元から暖かく快適に過ごすことができます。建物にはエレベーターがついているので、重い荷物があっても安心。共用部には宅配ボックスが設定されているので、不在の時にも荷物を受け取ることができます。
お金・契約の情報
※「-」と表示されているものは、実際は料金が発生するものもございます。詳細はお問い合わせください。
| 家賃 | 38万円 | 管理費・共益費 | なし |
|---|---|---|---|
| 敷金 | 38万円 | 礼金 | 38万円 |
| 入居決定でお祝い金最大100,000円 | |||
| 保証金 | - | 償却・敷引 | - |
| 住宅保険料 | - | 更新料 | - |
| 保証会社利用 | 必須 | 保証会社名 | - |
| 保証会社費用 | - | 保証会社備考 | 保証会社利用必 初回:100% 月額:1.2% |
| 契約形態 | 定期借家 | 契約期間 | 2年 |
| 入居・引渡期間 | - | 現況 | - |
| 契約備考 | ※短期解約違約金:1年未満2カ月 1年以上2年未満0.5カ月※【退去時費用】清掃費:1400円/平米 エアコン清掃費:40000円 更新料 新賃料1.00ヶ月分 家財保険 月額1100円 24時間駆け付けサービス 月額1100円 口座振替手数料 月額550円 ワンルーム 定期借家2年 損保【要】 バストイレ別、バルコニー、エアコン、ガスコンロ対応、クロゼット、フローリング、TVインターホン、浴室乾燥機、オートロック、室内洗濯置、陽当り良好、シューズボックス、システムキッチン、追焚機能浴室、温水洗浄便座、エレベーター、洗面所独立、洗面化粧台、2口コンロ、駐輪場、宅配ボックス、防犯カメラ、全居室収納、グリル付、全居室洋室、敷金1ヶ月、二人入居相談、バイク置場、24時間緊急通報システム、全居室フローリング、2沿線利用可、ディンプルキー、ネット使用料不要、床暖房、食器洗乾燥機、ダブルロックキー、築2年以内、24時間換気システム、クロゼット2ヶ所、南面リビング、人感照明センサー、耐震構造、2駅利用可、3駅以上利用可、3沿線以上利用可、駅徒歩10分以内、24時間ゴミ出し可、敷地内ごみ置き場、全居室6畳以上、全居室8畳以上、都市ガス、洗面所にドア、玄関収納、年内入居可、礼金1ヶ月 入居日:'26年4月上旬 | ||
部屋の情報
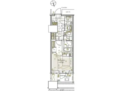
| 間取り | ワンルーム | 専有面積 | 29.34m2 |
|---|---|---|---|
| 所在階 / 向き | 2階 / - | バルコニー面積 | - |
| 水道 / ガス | - | ||
| 設備 | バス・トイレ別、2階以上、オートロック、テレビドアホン、宅配ボックス、浴室乾燥機、追い焚き、インターネット対応、システムキッチン、エアコン、エレベーター、温水洗浄便座、南向き、バルコニー、フローリング、洗髪洗面化粧台、床暖房、2口コンロ、コンロ:ガス、インターネット使用料無料、洗濯機:室内 | ||
| 当社物件ID | 160217506 | ||
建物の情報
| 建物名 | 三田ガーデンヒルズ ノースヒル | ||
|---|---|---|---|
| 所在地 | 東京都港区三田 | ||
| 交通 | 東京メトロ南北線 麻布十番駅 徒歩6分 都営大江戸線 赤羽橋駅 徒歩6分 都営三田線 芝公園駅 徒歩13分 | ||
| 階数 | 14階建 | 総戸数 | - |
| 築年月 | 2025年03月 / 築2年 | エレベーター | あり |
| 駐車場 | なし | バイク置き場 | あり |
| 駐輪場 | あり | 管理人/管理会社 | - |
| 周辺環境 | その他 ローソン 三田一丁目店(コンビニ)まで170m その他 ファミリーマート 三田一丁目店(コンビニ)まで223m その他 セブンイレブン 港区三田1丁目店(コンビニ)まで251m その他 成城石井 東麻布店(スーパー)まで358m その他 くすりの福太郎 東麻布店(ドラッグストア)まで371m その他 どらっぐぱぱす赤羽橋駅前店(ドラッグストア)まで397m | ||
| 建物種別 | マンション | 建物構造 | RC(鉄筋コンクリート) |
この部屋の取扱い不動産会社
| 会社名 | NAVI HOME(株)恵比寿2nd(SUUMO経由) | ||
|---|---|---|---|
| 所在地 | 東京都渋谷区広尾1-1-39 恵比寿プライムスクエアタワー3階 | 交通 | - |
| 営業時間 | 9:00~21:00 | 定休日 | 定休日なし |
| 免許番号 | 東京都知事107196 | 取引態様 | 仲介 |
| 不動産会社管理番号 | 100483075299 | 当社管理番号 | 89 |
| 所属団体 | (公社)東京都宅地建物取引業協会会員 | ||
| 公正取引協議会 | (公社)首都圏不動産公正取引協議会加盟 | ||
| 取扱い物件情報 | 物件詳細へ | ||
※各種情報と現状に差異がある場合は、現状優先となります。問い合わせをすることで、より詳しい条件、情報を確認する事ができます。
提供:NAVI HOME(株)恵比寿2nd(SUUMO経由)
この物件が気になったら掲載期限まであと11日
三田ガーデンヒルズ ノースヒルに条件(家賃・エリア)が近い物件一覧
| 写真 | 家賃 管理費等 | 敷金 礼金 | 間取り 専有面積 | 築年数 | 最寄り駅 所在地 | キープ | 詳細 |
|---|---|---|---|---|---|---|---|
マンション グランパセオ代々木上原Ⅱ(1LDK/1階) | |||||||
![]() | 31.3万円 1.2万円 | なし なし | 1LDK 45.99m2 | 築1年 | 小田急電鉄小田原線 代々木上原駅 徒歩9分 東京都渋谷区大山町 | 詳細を見る | |
マンション 東急東横線 代官山駅 地上4階建 低層マンション(2LDK/2階) | |||||||
![]() | 58万円 なし | 232万円 58万円 | 2LDK 93m2 | 築34年 | 東急東横線 代官山駅 徒歩1分 JR山手線 恵比寿駅 徒歩7分 東急東横線 中目黒駅 徒歩9分 東京都渋谷区恵比寿西 | 詳細を見る | |
マンション GRAND ARC笹塚(1LDK/4階) | |||||||
![]() | 25.3万円 1万円 | 25.3万円 25.3万円 | 1LDK 46.35m2 | 築1年 | 京王線 笹塚駅 徒歩3分 小田急線 東北沢駅 徒歩18分 小田急線 代々木上原駅 徒歩20分 東京都渋谷区笹塚 | 詳細を見る | |
マンション MODIER GINZA イースト(1LDK/3階) | |||||||
![]() | 25.5万円 1万円 | 25.5万円 なし | 1LDK 36.64m2 | 築1年 | 東京メトロ有楽町線 新富町駅(東京) 徒歩3分 東京メトロ日比谷線 八丁堀駅(東京) 徒歩5分 東京メトロ日比谷線 築地駅 徒歩7分 東京都中央区新富 | 詳細を見る | |
マンション 恵比寿ガーデンテラス弐番館(1LDK/10階) | |||||||
![]() | 48.5万円 なし | 97万円 48.5万円 | 1LDK 63.79m2 | 築32年 | JR山手線 恵比寿駅 徒歩10分 JR山手線 目黒駅 徒歩15分 東京都渋谷区恵比寿 | 詳細を見る | |
マンション BRILLIA IST TOWER 勝どき(2LDK/39階) | |||||||
![]() | 39.9万円 2.3万円 | 39.9万円 39.9万円 | 2LDK 74.38m2 | 築16年 | 都営大江戸線 勝どき駅 徒歩3分 東京メトロ有楽町線 月島駅 徒歩10分 東京メトロ日比谷線 築地駅 徒歩12分 東京都中央区勝どき | 詳細を見る | |
マンション セルリアンホームズ勝どき(3LDK/19階) | |||||||
![]() | 31万円 なし | 31万円 54.25万円 | 3LDK 72.82m2 | 築26年 | 都営大江戸線 勝どき駅 徒歩3分 都営大江戸線 築地市場駅 徒歩16分 東京メトロ日比谷線 築地駅 徒歩19分 東京都中央区勝どき | 詳細を見る | |
マンション 桂 高輪(2LDK/2階) | |||||||
![]() | 39.5万円 2.5万円 | なし 79万円 | 2LDK 67.2m2 | 築2年 | 京急本線 品川駅 徒歩7分 JR京浜東北線 品川駅 徒歩7分 JR東海道本線 品川駅 徒歩7分 東京都港区高輪 | 詳細を見る | |








