賃貸アパート
レオパレスエスポワールの賃貸物件情報(1K/1階)
| 家賃 | 管理費等 | 敷金 | 礼金 | 間取り | 専有面積 |
|---|---|---|---|---|---|
| 6.2万円 | 4,500円 | なし | 6.2万円 | 1K | 22.35m2 |
入居決定でお祝い金最大100,000円
Point
まずはお問い合わせ!
不動産会社は街のプロ、あなたに合った物件がきっと見つかります。
提供:ハウスコム株式会社 吉塚店

詳細情報 レオパレスエスポワール
物件紹介
レオパレスエスポワールは福岡市空港線福岡空港駅から徒歩14分にあるアパートです。
このお部屋のインターホンにはTVモニタがついているため、相手の顔を確認してから来客対応することができます。
バス・トイレ別の仕様で、のんびりお風呂タイムも楽しめます。
通信設備面では、インターネット接続が可能です(別途工事、契約料が必要な場合あり)。
共用部には宅配ボックスが設定されているので、不在の時にも荷物を受け取ることができます。
コンビニまで徒歩7分の場所にあり、日用品や食料品のお買い物にも便利です。
このお部屋のインターホンにはTVモニタがついているため、相手の顔を確認してから来客対応することができます。
バス・トイレ別の仕様で、のんびりお風呂タイムも楽しめます。
通信設備面では、インターネット接続が可能です(別途工事、契約料が必要な場合あり)。
共用部には宅配ボックスが設定されているので、不在の時にも荷物を受け取ることができます。
コンビニまで徒歩7分の場所にあり、日用品や食料品のお買い物にも便利です。
お金・契約の情報
※「-」と表示されているものは、実際は料金が発生するものもございます。詳細はお問い合わせください。
| 家賃 | 6.2万円 | 管理費・共益費 | 4,500円 |
|---|---|---|---|
| 敷金 | なし | 礼金 | 6.2万円 |
| 入居決定でお祝い金最大100,000円 | |||
| 保証金 | - | 償却・敷引 | - |
| 住宅保険料 | 1円 | 更新料 | - |
| その他費用 | 抗菌施工(任意):2.376万円 | ||
| 保証会社利用 | 必須 | 保証会社名 | - |
| 保証会社費用 | - | 保証会社備考 | 保証料:80390円(契約内容により100〜120%で変動有)※記載金額は120%の場合 |
| 契約形態 | - | 契約期間 | - |
| 入居・引渡期間 | 2026年02月中旬 | 現況 | - |
| 契約備考 | 月額(環境維持費 550円) 鍵交換費用:16500 室内清掃費用:41800 その他設備/条件:室内洗濯機置き場 | ||
部屋の情報
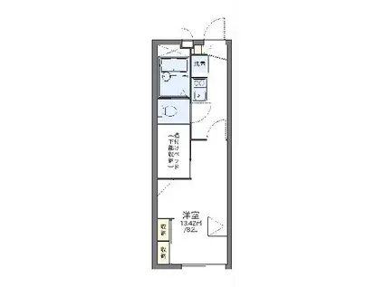
| 間取り | 1K | 専有面積 | 22.35m2 |
|---|---|---|---|
| 所在階 / 向き | 1階 / - | バルコニー面積 | - |
| 水道 / ガス | - | ||
| 設備 | バス・トイレ別、テレビドアホン、宅配ボックス、光ファイバー対応、エアコン、温水洗浄便座、コンロ:電気 | ||
| 当社物件ID | 1514166 | ||
建物の情報
| 建物名 | レオパレスエスポワール | ||
|---|---|---|---|
| 所在地 | 福岡県糟屋郡志免町別府西2丁目 | ||
| 交通 | 福岡市空港線 福岡空港駅 徒歩14分 | ||
| 階数 | 2階建 | 総戸数 | 12戸 |
| 築年月 | 2005年10月 / 築21年 | エレベーター | - |
| 駐車場 | なし | バイク置き場 | - |
| 駐輪場 | - | 管理人/管理会社 | - |
| 周辺環境 | コンビニ 徒歩7分(532m) 販売店 徒歩6分(470m) その他 ドラッグストア その他 公園 その他 銀行 その他 * | ||
| 建物種別 | アパート | 建物構造 | 軽量鉄骨造 |
この部屋の取扱い不動産会社
| 会社名 | ハウスコム株式会社 吉塚店 | ||
|---|---|---|---|
| 所在地 | 福岡県福岡市博多区2-261階 | 交通 | - |
| 営業時間 | 10:00~18:00 | 定休日 | - |
| 免許番号 | 国土交通大臣(6)第6094号 | 取引態様 | 仲介 |
| 不動産会社管理番号 | HC5-155579-104-0167 | 当社管理番号 | 468 |
| 所属団体 | 一般社団法人全国住宅産業協会/公益社団法人首都圏不動産公正取引協議会/公益財団法人日本賃貸住宅管理協会、 | ||
| 取扱い物件情報 | 物件詳細へ | ||
※各種情報と現状に差異がある場合は、現状優先となります。問い合わせをすることで、より詳しい条件、情報を確認する事ができます。
提供:ハウスコム株式会社 吉塚店
この物件が気になったら掲載期限まであと4日
レオパレスエスポワールに条件(家賃・エリア)が近い物件一覧
| 写真 | 家賃 管理費等 | 敷金 礼金 | 間取り 専有面積 | 築年数 | 最寄り駅 所在地 | キープ | 詳細 |
|---|---|---|---|---|---|---|---|
マンション QUINTET MINAMI FUKUOKA(1LDK/3階) | |||||||
![]() | 8.2万円 6,000円 | なし なし | 1LDK 31.84m2 | 築4年 | 西鉄天神大牟田線 雑餉隈駅 徒歩9分 鹿児島本線 笹原駅 徒歩14分 鹿児島本線 南福岡駅 徒歩15分 福岡県福岡市博多区三筑2丁目 | 詳細を見る | |
マンション アルティザ博多ミッドシティ(1LDK/4階) | |||||||
| 8.8万円 5,000円 | なし 8.8万円 | 1LDK 30.82m2 | 新築 | 鹿児島本線 竹下駅 徒歩3分 西鉄天神大牟田線 大橋駅(福岡) 徒歩21分 西鉄天神大牟田線 高宮駅(福岡) 徒歩27分 福岡県福岡市博多区竹下4丁目 | 詳細を見る | ||
マンション サンライズ弥永(1K/2階) | |||||||
![]() | 4.3万円 なし | なし なし | 1K 27.8m2 | 築31年 | 博多南線 博多南駅 徒歩12分 福岡県福岡市南区弥永4丁目 | 詳細を見る | |
マンション MODERNPALAZZO博多VICINO(ワンルーム/5階) | |||||||
| 6.15万円 5,000円 | なし なし | ワンルーム 18.09m2 | 築4年 | 西鉄天神大牟田線 西鉄平尾駅 徒歩15分 福岡市空港線 博多駅 徒歩18分 福岡市七隈線 渡辺通駅 徒歩18分 福岡県福岡市博多区美野島2丁目 | 詳細を見る | ||
マンション サニークレスト東比恵(1LDK/3階) | |||||||
| 8.6万円 5,300円 | なし なし | 1LDK 30.57m2 | 築11年 | 福岡市空港線 東比恵駅 徒歩4分 福岡市空港線 博多駅 徒歩15分 福岡市空港線 祇園駅(福岡) 徒歩24分 福岡県福岡市博多区東比恵4丁目 | 詳細を見る | ||
マンション LIFEFIELD曰佐(1SLDK/1階) | |||||||
![]() | 7.9万円 4,000円 | なし なし | 1SLDK 40.2m2 | 築1年 | 西鉄天神大牟田線 井尻駅 徒歩20分 鹿児島本線 笹原駅 徒歩25分 西鉄天神大牟田線 大橋駅(福岡) 徒歩33分 福岡県福岡市南区曰佐1丁目 | 詳細を見る | |
アパート アニバース弥永A棟(2LDK/2階) | |||||||
![]() | 5.3万円 2,000円 | 7.95万円 なし | 2LDK 50m2 | 築32年 | 博多南線 博多南駅 徒歩13分 西鉄天神大牟田線 井尻駅 徒歩25分 鹿児島本線 南福岡駅 徒歩46分 福岡県福岡市南区弥永4丁目 | 詳細を見る | |





