賃貸マンション
ビレッジハウス船木2 2号棟の賃貸物件情報(3DK/2階)
| 家賃 | 管理費等 | 敷金 | 礼金 | 間取り | 専有面積 |
|---|---|---|---|---|---|
| 3.8万円 | なし | なし | なし | 3DK | 53.08m2 |
入居決定でお祝い金最大100,000円
- 保証金
- -
- 償却・敷引
- -
- 築年数
- 築35年
- 所在階
- 2階
- 向き
- 南東
Point
まずはお問い合わせ!
不動産会社は街のプロ、あなたに合った物件がきっと見つかります。
提供:ビレッジハウス・マネジメント株式会社 住まい相談センター

詳細情報 ビレッジハウス船木2 2号棟
物件紹介
ビレッジハウス船木2 2号棟は山陽本線厚東駅から徒歩62分にあるマンションです。
このお部屋は2階以上に位置しているので、通行人や周囲の住人からの視線が気になりにくく、防犯面でも安心です。
バス・トイレ別の仕様で、のんびりお風呂タイムも楽しめます。
ペット飼育の相談ができますので、あなたの大切な家族の一員も快適に暮らせるか、ぜひ確認してみてください。
このお部屋は2階以上に位置しているので、通行人や周囲の住人からの視線が気になりにくく、防犯面でも安心です。
バス・トイレ別の仕様で、のんびりお風呂タイムも楽しめます。
ペット飼育の相談ができますので、あなたの大切な家族の一員も快適に暮らせるか、ぜひ確認してみてください。
お金・契約の情報
※「-」と表示されているものは、実際は料金が発生するものもございます。詳細はお問い合わせください。
| 家賃 | 3.8万円 | 管理費・共益費 | なし |
|---|---|---|---|
| 敷金 | なし | 礼金 | なし |
| フリーレント | 1ヶ月 | ||
| 入居決定でお祝い金最大100,000円 | |||
| 保証金 | - | 償却・敷引 | - |
| 住宅保険料 | 1万円(2年) | 更新料 | - |
| 保証会社利用 | - | 保証会社名 | - |
| 保証会社費用 | - | 保証会社備考 | - |
| 契約形態 | - | 契約期間 | - |
| 入居・引渡期間 | - | 現況 | 空室 |
| 入居可能条件 | 2人入居可、高齢者相談、学生可、ペット相談 | ||
| 契約備考 | 契約種類:普通契約、24時間緊急対応、ウォシュレット、ウォームレット、洗面台 | ||
部屋の情報
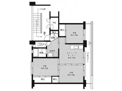
| 間取り | 3DK | 専有面積 | 53.08m2 |
|---|---|---|---|
| 所在階 / 向き | 2階 / 南東 | バルコニー面積 | - |
| 水道 / ガス | - | ||
| 設備 | バス・トイレ別、追い焚き、エアコン、バルコニー、洗髪洗面化粧台、給湯、洗濯機:室内 | ||
| 当社物件ID | 38140332 | ||
建物の情報
| 建物名 | ビレッジハウス船木2 2号棟 | ||
|---|---|---|---|
| 所在地 | 山口県宇部市大字船木503-1 | ||
| 交通 | 山陽本線 厚東駅 徒歩62分 山陽本線 厚狭駅 徒歩86分 山陽本線 宇部駅 徒歩90分 | ||
| 階数 | 5階建 | 総戸数 | - |
| 築年月 | 1992年04月 / 築35年 | エレベーター | - |
| 駐車場 | 空有 円 | バイク置き場 | - |
| 駐輪場 | - | 管理人/管理会社 | 日勤 |
| 建物種別 | マンション | 建物構造 | RC(鉄筋コンクリート) |
この部屋の取扱い不動産会社
| 会社名 | ビレッジハウス・マネジメント株式会社 住まい相談センター | ||
|---|---|---|---|
| 所在地 | 東京都港区六本木6-10-1 六本木ヒルズ森タワー44階 | 交通 | 東京メトロ日比谷線「六本木駅」 直結 |
| 営業時間 | 平日:9:00-18:30/土日祝:9:00-18:00 | 定休日 | 年中無休(年末年始を除く) |
| 免許番号 | 東京都知事(2)第100758号 | 取引態様 | 貸主 |
| 不動産会社管理番号 | 00013202180 | 当社管理番号 | 459 |
| 所属団体 | 公益社団法人東京都宅地建物取引業協会会員 日本賃貸住宅管理協会会員 | ||
| 取扱い物件情報 | 物件詳細へ | ||
※各種情報と現状に差異がある場合は、現状優先となります。問い合わせをすることで、より詳しい条件、情報を確認する事ができます。
提供:ビレッジハウス・マネジメント株式会社 住まい相談センター
この物件が気になったら掲載期限まであと13日
ビレッジハウス船木2 2号棟に条件(家賃・エリア)が近い物件一覧
| 写真 | 家賃 管理費等 | 敷金 礼金 | 間取り 専有面積 | 築年数 | 最寄り駅 所在地 | キープ | 詳細 |
|---|---|---|---|---|---|---|---|
アパート ハイツ藤江(2LDK/3階) | |||||||
![]() | 3.5万円 2,000円 | 7万円 なし | 2LDK 46.08m2 | 築43年 | JR山口線 湯田温泉駅 徒歩16分 山口県山口市泉都町 | 詳細を見る | |
アパート DIAS SI(3DK/2階) | |||||||
![]() | 4.3万円 2,000円 | 8.6万円 なし | 3DK 54.81m2 | 築27年 | JR山口線 山口駅(山口) 徒歩47分 JR山口線 上山口駅 徒歩61分 JR山口線 宮野駅 徒歩67分 山口県山口市大内矢田南 | 詳細を見る | |
マンション メゾンブランシュ糸米(2LDK/1階) | |||||||
![]() | 6万円 なし | 12万円 なし | 2LDK 58.59m2 | 築31年 | JR山口線 山口駅(山口) 徒歩25分 山口県山口市糸米 | 詳細を見る | |
アパート グリーンヒルフジ1(3LDK/2階) | |||||||
![]() | 4.8万円 1,700円 | なし なし | 3LDK 65.57m2 | 築29年 | JR山陽本線 厚狭駅 徒歩17分 JR美祢線 厚狭駅 徒歩17分 山陽新幹線 厚狭駅 徒歩25分 山口県山陽小野田市 | 詳細を見る | |
アパート サンドヒルズ(1K/1階) | |||||||
![]() | 2.6万円 3,000円 | なし なし | 1K 27.08m2 | 築32年 | JR山口線 上山口駅 徒歩18分 JR山口線 宮野駅 徒歩18分 JR山口線 山口駅(山口) 徒歩32分 山口県山口市江良 | 詳細を見る | |
アパート メゾンF4(2LDK/2階) | |||||||
![]() | 5万円 なし | なし なし | 2LDK 60.87m2 | 築22年 | JR山口線 湯田温泉駅 徒歩43分 山口県山口市吉田 | 詳細を見る | |
アパート シャルマンシャトーB(2LDK/2階) | |||||||
![]() | 3.9万円 3,900円 | なし なし | 2LDK 58.53m2 | 築27年 | JR宇部線 岩鼻駅 徒歩28分 山口県宇部市大字中山 | 詳細を見る | |








