賃貸アパート
日野OGMIIIの賃貸物件情報(1K/2階)
| 家賃 | 管理費等 | 敷金 | 礼金 | 間取り | 専有面積 |
|---|---|---|---|---|---|
| 7.6万円 | 5,500円 | なし | 7.6万円 | 1K | 23.18m2 |
入居決定でお祝い金最大100,000円
- 保証金
- -
- 償却・敷引
- -
- 築年数
- 築20年
- 所在階
- 2階
- 向き
- 南西
Point
●敷金なし!仲介手数料不要!●家具家電付(テレビ・冷蔵庫・電子レンジ・洗濯機・カーテンなど)●インターネット完備・浴室乾燥機・シューズボックス・エアコンなど●入居日などお気軽にご相談下さい
提供:住まいのSEIKA 戸塚店(株)成家(SUUMO経由)

詳細情報 日野OGMIII
物件紹介
日野OGMIIIはブルーライン港南中央駅から徒歩10分にあり、駅近で通勤通学に便利なアパートです。
このお部屋は2階以上に位置しているので、通行人や周囲の住人からの視線が気になりにくく、防犯面でも安心。インターホンにはTVモニタもついているため、相手の顔を確認してから来客対応することができます。
人気の南向きのお部屋。また、フローリングなのでお掃除もラクラク。キッチンはシステムキッチン仕様になっていますので、お料理好きの方にもぴったり。バス・トイレは別なので、のんびりお風呂タイムも楽しめるでしょう。また、雨の日でも浴室乾燥機を使えば、お洗濯も問題ありません。
共用部には宅配ボックスが設定されているので、不在の時にも荷物を受け取ることができます。
このお部屋は2階以上に位置しているので、通行人や周囲の住人からの視線が気になりにくく、防犯面でも安心。インターホンにはTVモニタもついているため、相手の顔を確認してから来客対応することができます。
人気の南向きのお部屋。また、フローリングなのでお掃除もラクラク。キッチンはシステムキッチン仕様になっていますので、お料理好きの方にもぴったり。バス・トイレは別なので、のんびりお風呂タイムも楽しめるでしょう。また、雨の日でも浴室乾燥機を使えば、お洗濯も問題ありません。
共用部には宅配ボックスが設定されているので、不在の時にも荷物を受け取ることができます。
お金・契約の情報
※「-」と表示されているものは、実際は料金が発生するものもございます。詳細はお問い合わせください。
| 家賃 | 7.6万円 | 管理費・共益費 | 5,500円 |
|---|---|---|---|
| 敷金 | なし | 礼金 | 7.6万円 |
| 入居決定でお祝い金最大100,000円 | |||
| 保証金 | - | 償却・敷引 | - |
| 住宅保険料 | - | 更新料 | - |
| 保証会社利用 | 必須 | 保証会社名 | - |
| 保証会社費用 | - | 保証会社備考 | 保証会社利用必 初回保証料:月額利用料100% 120%(※未成年者は親権者連帯保証人保証会社加入必須) |
| 契約形態 | - | 契約期間 | - |
| 入居・引渡期間 | - | 現況 | - |
| 契約備考 | ●家具家電付き(冷蔵庫・電子レンジ・洗濯機・カーテン・テーブル・テレビ・照明など)●見学ご希望の方はご相談下さい。●物件現地待ち会わせ・オンライン内覧でご案内可能です。●初期費用はクレジットカードでの決済も可能です。●他にも家具家電付、初期費用が安い物件などご紹介も可能です。●英語・中国語・韓国語など外国語での対応も可能です。 合計1.65万円(内訳:鍵交換代1.65万円) 更新料 16500円 室内清掃費用 41800円 環境維持費 月額550円 1K 二人入居可/事務所利用不可/ルームシェア相談 普通借家2年 損保【1.99万円2年】 バストイレ別、バルコニー、エアコン、クロゼット、フローリング、TVインターホン、浴室乾燥機、室内洗濯置、シューズボックス、システムキッチン、2口コンロ、駐輪場、宅配ボックス、敷金不要、照明付、電気コンロ、全居室洋室、保証人不要、冷蔵庫、仲介手数料不要、二人入居相談、2沿線利用可、洗濯機、保証金不要、24時間換気システム、ルームシェア相談、電子レンジ、一部フローリング、ベッド、家電付、家具付、防犯ガラス、カーテン付、2駅利用可、3駅以上利用可、駅徒歩10分以内、敷地内ごみ置き場、プロパンガス、じゅうたん張、年内入居可、礼金1ヶ月、初期費用カード決済可、全室照明付、テレビ、ダイニングテーブル・デスク 入居日:'26年4月中旬 | ||
部屋の情報
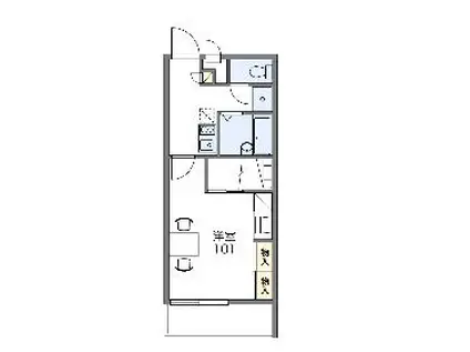
| 間取り | 1K | 専有面積 | 23.18m2 |
|---|---|---|---|
| 所在階 / 向き | 2階 / 南西 | バルコニー面積 | - |
| 水道 / ガス | - | ||
| 設備 | バス・トイレ別、2階以上、テレビドアホン、宅配ボックス、浴室乾燥機、システムキッチン、エアコン、南向き、バルコニー、フローリング、2口コンロ、洗濯機:室内 | ||
| 当社物件ID | 160502920 | ||
建物の情報
| 建物名 | 日野OGMIII | ||
|---|---|---|---|
| 所在地 | 神奈川県横浜市港南区日野 | ||
| 交通 | ブルーライン 港南中央駅 徒歩10分 ブルーライン 上永谷駅 徒歩16分 京急本線 上大岡駅 徒歩24分 | ||
| 階数 | 3階建 | 総戸数 | 18戸 |
| 築年月 | 2006年08月 / 築20年 | エレベーター | - |
| 駐車場 | なし | バイク置き場 | - |
| 駐輪場 | あり | 管理人/管理会社 | - |
| 周辺環境 | その他 セブンイレブン 横浜日野5丁目店(コンビニ)まで482m その他 ローソン港南日野二丁目店(コンビニ)まで521m その他 セブンイレブン 横浜日野2丁目店(コンビニ)まで614m その他 クリエイトS・D 港南上永谷店(ドラッグストア)まで649m その他 まいばすけっと 港南中央通店(スーパー)まで687m その他 ファミリーマート 港南中央通店(コンビニ)まで710m | ||
| 建物種別 | アパート | 建物構造 | 鉄骨造 |
この部屋の取扱い不動産会社
| 会社名 | 住まいのSEIKA 戸塚店(株)成家(SUUMO経由) | ||
|---|---|---|---|
| 所在地 | 神奈川県横浜市戸塚区吉田町 3003-1 el sur201 | 交通 | - |
| 営業時間 | 10:00~19:00 | 定休日 | 年末年始 |
| 免許番号 | 国土交通大臣8091 | 取引態様 | 仲介 |
| 不動産会社管理番号 | 100322652390 | 当社管理番号 | 89 |
| 所属団体 | (公社)神奈川県宅地建物取引業協会会員 | ||
| 公正取引協議会 | (公社)首都圏不動産公正取引協議会加盟 | ||
| 取扱い物件情報 | 物件詳細へ | ||
※各種情報と現状に差異がある場合は、現状優先となります。問い合わせをすることで、より詳しい条件、情報を確認する事ができます。
提供:住まいのSEIKA 戸塚店(株)成家(SUUMO経由)
この物件が気になったら掲載期限まであと11日
日野OGMIIIに条件(家賃・エリア)が近い物件一覧
| 写真 | 家賃 管理費等 | 敷金 礼金 | 間取り 専有面積 | 築年数 | 最寄り駅 所在地 | キープ | 詳細 |
|---|---|---|---|---|---|---|---|
アパート 第2ロイヤルコーポ(3DK/1階) | |||||||
![]() | 8.3万円 2,000円 | 8.3万円 なし | 3DK 57.1m2 | 築35年 | 小田急電鉄江ノ島線 高座渋谷駅 徒歩5分 神奈川県大和市福田 | 詳細を見る | |
アパート オメガパレス日野9丁目(1K/2階) | |||||||
![]() | 6.5万円 2,000円 | 6.5万円 6.5万円 | 1K 20m2 | 築21年 | JR京浜東北線 港南台駅 徒歩15分 ブルーライン 上永谷駅 徒歩34分 神奈川県横浜市港南区日野 | 詳細を見る | |
マンション ARCOBALENO KAWASAKI ウエスト(ワンルーム/5階) | |||||||
![]() | 9.6万円 1.5万円 | なし なし | ワンルーム 20.53m2 | 築1年 | 東海道本線 川崎駅 徒歩10分 神奈川県川崎市幸区中幸町1丁目 | 詳細を見る | |
アパート トワーニ北鎌倉(1K/1階) | |||||||
![]() | 7万円 5,000円 | なし 7万円 | 1K 25.29m2 | 築9年 | JR横須賀線 北鎌倉駅 徒歩10分 湘南モノレール 富士見町駅(神奈川) 徒歩13分 JR東海道本線 大船駅 徒歩20分 神奈川県鎌倉市小袋谷 | 詳細を見る | |
マンション ルーブル武蔵小杉(1K/1階) | |||||||
![]() | 7.6万円 1.4万円 | なし 7.6万円 | 1K 20.38m2 | 築15年 | JR南武線 向河原駅 徒歩6分 東急東横線 武蔵小杉駅 徒歩11分 東急東横線 新丸子駅 徒歩13分 神奈川県川崎市中原区下沼部 | 詳細を見る | |
アパート クラージュ片瀬(1LDK/1階) | |||||||
![]() | 11万円 4,000円 | 11万円 5.5万円 | 1LDK 43.11m2 | 築2年 | 江ノ島電鉄線 柳小路駅 徒歩4分 JR東海道本線 藤沢駅 徒歩17分 神奈川県藤沢市片瀬 | 詳細を見る | |
アパート レオパレスりんどう(1K/2階) | |||||||
![]() | 6.5万円 5,000円 | なし なし | 1K 20.28m2 | 築21年 | 横須賀線 衣笠駅 徒歩9分 神奈川県横須賀市平作2丁目 | 詳細を見る | |
アパート レオパレスSHIROYAMAVI(1K/2階) | |||||||
![]() | 6.9万円 5,000円 | なし 6.9万円 | 1K 19.87m2 | 築20年 | 東急田園都市線 南町田グランベリーパーク駅 徒歩10分 東急田園都市線 つきみ野駅 徒歩12分 神奈川県大和市下鶴間 | 詳細を見る | |









