賃貸マンション
ORSUS赤羽イーストの賃貸物件情報(1DK/4階)
| 家賃 | 管理費等 | 敷金 | 礼金 | 間取り | 専有面積 |
|---|---|---|---|---|---|
| 10.6万円 | 1万円 | 10.6万円 | 10.6万円 | 1DK | 25.12m2 |
入居決定でお祝い金最大100,000円
- 保証金
- -
- 償却・敷引
- -
- 築年数
- 築4年
- 所在階
- 4階
- 向き
- -
Point
まずはお問い合わせ!
不動産会社は街のプロ、あなたに合った物件がきっと見つかります。
提供:(株)アドバンスリビング(SUUMO経由)

詳細情報 ORSUS赤羽イースト
物件紹介
ORSUS赤羽イーストは東京メトロ南北線志茂駅から徒歩3分にあり、駅近で通勤通学に便利なマンションです。
このお部屋は2階以上に位置しているので、通行人や周囲の住人からの視線が気になりにくく、防犯面でも安心。建物のエントランスはオートロックがついており、インターホンにはTVモニタもついているため、相手の顔を確認してから来客対応することができます。
人気の角部屋で周囲の居住者の生活音も気になりにくく、また、フローリングのお部屋なのでお掃除もラクラク。バス・トイレ別の仕様で、のんびりお風呂タイムも楽しめます。また、浴室乾燥機を使えば、雨の日でもお洗濯は問題ありません。
通信設備面では、インターネットが無料で使えるので、月々の出費を抑えられるのも魅力です。また、BSアンテナ・CSアンテナもありますので、おうち時間も充実するでしょう(別途工事、BS・CSの契約料等が必要な場合あり)。
建物にはエレベーターがついているので、重い荷物があっても安心。共用部には宅配ボックスが設定されているので、不在の時にも荷物を受け取ることができます。
このお部屋は2階以上に位置しているので、通行人や周囲の住人からの視線が気になりにくく、防犯面でも安心。建物のエントランスはオートロックがついており、インターホンにはTVモニタもついているため、相手の顔を確認してから来客対応することができます。
人気の角部屋で周囲の居住者の生活音も気になりにくく、また、フローリングのお部屋なのでお掃除もラクラク。バス・トイレ別の仕様で、のんびりお風呂タイムも楽しめます。また、浴室乾燥機を使えば、雨の日でもお洗濯は問題ありません。
通信設備面では、インターネットが無料で使えるので、月々の出費を抑えられるのも魅力です。また、BSアンテナ・CSアンテナもありますので、おうち時間も充実するでしょう(別途工事、BS・CSの契約料等が必要な場合あり)。
建物にはエレベーターがついているので、重い荷物があっても安心。共用部には宅配ボックスが設定されているので、不在の時にも荷物を受け取ることができます。
お金・契約の情報
※「-」と表示されているものは、実際は料金が発生するものもございます。詳細はお問い合わせください。
| 家賃 | 10.6万円 | 管理費・共益費 | 1万円 |
|---|---|---|---|
| 敷金 | 10.6万円 | 礼金 | 10.6万円 |
| 入居決定でお祝い金最大100,000円 | |||
| 保証金 | - | 償却・敷引 | - |
| 住宅保険料 | - | 更新料 | - |
| 保証会社利用 | 必須 | 保証会社名 | - |
| 保証会社費用 | - | 保証会社備考 | 保証会社利用必 エポスカード(RP) 保証料:賃料等の50%(最低2万)、月額保証料:賃料等の1%(更新料無) |
| 契約形態 | - | 契約期間 | - |
| 入居・引渡期間 | - | 現況 | - |
| 契約備考 | お客様が安心してお部屋を見学して頂き、ご契約が出来る環境を作る事を心掛け、全てのお客様に弊社を選んで良かったと思って頂ける様に、誠実さと物件情報量を駆使した丁寧な営業させていただいております。お客様との出会いそして「ありがとう!」の一言の為に、努力はいっさい惜しみません。是非とも、弊社アドバンスリビングへご来店くださいませ。スタッフ一同、心よりお待ちしております。 合計7.15万円(内訳:清掃費3.85万円エアコン清掃費1.1万円鍵交換代2.2万円) 更新料 新賃料1.00ヶ月分 1DK 普通借家2年 損保【1.66万円2年】 バストイレ別、エアコン、フローリング、シャワー付洗面台、TVインターホン、浴室乾燥機、オートロック、室内洗濯置、シューズボックス、追焚機能浴室、角住戸、温水洗浄便座、エレベーター、洗面所独立、宅配ボックス、防犯カメラ、2沿線利用可、ディンプルキー、CS、ネット使用料不要、ダブルロックキー、保証金不要、24時間換気システム、複層ガラス、人感照明センサー、2駅利用可、3駅以上利用可、3沿線以上利用可、駅徒歩5分以内、駅徒歩10分以内、築5年以内、BS、年内入居可、初期費用カード決済可 入居日:'26年4月上旬 | ||
部屋の情報
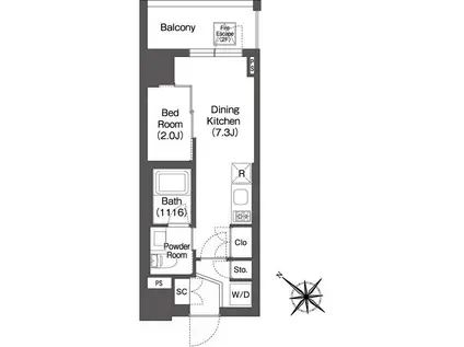
| 間取り | 1DK | 専有面積 | 25.12m2 |
|---|---|---|---|
| 所在階 / 向き | 4階 / - | バルコニー面積 | - |
| 水道 / ガス | - | ||
| 設備 | バス・トイレ別、2階以上、オートロック、テレビドアホン、宅配ボックス、浴室乾燥機、追い焚き、インターネット対応、エアコン、エレベーター、温水洗浄便座、角部屋、フローリング、洗髪洗面化粧台、CSアンテナ、BSアンテナ、インターネット使用料無料、洗濯機:室内 | ||
| 当社物件ID | 160216805 | ||
建物の情報
| 建物名 | ORSUS赤羽イースト | ||
|---|---|---|---|
| 所在地 | 東京都北区志茂 | ||
| 交通 | 東京メトロ南北線 志茂駅 徒歩3分 JR埼京線 赤羽駅 徒歩13分 JR京浜東北線 赤羽駅 徒歩13分 | ||
| 階数 | 10階建 | 総戸数 | 49戸 |
| 築年月 | 2022年11月 / 築4年 | エレベーター | あり |
| 駐車場 | なし | バイク置き場 | - |
| 駐輪場 | - | 管理人/管理会社 | - |
| 周辺環境 | その他 北区立なでしこ小学校(小学校)まで349m その他 北区立西が丘小学校(小学校)まで1730m その他 ケンタッキーフライドチキン 赤羽スズラン通り店(飲食店)まで588m その他 ケーヨーデイツー 東十条店(ホームセンター)まで1666m その他 ニトリ 赤羽店(その他)まで1070m その他 マツモトキヨシ 赤羽すずらんストリート店(ドラッグストア)まで727m | ||
| 建物種別 | マンション | 建物構造 | RC(鉄筋コンクリート) |
この部屋の取扱い不動産会社
| 会社名 | (株)アドバンスリビング(SUUMO経由) | ||
|---|---|---|---|
| 所在地 | 東京都江東区門前仲町1-7-11 名取ビル302 | 交通 | - |
| 営業時間 | 10:00~19:00 | 定休日 | 無し |
| 免許番号 | 東京都知事110317 | 取引態様 | 仲介 |
| 不動産会社管理番号 | 100483779129 | 当社管理番号 | 89 |
| 所属団体 | (公社)東京都宅地建物取引業協会会員 | ||
| 公正取引協議会 | (公社)首都圏不動産公正取引協議会加盟 | ||
| 取扱い物件情報 | 物件詳細へ | ||
※各種情報と現状に差異がある場合は、現状優先となります。問い合わせをすることで、より詳しい条件、情報を確認する事ができます。
提供:(株)アドバンスリビング(SUUMO経由)
この物件が気になったら掲載期限まであと11日
ORSUS赤羽イーストに条件(家賃・エリア)が近い物件一覧
| 写真 | 家賃 管理費等 | 敷金 礼金 | 間取り 専有面積 | 築年数 | 最寄り駅 所在地 | キープ | 詳細 |
|---|---|---|---|---|---|---|---|
マンション ALIVIS東十条(1DK/6階) | |||||||
![]() | 15.7万円 1.5万円 | なし なし | 1DK 31.5m2 | 築1年 | 埼京線 十条駅(東京) 徒歩11分 京浜東北・根岸線 東十条駅 徒歩12分 東京都北区十条仲原2丁目 | 詳細を見る | |
マンション アーバンスクエア大山(1K/5階) | |||||||
![]() | 8.6万円 8,000円 | なし なし | 1K 21.04m2 | 築5年 | 東武東上線 大山駅(東京) 徒歩10分 東武東上線 下板橋駅 徒歩14分 東京メトロ有楽町線 要町駅 徒歩19分 東京都板橋区熊野町 | 詳細を見る | |
マンション プラスドア北千住(1LDK/3階) | |||||||
![]() | 16.6万円 1.2万円 | 16.6万円 なし | 1LDK 35.2m2 | 築1年 | 東京メトロ日比谷線 北千住駅 徒歩9分 京成本線 千住大橋駅 徒歩11分 JR常磐線 南千住駅 徒歩26分 東京都足立区千住中居町 | 詳細を見る | |
マンション ペイサージュ文京(1DK/8階) | |||||||
![]() | 16万円 1.1万円 | なし 16万円 | 1DK 34.91m2 | 築17年 | 東京メトロ有楽町線 江戸川橋駅 徒歩4分 東京メトロ東西線 神楽坂駅 徒歩13分 東京メトロ東西線 早稲田駅(メトロ) 徒歩14分 東京都文京区関口 | 詳細を見る | |
マンション セジョリ早稲田ウエスト(1K/6階) | |||||||
![]() | 10.55万円 1.1万円 | なし 10.55万円 | 1K 25.81m2 | 築7年 | 都電荒川線 早稲田駅(都電) 徒歩6分 東京メトロ副都心線 雑司が谷駅(東京メトロ) 徒歩10分 東京メトロ東西線 早稲田駅(メトロ) 徒歩15分 東京都豊島区高田 | 詳細を見る | |
マンション リライア西台(1K/1階) | |||||||
![]() | 8万円 1万円 | 8万円 8万円 | 1K 25.95m2 | 築10年 | 東京都三田線 西台駅 徒歩6分 東京都三田線 蓮根駅 徒歩9分 東京都板橋区高島平1丁目 | 詳細を見る | |
マンション SAKURA AXIS NAKAITABASHI(1DK/2階) | |||||||
![]() | 11.1万円 1万円 | 11.1万円 なし | 1DK 25.65m2 | 築1年 | 東武東上線 中板橋駅 徒歩4分 東武東上線 ときわ台駅(東京) 徒歩8分 都営三田線 板橋本町駅 徒歩16分 東京都板橋区常盤台 | 詳細を見る | |
マンション MONTE VERDE TOKIWADAI(1K/5階) | |||||||
![]() | 9万円 7,000円 | 9万円 9万円 | 1K 26.54m2 | 築15年 | 東武東上線 ときわ台駅(東京) 徒歩8分 東武東上線 上板橋駅 徒歩8分 東京メトロ有楽町線 小竹向原駅 徒歩28分 東京都板橋区東新町 | 詳細を見る | |









