賃貸マンション
川口南町ローヤルコーポの賃貸物件情報(3LDK/7階)
| 家賃 | 管理費等 | 敷金 | 礼金 | 間取り | 専有面積 |
|---|---|---|---|---|---|
| 12万円 | 6,000円 | 12万円 | 12万円 | 3LDK | 69.67m2 |
入居決定でお祝い金最大100,000円
- 保証金
- -
- 償却・敷引
- -
- 築年数
- 築36年
- 所在階
- 7階
- 向き
- 南
Point
まずはお問い合わせ!
不動産会社は街のプロ、あなたに合った物件がきっと見つかります。
提供:ハウス・トゥ・ハウス・ネットサービス(株)赤羽駅前店(SUUMO経由)

詳細情報 川口南町ローヤルコーポ
物件紹介
川口南町ローヤルコーポはJR京浜東北線川口駅から徒歩16分にあるマンションです。
このお部屋は2階以上に位置しているので、通行人や周囲の住人からの視線が気になりにくく、防犯面でも安心です。
人気の南向き・フローリングのお部屋。角部屋でもあるため、周囲の居住者の生活音も気になりにくい場所です。キッチンはシステムキッチン仕様になっていますので、お料理好きの方にもぴったり。バス・トイレは別なので、のんびりお風呂タイムも楽しめるでしょう。また、雨の日でも浴室乾燥機を使えば、お洗濯も問題ありません。
通信設備面では、インターネット接続が可能です(別途工事、契約料が必要な場合あり)。
建物にはエレベーターがついているので、重い荷物があっても安心。共用部には宅配ボックスが設定されているので、不在の時にも荷物を受け取ることができます。
このお部屋は2階以上に位置しているので、通行人や周囲の住人からの視線が気になりにくく、防犯面でも安心です。
人気の南向き・フローリングのお部屋。角部屋でもあるため、周囲の居住者の生活音も気になりにくい場所です。キッチンはシステムキッチン仕様になっていますので、お料理好きの方にもぴったり。バス・トイレは別なので、のんびりお風呂タイムも楽しめるでしょう。また、雨の日でも浴室乾燥機を使えば、お洗濯も問題ありません。
通信設備面では、インターネット接続が可能です(別途工事、契約料が必要な場合あり)。
建物にはエレベーターがついているので、重い荷物があっても安心。共用部には宅配ボックスが設定されているので、不在の時にも荷物を受け取ることができます。
お金・契約の情報
※「-」と表示されているものは、実際は料金が発生するものもございます。詳細はお問い合わせください。
| 家賃 | 12万円 | 管理費・共益費 | 6,000円 |
|---|---|---|---|
| 敷金 | 12万円 | 礼金 | 12万円 |
| 入居決定でお祝い金最大100,000円 | |||
| 保証金 | - | 償却・敷引 | - |
| 住宅保険料 | - | 更新料 | - |
| 保証会社利用 | 必須 | 保証会社名 | - |
| 保証会社費用 | - | 保証会社備考 | 保証会社利用必 初回50%、10000円/年 学生プランは初回15000円 |
| 契約形態 | - | 契約期間 | - |
| 入居・引渡期間 | 即時 | 現況 | - |
| 契約備考 | 1年未満の解約は総賃料1ヶ月分の短期解約違約金有。更新事務手数料、13200円。 合計5.72万円(内訳:あんしんサポート241.65万円事務手数料1.32万円鍵交換代2.75万円) 更新料 新賃料1.00ヶ月分 3LDK 二人入居可 普通借家2年 損保【2万円2年】 バストイレ別、バルコニー、エアコン、ガスコンロ対応、クロゼット、フローリング、浴室乾燥機、室内洗濯置、シューズボックス、システムキッチン、南向き、追焚機能浴室、角住戸、脱衣所、エレベーター、洗面所独立、押入、即入居可、2面採光、最上階、3口以上コンロ、対面式キッチン、グリル付、二人入居相談、全居室フローリング、2沿線利用可、24時間換気システム、耐火構造、2駅利用可、敷地内ごみ置き場、都市ガス、保証会社利用可、IT重説対応物件 | ||
部屋の情報
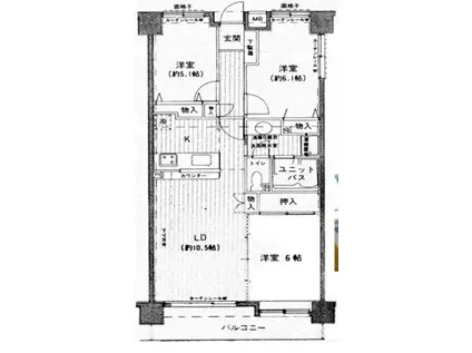
| 間取り | 3LDK | 専有面積 | 69.67m2 |
|---|---|---|---|
| 所在階 / 向き | 7階 / 南 | バルコニー面積 | - |
| 水道 / ガス | - | ||
| 設備 | バス・トイレ別、2階以上、浴室乾燥機、追い焚き、システムキッチン、エアコン、エレベーター、南向き、角部屋、バルコニー、フローリング、洗髪洗面化粧台、2口コンロ、コンロ:ガス、洗濯機:室内 | ||
| 当社物件ID | 19167125 | ||
建物の情報
| 建物名 | 川口南町ローヤルコーポ | ||
|---|---|---|---|
| 所在地 | 埼玉県川口市南町 | ||
| 交通 | JR京浜東北線 川口駅 徒歩16分 JR京浜東北線 西川口駅 徒歩20分 JR埼京線 浮間舟渡駅 徒歩47分 | ||
| 階数 | 7階建 | 総戸数 | - |
| 築年月 | 1990年03月 / 築36年 | エレベーター | あり |
| 駐車場 | なし | バイク置き場 | - |
| 駐輪場 | - | 管理人/管理会社 | - |
| 周辺環境 | その他 ローソン 川口六丁目店(コンビニ)まで661m その他 つばめや(スーパー)まで614m その他 ビーンズ西川口(その他)まで1670m その他 ララガーデン川口(ショッピングセンター)まで829m その他 コモディイイダ 仲町店(スーパー)まで367m その他 飯塚3丁目公園(公園)まで768m | ||
| 建物種別 | マンション | 建物構造 | RC(鉄筋コンクリート) |
この部屋の取扱い不動産会社
| 会社名 | ハウス・トゥ・ハウス・ネットサービス(株)赤羽駅前店(SUUMO経由) | ||
|---|---|---|---|
| 所在地 | 東京都北区赤羽1-9-3 赤羽駅前ビル102 | 交通 | - |
| 営業時間 | 10:00~18:30 | 定休日 | 水曜日 (1月~3月無休) |
| 免許番号 | 国土交通大臣7400 | 取引態様 | 仲介 |
| 不動産会社管理番号 | 100479885446 | 当社管理番号 | 89 |
| 所属団体 | (公社)全日本不動産協会東京都本部会員 | ||
| 公正取引協議会 | (公社)首都圏不動産公正取引協議会加盟 | ||
| 取扱い物件情報 | 物件詳細へ | ||
※各種情報と現状に差異がある場合は、現状優先となります。問い合わせをすることで、より詳しい条件、情報を確認する事ができます。
提供:ハウス・トゥ・ハウス・ネットサービス(株)赤羽駅前店(SUUMO経由)
この物件が気になったら掲載期限まであと12日
川口南町ローヤルコーポに条件(家賃・エリア)が近い物件一覧
| 写真 | 家賃 管理費等 | 敷金 礼金 | 間取り 専有面積 | 築年数 | 最寄り駅 所在地 | キープ | 詳細 |
|---|---|---|---|---|---|---|---|
マンション クアドリフォリオ浦和美園(2LDK/3階) | |||||||
![]() | 17.9万円 1万円 | 9.13万円 なし | 2LDK 70.41m2 | 築1年 | 埼玉高速鉄道 浦和美園駅 徒歩7分 埼玉県さいたま市緑区大字下野田 | 詳細を見る | |
アパート クレイノASABA(ワンルーム/2階) | |||||||
![]() | 9.2万円 5,500円 | なし 9.2万円 | ワンルーム 24.13m2 | 築10年 | 都営三田線 蓮根駅 徒歩13分 JR埼京線 浮間舟渡駅 徒歩14分 東京都板橋区坂下 | 詳細を見る | |
アパート ヴィラ赤羽(1K/2階) | |||||||
![]() | 7.8万円 なし | 7.8万円 7.8万円 | 1K 19.87m2 | 築16年 | 埼京線 北赤羽駅 徒歩3分 東京都北区赤羽北2丁目 | 詳細を見る | |
マンション ソレアード中青木(1K/3階) | |||||||
![]() | 7.9万円 7,000円 | なし 3.95万円 | 1K 31.12m2 | 築20年 | JR京浜東北線 西川口駅 徒歩11分 JR京浜東北線 川口駅 徒歩13分 埼玉高速鉄道 川口元郷駅 徒歩24分 埼玉県川口市中青木 | 詳細を見る | |
マンション レオパレスコリーヌ(1K/1階) | |||||||
![]() | 7.4万円 7,000円 | なし 7.4万円 | 1K 20.81m2 | 築19年 | JR埼京線 南与野駅 徒歩10分 JR埼京線 与野本町駅 徒歩24分 JR埼京線 中浦和駅 徒歩26分 埼玉県さいたま市桜区 | 詳細を見る | |
マンション ドミール宮町(ワンルーム/1階) | |||||||
![]() | 7.5万円 5,000円 | 7.5万円 7.5万円 | ワンルーム 24.29m2 | 築9年 | JR京浜東北線 大宮駅(埼玉) 徒歩6分 JR埼京線 大宮駅(埼玉) 徒歩6分 埼玉県さいたま市大宮区宮町 | 詳細を見る | |
マンション メインステージTOKYO・ノースHYS(1K/3階) | |||||||
![]() | 8.6万円 8,000円 | なし 8.6万円 | 1K 25.5m2 | 築11年 | 埼京線 北赤羽駅 徒歩11分 東京都板橋区小豆沢4丁目 | 詳細を見る | |
マンション ラヴィベール(1LDK/4階) | |||||||
![]() | 15万円 1.2万円 | なし 30万円 | 1LDK 47.3m2 | 築2年 | JR京浜東北線 南浦和駅 徒歩9分 JR京浜東北線 浦和駅 徒歩25分 JR埼京線 武蔵浦和駅 徒歩33分 埼玉県さいたま市南区南浦和 | 詳細を見る | |








