賃貸アパート
ベルエポックKAの賃貸物件情報(2LDK/1階)
| 家賃 | 管理費等 | 敷金 | 礼金 | 間取り | 専有面積 |
|---|---|---|---|---|---|
| 5万円 | 3,000円 | 10万円 | 5万円 | 2LDK | 60.45m2 |
入居決定でお祝い金最大100,000円
- 保証金
- -
- 償却・敷引
- -
- 築年数
- 築31年
- 所在階
- 1階
- 向き
- 南
Point
隣室との接地面が少ない角部屋は、騒音トラブルを防止できます。快適に生活する上で欠かせないエアコンが設置されている物件です。2台分の駐車スペースが確保された物件です。現在空家です。内見等お気軽にお問い合わせください。駅から徒歩13分のところにある物件はいかがでしょうか。住みやすい環境が嬉しい賃貸物件で
提供:株式会社後楽不動産 ホームメイトFC門田屋敷店(賃貸スモッカ経由)

詳細情報 ベルエポックKA
物件紹介
ベルエポックKAは赤穂線大多羅駅から徒歩13分にあるアパートです。
人気の南向きのお部屋。また、フローリングなのでお掃除もラクラク。バス・トイレ別の仕様で、のんびりお風呂タイムも楽しめます。
人気の南向きのお部屋。また、フローリングなのでお掃除もラクラク。バス・トイレ別の仕様で、のんびりお風呂タイムも楽しめます。
お金・契約の情報
※「-」と表示されているものは、実際は料金が発生するものもございます。詳細はお問い合わせください。
| 家賃 | 5万円 | 管理費・共益費 | 3,000円 |
|---|---|---|---|
| 敷金 | 10万円 | 礼金 | 5万円 |
| 入居決定でお祝い金最大100,000円 | |||
| 保証金 | - | 償却・敷引 | - |
| 住宅保険料 | 住宅保険料あり | 更新料 | - |
| 契約形態 | - | 契約期間 | 2年 |
| 入居・引渡期間 | 即時 | 現況 | 空室 |
| 契約備考 | どこの不動産会社にお願いしようか迷っている方☆お部屋探しはホームメイト後楽不動産へ♪当社スタッフはお客様に寄り添った提案を心がけております♪女性スタッフ対応の要望や、初めてのお引越し時のアドバイス、初期費用についてや、保証人について、などなど何でもお気軽にご相談いただけたらと思います!お客様の条件に合う物件を納得いくまで一生懸命お探します♪ 全居室フローリングが魅力的な物件となっています。こちらの物件は閑静な住宅地にあります。駐輪場付きの物件です。建築面積60.45㎡の物件です。家賃が5万円以下のお部屋になっております。転居先に住み心地も良いこちらの賃貸物件。充実した新生活を過ごしましょう。収納はシューズボックス・クロゼット・全居室収納などが備え付けられているので、衣類や日用品の収納に重宝します。忙しい朝でも鏡を見ながらサッと身支度を整えることができる独立洗面台を採用しています。玄関先まで覗き穴を覗きに行かなくてもインターホン越しに誰が来たのかを確認できるので防犯対策につながります。「ベルエポックK 」の物件情報をお探しならお気軽にお問い合わせ下さい。 鍵交換費:13,200円 保証会社:利用必須 賃料等合計の50%(最低2万円)・月額保証料:賃料等合計の1% その他設備/条件:IT重説 対応物件、免震・耐震・制震、1階の物件、独立洗面台、TVドアホン、即入居可 | ||
部屋の情報
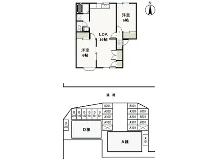
| 間取り | 2LDK | 専有面積 | 60.45m2 |
|---|---|---|---|
| 間取り詳細 | 洋室(6帖)、洋室(6帖)、LDK(16帖) | ||
| 所在階 / 向き | 1階 / 南 | バルコニー面積 | - |
| 水道 / ガス | ガス【プロパン】 | ||
| 設備 | バス・トイレ別、エアコン、温水洗浄便座、南向き、フローリング、コンロ:ガス、専用庭、出窓、洗濯機:室内 | ||
| 当社物件ID | 159486197 | ||
建物の情報
| 建物名 | ベルエポックKA | ||
|---|---|---|---|
| 所在地 | 岡山県岡山市東区可知5丁目 | ||
| 交通 | 赤穂線 大多羅駅 徒歩13分 赤穂線 西大寺駅 徒歩40分 山陽本線 東岡山駅 徒歩49分 | ||
| 階数 | 2階建 | 総戸数 | - |
| 築年月 | 1995年02月 / 築31年 | エレベーター | - |
| 駐車場 | 空有 | バイク置き場 | - |
| 駐輪場 | あり | 管理人/管理会社 | - |
| 建物種別 | アパート | 建物構造 | 木造 |
この部屋の取扱い不動産会社
| 会社名 | 株式会社後楽不動産 ホームメイトFC門田屋敷店(賃貸スモッカ経由) | ||
|---|---|---|---|
| 所在地 | 岡山県岡山市中区門田屋敷1-7-38 | 交通 | - |
| 営業時間 | - | 定休日 | - |
| 免許番号 | 岡山県知事免許(1)第6267号 | 取引態様 | 仲介 |
| 不動産会社管理番号 | kouraku-fudousan3_330730000430237 | 当社管理番号 | 463 |
| 所属団体 | (公社)全国宅地建物取引業協会連合会\n(一社)岡山県宅地建物取引業協会\n四国地区不動産公正取引協議会 | ||
| 公正取引協議会 | (公社)全国宅地建物取引業保証協会 | ||
| 取扱い物件情報 | 物件詳細へ | ||
※各種情報と現状に差異がある場合は、現状優先となります。問い合わせをすることで、より詳しい条件、情報を確認する事ができます。
提供:株式会社後楽不動産 ホームメイトFC門田屋敷店(賃貸スモッカ経由)
この物件が気になったら掲載期限まであと6日
ベルエポックKAに条件(家賃・エリア)が近い物件一覧
| 写真 | 家賃 管理費等 | 敷金 礼金 | 間取り 専有面積 | 築年数 | 最寄り駅 所在地 | キープ | 詳細 |
|---|---|---|---|---|---|---|---|
アパート プランドールB棟(2LDK/2階) | |||||||
![]() | 7.3万円 4,000円 | なし なし | 2LDK 66.14m2 | 築17年 | 山陽本線 高島駅(岡山) 徒歩17分 山陽本線 東岡山駅 徒歩35分 山陽本線 西川原駅 徒歩39分 岡山県岡山市中区赤田 | 詳細を見る | |
アパート フォレスト東平島 A棟(2LDK/2階) | |||||||
![]() | 4.4万円 2,000円 | なし 4.4万円 | 2LDK 52.66m2 | 築28年 | 岡山県岡山市東区東平島 | 詳細を見る | |
アパート ハマナスB棟(1LDK/1階) | |||||||
![]() | 5万円 3,500円 | なし 5万円 | 1LDK 42.39m2 | 築7年 | 赤穂線 大多羅駅 徒歩19分 岡山県岡山市東区広谷 | 詳細を見る | |
アパート メゾンヴェルデA(2LDK/2階) | |||||||
![]() | 4.7万円 3,000円 | 9.4万円 4.7万円 | 2LDK 60.45m2 | 築32年 | 赤穂線 東岡山駅 徒歩23分 山陽本線 東岡山駅 徒歩27分 山陽本線 高島駅(岡山) 徒歩40分 岡山県岡山市中区四御神 | 詳細を見る | |
アパート コーポ守安(3DK/2階) | |||||||
![]() | 4.2万円 3,000円 | 4.2万円 4.2万円 | 3DK 54.45m2 | 築38年 | 山陽本線 倉敷駅 徒歩21分 岡山県倉敷市浜ノ茶屋2丁目 | 詳細を見る | |
アパート メゾン・タチバナC(2LDK/1階) | |||||||
![]() | 5.9万円 3,000円 | 11.8万円 5.9万円 | 2LDK 54.65m2 | 築20年 | 赤穂線 大多羅駅 徒歩22分 山陽本線 東岡山駅 徒歩43分 赤穂線 西大寺駅 徒歩56分 岡山県岡山市東区益野町 | 詳細を見る | |
アパート ディアス関Ⅰ(2LDK/1階) | |||||||
![]() | 4.8万円 2,000円 | なし なし | 2LDK 51.55m2 | 築34年 | 山陽本線 高島駅(岡山) 徒歩14分 赤穂線 東岡山駅 徒歩26分 岡山県岡山市中区関 | 詳細を見る | |
アパート ディアス雄町(3DK/2階) | |||||||
![]() | 4.5万円 3,000円 | なし なし | 3DK 54.81m2 | 築33年 | 山陽本線 東岡山駅 徒歩16分 岡山県岡山市中区雄町 | 詳細を見る | |









