賃貸マンション
サンクタスガーデン砧の賃貸物件情報(1LDK/4階)
| 家賃 | 管理費等 | 敷金 | 礼金 | 間取り | 専有面積 |
|---|---|---|---|---|---|
| 13万円 | 1万円 | 13万円 | なし | 1LDK | 42.05m2 |
入居決定でお祝い金最大100,000円
- 保証金
- -
- 償却・敷引
- -
- 築年数
- 築21年
- 所在階
- 4階
- 向き
- 東
Point
共用部分の設備も高級感があるマンションです。賃貸マンションより1ランク上の物件に住みたい方におすすめです。
提供:香陵住販(株)東京支社賃貸課(SUUMO経由)

詳細情報 サンクタスガーデン砧
物件紹介
サンクタスガーデン砧は小田急線千歳船橋駅から徒歩11分にあるマンションです。
このお部屋は2階以上に位置しているので、通行人や周囲の住人からの視線が気になりにくく、防犯面でも安心。建物のエントランスはオートロックがついており、インターホンにはTVモニタもついているため、相手の顔を確認してから来客対応することができます。
フローリングのお部屋なのでお掃除もラクラク。キッチンはシステムキッチン仕様になっていますので、お料理好きの方にもぴったり。バス・トイレは別なので、のんびりお風呂タイムも楽しめるでしょう。また、雨の日でも浴室乾燥機を使えば、お洗濯も問題ありません。
通信設備面ではBSアンテナ・CSアンテナがあり、CATVにも対応しているので、おうち時間も充実するでしょう(別途工事、契約料が必要な場合あり)。
建物にはエレベーターがついているので、重い荷物があっても安心。共用部には宅配ボックスが設定されているので、不在の時にも荷物を受け取ることができます。
このお部屋は2階以上に位置しているので、通行人や周囲の住人からの視線が気になりにくく、防犯面でも安心。建物のエントランスはオートロックがついており、インターホンにはTVモニタもついているため、相手の顔を確認してから来客対応することができます。
フローリングのお部屋なのでお掃除もラクラク。キッチンはシステムキッチン仕様になっていますので、お料理好きの方にもぴったり。バス・トイレは別なので、のんびりお風呂タイムも楽しめるでしょう。また、雨の日でも浴室乾燥機を使えば、お洗濯も問題ありません。
通信設備面ではBSアンテナ・CSアンテナがあり、CATVにも対応しているので、おうち時間も充実するでしょう(別途工事、契約料が必要な場合あり)。
建物にはエレベーターがついているので、重い荷物があっても安心。共用部には宅配ボックスが設定されているので、不在の時にも荷物を受け取ることができます。
お金・契約の情報
※「-」と表示されているものは、実際は料金が発生するものもございます。詳細はお問い合わせください。
| 家賃 | 13万円 | 管理費・共益費 | 1万円 |
|---|---|---|---|
| 敷金 | 13万円 | 礼金 | なし |
| 入居決定でお祝い金最大100,000円 | |||
| 保証金 | - | 償却・敷引 | - |
| 住宅保険料 | - | 更新料 | - |
| 保証会社利用 | 必須 | 保証会社名 | - |
| 保証会社費用 | - | 保証会社備考 | 保証会社利用必 エポスカード初回50%、月次900円 |
| 契約形態 | - | 契約期間 | - |
| 入居・引渡期間 | 相談 | 現況 | - |
| 契約備考 | 合計3.3万円(内訳:ダスキン消毒16500円/24時間サポート16500円) 鍵交換代別途見積もり 1LDK 単身者可/二人入居可/事務所利用不可 普通借家2年 損保【2万円】 バストイレ別、エアコン、ガスコンロ対応、クロゼット、フローリング、TVインターホン、浴室乾燥機、オートロック、室内洗濯置、シューズボックス、システムキッチン、追焚機能浴室、温水洗浄便座、エレベーター、洗面化粧台、駐輪場、宅配ボックス、CATV、礼金不要、BS・CS、保証人不要、敷金1ヶ月、洗濯機、3駅以上利用可、都市ガス、IT重説対応物件 | ||
部屋の情報
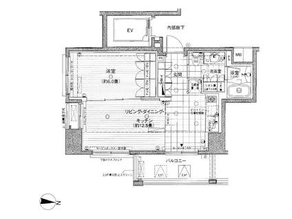
| 間取り | 1LDK | 専有面積 | 42.05m2 |
|---|---|---|---|
| 所在階 / 向き | 4階 / 東 | バルコニー面積 | - |
| 水道 / ガス | - | ||
| 設備 | バス・トイレ別、2階以上、オートロック、テレビドアホン、宅配ボックス、浴室乾燥機、追い焚き、システムキッチン、エアコン、エレベーター、温水洗浄便座、フローリング、コンロ:ガス、CATV、CSアンテナ、BSアンテナ、洗濯機:室内 | ||
| 当社物件ID | 29931141 | ||
建物の情報
| 建物名 | サンクタスガーデン砧 | ||
|---|---|---|---|
| 所在地 | 東京都世田谷区砧 | ||
| 交通 | 小田急線 千歳船橋駅 徒歩11分 小田急線 祖師ケ谷大蔵駅 徒歩12分 小田急線 経堂駅 徒歩27分 | ||
| 階数 | 9階建 | 総戸数 | 34戸 |
| 築年月 | 2005年04月 / 築21年 | エレベーター | あり |
| 駐車場 | なし | バイク置き場 | - |
| 駐輪場 | あり | 管理人/管理会社 | - |
| 周辺環境 | その他 ウエルシア世田谷砧店(ドラッグストア)まで208m その他 ファミリーマート 砧城山通り店(コンビニ)まで471m その他 生活クラブ保育園ぽむ・砧(幼稚園・保育園)まで138m その他 桜ケ丘保育園(幼稚園・保育園)まで424m その他 世田谷桜丘五郵便局(郵便局)まで196m その他 サミットストア 砧環八通り店(スーパー)まで208m | ||
| 建物種別 | マンション | 建物構造 | RC(鉄筋コンクリート) |
この部屋の取扱い不動産会社
| 会社名 | 香陵住販(株)東京支社賃貸課(SUUMO経由) | ||
|---|---|---|---|
| 所在地 | 東京都台東区上野6-16-10 | 交通 | - |
| 営業時間 | 9:15~18:00 | 定休日 | 水曜日 |
| 免許番号 | 国土交通大臣7026 | 取引態様 | 代理 |
| 不動産会社管理番号 | 100486150250 | 当社管理番号 | 89 |
| 所属団体 | (公社)東京都宅地建物取引業協会会員 | ||
| 公正取引協議会 | (公社)首都圏不動産公正取引協議会加盟 | ||
| 取扱い物件情報 | 物件詳細へ | ||
※各種情報と現状に差異がある場合は、現状優先となります。問い合わせをすることで、より詳しい条件、情報を確認する事ができます。
提供:香陵住販(株)東京支社賃貸課(SUUMO経由)
この物件が気になったら掲載期限まであと11日
サンクタスガーデン砧に条件(家賃・エリア)が近い物件一覧
| 写真 | 家賃 管理費等 | 敷金 礼金 | 間取り 専有面積 | 築年数 | 最寄り駅 所在地 | キープ | 詳細 |
|---|---|---|---|---|---|---|---|
マンション SAKURA(2LDK/2階) | |||||||
![]() | 20.1万円 5,000円 | 20.1万円 なし | 2LDK 54.84m2 | 築5年 | 京急本線 梅屋敷駅(東京) 徒歩7分 京急本線 大森町駅 徒歩9分 東京都大田区大森中 | 詳細を見る | |
アパート コーポなごみ(3DK/1階) | |||||||
![]() | 12万円 2,000円 | 12万円 12万円 | 3DK 70.8m2 | 築58年 | 東急池上線 千鳥町駅 徒歩14分 東急多摩川線 武蔵新田駅 徒歩19分 東京都浅草線 西馬込駅 徒歩19分 東京都大田区久が原5丁目 | 詳細を見る | |
マンション CHARMANTCLASSIC(1LDK/4階) | |||||||
![]() | 13.3万円 1万円 | 13.3万円 26.6万円 | 1LDK 32.7m2 | 築16年 | JR京浜東北線 大森駅(東京) 徒歩6分 京急本線 大森海岸駅 徒歩10分 京急本線 平和島駅 徒歩15分 東京都大田区大森北 | 詳細を見る | |
アパート フォレスタ世田谷(2LDK/2階) | |||||||
![]() | 18万円 1,000円 | 18万円 なし | 2LDK 47.7m2 | 築55年 | 東急池上線 雪が谷大塚駅 徒歩6分 東急東横線 田園調布駅 徒歩16分 東急目黒線 多摩川駅 徒歩16分 東京都世田谷区東玉川 | 詳細を見る | |
マンション グラン シャリオ(1K/2階) | |||||||
![]() | 8.1万円 5,600円 | 8.1万円 なし | 1K 22.46m2 | 築17年 | 東急多摩川線 武蔵新田駅 徒歩9分 東急多摩川線 矢口渡駅 徒歩11分 東京都大田区矢口2丁目 | 詳細を見る | |
タウンハウス 大田菜園長屋(2LDK) | |||||||
![]() | 15.4万円 5,000円 | 15.4万円 23.1万円 | 2LDK 52.17m2 | 築10年 | 京浜急行電鉄本線 雑色駅 徒歩8分 京浜急行電鉄本線 六郷土手駅 徒歩13分 東京都大田区東六郷3丁目 | 詳細を見る | |
マンション ウイングコート東雪谷(ワンルーム/4階) | |||||||
![]() | 9.1万円 4,000円 | 9.1万円 9.1万円 | ワンルーム 30.94m2 | 築39年 | 東急池上線 石川台駅 徒歩2分 東急大井町線 大岡山駅 徒歩18分 東急大井町線 緑が丘駅(東京) 徒歩20分 東京都大田区東雪谷 | 詳細を見る | |
マンション SEED JUST B-BASE Ⅱ(1LDK/4階) | |||||||
![]() | 8.8万円 1.5万円 | 8.8万円 8.8万円 | 1LDK 23.07m2 | 築1年 | 東京モノレール羽田 昭和島駅 徒歩11分 京浜急行電鉄本線 梅屋敷駅(東京) 徒歩19分 東京都大田区大森南4丁目 | 詳細を見る | |









