賃貸マンション
キュアコート神宮前の賃貸物件情報(1K/3階)
| 家賃 | 管理費等 | 敷金 | 礼金 | 間取り | 専有面積 |
|---|---|---|---|---|---|
| 13.9万円 | 9,000円 | 13.9万円 | 13.9万円 | 1K | 26.38m2 |
入居決定でお祝い金最大100,000円
- 保証金
- -
- 償却・敷引
- -
- 築年数
- 築13年
- 所在階
- 3階
- 向き
- 南東
Point
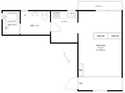
神宮前の閑静・交通至便な好立地 最上階・二面採光につき日照・通風良好 TVモニター付オートロック 可動式クローゼット 機械警備 浴室換気乾燥暖房機 24時間換気 システムキッチン(ガス2口)
提供:青山鈴木不動産(株)(SUUMO経由)

詳細情報 キュアコート神宮前
物件紹介
キュアコート神宮前は東京メトロ銀座線外苑前駅から徒歩7分にあり、駅近で通勤通学に便利なマンションです。
このお部屋は2階以上に位置しているので、通行人や周囲の住人からの視線が気になりにくく、防犯面でも安心。建物のエントランスはオートロックがついており、インターホンにはTVモニタもついているため、相手の顔を確認してから来客対応することができます。
人気の南向き・フローリングのお部屋。角部屋でもあるため、周囲の居住者の生活音も気になりにくい場所です。キッチンはシステムキッチン仕様になっていますので、お料理好きの方にもぴったり。バス・トイレは別なので、のんびりお風呂タイムも楽しめるでしょう。また、雨の日でも浴室乾燥機を使えば、お洗濯も問題ありません。
通信設備面では、インターネット接続が可能です(別途工事、契約料が必要な場合あり)。
このお部屋は2階以上に位置しているので、通行人や周囲の住人からの視線が気になりにくく、防犯面でも安心。建物のエントランスはオートロックがついており、インターホンにはTVモニタもついているため、相手の顔を確認してから来客対応することができます。
人気の南向き・フローリングのお部屋。角部屋でもあるため、周囲の居住者の生活音も気になりにくい場所です。キッチンはシステムキッチン仕様になっていますので、お料理好きの方にもぴったり。バス・トイレは別なので、のんびりお風呂タイムも楽しめるでしょう。また、雨の日でも浴室乾燥機を使えば、お洗濯も問題ありません。
通信設備面では、インターネット接続が可能です(別途工事、契約料が必要な場合あり)。
お金・契約の情報
※「-」と表示されているものは、実際は料金が発生するものもございます。詳細はお問い合わせください。
| 家賃 | 13.9万円 | 管理費・共益費 | 9,000円 |
|---|---|---|---|
| 敷金 | 13.9万円 | 礼金 | 13.9万円 |
| 入居決定でお祝い金最大100,000円 | |||
| 保証金 | - | 償却・敷引 | - |
| 住宅保険料 | - | 更新料 | - |
| 保証会社利用 | 必須 | 保証会社名 | - |
| 保証会社費用 | - | 保証会社備考 | 保証会社利用必 株式会社フェアー信用保証 契約時保証料:103,600円 ※継続保証料はかかりません |
| 契約形態 | - | 契約期間 | - |
| 入居・引渡期間 | - | 現況 | - |
| 入居可能条件 | 事務所可 | ||
| 契約備考 | 非喫煙者限定 可動式クローゼット2個付き 1K 単身者可/事務所利用相談 普通借家2年 損保【2万円2年】 バストイレ別、バルコニー、エアコン、フローリング、TVインターホン、浴室乾燥機、オートロック、室内洗濯置、陽当り良好、シューズボックス、システムキッチン、角住戸、温水洗浄便座、洗面所独立、洗面化粧台、2口コンロ、光ファイバー、閑静な住宅地、2面採光、最上階、全居室洋室、東南角住戸、敷金1ヶ月、全居室フローリング、2沿線利用可、ディンプルキー、駅まで平坦、キッチンに窓、エアコン全室、1フロア2住戸、浴室に窓、事務所相談、24時間換気システム、外壁コンクリート、平坦地、3方角住戸、2駅利用可、3駅以上利用可、3沿線以上利用可、駅徒歩10分以内、上階無し、セキュリティ会社加入済、全居室8畳以上、都市ガス、タンクレストイレ、礼金1ヶ月、保証会社利用可、初期費用カード決済可、通風良好 入居日:'26年3月下旬 | ||
部屋の情報
| 間取り | 1K | 専有面積 | 26.38m2 |
|---|---|---|---|
| 所在階 / 向き | 3階 / 南東 | バルコニー面積 | 1m2 |
| 水道 / ガス | - | ||
| 設備 | バス・トイレ別、2階以上、オートロック、テレビドアホン、浴室乾燥機、インターネット対応、システムキッチン、エアコン、温水洗浄便座、南向き、角部屋、バルコニー、フローリング、洗髪洗面化粧台、2口コンロ、洗濯機:室内 | ||
| 当社物件ID | 54281152 | ||
建物の情報
| 建物名 | キュアコート神宮前 | ||
|---|---|---|---|
| 所在地 | 東京都渋谷区神宮前 | ||
| 交通 | 東京メトロ銀座線 外苑前駅 徒歩7分 東京メトロ銀座線 表参道駅 徒歩8分 東京メトロ千代田線 明治神宮前駅 徒歩10分 | ||
| 階数 | 3階建 | 総戸数 | 6戸 |
| 築年月 | 2013年08月 / 築13年 | エレベーター | - |
| 駐車場 | なし | バイク置き場 | - |
| 駐輪場 | - | 管理人/管理会社 | - |
| 周辺環境 | その他 ビオセボン外苑西通り店(スーパー)まで201m その他 成城石井南青山店(スーパー)まで521m その他 まいばすけっと神宮前2丁目商店街店(スーパー)まで621m その他 ファミリーマート神宮前三丁目店(コンビニ)まで164m その他 どらっぐぱぱす北青山店(ドラッグストア)まで317m その他 Olympic青山店(ホームセンター)まで521m | ||
| 建物種別 | マンション | 建物構造 | RC(鉄筋コンクリート) |
この部屋の取扱い不動産会社
| 会社名 | 青山鈴木不動産(株)(SUUMO経由) | ||
|---|---|---|---|
| 所在地 | 東京都港区南青山2-2-15 ウィン青山519 | 交通 | - |
| 営業時間 | 10:00~19:00 | 定休日 | 土・日・祝(電話応対可能です) |
| 免許番号 | 東京都知事101973 | 取引態様 | 仲介 |
| 不動産会社管理番号 | 100229158364 | 当社管理番号 | 89 |
| 所属団体 | (公社)東京都宅地建物取引業協会会員 | ||
| 公正取引協議会 | (公社)首都圏不動産公正取引協議会加盟 | ||
| 取扱い物件情報 | 物件詳細へ | ||
※各種情報と現状に差異がある場合は、現状優先となります。問い合わせをすることで、より詳しい条件、情報を確認する事ができます。
提供:青山鈴木不動産(株)(SUUMO経由)
この物件が気になったら掲載期限まであと11日
キュアコート神宮前に条件(家賃・エリア)が近い物件一覧
| 写真 | 家賃 管理費等 | 敷金 礼金 | 間取り 専有面積 | 築年数 | 最寄り駅 所在地 | キープ | 詳細 |
|---|---|---|---|---|---|---|---|
アパート テラスハウス井萩(2LDK/1階) | |||||||
![]() | 17.6万円 1.2万円 | なし 17.6万円 | 2LDK 54.17m2 | 新築 | 西武鉄道新宿線 井荻駅 徒歩3分 西武鉄道新宿線 上井草駅 徒歩12分 東京都杉並区上井草1丁目 | 詳細を見る | |
アパート シャングリラ(2K/2階) | |||||||
![]() | 11万円 なし | 11万円 11万円 | 2K 37.51m2 | 築35年 | JR中央線 西荻窪駅 徒歩10分 京王井の頭線 三鷹台駅 徒歩15分 東京都杉並区松庵 | 詳細を見る | |
マンション リーガランド早稲田鶴巻町(1LDK/1階) | |||||||
![]() | 18.5万円 2万円 | なし なし | 1LDK 52.94m2 | 築5年 | 東京メトロ東西線 早稲田駅(メトロ) 徒歩10分 東京メトロ有楽町線 江戸川橋駅 徒歩10分 東京メトロ東西線 神楽坂駅 徒歩16分 東京都新宿区早稲田鶴巻町 | 詳細を見る | |
マンション HYS STAGE 西荻窪(1K/2階) | |||||||
![]() | 11万円 8,000円 | なし 11万円 | 1K 25.81m2 | 築6年 | JR総武線 西荻窪駅 徒歩6分 京王井の頭線 三鷹台駅 徒歩21分 京王井の頭線 吉祥寺駅 徒歩24分 東京都杉並区松庵 | 詳細を見る | |
アパート フュチュール モンレーヴ(1LDK/2階) | |||||||
![]() | 11.7万円 3,000円 | 11.7万円 11.7万円 | 1LDK 39.33m2 | 築12年 | JR横須賀線 西大井駅 徒歩7分 都営浅草線 馬込駅 徒歩11分 都営浅草線 中延駅 徒歩16分 東京都品川区西大井 | 詳細を見る | |
マンション THE SANCTUS 品川 サウス(1LDK/3階) | |||||||
![]() | 14.7万円 6,000円 | なし なし | 1LDK 30.03m2 | 築1年 | 京急本線 立会川駅 徒歩4分 京急本線 鮫洲駅 徒歩15分 JR京浜東北線 大井町駅 徒歩19分 東京都品川区南大井 | 詳細を見る | |
マンション GRAN PASEO大崎戸越銀座I(1LDK/3階) | |||||||
![]() | 17.3万円 1万円 | なし なし | 1LDK 29.03m2 | 築1年 | JR山手線 大崎駅 徒歩9分 都営浅草線 戸越駅 徒歩12分 東急大井町線 下神明駅 徒歩12分 東京都品川区西品川 | 詳細を見る | |








