賃貸マンション
PARK LANE KUJOの賃貸物件情報(1LDK/11階)
| 家賃 | 管理費等 | 敷金 | 礼金 | 間取り | 専有面積 |
|---|---|---|---|---|---|
| 15.25万円 | 1万円 | 15.25万円 | なし | 1LDK | 46.23m2 |
入居決定でお祝い金最大100,000円
Point
2026年1月完成予定新築物件。設備充実。嬉しいインターネット無料。新生活が幸せであふれるようなご提案を心がけております。初期費用クレジット決済可能物件。お部屋探しのことなら住むーズ 堀江店まで。
提供:住む→ズ四ツ橋堀江店(株)谷山企画(SUUMO経由)

詳細情報 PARK LANE KUJO
物件紹介
PARK LANE KUJOは阪神電鉄阪神なんば線九条駅から徒歩2分にあり、駅近で通勤通学に便利なマンションです。
このお部屋は2階以上に位置しているので、通行人や周囲の住人からの視線が気になりにくく、防犯面でも安心。建物のエントランスはオートロックがついており、インターホンにはTVモニタもついているため、相手の顔を確認してから来客対応することができます。
人気の角部屋で周囲の居住者の生活音も気になりにくく、また、フローリングのお部屋なのでお掃除もラクラク。室内にはウォークインクローゼットがありますので、たくさんの荷物も効率的に収納ができます。キッチンはシステムキッチン仕様になっていますので、お料理好きの方にもぴったり。バス・トイレは別なので、のんびりお風呂タイムも楽しめるでしょう。また、雨の日でも浴室乾燥機を使えば、お洗濯も問題ありません。
通信設備面では、インターネットが無料で使えるので、月々の出費を抑えられるのも魅力です。また、BSアンテナ・CSアンテナがありCATVにも対応しているので、おうち時間も充実するでしょう(別途工事、BS・CS・CATVの契約料等が必要な場合あり)。
建物にはエレベーターがついているので、重い荷物があっても安心。共用部には宅配ボックスが設定されているので、不在の時にも荷物を受け取ることができます。
このお部屋は2階以上に位置しているので、通行人や周囲の住人からの視線が気になりにくく、防犯面でも安心。建物のエントランスはオートロックがついており、インターホンにはTVモニタもついているため、相手の顔を確認してから来客対応することができます。
人気の角部屋で周囲の居住者の生活音も気になりにくく、また、フローリングのお部屋なのでお掃除もラクラク。室内にはウォークインクローゼットがありますので、たくさんの荷物も効率的に収納ができます。キッチンはシステムキッチン仕様になっていますので、お料理好きの方にもぴったり。バス・トイレは別なので、のんびりお風呂タイムも楽しめるでしょう。また、雨の日でも浴室乾燥機を使えば、お洗濯も問題ありません。
通信設備面では、インターネットが無料で使えるので、月々の出費を抑えられるのも魅力です。また、BSアンテナ・CSアンテナがありCATVにも対応しているので、おうち時間も充実するでしょう(別途工事、BS・CS・CATVの契約料等が必要な場合あり)。
建物にはエレベーターがついているので、重い荷物があっても安心。共用部には宅配ボックスが設定されているので、不在の時にも荷物を受け取ることができます。
お金・契約の情報
※「-」と表示されているものは、実際は料金が発生するものもございます。詳細はお問い合わせください。
| 家賃 | 15.25万円 | 管理費・共益費 | 1万円 |
|---|---|---|---|
| 敷金 | 15.25万円 | 礼金 | なし |
| 入居決定でお祝い金最大100,000円 | |||
| 保証金 | - | 償却・敷引 | - |
| 住宅保険料 | - | 更新料 | - |
| 保証会社利用 | 必須 | 保証会社名 | 日本セーフティー |
| 保証会社費用 | - | 保証会社備考 | 日本セーフティー利用必 初回保証料:総賃料の40% |
| 契約形態 | - | 契約期間 | - |
| 入居・引渡期間 | - | 現況 | - |
| 入居可能条件 | 事務所可 | ||
| 契約備考 | 合計4.4万円(内訳:ハウスクリーニング代44000円) 1LDK 単身者可/事務所利用相談/ルームシェア相談 普通借家2年 損保【2万円2年】 バストイレ別、エアコン、ガスコンロ対応、クロゼット、フローリング、浴室乾燥機、室内洗濯置、陽当り良好、シューズボックス、温水洗浄便座、脱衣所、エレベーター、洗面所独立、洗面化粧台、2口コンロ、駐輪場、CATV、礼金不要、BS・CS、ウォークインクロゼット、保証人不要、敷金1ヶ月、CATVインターネット、二人入居相談、バイク置場、ネット使用料不要、眺望良好、保証金不要、事務所相談、築2年以内、ルームシェア相談、未入居、駅徒歩5分以内、24時間ゴミ出し可、敷地内ごみ置き場、都市ガス、高速ネット対応、IT重説対応物件、LGBTフレンドリー、初期費用カード決済可、通風良好 入居日:'26年1月下旬 | ||
部屋の情報
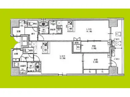
| 間取り | 1LDK | 専有面積 | 46.23m2 |
|---|---|---|---|
| 所在階 / 向き | 11階 / - | バルコニー面積 | - |
| 水道 / ガス | - | ||
| 設備 | バス・トイレ別、2階以上、浴室乾燥機、ウォークインクローゼット、インターネット対応、エアコン、エレベーター、温水洗浄便座、フローリング、洗髪洗面化粧台、2口コンロ、コンロ:ガス、CATV、CSアンテナ、BSアンテナ、インターネット使用料無料、洗濯機:室内 | ||
| 当社物件ID | 159945328 | ||
建物の情報
| 建物名 | PARK LANE KUJO | ||
|---|---|---|---|
| 所在地 | 大阪府大阪市西区九条 | ||
| 交通 | 阪神電鉄阪神なんば線 九条駅(阪神) 徒歩2分 | ||
| 階数 | 14階建 | 総戸数 | - |
| 築年月 | 2026年01月 / 新築 | エレベーター | あり |
| 駐車場 | なし | バイク置き場 | あり |
| 駐輪場 | あり | 管理人/管理会社 | - |
| 周辺環境 | その他 THE炭-ズ 九条店(その他)まで174m その他 セブンイレブン 大阪ナインモール九条店(コンビニ)まで167m その他 ザ・ダイソー 大阪ナインモール九条店(スーパー)まで241m その他 マツモトキヨシ九条店(ドラッグストア)まで205m その他 スーパー玉出 九条店(スーパー)まで350m その他 ファミリーマート 九条店(コンビニ)まで376m | ||
| 建物種別 | マンション | 建物構造 | RC(鉄筋コンクリート) |
この部屋の取扱い不動産会社
| 会社名 | 住む→ズ四ツ橋堀江店(株)谷山企画(SUUMO経由) | ||
|---|---|---|---|
| 所在地 | 大阪府大阪市西区北堀江1-2-17ー6階 EAST | 交通 | - |
| 営業時間 | 9:00-21:30 | 定休日 | ☆年中無休☆年末年始 |
| 免許番号 | 大阪府知事58352 | 取引態様 | 仲介 |
| 不動産会社管理番号 | 100474921007 | 当社管理番号 | 89 |
| 所属団体 | (一社)大阪府宅地建物取引業協会会員 | ||
| 公正取引協議会 | (公社)近畿地区不動産公正取引協議会加盟 | ||
| 取扱い物件情報 | 物件詳細へ | ||
※各種情報と現状に差異がある場合は、現状優先となります。問い合わせをすることで、より詳しい条件、情報を確認する事ができます。
提供:住む→ズ四ツ橋堀江店(株)谷山企画(SUUMO経由)
この物件が気になったら掲載期限まであと10日
PARK LANE KUJOの空き部屋一覧
全部で26の空き部屋があります。
PARK LANE KUJOに条件(家賃・エリア)が近い物件一覧
| 写真 | 家賃 管理費等 | 敷金 礼金 | 間取り 専有面積 | 築年数 | 最寄り駅 所在地 | キープ | 詳細 |
|---|---|---|---|---|---|---|---|
アパート CASA. FILANTE Ⅴ(3LDK/2階) | |||||||
| 17.9万円 7,000円 | なし 25万円 | 3LDK 76.89m2 | 築1年 | 大阪モノレール本線 山田駅(大阪) 徒歩9分 大阪モノレール彩都 万博記念公園駅(大阪) 徒歩13分 阪急電鉄千里線 南千里駅 徒歩28分 大阪府吹田市山田東4丁目13-22 | 詳細を見る | ||
マンション トレ・ビバース上山手公園III(2LDK/1階) | |||||||
| 9.2万円 5,000円 | なし 20万円 | 2LDK 60.24m2 | 築31年 | 阪急電鉄千里線 千里山駅 徒歩18分 阪急電鉄千里線 関大前駅 徒歩20分 阪急電鉄千里線 豊津駅(大阪) 徒歩25分 大阪府吹田市上山手町27-17 | 詳細を見る | ||
マンション 千里山東一番館(3LDK/2階) | |||||||
| 12万円 8,000円 | 5万円 28万円 | 3LDK 68.86m2 | 築30年 | 阪急電鉄千里線 千里山駅 徒歩12分 阪急電鉄千里線 関大前駅 徒歩18分 阪急電鉄千里線 豊津駅(大阪) 徒歩27分 大阪府吹田市千里山東4丁目11-1 | 詳細を見る | ||
マンション WORVE吹田江坂(2K/8階) | |||||||
| 12.1万円 1.2万円 | 12.1万円 12.1万円 | 2K 31.28m2 | 築1年 | 北大阪急行南北線 江坂駅 徒歩9分 阪急電鉄千里線 豊津駅(大阪) 徒歩19分 おおさか東線 南吹田駅 徒歩20分 大阪府吹田市広芝町17-18 | 詳細を見る | ||
マンション プレアデス千里山田(1LDK/5階) | |||||||
| 10.4万円 6,000円 | なし 20.8万円 | 1LDK 35.91m2 | 築9年 | 大阪モノレール本線 山田駅(大阪) 徒歩10分 阪急電鉄千里線 北千里駅 徒歩17分 大阪モノレール彩都 万博記念公園駅(大阪) 徒歩21分 大阪府吹田市千里万博公園15-1 | 詳細を見る | ||
マンション コンフォリア江坂(1LDK/15階) | |||||||
| 11.7万円 6,000円 | 11.7万円 25万円 | 1LDK 33.67m2 | 築9年 | 北大阪急行南北線 江坂駅 徒歩5分 阪急電鉄千里線 豊津駅(大阪) 徒歩22分 おおさか東線 南吹田駅 徒歩23分 大阪府吹田市広芝町11-21 | 詳細を見る | ||
マンション セイワパレス門真(1LDK/1階) | |||||||
![]() | 10.1万円 8,000円 | なし 10.1万円 | 1LDK 41.75m2 | 築1年 | 京阪電気鉄道京阪線 門真市駅 徒歩7分 京阪電気鉄道京阪線 古川橋駅 徒歩12分 大阪市谷町線 大日駅 徒歩28分 大阪府門真市新橋町 | 詳細を見る | |
アパート スプランデュール高井田(1LDK/1階) | |||||||
![]() | 9.7万円 7,000円 | なし 19.4万円 | 1LDK 43.66m2 | 新築 | 近鉄奈良線 河内永和駅 徒歩3分 JRおおさか東線 JR河内永和駅 徒歩4分 大阪府東大阪市高井田元町 | 詳細を見る | |


