賃貸アパート
PROCESSの賃貸物件情報(ワンルーム/1階)
| 家賃 | 管理費等 | 敷金 | 礼金 | 間取り | 専有面積 |
|---|---|---|---|---|---|
| 5.45万円 | 3,500円 | なし | 5.45万円 | ワンルーム | 22.56m2 |
入居決定でお祝い金最大100,000円
Point
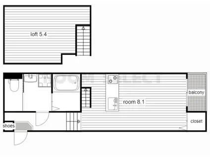
収納はクロゼット・シューズボックスなどが備え付けられているので、衣類や日用品の収納に重宝します。
提供:ルームセレクト八田店(株)洞口(SUUMO経由)

詳細情報 PROCESS
物件紹介
PROCESSは名鉄名古屋本線栄生駅から徒歩4分にあり、駅近で通勤通学に便利なアパートです。
このお部屋のインターホンにはTVモニタがついているため、相手の顔を確認してから来客対応することができます。
おしゃれなデザイナーズ物件!人気の角部屋で周囲の居住者の生活音も気になりにくく、また、フローリングのお部屋なのでお掃除もラクラク。室内にはウォークインクローゼットがありますので、たくさんの荷物も効率的に収納ができます。キッチンはシステムキッチン仕様になっていますので、お料理好きの方にもぴったり。バス・トイレは別なので、のんびりお風呂タイムも楽しめるでしょう。また、雨の日でも浴室乾燥機を使えば、お洗濯も問題ありません。
通信設備面では、インターネットが無料で使えるので、月々の出費を抑えられるのも魅力です(別途工事等が必要な場合あり)。
ペット飼育の相談ができますので、あなたの大切な家族の一員も快適に暮らせるか、ぜひ確認してみてください。
コンビニまで徒歩4分の場所にあり、日用品や食料品のお買い物にも便利です。
このお部屋のインターホンにはTVモニタがついているため、相手の顔を確認してから来客対応することができます。
おしゃれなデザイナーズ物件!人気の角部屋で周囲の居住者の生活音も気になりにくく、また、フローリングのお部屋なのでお掃除もラクラク。室内にはウォークインクローゼットがありますので、たくさんの荷物も効率的に収納ができます。キッチンはシステムキッチン仕様になっていますので、お料理好きの方にもぴったり。バス・トイレは別なので、のんびりお風呂タイムも楽しめるでしょう。また、雨の日でも浴室乾燥機を使えば、お洗濯も問題ありません。
通信設備面では、インターネットが無料で使えるので、月々の出費を抑えられるのも魅力です(別途工事等が必要な場合あり)。
ペット飼育の相談ができますので、あなたの大切な家族の一員も快適に暮らせるか、ぜひ確認してみてください。
コンビニまで徒歩4分の場所にあり、日用品や食料品のお買い物にも便利です。
お金・契約の情報
※「-」と表示されているものは、実際は料金が発生するものもございます。詳細はお問い合わせください。
| 家賃 | 5.45万円 | 管理費・共益費 | 3,500円 |
|---|---|---|---|
| 敷金 | なし | 礼金 | 5.45万円 |
| 入居決定でお祝い金最大100,000円 | |||
| 保証金 | - | 償却・敷引 | - |
| 住宅保険料 | 1円 | 更新料 | - |
| 保証会社利用 | 必須 | 保証会社名 | - |
| 保証会社費用 | - | 保証会社備考 | 初回保証料:総賃料50% |
| 契約形態 | - | 契約期間 | 2年 |
| 入居・引渡期間 | 即時 | 現況 | - |
| 入居可能条件 | ペット相談 | ||
| 契約備考 | クリーニング費用33000円 (ペット飼育時はプラス54500円)、鍵交換費22000円 インターネット初回登録料16500円 Fシステム月額1650円 町内会費月額300円、ペット飼育時は家賃別途月額2200円 月額(町内会費 300円 Fシステム 1650円) 鍵交換費用:22000 その他設備/条件:室内洗濯機置き場、独立洗面台、クローゼット、シューズボックス | ||
部屋の情報
| 間取り | ワンルーム | 専有面積 | 22.56m2 |
|---|---|---|---|
| 間取り詳細 | 洋室(8.1帖) | ||
| 所在階 / 向き | 1階 / 北 | バルコニー面積 | - |
| 水道 / ガス | 水道【公営】、ガス【プロパン】 | ||
| 設備 | バス・トイレ別、浴室乾燥機、追い焚き、インターネット対応、システムキッチン、カウンターキッチン、エアコン、角部屋、バルコニー、フローリング、ロフトあり、インターネット使用料無料、シャワー、給湯 | ||
| 当社物件ID | 15437178 | ||
建物の情報
| 建物名 | PROCESS | ||
|---|---|---|---|
| 所在地 | 愛知県名古屋市中村区千原町 | ||
| 交通 | 名鉄名古屋本線 栄生駅 徒歩4分 名古屋市東山線 亀島駅 徒歩7分 | ||
| 階数 | 2階建 | 総戸数 | - |
| 築年月 | 2014年10月 / 築12年 | エレベーター | - |
| 駐車場 | - | バイク置き場 | - |
| 駐輪場 | - | 管理人/管理会社 | - |
| 周辺環境 | コンビニ 徒歩4分(309m) 販売店 徒歩15分(1161m) その他 ドラッグストア その他 公園 その他 銀行 その他 * | ||
| 建物種別 | アパート | 建物構造 | 木造 |
この部屋の取扱い不動産会社
| 会社名 | ハウスコム東海株式会社 浄心店 | ||
|---|---|---|---|
| 所在地 | 愛知県名古屋市西区15-11アストラーレ浄心1階 | 交通 | - |
| 営業時間 | 10:00~18:00 | 定休日 | - |
| 免許番号 | 国土交通大臣(1)第10227号 | 取引態様 | 仲介 |
| 不動産会社管理番号 | HC2-780603-105-0125 | 当社管理番号 | 468 |
| 所属団体 | 、 | ||
| 取扱い物件情報 | 物件詳細へ | ||
※各種情報と現状に差異がある場合は、現状優先となります。問い合わせをすることで、より詳しい条件、情報を確認する事ができます。
提供:ハウスコム東海株式会社 浄心店
この物件が気になったら掲載期限まであと5日
PROCESSに条件(家賃・エリア)が近い物件一覧
| 写真 | 家賃 管理費等 | 敷金 礼金 | 間取り 専有面積 | 築年数 | 最寄り駅 所在地 | キープ | 詳細 |
|---|---|---|---|---|---|---|---|
アパート CHERIM 本陣十王町 サウス(1LDK/2階) | |||||||
![]() | 7.1万円 6,300円 | なし なし | 1LDK 29.21m2 | 築1年 | 名古屋市東山線 本陣駅 徒歩5分 名鉄名古屋本線 栄生駅 徒歩12分 名古屋市東山線 亀島駅 徒歩14分 愛知県名古屋市中村区十王町 | 詳細を見る | |
アパート セルーニア畑江(ワンルーム/1階) | |||||||
![]() | 4.5万円 3,000円 | なし なし | ワンルーム 20.41m2 | 築12年 | 近鉄名古屋線 黄金駅(愛知) 徒歩5分 近鉄名古屋線 烏森駅 徒歩10分 名古屋市東山線 岩塚駅 徒歩15分 愛知県名古屋市中村区畑江通2丁目 | 詳細を見る | |
アパート ハーモニーテラス佐古前町Ⅱ(1K/1階) | |||||||
![]() | 5.4万円 4,000円 | なし なし | 1K 20.79m2 | 築8年 | 名鉄名古屋本線 栄生駅 徒歩5分 名古屋市東山線 亀島駅 徒歩10分 愛知県名古屋市中村区佐古前町 | 詳細を見る | |
アパート ルナソレイユ(1LDK/1階) | |||||||
![]() | 6.55万円 4,000円 | なし 6.55万円 | 1LDK 33.02m2 | 築11年 | 地下鉄東山線 中村公園駅 徒歩4分 地下鉄東山線 中村日赤駅 徒歩13分 地下鉄東山線 岩塚駅 徒歩16分 愛知県名古屋市中村区中村中町 | 詳細を見る | |
マンション メイクスアート名駅南Ⅳ(1LDK/9階) | |||||||
![]() | 8.2万円 8,000円 | なし なし | 1LDK 29.91m2 | 築1年 | 名古屋臨海高速鉄道 ささしまライブ駅 徒歩12分 名古屋市鶴舞線 大須観音駅 徒歩13分 名鉄名古屋本線 山王駅(愛知) 徒歩13分 愛知県名古屋市中村区名駅南3丁目 | 詳細を見る | |
マンション SHOKEN RESIDENCE名古屋(ワンルーム/6階) | |||||||
![]() | 6.4万円 1万円 | なし なし | ワンルーム 25.51m2 | 築1年 | 名古屋市桜通線 太閤通駅 徒歩8分 近鉄名古屋線 黄金駅(愛知) 徒歩10分 愛知県名古屋市中村区黄金通3丁目 | 詳細を見る | |
マンション BRICK KAMEJIMA(1K/2階) | |||||||
![]() | 6.2万円 9,000円 | なし なし | 1K 25.35m2 | 築2年 | 名古屋市東山線 亀島駅 徒歩5分 名鉄名古屋本線 栄生駅 徒歩7分 名古屋市東山線 本陣駅 徒歩12分 愛知県名古屋市中村区井深町 | 詳細を見る | |
アパート ハーモニーテラス高道町3(1DK/3階) | |||||||
![]() | 6.1万円 4,000円 | なし 6.1万円 | 1DK 25.68m2 | 築6年 | 名古屋市東山線 本陣駅 徒歩9分 名古屋市東山線 中村日赤駅 徒歩12分 名鉄名古屋本線 栄生駅 徒歩16分 愛知県名古屋市中村区高道町6丁目 | 詳細を見る | |





