賃貸マンション
ビレッジハウス山岡1号棟の賃貸物件情報(3DK/5階)
| 家賃 | 管理費等 | 敷金 | 礼金 | 間取り | 専有面積 |
|---|---|---|---|---|---|
| 2.99万円 | なし | なし | なし | 3DK | 53.08m2 |
入居決定でお祝い金最大100,000円
- 保証金
- -
- 償却・敷引
- -
- 築年数
- 築35年
- 所在階
- 5階
- 向き
- 南西
Point
まずはお問い合わせ!
不動産会社は街のプロ、あなたに合った物件がきっと見つかります。
提供:ビレッジハウス・マネジメント株式会社 住まい相談センター

詳細情報 ビレッジハウス山岡1号棟
物件紹介
ビレッジハウス山岡1号棟は明知鉄道山岡駅から徒歩12分にあるマンションです。
このお部屋は2階以上に位置しているので、通行人や周囲の住人からの視線が気になりにくく、防犯面でも安心。インターホンにはTVモニタもついているため、相手の顔を確認してから来客対応することができます。
フローリングのお部屋なのでお掃除もラクラク。バス・トイレ別の仕様で、のんびりお風呂タイムも楽しめます。
このお部屋は2階以上に位置しているので、通行人や周囲の住人からの視線が気になりにくく、防犯面でも安心。インターホンにはTVモニタもついているため、相手の顔を確認してから来客対応することができます。
フローリングのお部屋なのでお掃除もラクラク。バス・トイレ別の仕様で、のんびりお風呂タイムも楽しめます。
お金・契約の情報
※「-」と表示されているものは、実際は料金が発生するものもございます。詳細はお問い合わせください。
| 家賃 | 2.99万円 | 管理費・共益費 | なし |
|---|---|---|---|
| 敷金 | なし | 礼金 | なし |
| フリーレント | 1ヶ月 | ||
| 入居決定でお祝い金最大100,000円 | |||
| 保証金 | - | 償却・敷引 | - |
| 住宅保険料 | 1万円(2年) | 更新料 | - |
| 保証会社利用 | - | 保証会社名 | - |
| 保証会社費用 | - | 保証会社備考 | - |
| 契約形態 | - | 契約期間 | - |
| 入居・引渡期間 | - | 現況 | 空室 |
| 入居可能条件 | 2人入居可、高齢者相談、学生可 | ||
| 契約備考 | 契約種類:普通契約、24時間緊急対応 | ||
部屋の情報
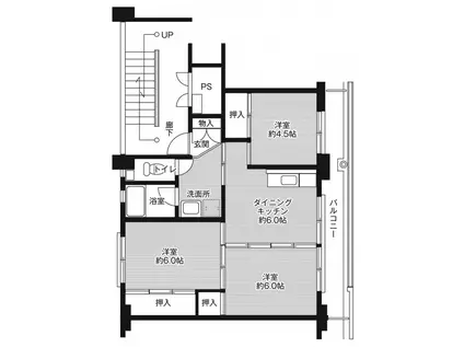
| 間取り | 3DK | 専有面積 | 53.08m2 |
|---|---|---|---|
| 所在階 / 向き | 5階 / 南西 | バルコニー面積 | - |
| 水道 / ガス | - | ||
| 設備 | バス・トイレ別、テレビドアホン、バルコニー、給湯、洗濯機:室内 | ||
| 当社物件ID | 160520093 | ||
建物の情報
| 建物名 | ビレッジハウス山岡1号棟 | ||
|---|---|---|---|
| 所在地 | 岐阜県恵那市山岡町上手向371 | ||
| 交通 | 明知鉄道 山岡駅 徒歩12分 明知鉄道 野志駅 徒歩26分 明知鉄道 花白温泉駅 徒歩52分 | ||
| 階数 | 5階建 | 総戸数 | - |
| 築年月 | 1991年07月 / 築35年 | エレベーター | - |
| 駐車場 | 空有 3,300円/月 円 | バイク置き場 | - |
| 駐輪場 | - | 管理人/管理会社 | 日勤 |
| 建物種別 | マンション | 建物構造 | RC(鉄筋コンクリート) |
この部屋の取扱い不動産会社
| 会社名 | ビレッジハウス・マネジメント株式会社 住まい相談センター | ||
|---|---|---|---|
| 所在地 | 東京都港区六本木6-10-1 六本木ヒルズ森タワー44階 | 交通 | 東京メトロ日比谷線「六本木駅」 直結 |
| 営業時間 | 平日:9:00-18:30/土日祝:9:00-18:00 | 定休日 | 年中無休(年末年始を除く) |
| 免許番号 | 東京都知事(2)第100758号 | 取引態様 | 貸主 |
| 不動産会社管理番号 | 00013923862 | 当社管理番号 | 459 |
| 所属団体 | 公益社団法人東京都宅地建物取引業協会会員 日本賃貸住宅管理協会会員 | ||
| 取扱い物件情報 | 物件詳細へ | ||
※各種情報と現状に差異がある場合は、現状優先となります。問い合わせをすることで、より詳しい条件、情報を確認する事ができます。
提供:ビレッジハウス・マネジメント株式会社 住まい相談センター
この物件が気になったら掲載期限まであと13日
ビレッジハウス山岡1号棟に条件(家賃・エリア)が近い物件一覧
| 写真 | 家賃 管理費等 | 敷金 礼金 | 間取り 専有面積 | 築年数 | 最寄り駅 所在地 | キープ | 詳細 |
|---|---|---|---|---|---|---|---|
アパート フレグランス松源寺I(2DK/2階) | |||||||
![]() | 4万円 なし | なし なし | 2DK 37.2m2 | 築33年 | JR中央本線 中津川駅 徒歩46分 岐阜県中津川市駒場 | 詳細を見る | |
マンション ラ・ロッシュ(1K/1階) | |||||||
![]() | 4万円 3,500円 | なし なし | 1K 28.41m2 | 築24年 | JR中央本線 瑞浪駅 徒歩34分 岐阜県瑞浪市西小田町 | 詳細を見る | |
マンション ハイム・サンムーン1(ワンルーム/2階) | |||||||
![]() | 3.5万円 なし | なし なし | ワンルーム 28m2 | 築30年 | JR中央本線 中津川駅 徒歩14分 岐阜県中津川市日の出町 | 詳細を見る | |
アパート シルクルーム(ワンルーム/1階) | |||||||
![]() | 3.3万円 なし | なし なし | ワンルーム 16.56m2 | 築39年 | JR中央本線 瑞浪駅 徒歩24分 岐阜県瑞浪市明世町山野内 | 詳細を見る | |
マンション ビレッジハウス大庭2号棟(2K/5階) | |||||||
![]() | 1.99万円 なし | なし なし | 2K 33.54m2 | 築52年 | 明知鉄道 山岡駅 徒歩15分 明知鉄道 野志駅 徒歩26分 明知鉄道 明智駅(明知) 徒歩75分 岐阜県恵那市明智町野志明智町19-2 | 詳細を見る | |
マンション サンライズ栄(1K/3階) | |||||||
![]() | 4.5万円 5,000円 | なし なし | 1K 26.28m2 | 築20年 | JR中央本線 瑞浪駅 徒歩8分 岐阜県瑞浪市土岐町 | 詳細を見る | |
マンション ハイム・エビス(1DK/3階) | |||||||
![]() | 4.6万円 4,000円 | なし なし | 1DK 33m2 | 築44年 | JR中央本線 中津川駅 徒歩10分 岐阜県中津川市えびす町 | 詳細を見る | |
アパート ハイツ瑞浪(3DK/2階) | |||||||
![]() | 4.5万円 なし | なし なし | 3DK 46.37m2 | 築39年 | JR中央本線 瑞浪駅 徒歩14分 岐阜県瑞浪市樽上町 | 詳細を見る | |








