賃貸マンション
ビレッジハウス山岡1号棟の賃貸物件情報(3DK/5階)
| 家賃 | 管理費等 | 敷金 | 礼金 | 間取り | 専有面積 |
|---|---|---|---|---|---|
| 2.9万円 | なし | なし | なし | 3DK | 53.08m2 |
入居決定でお祝い金最大100,000円
- 保証金
- -
- 償却・敷引
- -
- 築年数
- 築35年
- 所在階
- 5階
- 向き
- 南西
Point
まずはお問い合わせ!
不動産会社は街のプロ、あなたに合った物件がきっと見つかります。
提供:ビレッジハウス住まい相談センター

詳細情報 ビレッジハウス山岡1号棟
物件紹介
ビレッジハウス山岡1号棟はJR東海道・山陽本線立花駅から徒歩5分にあり、駅近で通勤通学に便利なマンションです。
このお部屋は2階以上に位置しているので通行人や周囲の住人からの視線が気になりにくく、建物のエントランスはオートロックがついているので防犯性が高くなっています。
フローリングのお部屋なのでお掃除もラクラク。キッチンはシステムキッチン仕様になっていますので、お料理好きの方にもぴったり。バス・トイレは別なので、のんびりお風呂タイムも楽しめるでしょう。また、雨の日でも浴室乾燥機を使えば、お洗濯も問題ありません。
建物にはエレベーターがついているので、重い荷物があっても安心。共用部には宅配ボックスが設定されているので、不在の時にも荷物を受け取ることができます。
コンビニまで徒歩4分の場所にあり、日用品や食料品のお買い物にも便利です。
このお部屋は2階以上に位置しているので通行人や周囲の住人からの視線が気になりにくく、建物のエントランスはオートロックがついているので防犯性が高くなっています。
フローリングのお部屋なのでお掃除もラクラク。キッチンはシステムキッチン仕様になっていますので、お料理好きの方にもぴったり。バス・トイレは別なので、のんびりお風呂タイムも楽しめるでしょう。また、雨の日でも浴室乾燥機を使えば、お洗濯も問題ありません。
建物にはエレベーターがついているので、重い荷物があっても安心。共用部には宅配ボックスが設定されているので、不在の時にも荷物を受け取ることができます。
コンビニまで徒歩4分の場所にあり、日用品や食料品のお買い物にも便利です。
お金・契約の情報
※「-」と表示されているものは、実際は料金が発生するものもございます。詳細はお問い合わせください。
| 家賃 | 2.9万円 | 管理費・共益費 | なし |
|---|---|---|---|
| 敷金 | なし | 礼金 | なし |
| フリーレント | 1ヶ月 | ||
| 入居決定でお祝い金最大100,000円 | |||
| 保証金 | - | 償却・敷引 | - |
| 住宅保険料 | 1万円(2年) | 更新料 | - |
| 保証会社利用 | - | 保証会社名 | - |
| 保証会社費用 | - | 保証会社備考 | - |
| 契約形態 | - | 契約期間 | - |
| 入居・引渡期間 | - | 現況 | 空室 |
| 入居可能条件 | 2人入居可、高齢者相談、学生可 | ||
| 契約備考 | 契約種類:普通契約、24時間緊急対応 | ||
部屋の情報
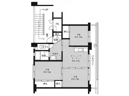
| 間取り | 3DK | 専有面積 | 53.08m2 |
|---|---|---|---|
| 間取り詳細 | K(8.2帖) | ||
| 所在階 / 向き | 5階 / 南西 | バルコニー面積 | - |
| 水道 / ガス | - | ||
| 設備 | バス・トイレ別、オートロック、宅配ボックス、浴室乾燥機、システムキッチン、エアコン、エレベーター、温水洗浄便座、バルコニー、フローリング、洗髪洗面化粧台、シャワー、給湯、洗濯機:室内 | ||
| 当社物件ID | 160339166 | ||
建物の情報
| 建物名 | ビレッジハウス山岡1号棟 | ||
|---|---|---|---|
| 所在地 | 岐阜県恵那市山岡町上手向371 | ||
| 交通 | 明知鉄道 山岡駅 徒歩12分 明知鉄道 野志駅 徒歩26分 明知鉄道 花白温泉駅 徒歩52分 JR東海道・山陽本線 立花駅 徒歩5分 阪急神戸本線 武庫之荘駅 徒歩22分 | ||
| 階数 | 5階建 | 総戸数 | - |
| 築年月 | 1991年07月 / 築35年 | エレベーター | あり |
| 駐車場 | 空有 3,300円/月 円 | バイク置き場 | あり |
| 駐輪場 | - | 管理人/管理会社 | 日勤 |
| 周辺環境 | コンビニ 徒歩4分(267m) 販売店 徒歩3分(193m) 病院 徒歩2分(149m) | ||
| 建物種別 | マンション | 建物構造 | RC(鉄筋コンクリート) |
この部屋の取扱い不動産会社
| 会社名 | ビレッジハウス住まい相談センター | ||
|---|---|---|---|
| 所在地 | 愛知県名古屋市中区大須4-10-32 上前津KDビル5階 | 交通 | 名城線「上前津駅」徒歩3分 |
| 営業時間 | 平日:9:00-18:30/土日祝:9:00-18:00 | 定休日 | 年中無休(年末年始を除く) |
| 免許番号 | 東京都知事(2)第100758号 | 取引態様 | 貸主 |
| 不動産会社管理番号 | 00013693651 | 当社管理番号 | 459 |
| 所属団体 | 公益社団法人東京都宅地建物取引業協会会員 日本賃貸住宅管理協会会員 | ||
| 取扱い物件情報 | 物件詳細へ | ||
※各種情報と現状に差異がある場合は、現状優先となります。問い合わせをすることで、より詳しい条件、情報を確認する事ができます。
提供:ビレッジハウス住まい相談センター
この物件が気になったら掲載期限まであと12日
ビレッジハウス山岡1号棟に条件(家賃・エリア)が近い物件一覧
| 写真 | 家賃 管理費等 | 敷金 礼金 | 間取り 専有面積 | 築年数 | 最寄り駅 所在地 | キープ | 詳細 |
|---|---|---|---|---|---|---|---|
マンション パラツィーナ武庫之荘(ワンルーム/4階) | |||||||
![]() | 3.5万円 3,330円 | なし なし | ワンルーム 16.57m2 | 築38年 | 阪急神戸線 武庫之荘駅 徒歩9分 JR東海道本線 立花駅 徒歩15分 兵庫県尼崎市南武庫之荘 | 詳細を見る | |
アパート フォーブル大西B(2DK/1階) | |||||||
![]() | 3.9万円 3,000円 | なし なし | 2DK 33m2 | 築38年 | JR中央本線 瑞浪駅 徒歩9分 岐阜県瑞浪市宮前町 | 詳細を見る | |
マンション ハイツ大和2(1K/4階) | |||||||
![]() | 3万円 5,000円 | なし なし | 1K 19.41m2 | 築38年 | 阪急神戸線 武庫之荘駅 徒歩10分 JR東海道本線 立花駅 徒歩20分 JR東海道本線 甲子園口駅 徒歩30分 兵庫県尼崎市南武庫之荘 | 詳細を見る | |
マンション プチグレイス7番館(ワンルーム/4階) | |||||||
![]() | 3.3万円 1万円 | なし なし | ワンルーム 18m2 | 築37年 | 阪急神戸線 武庫之荘駅 徒歩10分 JR東海道本線 立花駅 徒歩15分 JR東海道本線 甲子園口駅 徒歩30分 兵庫県尼崎市南武庫之荘 | 詳細を見る | |
マンション シャトルイツキ(1DK/1階) | |||||||
![]() | 4.3万円 なし | なし 5万円 | 1DK 24.46m2 | 築46年 | 阪急電鉄神戸線 武庫之荘駅 徒歩13分 兵庫県尼崎市武庫之荘本町2丁目 | 詳細を見る | |
マンション JR東海道本線 立花駅 徒歩9分 築30年(1K/3階) | |||||||
![]() | 3.2万円 3,000円 | なし なし | 1K 20m2 | 築30年 | JR東海道本線 立花駅 徒歩9分 阪急神戸線 武庫之荘駅 徒歩17分 阪急神戸線 塚口駅(阪急) 徒歩33分 兵庫県尼崎市水堂町 | 詳細を見る | |
アパート 南野6丁目文化(2DK/2階) | |||||||
![]() | 3.5万円 なし | なし なし | 2DK 30.11m2 | 築65年 | 阪急伊丹線 稲野駅 徒歩20分 阪急伊丹線 新伊丹駅 徒歩27分 阪急神戸線 武庫之荘駅 徒歩28分 兵庫県伊丹市南野 | 詳細を見る | |
マンション 栄マンション(2DK/4階) | |||||||
![]() | 5万円 なし | なし 10万円 | 2DK 30.5m2 | 築46年 | 東海道本線 立花駅 徒歩8分 兵庫県尼崎市水堂町2丁目 | 詳細を見る | |









