賃貸アパート
JACK MEIKOIの賃貸物件情報(1LDK/3階)
| 家賃 | 管理費等 | 敷金 | 礼金 | 間取り | 専有面積 |
|---|---|---|---|---|---|
| 6.4万円 | 3,500円 | なし | 6.4万円 | 1LDK | 32.01m2 |
入居決定でお祝い金最大100,000円
- 保証金
- -
- 償却・敷引
- -
- 築年数
- 新築
- 所在階
- 3階
- 向き
- 西
Point
オートロック付なので女性、はじめての一人暮らしでも安心してご入居頂けます☆インターネット使用料不要なので面倒な手続き不要です◎LINE・メール・お電話でやり取り可能!
提供:スタイルエステート西支店(株)エムホームエステート(SUUMO経由)

詳細情報 JACK MEIKOI
物件紹介
JACK MEIKOIは地下鉄名港線築地口駅から徒歩5分にあり、駅近で通勤通学に便利なアパートです。
このお部屋は2階以上に位置しているので、通行人や周囲の住人からの視線が気になりにくく、防犯面でも安心。建物のエントランスはオートロックがついており、インターホンにはTVモニタもついているため、相手の顔を確認してから来客対応することができます。
おしゃれなデザイナーズ物件!人気の角部屋で周囲の居住者の生活音も気になりにくく、また、フローリングのお部屋なのでお掃除もラクラク。キッチンはシステムキッチン仕様になっていますので、お料理好きの方にもぴったり。バス・トイレは別なので、のんびりお風呂タイムも楽しめるでしょう。また、雨の日でも浴室乾燥機を使えば、お洗濯も問題ありません。
通信設備面では、インターネットが無料で使えるので、月々の出費を抑えられるのも魅力です(別途工事等が必要な場合あり)。
共用部には宅配ボックスが設定されているので、不在の時にも荷物を受け取ることができます。
このお部屋は2階以上に位置しているので、通行人や周囲の住人からの視線が気になりにくく、防犯面でも安心。建物のエントランスはオートロックがついており、インターホンにはTVモニタもついているため、相手の顔を確認してから来客対応することができます。
おしゃれなデザイナーズ物件!人気の角部屋で周囲の居住者の生活音も気になりにくく、また、フローリングのお部屋なのでお掃除もラクラク。キッチンはシステムキッチン仕様になっていますので、お料理好きの方にもぴったり。バス・トイレは別なので、のんびりお風呂タイムも楽しめるでしょう。また、雨の日でも浴室乾燥機を使えば、お洗濯も問題ありません。
通信設備面では、インターネットが無料で使えるので、月々の出費を抑えられるのも魅力です(別途工事等が必要な場合あり)。
共用部には宅配ボックスが設定されているので、不在の時にも荷物を受け取ることができます。
お金・契約の情報
※「-」と表示されているものは、実際は料金が発生するものもございます。詳細はお問い合わせください。
| 家賃 | 6.4万円 | 管理費・共益費 | 3,500円 |
|---|---|---|---|
| 敷金 | なし | 礼金 | 6.4万円 |
| 入居決定でお祝い金最大100,000円 | |||
| 保証金 | - | 償却・敷引 | - |
| 住宅保険料 | - | 更新料 | - |
| 契約形態 | - | 契約期間 | - |
| 入居・引渡期間 | - | 現況 | - |
| 契約備考 | 巡回管理/見学から契約までご来店不要でご対応可能です♪駐車場の空き状況は別途お問い合わせ下さい。 1LDK 単身者可/二人入居可 普通借家2年 損保【要】 バストイレ別、バルコニー、エアコン、ガスコンロ対応、クロゼット、フローリング、シャワー付洗面台、TVインターホン、浴室乾燥機、オートロック、室内洗濯置、シューズボックス、システムキッチン、追焚機能浴室、角住戸、温水洗浄便座、脱衣所、洗面所独立、2口コンロ、宅配ボックス、最上階、敷金不要、防犯カメラ、保証人不要、デザイナーズ、ネット使用料不要、築2年以内、24時間換気システム、未入居、3駅以上利用可、駅徒歩5分以内、上階無し、敷地内ごみ置き場、プロパンガス、洗面所にドア、礼金1ヶ月、IT重説対応物件、初期費用カード決済可 入居日:'26年6月下旬 | ||
部屋の情報
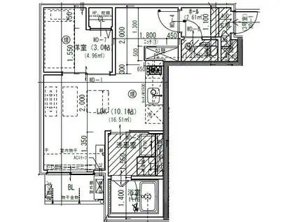
| 間取り | 1LDK | 専有面積 | 32.01m2 |
|---|---|---|---|
| 所在階 / 向き | 3階 / 西 | バルコニー面積 | - |
| 水道 / ガス | - | ||
| 設備 | バス・トイレ別、2階以上、オートロック、テレビドアホン、宅配ボックス、浴室乾燥機、追い焚き、インターネット対応、システムキッチン、エアコン、温水洗浄便座、角部屋、バルコニー、フローリング、洗髪洗面化粧台、2口コンロ、コンロ:ガス、デザイナーズ、インターネット使用料無料、洗濯機:室内 | ||
| 当社物件ID | 160491997 | ||
建物の情報
| 建物名 | JACK MEIKOI | ||
|---|---|---|---|
| 所在地 | 愛知県名古屋市港区名港 | ||
| 交通 | 地下鉄名港線 築地口駅 徒歩5分 地下鉄名港線 名古屋港駅 徒歩12分 地下鉄名港線 港区役所駅 徒歩12分 | ||
| 階数 | 3階建 | 総戸数 | 9戸 |
| 築年月 | 2026年06月 / 新築 | エレベーター | - |
| 駐車場 | 空有 11000円 | バイク置き場 | - |
| 駐輪場 | - | 管理人/管理会社 | - |
| 周辺環境 | その他 ローソンストア100 LS築地口店(スーパー)まで286m その他 バロー港栄店(スーパー)まで1007m その他 ファミリーマート 港築地口店(コンビニ)まで111m その他 ジェティ(ショッピングセンター)まで1041m その他 名古屋港本町郵便局(郵便局)まで454m その他 みなと医療生協 みなと診療所(病院)まで526m | ||
| 建物種別 | アパート | 建物構造 | 木造 |
この部屋の取扱い不動産会社
| 会社名 | スタイルエステート西支店(株)エムホームエステート(SUUMO経由) | ||
|---|---|---|---|
| 所在地 | 愛知県名古屋市中川区高畑1-235 | 交通 | - |
| 営業時間 | 10:00~19:00 | 定休日 | - |
| 免許番号 | 愛知県知事22094 | 取引態様 | 仲介 |
| 不動産会社管理番号 | 100491133966 | 当社管理番号 | 89 |
| 所属団体 | (公社)愛知県宅地建物取引業協会会員 | ||
| 公正取引協議会 | 東海不動産公正取引協議会加盟 | ||
| 取扱い物件情報 | 物件詳細へ | ||
※各種情報と現状に差異がある場合は、現状優先となります。問い合わせをすることで、より詳しい条件、情報を確認する事ができます。
提供:スタイルエステート西支店(株)エムホームエステート(SUUMO経由)
この物件が気になったら掲載期限まであと11日
JACK MEIKOIに条件(家賃・エリア)が近い物件一覧
| 写真 | 家賃 管理費等 | 敷金 礼金 | 間取り 専有面積 | 築年数 | 最寄り駅 所在地 | キープ | 詳細 |
|---|---|---|---|---|---|---|---|
アパート ウエストヒルズ岩崎台(1LDK/1階) | |||||||
![]() | 7.4万円 6,000円 | なし 7.4万円 | 1LDK 47.84m2 | 築9年 | 愛知県日進市岩崎台1丁目 | 詳細を見る | |
アパート VUEBIEN(2LDK/2階) | |||||||
![]() | 9.8万円 4,500円 | なし 15万円 | 2LDK 63.71m2 | 築10年 | リニモ 杁ケ池公園駅 徒歩7分 リニモ はなみずき通駅 徒歩8分 地下鉄東山線 藤が丘駅(愛知) 徒歩26分 愛知県長久手市久保山 | 詳細を見る | |
アパート レーブシャトー(1LDK/2階) | |||||||
![]() | 6.3万円 4,100円 | なし 7.3万円 | 1LDK 46.09m2 | 築15年 | 東海道本線 逢妻駅 徒歩32分 愛知県大府市横根町前田 | 詳細を見る | |
マンション 中央本線 勝川駅(JR) 徒歩20分 築34年(3DK/4階) | |||||||
![]() | 5.9万円 4,000円 | なし 8.85万円 | 3DK 60.78m2 | 築34年 | 中央本線 勝川駅(JR) 徒歩20分 愛知県春日井市中切町1丁目 | 詳細を見る | |
アパート クレールモリN棟(2LDK/1階) | |||||||
![]() | 7.2万円 3,000円 | 7.2万円 7.2万円 | 2LDK 73.76m2 | 築18年 | 名鉄常滑線 尾張横須賀駅 徒歩8分 名鉄河和線 高横須賀駅 徒歩16分 名鉄常滑線 太田川駅 徒歩25分 愛知県東海市養父町大木之本 | 詳細を見る | |
マンション レイクサイドヴィラ(1SK/1階) | |||||||
![]() | 4万円 2,000円 | なし なし | 1SK 24m2 | 築38年 | リニモ 杁ケ池公園駅 徒歩11分 リニモ はなみずき通駅 徒歩18分 地下鉄東山線 藤が丘駅(愛知) 徒歩32分 愛知県長久手市蟹原 | 詳細を見る | |
アパート プレセジュール春紀(2DK/2階) | |||||||
![]() | 4.4万円 2,000円 | なし なし | 2DK 42m2 | 築40年 | JR中央本線 春日井駅(JR) 徒歩6分 愛知県春日井市上条町 | 詳細を見る | |
マンション 丸二サンハイツ(2LDK/3階) | |||||||
![]() | 6.8万円 3,500円 | 9万円 なし | 2LDK 62.64m2 | 築40年 | あおなみ線 荒子川公園駅 徒歩15分 あおなみ線 稲永駅 徒歩26分 あおなみ線 港北駅 徒歩27分 愛知県名古屋市港区油屋町 | 詳細を見る | |









