賃貸マンション
ラフィスタ川崎大師の賃貸物件情報(1K/3階)
| 家賃 | 管理費等 | 敷金 | 礼金 | 間取り | 専有面積 |
|---|---|---|---|---|---|
| 8万円 | 5,000円 | 8万円 | 8万円 | 1K | 21.75m2 |
入居決定でお祝い金最大100,000円
- 保証金
- -
- 償却・敷引
- -
- 築年数
- 築9年
- 所在階
- 3階
- 向き
- 西
Point
東京・神奈川・埼玉・千葉と幅広く物件の取り扱いを行っております。こちらの物件以外にも気になる物件がございましたらお気軽にお問い合わせください。
提供:(株)approom(SUUMO経由)

詳細情報 ラフィスタ川崎大師
物件紹介
ラフィスタ川崎大師は京急大師線東門前駅から徒歩5分にあり、駅近で通勤通学に便利なマンションです。
このお部屋は2階以上に位置しているので通行人や周囲の住人からの視線が気になりにくく、建物のエントランスはオートロックがついているので防犯性が高くなっています。
キッチンはシステムキッチン仕様になっていますので、お料理好きの方にもぴったり。バス・トイレは別なので、のんびりお風呂タイムも楽しめるでしょう。また、雨の日でも浴室乾燥機を使えば、お洗濯も問題ありません。
通信設備面では、インターネットが無料で使えるので、月々の出費を抑えられるのも魅力です。また、BSアンテナ・CSアンテナもありますので、おうち時間も充実するでしょう(別途工事、BS・CSの契約料等が必要な場合あり)。
建物にはエレベーターがついているので、重い荷物があっても安心。共用部には宅配ボックスが設定されているので、不在の時にも荷物を受け取ることができます。
このお部屋は2階以上に位置しているので通行人や周囲の住人からの視線が気になりにくく、建物のエントランスはオートロックがついているので防犯性が高くなっています。
キッチンはシステムキッチン仕様になっていますので、お料理好きの方にもぴったり。バス・トイレは別なので、のんびりお風呂タイムも楽しめるでしょう。また、雨の日でも浴室乾燥機を使えば、お洗濯も問題ありません。
通信設備面では、インターネットが無料で使えるので、月々の出費を抑えられるのも魅力です。また、BSアンテナ・CSアンテナもありますので、おうち時間も充実するでしょう(別途工事、BS・CSの契約料等が必要な場合あり)。
建物にはエレベーターがついているので、重い荷物があっても安心。共用部には宅配ボックスが設定されているので、不在の時にも荷物を受け取ることができます。
お金・契約の情報
※「-」と表示されているものは、実際は料金が発生するものもございます。詳細はお問い合わせください。
| 家賃 | 8万円 | 管理費・共益費 | 5,000円 |
|---|---|---|---|
| 敷金 | 8万円 | 礼金 | 8万円 |
| 入居決定でお祝い金最大100,000円 | |||
| 保証金 | - | 償却・敷引 | - |
| 住宅保険料 | - | 更新料 | - |
| 保証会社利用 | 必須 | 保証会社名 | - |
| 保証会社費用 | - | 保証会社備考 | 保証会社利用必 家賃の50%~100% |
| 契約形態 | - | 契約期間 | - |
| 入居・引渡期間 | 相談 | 現況 | - |
| 契約備考 | 巡回管理 合計7.59万円(内訳:ルームクリーニング代46200円 鍵交換費用24200円 契約事務手数料5500円) 更新料:1ヶ月(新賃料) エアコンクリーニング代退去時16500円 1K 普通借家2年 損保【2万円2年】 バストイレ別、バルコニー、エアコン、クロゼット、浴室乾燥機、オートロック、室内洗濯置、シューズボックス、システムキッチン、温水洗浄便座、エレベーター、洗面所独立、2口コンロ、駐輪場、宅配ボックス、光ファイバー、防犯カメラ、分譲賃貸、敷金1ヶ月、CS、ネット使用料不要、ダブルロックキー、24時間換気システム、24時間ゴミ出し可、平面駐車場、都市ガス、BS、高速ネット対応、マルチメディアコンセント、礼金1ヶ月 | ||
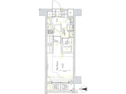
部屋の情報
| 間取り | 1K | 専有面積 | 21.75m2 |
|---|---|---|---|
| 所在階 / 向き | 3階 / 西 | バルコニー面積 | 2m2 |
| 水道 / ガス | - | ||
| 設備 | バス・トイレ別、2階以上、オートロック、宅配ボックス、浴室乾燥機、インターネット対応、システムキッチン、エアコン、エレベーター、温水洗浄便座、バルコニー、洗髪洗面化粧台、2口コンロ、CSアンテナ、BSアンテナ、インターネット使用料無料、洗濯機:室内 | ||
| 当社物件ID | 26510968 | ||
建物の情報
| 建物名 | ラフィスタ川崎大師 | ||
|---|---|---|---|
| 所在地 | 神奈川県川崎市川崎区中瀬 | ||
| 交通 | 京急大師線 東門前駅 徒歩5分 京急大師線 川崎大師駅 徒歩5分 京急大師線 大師橋駅 徒歩12分 | ||
| 階数 | 7階建 | 総戸数 | - |
| 築年月 | 2018年01月 / 築9年 | エレベーター | あり |
| 駐車場 | 空有 20000円 | バイク置き場 | - |
| 駐輪場 | あり | 管理人/管理会社 | - |
| 周辺環境 | その他 島忠ホームズ川崎大師店(ショッピングセンター)まで334m その他 オーケー川崎大師店(スーパー)まで453m その他 まいばすけっと川崎大師駅前店(スーパー)まで511m その他 ファミリーマート川崎中瀬店(コンビニ)まで200m その他 川崎大師郵便局(郵便局)まで275m その他 川崎市川崎区役所大師支所(役所)まで737m | ||
| 建物種別 | マンション | 建物構造 | RC(鉄筋コンクリート) |
この部屋の取扱い不動産会社
| 会社名 | (株)approom(SUUMO経由) | ||
|---|---|---|---|
| 所在地 | 東京都渋谷区円山町 28-3 | 交通 | - |
| 営業時間 | 10:00~18:00 | 定休日 | 不定期 |
| 免許番号 | 東京都知事103293 | 取引態様 | 代理 |
| 不動産会社管理番号 | 100491199465 | 当社管理番号 | 89 |
| 所属団体 | (公社)全日本不動産協会東京都本部会員 | ||
| 公正取引協議会 | (公社)首都圏不動産公正取引協議会加盟 | ||
| 取扱い物件情報 | 物件詳細へ | ||
※各種情報と現状に差異がある場合は、現状優先となります。問い合わせをすることで、より詳しい条件、情報を確認する事ができます。
提供:(株)approom(SUUMO経由)
この物件が気になったら掲載期限まであと4日
ラフィスタ川崎大師に条件(家賃・エリア)が近い物件一覧
| 写真 | 家賃 管理費等 | 敷金 礼金 | 間取り 専有面積 | 築年数 | 最寄り駅 所在地 | キープ | 詳細 |
|---|---|---|---|---|---|---|---|
アパート ジーエーヒルズ小田2丁目B棟(ワンルーム/2階) | |||||||
![]() | 5.7万円 3,000円 | なし なし | ワンルーム 14.49m2 | 築11年 | JR南武線 小田栄駅 徒歩5分 JR南武線 川崎新町駅 徒歩8分 京急本線 八丁畷駅 徒歩20分 神奈川県川崎市川崎区小田 | 詳細を見る | |
マンション ブルーキャッツあざみ野(1K/4階) | |||||||
![]() | 7万円 5,000円 | 7万円 なし | 1K 24.57m2 | 築26年 | 東急田園都市線 あざみ野駅 徒歩3分 東急田園都市線 たまプラーザ駅 徒歩12分 東急田園都市線 江田駅(神奈川) 徒歩20分 神奈川県横浜市青葉区あざみ野 | 詳細を見る | |
マンション リヴシティ横濱末吉町弐番館(1LDK/5階) | |||||||
![]() | 11.45万円 1.5万円 | なし なし | 1LDK 30.9m2 | 築1年 | 京急本線 日ノ出町駅 徒歩6分 ブルーライン 伊勢佐木長者町駅 徒歩8分 JR根岸線 関内駅 徒歩13分 神奈川県横浜市中区末吉町 | 詳細を見る | |
アパート HERMITAGE DE YOKOHAMA SUGITA(ワンルーム/1階) | |||||||
![]() | 5.5万円 3,000円 | なし なし | ワンルーム 19.06m2 | 築8年 | 京急本線 杉田駅(神奈川) 徒歩9分 JR京浜東北線 新杉田駅 徒歩17分 JR京浜東北線 洋光台駅 徒歩19分 神奈川県横浜市磯子区杉田 | 詳細を見る | |
マンション プラムフィールド(1K/2階) | |||||||
![]() | 7.2万円 7,000円 | 7.2万円 7.2万円 | 1K 26.52m2 | 築19年 | 相鉄本線 西谷駅 徒歩3分 相鉄本線 鶴ケ峰駅 徒歩21分 相鉄本線 上星川駅 徒歩22分 神奈川県横浜市保土ケ谷区西谷 | 詳細を見る | |
マンション ティモーネグランデ川崎(1K/2階) | |||||||
![]() | 8.7万円 2万円 | 8.7万円 8.7万円 | 1K 21.09m2 | 築1年 | 京急本線 京急川崎駅 徒歩6分 JR京浜東北線 川崎駅 徒歩9分 神奈川県川崎市川崎区堀之内町 | 詳細を見る | |
アパート 村上アパート(2DK/2階) | |||||||
![]() | 6.6万円 なし | 13.2万円 6.6万円 | 2DK 35m2 | 築56年 | 東急東横線 大倉山駅(神奈川) 徒歩9分 神奈川県横浜市港北区樽町 | 詳細を見る | |
マンション プレジオ吉池(2DK/1階) | |||||||
![]() | 8.9万円 5,000円 | なし 8.9万円 | 2DK 44.6m2 | 築33年 | ブルーライン 三ツ沢下町駅 徒歩2分 東急東横線 反町駅 徒歩14分 JR東海道本線 横浜駅 徒歩18分 神奈川県横浜市神奈川区三ツ沢下町 | 詳細を見る | |









