賃貸マンション
森アパートの賃貸物件情報(2DK/2階)
| 家賃 | 管理費等 | 敷金 | 礼金 | 間取り | 専有面積 |
|---|---|---|---|---|---|
| 3.3万円 | なし | 6.6万円 | 3.3万円 | 2DK | 43m2 |
入居決定でお祝い金最大100,000円
Point
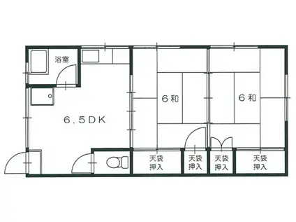
バストイレ別二間続き和室
提供:さくらホーム(株)(SUUMO経由)

詳細情報 森アパート
物件紹介
森アパートは広島高速交通アストラムライン不動院前駅から徒歩6分にあり、駅近で通勤通学に便利なマンションです。
このお部屋は2階以上に位置しているので、通行人や周囲の住人からの視線が気になりにくく、防犯面でも安心です。
人気の南向きのお部屋。角部屋でもあるため、周囲の居住者の生活音も気になりにくい場所です。バス・トイレ別の仕様で、のんびりお風呂タイムも楽しめます。
このお部屋は2階以上に位置しているので、通行人や周囲の住人からの視線が気になりにくく、防犯面でも安心です。
人気の南向きのお部屋。角部屋でもあるため、周囲の居住者の生活音も気になりにくい場所です。バス・トイレ別の仕様で、のんびりお風呂タイムも楽しめます。
お金・契約の情報
※「-」と表示されているものは、実際は料金が発生するものもございます。詳細はお問い合わせください。
| 家賃 | 3.3万円 | 管理費・共益費 | なし |
|---|---|---|---|
| 敷金 | 6.6万円 | 礼金 | 3.3万円 |
| 入居決定でお祝い金最大100,000円 | |||
| 保証金 | - | 償却・敷引 | - |
| 住宅保険料 | - | 更新料 | - |
| 保証会社利用 | 必須 | 保証会社名 | 全保連 |
| 保証会社費用 | - | 保証会社備考 | 全保連利用必 初回保証委託料:賃料総額の50%※下限2万(月額1200円※口座振替手数料込)更新料無し |
| 契約形態 | - | 契約期間 | - |
| 入居・引渡期間 | 即時 | 現況 | - |
| 契約備考 | ※告知事項あり 2DK 二人入居可 損保【2万円2年】 バストイレ別、ガスコンロ対応、室内洗濯置、角住戸、押入、閑静な住宅地、最上階、二人入居相談、2沿線利用可、駅まで平坦、キッチンに窓、浴室に窓、平坦地、プロパンガス | ||
部屋の情報
| 間取り | 2DK | 専有面積 | 43m2 |
|---|---|---|---|
| 所在階 / 向き | 2階 / 南西 | バルコニー面積 | - |
| 水道 / ガス | - | ||
| 設備 | バス・トイレ別、2階以上、南向き、角部屋、コンロ:ガス、洗濯機:室内 | ||
| 当社物件ID | 154907516 | ||
建物の情報
| 建物名 | 森アパート | ||
|---|---|---|---|
| 所在地 | 広島県広島市安佐南区西原 | ||
| 交通 | 広島高速交通アストラムライン 不動院前駅 徒歩6分 | ||
| 階数 | 2階建 | 総戸数 | - |
| 築年月 | 1973年01月 / 築54年 | エレベーター | - |
| 駐車場 | なし | バイク置き場 | - |
| 駐輪場 | - | 管理人/管理会社 | - |
| 周辺環境 | その他 フレスタ長束店(スーパー)まで920m その他 ウォンツ長束店(ドラッグストア)まで575m その他 エディオン祇園店(ホームセンター)まで655m その他 マクドナルド長束店(飲食店)まで452m その他 長束郵便局(郵便局)まで744m その他 ゲオ広島長束店(レンタルビデオ)まで435m | ||
| 建物種別 | マンション | 建物構造 | その他 |
この部屋の取扱い不動産会社
| 会社名 | さくらホーム(株)(SUUMO経由) | ||
|---|---|---|---|
| 所在地 | 広島県広島市安佐南区祇園6-10-15 | 交通 | - |
| 営業時間 | AM9:00~PM6:00 | 定休日 | 日曜日 |
| 免許番号 | 広島県知事10079 | 取引態様 | 仲介 |
| 不動産会社管理番号 | 100367383796 | 当社管理番号 | 89 |
| 所属団体 | (公社)全日本不動産協会広島県本部会員 | ||
| 公正取引協議会 | 中国地区不動産公正取引協議会加盟 | ||
| 取扱い物件情報 | 物件詳細へ | ||
※各種情報と現状に差異がある場合は、現状優先となります。問い合わせをすることで、より詳しい条件、情報を確認する事ができます。
提供:さくらホーム(株)(SUUMO経由)
この物件が気になったら掲載期限まであと10日
森アパートに条件(家賃・エリア)が近い物件一覧
| 写真 | 家賃 管理費等 | 敷金 礼金 | 間取り 専有面積 | 築年数 | 最寄り駅 所在地 | キープ | 詳細 |
|---|---|---|---|---|---|---|---|
アパート ソア長束(ワンルーム/2階) | |||||||
![]() | 4.2万円 3,000円 | なし なし | ワンルーム 17.36m2 | 築10年 | 可部線 安芸長束駅 徒歩11分 アストラムライン 祇園新橋北駅 徒歩21分 広島県広島市安佐南区長束6丁目 | 詳細を見る | |
アパート センチュリー21(1K/1階) | |||||||
![]() | 2.4万円 2,000円 | なし なし | 1K 18m2 | 築36年 | 可部線 古市橋駅 徒歩13分 可部線 下祇園駅 徒歩19分 広島県広島市安佐南区祇園8丁目 | 詳細を見る | |
マンション 上原ビル(1K/3階) | |||||||
![]() | 3.5万円 なし | 3.5万円 3.5万円 | 1K 21.51m2 | 築46年 | アストラムライン 不動院前駅 徒歩6分 アストラムライン 牛田駅(広島) 徒歩12分 広島県広島市東区牛田新町3丁目 | 詳細を見る | |
マンション コーポカワモト(1DK/2階) | |||||||
![]() | 2.9万円 なし | なし 2.9万円 | 1DK 24.3m2 | 築39年 | 可部線 下祇園駅 徒歩14分 アストラムライン 祇園新橋北駅 徒歩25分 広島県広島市安佐南区祇園5丁目 | 詳細を見る | |





