賃貸アパート
JACK KORAKUIの賃貸物件情報(1LDK/1階)
| 家賃 | 管理費等 | 敷金 | 礼金 | 間取り | 専有面積 |
|---|---|---|---|---|---|
| 6.25万円 | 3,500円 | なし | 6.25万円 | 1LDK | 30.84m2 |
入居決定でお祝い金最大100,000円
- 保証金
- -
- 償却・敷引
- -
- 築年数
- 築1年
- 所在階
- 1階
- 向き
- 東
Point
共用部には宅配ボックスが備え付けられているため、対面で荷物を受け取らなくて済みます。知らない来訪者が玄関前まで来ることが減るので防犯対策につながるオートロック機能があります。
提供:スタイルエステート西支店(株)エムホームエステート(SUUMO経由)

詳細情報 JACK KORAKUI
物件紹介
JACK KORAKUIは地下鉄名港線築地口駅から徒歩3分にあり、駅近で通勤通学に便利なアパートです。
建物のエントランスはオートロックがついており、インターホンにはTVモニタもついているため、相手の顔を確認してから来客対応することができます。
おしゃれなデザイナーズ物件!人気の角部屋で周囲の居住者の生活音も気になりにくく、また、フローリングのお部屋なのでお掃除もラクラク。キッチンはシステムキッチン仕様になっていますので、お料理好きの方にもぴったり。バス・トイレは別なので、のんびりお風呂タイムも楽しめるでしょう。また、雨の日でも浴室乾燥機を使えば、お洗濯も問題ありません。
通信設備面では、インターネットが無料で使えるので、月々の出費を抑えられるのも魅力です(別途工事等が必要な場合あり)。
共用部には宅配ボックスが設定されているので、不在の時にも荷物を受け取ることができます。
建物のエントランスはオートロックがついており、インターホンにはTVモニタもついているため、相手の顔を確認してから来客対応することができます。
おしゃれなデザイナーズ物件!人気の角部屋で周囲の居住者の生活音も気になりにくく、また、フローリングのお部屋なのでお掃除もラクラク。キッチンはシステムキッチン仕様になっていますので、お料理好きの方にもぴったり。バス・トイレは別なので、のんびりお風呂タイムも楽しめるでしょう。また、雨の日でも浴室乾燥機を使えば、お洗濯も問題ありません。
通信設備面では、インターネットが無料で使えるので、月々の出費を抑えられるのも魅力です(別途工事等が必要な場合あり)。
共用部には宅配ボックスが設定されているので、不在の時にも荷物を受け取ることができます。
お金・契約の情報
※「-」と表示されているものは、実際は料金が発生するものもございます。詳細はお問い合わせください。
| 家賃 | 6.25万円 | 管理費・共益費 | 3,500円 |
|---|---|---|---|
| 敷金 | なし | 礼金 | 6.25万円 |
| 入居決定でお祝い金最大100,000円 | |||
| 保証金 | - | 償却・敷引 | - |
| 住宅保険料 | - | 更新料 | - |
| 保証会社利用 | 必須 | 保証会社名 | - |
| 保証会社費用 | - | 保証会社備考 | 保証会社利用必 初回保証料 総賃料50% / 月額保証料 月額総賃料2% ※第一保証会社が否決になった場合は、費用が変動する可能性がございます。 ※最低保証料:20 000円 |
| 契約形態 | - | 契約期間 | - |
| 入居・引渡期間 | - | 現況 | - |
| 契約備考 | 短期解約違約金(1年未満退去時月額賃料1ヵ月分)システムM費用F退去時16500円(税込)クリーニング費用退去時33000円鍵交換費用退去時22000円月額800円の保険加入となります。 1LDK 損保【要】 バストイレ別、エアコン、ガスコンロ対応、フローリング、浴室乾燥機、オートロック、室内洗濯置、シューズボックス、システムキッチン、追焚機能浴室、温水洗浄便座、洗面所独立、2口コンロ、宅配ボックス、防犯カメラ、ネット使用料不要、プロパンガス、IT重説対応物件 入居日:'26年4月中旬 | ||
部屋の情報
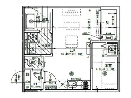
| 間取り | 1LDK | 専有面積 | 30.84m2 |
|---|---|---|---|
| 所在階 / 向き | 1階 / 東 | バルコニー面積 | - |
| 水道 / ガス | - | ||
| 設備 | バス・トイレ別、オートロック、宅配ボックス、浴室乾燥機、追い焚き、インターネット対応、システムキッチン、エアコン、温水洗浄便座、フローリング、洗髪洗面化粧台、2口コンロ、コンロ:ガス、インターネット使用料無料、洗濯機:室内 | ||
| 当社物件ID | 160407496 | ||
建物の情報
| 建物名 | JACK KORAKUI | ||
|---|---|---|---|
| 所在地 | 愛知県名古屋市港区港楽 | ||
| 交通 | 地下鉄名港線 築地口駅 徒歩5分 地下鉄名港線 港区役所駅 徒歩7分 地下鉄名港線 名古屋港駅 徒歩14分 | ||
| 階数 | 3階建 | 総戸数 | 9戸 |
| 築年月 | 2026年04月 / 築1年 | エレベーター | - |
| 駐車場 | なし | バイク置き場 | - |
| 駐輪場 | - | 管理人/管理会社 | - |
| 周辺環境 | その他 バロー 港栄店(スーパー)まで570m | ||
| 建物種別 | アパート | 建物構造 | 木造 |
この部屋の取扱い不動産会社
| 会社名 | いい部屋ネット大東建託リーシング(株)高畑店(SUUMO経由) | ||
|---|---|---|---|
| 所在地 | 愛知県名古屋市中川区高畑2-359 | 交通 | - |
| 営業時間 | 10:00~12:30 ・ 13:30~18:00 | 定休日 | 火・水曜日 |
| 免許番号 | 国土交通大臣9120 | 取引態様 | 仲介 |
| 不動産会社管理番号 | 100494692342 | 当社管理番号 | 89 |
| 所属団体 | (公財)日本賃貸住宅管理協会会員 | ||
| 公正取引協議会 | (公社)首都圏不動産公正取引協議会加盟 | ||
| 取扱い物件情報 | 物件詳細へ | ||
※各種情報と現状に差異がある場合は、現状優先となります。問い合わせをすることで、より詳しい条件、情報を確認する事ができます。
提供:いい部屋ネット大東建託リーシング(株)高畑店(SUUMO経由)
この物件が気になったら掲載期限まであと11日
JACK KORAKUIに条件(家賃・エリア)が近い物件一覧
| 写真 | 家賃 管理費等 | 敷金 礼金 | 間取り 専有面積 | 築年数 | 最寄り駅 所在地 | キープ | 詳細 |
|---|---|---|---|---|---|---|---|
アパート グランブルー(1LDK/2階) | |||||||
![]() | 6.3万円 5,000円 | 2万円 6.3万円 | 1LDK 40.29m2 | 築24年 | JR東海交通事業城北線 尾張星の宮駅 徒歩18分 JR東海道本線 清洲駅 徒歩22分 名鉄名古屋本線 新清洲駅 徒歩26分 愛知県清須市朝日愛宕 | 詳細を見る | |
マンション ガーデンハイツエクレール(4DK/3階) | |||||||
![]() | 6.5万円 3,000円 | なし なし | 4DK 61.6m2 | 築41年 | 愛知県長久手市東狭間 | 詳細を見る | |
アパート アステール AO II(2K/1階) | |||||||
![]() | 6.8万円 3,500円 | なし 6.8万円 | 2K 30.85m2 | 築8年 | リニモ 長久手古戦場駅 徒歩5分 リニモ 芸大通駅 徒歩16分 リニモ 杁ケ池公園駅 徒歩18分 愛知県長久手市横道 | 詳細を見る | |
マンション パークシティ水野A棟(4LDK/9階) | |||||||
![]() | 9.8万円 なし | 9.8万円 9.8万円 | 4LDK 103.38m2 | 築39年 | 名鉄瀬戸線 水野駅 徒歩5分 名鉄瀬戸線 新瀬戸駅 徒歩11分 愛知県瀬戸市北山町 | 詳細を見る | |
アパート サンリット I(2LDK/1階) | |||||||
![]() | 6.4万円 2,300円 | なし 8万円 | 2LDK 55.17m2 | 築14年 | JR関西本線 蟹江駅 徒歩10分 JR関西本線 春田駅 徒歩24分 近鉄名古屋線 近鉄蟹江駅 徒歩27分 愛知県海部郡蟹江町桜 | 詳細を見る | |
アパート エクセル勝川(2LDK/1階) | |||||||
![]() | 5万円 3,000円 | なし なし | 2LDK 55m2 | 築41年 | JR中央本線 勝川駅(JR) 徒歩18分 JR東海交通事業城北線 勝川駅(JR) 徒歩23分 名鉄小牧線 味美駅(名鉄) 徒歩45分 愛知県春日井市下条町 | 詳細を見る | |
アパート フォーブル朝宮(2DK/2階) | |||||||
![]() | 4万円 2,000円 | なし なし | 2DK 40m2 | 築40年 | 名鉄小牧線 春日井駅(名鉄) 徒歩43分 JR中央本線 勝川駅(JR) 徒歩44分 愛知県春日井市八田町 | 詳細を見る | |
マンション 港区当知オーナールーム付マンション(2LDK/3階) | |||||||
![]() | 9万円 5,400円 | 12万円 18万円 | 2LDK 60.4m2 | 新築 | 愛知県名古屋市港区当知1丁目 | 詳細を見る | |








