賃貸マンション
プランドールFIVEの賃貸物件情報(2SLDK/1階)
| 家賃 | 管理費等 | 敷金 | 礼金 | 間取り | 専有面積 |
|---|---|---|---|---|---|
| 6.8万円 | 5,000円 | 13.6万円 | なし | 2SLDK | 71.28m2 |
入居決定でお祝い金最大100,000円
- 保証金
- -
- 償却・敷引
- -
- 築年数
- 築21年
- 所在階
- 1階
- 向き
- -
- 交通
- 所在地
- 愛知県豊橋市
プランドールFIVE
[地図を表示]
Point
まずはお問い合わせ!
不動産会社は街のプロ、あなたに合った物件がきっと見つかります。
提供:ハウスコム東海株式会社 豊川店

詳細情報 プランドールFIVE
物件紹介
建物のエントランスはオートロックがついており、インターホンにはTVモニタもついているため、相手の顔を確認してから来客対応することができます。
人気の角部屋。周囲の居住者の生活音も気になりにくい場所です。バス・トイレ別の仕様で、のんびりお風呂タイムも楽しめます。
通信設備面ではCATVに対応しているので、おうち時間も充実するでしょう(別途工事、契約料が必要な場合あり)。
建物にはエレベーターがついているので、重い荷物があっても安心。
人気の角部屋。周囲の居住者の生活音も気になりにくい場所です。バス・トイレ別の仕様で、のんびりお風呂タイムも楽しめます。
通信設備面ではCATVに対応しているので、おうち時間も充実するでしょう(別途工事、契約料が必要な場合あり)。
建物にはエレベーターがついているので、重い荷物があっても安心。
お金・契約の情報
※「-」と表示されているものは、実際は料金が発生するものもございます。詳細はお問い合わせください。
| 家賃 | 6.8万円 | 管理費・共益費 | 5,000円 |
|---|---|---|---|
| 敷金 | 13.6万円 | 礼金 | なし |
| 入居決定でお祝い金最大100,000円 | |||
| 保証金 | - | 償却・敷引 | - |
| 住宅保険料 | 1円 | 更新料 | - |
| 保証会社利用 | 利用可 | 保証会社名 | - |
| 保証会社費用 | - | 保証会社備考 | 初回保証委託料:総家賃50% 継続保証委託料:13,000円/年 |
| 契約形態 | - | 契約期間 | 2年 |
| 入居・引渡期間 | 相談 | 現況 | - |
| 契約備考 | 月額(町費(月) 600円) その他設備/条件:免震構造、全居室収納、クローゼット、シューズボックス | ||
部屋の情報
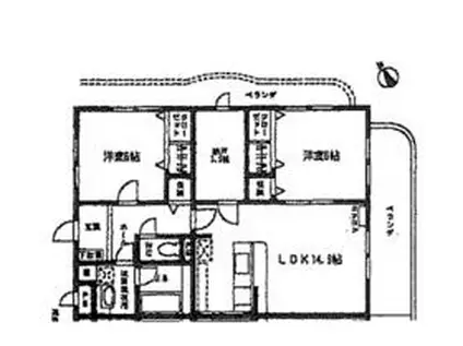
| 間取り | 2SLDK | 専有面積 | 71.28m2 |
|---|---|---|---|
| 所在階 / 向き | 1階 / - | バルコニー面積 | - |
| 水道 / ガス | ガス【プロパン】 | ||
| 設備 | バス・トイレ別、追い焚き、カウンターキッチン、エアコン、エレベーター、温水洗浄便座、角部屋、洗髪洗面化粧台、CATV、出窓 | ||
| 当社物件ID | 160067902 | ||
建物の情報
| 建物名 | プランドールFIVE | ||
|---|---|---|---|
| 所在地 | 愛知県豊橋市 | ||
| 交通 | - | ||
| 階数 | 5階建 | 総戸数 | 20戸 |
| 築年月 | 2005年01月 / 築21年 | エレベーター | あり |
| 駐車場 | 空有 | バイク置き場 | - |
| 駐輪場 | - | 管理人/管理会社 | - |
| 周辺環境 | その他 ドラッグストア その他 公園 その他 銀行 その他 * | ||
| 建物種別 | マンション | 建物構造 | RC(鉄筋コンクリート) |
この部屋の取扱い不動産会社
| 会社名 | ハウスコム東海株式会社 豊橋店 | ||
|---|---|---|---|
| 所在地 | 愛知県豊橋市105 | 交通 | - |
| 営業時間 | 10:00~18:00 | 定休日 | - |
| 免許番号 | 国土交通大臣(1)第10227号 | 取引態様 | 仲介 |
| 不動産会社管理番号 | HC4-5291794-102-0094 | 当社管理番号 | 468 |
| 所属団体 | 、 | ||
| 取扱い物件情報 | 物件詳細へ | ||
※各種情報と現状に差異がある場合は、現状優先となります。問い合わせをすることで、より詳しい条件、情報を確認する事ができます。
提供:ハウスコム東海株式会社 豊橋店
この物件が気になったら掲載期限まであと4日
プランドールFIVEに条件(家賃・エリア)が近い物件一覧
| 写真 | 家賃 管理費等 | 敷金 礼金 | 間取り 専有面積 | 築年数 | 最寄り駅 所在地 | キープ | 詳細 |
|---|---|---|---|---|---|---|---|
アパート キルシュ 曙 I(2LDK/2階) | |||||||
![]() | 7.85万円 3,500円 | なし 8.85万円 | 2LDK 56.12m2 | 築2年 | 豊橋鉄道渥美線 高師駅 徒歩25分 豊橋鉄道渥美線 南栄駅 徒歩27分 豊橋鉄道渥美線 芦原駅 徒歩31分 愛知県豊橋市曙町測点 | 詳細を見る | |
アパート エスペレ(1K/1階) | |||||||
![]() | 4.3万円 2,000円 | 8.6万円 なし | 1K 26.93m2 | 築17年 | 豊橋鉄道東田本線 運動公園前駅(愛知) 徒歩36分 愛知県豊橋市東幸町字大山 | 詳細を見る | |
アパート ヒカルサ豊橋佐藤I(ワンルーム/1階) | |||||||
![]() | 4.4万円 2,800円 | なし 4.4万円 | ワンルーム 29.4m2 | 築1年 | 豊橋鉄道東田本線 運動公園前駅(愛知) 徒歩32分 豊橋鉄道渥美線 小池駅 徒歩34分 豊橋鉄道渥美線 愛知大学前駅 徒歩40分 愛知県豊橋市 | 詳細を見る | |
マンション ライフイン・ビー・サークル(1K/1階) | |||||||
![]() | 4.3万円 3,000円 | 8.6万円 なし | 1K 29.6m2 | 築20年 | 愛知県豊橋市大村町字桜島 | 詳細を見る | |
アパート エコル エスト(3DK/2階) | |||||||
![]() | 4.9万円 2,000円 | 4.9万円 なし | 3DK 54.82m2 | 築31年 | JR飯田線 三河一宮駅 徒歩6分 JR飯田線 長山駅 徒歩29分 JR飯田線 豊川駅(愛知) 徒歩48分 愛知県豊川市一宮町錦 | 詳細を見る | |
アパート カーサ伊奈(1LDK/2階) | |||||||
![]() | 5.8万円 4,100円 | なし 6.8万円 | 1LDK 43.32m2 | 築3年 | JR東海道本線 西小坂井駅 徒歩10分 名鉄名古屋本線 伊奈駅 徒歩20分 愛知県豊川市伊奈町出口 | 詳細を見る | |
アパート ヴィラージュルピナ A(2LDK/1階) | |||||||
![]() | 4.2万円 4,000円 | なし なし | 2LDK 54.81m2 | 築24年 | JR東海道本線 西小坂井駅 徒歩20分 JR飯田線 小坂井駅 徒歩22分 JR飯田線 下地駅 徒歩23分 愛知県豊橋市清須町高見 | 詳細を見る | |
アパート セレーノB(2LDK/2階) | |||||||
![]() | 7.6万円 3,900円 | なし 7.6万円 | 2LDK 61.57m2 | 新築 | 名鉄豊川線 諏訪町駅 徒歩38分 JR飯田線 豊川駅(愛知) 徒歩40分 名鉄豊川線 稲荷口駅 徒歩43分 愛知県豊川市大崎町下金居場 | 詳細を見る | |









