賃貸マンション
プレール・ドゥーク志村三丁目の賃貸物件情報(1K/5階)
| 家賃 | 管理費等 | 敷金 | 礼金 | 間取り | 専有面積 |
|---|---|---|---|---|---|
| 8.3万円 | 1.2万円 | 8.3万円 | 8.3万円 | 1K | 25.53m2 |
入居決定でお祝い金最大100,000円
- 保証金
- -
- 償却・敷引
- -
- 築年数
- 築10年
- 所在階
- 5階
- 向き
- 北東
Point
都内全ての物件をご案内可能です。オンラインにて申込みから契約までのお手続きも。他社様掲載物件のお見積もり、物件提案のご要望など、お気軽にお問い合わせください。初期費用分割払いも承ります!
提供:(株)sagasumu(SUUMO経由)

詳細情報 プレール・ドゥーク志村三丁目
物件紹介
プレール・ドゥーク志村三丁目は都営三田線志村三丁目駅から徒歩9分にあり、駅近で通勤通学に便利なマンションです。
このお部屋は2階以上に位置しているので通行人や周囲の住人からの視線が気になりにくく、建物のエントランスはオートロックがついているので防犯性が高くなっています。
フローリングのお部屋なのでお掃除もラクラク。キッチンはシステムキッチン仕様になっていますので、お料理好きの方にもぴったり。バス・トイレは別なので、のんびりお風呂タイムも楽しめるでしょう。また、雨の日でも浴室乾燥機を使えば、お洗濯も問題ありません。
建物にはエレベーターがついているので、重い荷物があっても安心。共用部には宅配ボックスが設定されているので、不在の時にも荷物を受け取ることができます。
このお部屋は2階以上に位置しているので通行人や周囲の住人からの視線が気になりにくく、建物のエントランスはオートロックがついているので防犯性が高くなっています。
フローリングのお部屋なのでお掃除もラクラク。キッチンはシステムキッチン仕様になっていますので、お料理好きの方にもぴったり。バス・トイレは別なので、のんびりお風呂タイムも楽しめるでしょう。また、雨の日でも浴室乾燥機を使えば、お洗濯も問題ありません。
建物にはエレベーターがついているので、重い荷物があっても安心。共用部には宅配ボックスが設定されているので、不在の時にも荷物を受け取ることができます。
お金・契約の情報
※「-」と表示されているものは、実際は料金が発生するものもございます。詳細はお問い合わせください。
| 家賃 | 8.3万円 | 管理費・共益費 | 1.2万円 |
|---|---|---|---|
| 敷金 | 8.3万円 | 礼金 | 8.3万円 |
| 入居決定でお祝い金最大100,000円 | |||
| 保証金 | - | 償却・敷引 | - |
| 住宅保険料 | - | 更新料 | - |
| 保証会社利用 | 必須 | 保証会社名 | - |
| 保証会社費用 | - | 保証会社備考 | 保証会社利用必 新日本信用保証 初回契約時:40%、更新時:10,000円、プラン有※の場合口座振替手数料216円(税込)/月、ジャックスの場合口座振替手数料無し |
| 契約形態 | - | 契約期間 | - |
| 入居・引渡期間 | 相談 | 現況 | - |
| 契約備考 | 更新料新賃料1ヶ月クリーニング費用61600円 合計0.88万円(内訳:除菌消臭8800円) FASTASSIST24月額1,100円/月退去時エアコンクリーニング13,200円退去時ハウスクリーニング48,400円 1K 普通借家2年 損保【2万円2年】 バストイレ別、バルコニー、エアコン、ガスコンロ対応、クロゼット、フローリング、浴室乾燥機、オートロック、室内洗濯置、シューズボックス、システムキッチン、温水洗浄便座、脱衣所、エレベーター、洗面所独立、洗面化粧台、2口コンロ、宅配ボックス、最上階、防犯カメラ、全居室洋室、保証人不要、敷金1ヶ月、全居室フローリング、ディンプルキー、ダブルロックキー、保証金不要、2駅利用可、駅徒歩10分以内、敷地内ごみ置き場、全居室8畳以上、都市ガス、洗面所にドア、礼金1ヶ月、保証会社利用可、IT重説対応物件、初期費用カード決済可 | ||
部屋の情報
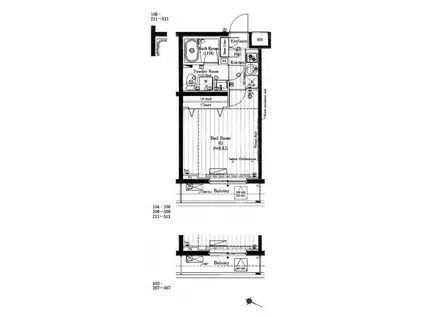
| 間取り | 1K | 専有面積 | 25.53m2 |
|---|---|---|---|
| 所在階 / 向き | 5階 / 北東 | バルコニー面積 | - |
| 水道 / ガス | - | ||
| 設備 | バス・トイレ別、2階以上、オートロック、宅配ボックス、浴室乾燥機、システムキッチン、エアコン、エレベーター、温水洗浄便座、バルコニー、フローリング、洗髪洗面化粧台、2口コンロ、コンロ:ガス、洗濯機:室内 | ||
| 当社物件ID | 22606345 | ||
建物の情報
| 建物名 | プレール・ドゥーク志村三丁目 | ||
|---|---|---|---|
| 所在地 | 東京都板橋区坂下 | ||
| 交通 | 都営三田線 志村三丁目駅 徒歩9分 都営三田線 蓮根駅 徒歩9分 都営三田線 西台駅 徒歩19分 | ||
| 階数 | 5階建 | 総戸数 | 57戸 |
| 築年月 | 2017年01月 / 築10年 | エレベーター | あり |
| 駐車場 | なし | バイク置き場 | - |
| 駐輪場 | - | 管理人/管理会社 | - |
| 周辺環境 | その他 まいばすけっと志村3丁目店(スーパー)まで579m その他 ダイエー板橋サンゼリゼ店(スーパー)まで699m その他 セブンイレブン板橋相生町店(コンビニ)まで219m その他 ファミリーマート坂下一丁目店(コンビニ)まで399m その他 ウェルパーク板橋相生町店(ドラッグストア)まで433m その他 クリエイトエス・ディー板橋蓮根店(ドラッグストア)まで619m | ||
| 建物種別 | マンション | 建物構造 | RC(鉄筋コンクリート) |
この部屋の取扱い不動産会社
| 会社名 | (株)sagasumu(SUUMO経由) | ||
|---|---|---|---|
| 所在地 | 東京都豊島区池袋2-17-8-109 | 交通 | - |
| 営業時間 | 9:00~18:00 | 定休日 | 毎週水曜日・年末年始 |
| 免許番号 | 東京都知事107846 | 取引態様 | 仲介 |
| 不動産会社管理番号 | 100475431688 | 当社管理番号 | 89 |
| 所属団体 | (公社)全日本不動産協会東京都本部会員 | ||
| 公正取引協議会 | (公社)首都圏不動産公正取引協議会加盟 | ||
| 取扱い物件情報 | 物件詳細へ | ||
※各種情報と現状に差異がある場合は、現状優先となります。問い合わせをすることで、より詳しい条件、情報を確認する事ができます。
提供:(株)sagasumu(SUUMO経由)
この物件が気になったら掲載期限まであと6日
プレール・ドゥーク志村三丁目に条件(家賃・エリア)が近い物件一覧
| 写真 | 家賃 管理費等 | 敷金 礼金 | 間取り 専有面積 | 築年数 | 最寄り駅 所在地 | キープ | 詳細 |
|---|---|---|---|---|---|---|---|
アパート アンシャンテ向山(1K/1階) | |||||||
![]() | 5.8万円 2,000円 | 5.8万円 なし | 1K 23.4m2 | 築37年 | 西武池袋線 中村橋駅 徒歩3分 西武池袋線 富士見台駅 徒歩14分 西武池袋線 練馬駅 徒歩18分 東京都練馬区向山 | 詳細を見る | |
アパート MELLAS大泉学園(1K/3階) | |||||||
![]() | 7.6万円 3,000円 | なし なし | 1K 20.5m2 | 新築 | 西武池袋・豊島線 大泉学園駅 徒歩8分 東京都練馬区東大泉6丁目 | 詳細を見る | |
マンション 1990TAMADA BLDG(2K/6階) | |||||||
![]() | 7万円 7,000円 | 7万円 なし | 2K 33m2 | 築36年 | 都営三田線 本蓮沼駅 徒歩4分 都営三田線 板橋本町駅 徒歩7分 東武東上線 ときわ台駅(東京) 徒歩21分 東京都板橋区泉町 | 詳細を見る | |
マンション アクアフォレース(1K/2階) | |||||||
![]() | 8.2万円 3,000円 | 8.2万円 8.2万円 | 1K 21.56m2 | 築23年 | 東京メトロ南北線 赤羽岩淵駅 徒歩6分 JR埼京線 赤羽駅 徒歩10分 東京メトロ南北線 志茂駅 徒歩11分 東京都北区志茂 | 詳細を見る | |
マンション エヌステージ板橋本町アジールコート(1K/5階) | |||||||
![]() | 10.2万円 1.5万円 | なし なし | 1K 25.53m2 | 築11年 | 東京都三田線 板橋本町駅 徒歩5分 東京都板橋区清水町 | 詳細を見る | |
マンション エルハイツ成増(ワンルーム/1階) | |||||||
![]() | 5.1万円 6,000円 | 5.1万円 なし | ワンルーム 16.47m2 | 築34年 | 東京メトロ副都心線 地下鉄成増駅 徒歩6分 東武東上線 成増駅 徒歩8分 東京メトロ有楽町線 地下鉄赤塚駅 徒歩19分 東京都練馬区旭町 | 詳細を見る | |
マンション アーバンヒルズ東長崎(ワンルーム/4階) | |||||||
![]() | 7万円 5,000円 | 7万円 7万円 | ワンルーム 22.94m2 | 築36年 | 西武池袋線 東長崎駅 徒歩2分 都営大江戸線 落合南長崎駅 徒歩11分 西武池袋線 椎名町駅 徒歩16分 東京都豊島区南長崎 | 詳細を見る | |








