賃貸アパート
レオパレスパストラーレⅡの賃貸物件情報(1K/1階)
| 家賃 | 管理費等 | 敷金 | 礼金 | 間取り | 専有面積 |
|---|---|---|---|---|---|
| 3.3万円 | 7,000円 | なし | なし | 1K | 22.35m2 |
入居決定でお祝い金最大100,000円
Point
まずはお問い合わせ!
不動産会社は街のプロ、あなたに合った物件がきっと見つかります。
提供:株式会社フレンドハウス ミニミニFC 長浜店(賃貸スモッカ経由)

詳細情報 レオパレスパストラーレⅡ
物件紹介
レオパレスパストラーレⅡはJR北陸本線田村駅から徒歩49分にあるアパートです。
このお部屋のインターホンにはTVモニタがついているため、相手の顔を確認してから来客対応することができます。
人気の南向きのお部屋。また、フローリングなのでお掃除もラクラク。キッチンはシステムキッチン仕様になっていますので、お料理好きの方にもぴったり。バス・トイレは別なので、のんびりお風呂タイムも楽しめるでしょう。また、雨の日でも浴室乾燥機を使えば、お洗濯も問題ありません。
通信設備面では、インターネット接続が可能です(別途工事、契約料が必要な場合あり)。
共用部には宅配ボックスが設定されているので、不在の時にも荷物を受け取ることができます。
このお部屋のインターホンにはTVモニタがついているため、相手の顔を確認してから来客対応することができます。
人気の南向きのお部屋。また、フローリングなのでお掃除もラクラク。キッチンはシステムキッチン仕様になっていますので、お料理好きの方にもぴったり。バス・トイレは別なので、のんびりお風呂タイムも楽しめるでしょう。また、雨の日でも浴室乾燥機を使えば、お洗濯も問題ありません。
通信設備面では、インターネット接続が可能です(別途工事、契約料が必要な場合あり)。
共用部には宅配ボックスが設定されているので、不在の時にも荷物を受け取ることができます。
お金・契約の情報
※「-」と表示されているものは、実際は料金が発生するものもございます。詳細はお問い合わせください。
| 家賃 | 3.3万円 | 管理費・共益費 | 7,000円 |
|---|---|---|---|
| 敷金 | なし | 礼金 | なし |
| フリーレント | あり | ||
| 入居決定でお祝い金最大100,000円 | |||
| 保証金 | - | 償却・敷引 | - |
| 住宅保険料 | 住宅保険料あり | 更新料 | - |
| 契約形態 | - | 契約期間 | - |
| 入居・引渡期間 | 即時 | 現況 | 空室 |
| 契約備考 | 直接会わずにインターホン越しに来訪者を確認できるので、トラブル回避にも防犯対策にも繋がります。浴室乾燥機付き物件ならば、雨で外に干せない日でも部屋干し特有の臭いを防げます。お部屋選びには欠かせない内覧も、空き部屋であればスムーズです。 更新料:16,500円 保証会社:利用必須 保証会社の利用 利用料の100%〜120% その他設備/条件:IT重説 対応物件、1階の物件、TVドアホン | ||
部屋の情報
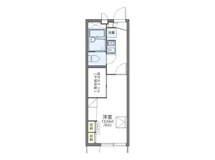
| 間取り | 1K | 専有面積 | 22.35m2 |
|---|---|---|---|
| 所在階 / 向き | 1階 / - | バルコニー面積 | - |
| 水道 / ガス | - | ||
| 設備 | バス・トイレ別、浴室乾燥機、インターネット対応、エアコン、温水洗浄便座、家具家電付き、洗濯機:室内 | ||
| 当社物件ID | 6896675 | ||
建物の情報
| 建物名 | レオパレスパストラーレⅡ | ||
|---|---|---|---|
| 所在地 | 滋賀県長浜市八幡東町 | ||
| 交通 | 北陸本線 長浜駅 バス乗車時間:15分 市民会館口バス停で下車 徒歩6分 | ||
| 階数 | 2階建 | 総戸数 | - |
| 築年月 | 2009年11月 / 築17年 | エレベーター | - |
| 駐車場 | - | バイク置き場 | - |
| 駐輪場 | あり | 管理人/管理会社 | - |
| 建物種別 | アパート | 建物構造 | 軽量鉄骨造 |
この部屋の取扱い不動産会社
| 会社名 | 株式会社フレンドハウス ミニミニFC 長浜店(賃貸スモッカ経由) | ||
|---|---|---|---|
| 所在地 | 滋賀県長浜市大宮町8-15 アベリア1AB | 交通 | - |
| 営業時間 | - | 定休日 | - |
| 免許番号 | 滋賀県知事免許(4)第3252号 | 取引態様 | 仲介 |
| 不動産会社管理番号 | friendhouse_279960004524630 | 当社管理番号 | 463 |
| 所属団体 | (公社)全日本不動産協会\n(公社)全日本不動産協会滋賀県本部\n公益社団法人近畿地区不動産公正取引協議会 | ||
| 公正取引協議会 | (公社)不動産保証協会 | ||
| 取扱い物件情報 | 物件詳細へ | ||
※各種情報と現状に差異がある場合は、現状優先となります。問い合わせをすることで、より詳しい条件、情報を確認する事ができます。
提供:株式会社フレンドハウス ミニミニFC 長浜店(賃貸スモッカ経由)
この物件が気になったら掲載期限まであと6日
レオパレスパストラーレⅡに条件(家賃・エリア)が近い物件一覧
| 写真 | 家賃 管理費等 | 敷金 礼金 | 間取り 専有面積 | 築年数 | 最寄り駅 所在地 | キープ | 詳細 |
|---|---|---|---|---|---|---|---|
アパート CENTURY ONE(1K/2階) | |||||||
![]() | 3.9万円 3,000円 | なし なし | 1K 32.66m2 | 築21年 | 北陸本線 田村駅 徒歩27分 北陸本線 長浜駅 徒歩27分 北陸本線 坂田駅 徒歩55分 滋賀県長浜市下坂浜町 | 詳細を見る | |
アパート RFマンション園(1DK/2階) | |||||||
![]() | 3.9万円 3,000円 | なし なし | 1DK 29.8m2 | 築17年 | 北陸本線 長浜駅 徒歩22分 北陸本線 田村駅 徒歩64分 北陸本線 虎姫駅 徒歩76分 滋賀県長浜市祇園町 | 詳細を見る | |
アパート パラディ下坂(1K/2階) | |||||||
![]() | 3.9万円 4,000円 | なし なし | 1K 26.08m2 | 築18年 | 北陸本線 田村駅 徒歩23分 北陸本線 長浜駅 徒歩29分 北陸本線 坂田駅 徒歩53分 滋賀県長浜市下坂浜町 | 詳細を見る | |
アパート セイコーズマンション列見(1DK/2階) | |||||||
![]() | 3.6万円 3,000円 | なし なし | 1DK 32.8m2 | 築19年 | 北陸本線 長浜駅 徒歩15分 北陸本線 田村駅 徒歩60分 北陸本線 虎姫駅 徒歩62分 滋賀県長浜市列見町 | 詳細を見る | |
アパート スイートタウンNK(2DK/2階) | |||||||
![]() | 4万円 3,000円 | なし なし | 2DK 38.88m2 | 築32年 | 北陸本線 長浜駅 徒歩24分 北陸本線 虎姫駅 徒歩51分 北陸本線 田村駅 徒歩63分 滋賀県長浜市十里町 | 詳細を見る | |
アパート ヴィクトリーⅡ(1K/2階) | |||||||
![]() | 3.4万円 3,000円 | なし なし | 1K 29.75m2 | 築19年 | 北陸本線 長浜駅 徒歩35分 北陸本線 田村駅 徒歩57分 北陸本線 虎姫駅 徒歩85分 滋賀県長浜市小堀町 | 詳細を見る | |
アパート レオパレススマイル成田(1K/1階) | |||||||
![]() | 4万円 7,000円 | なし 4万円 | 1K 23.18m2 | 築20年 | JR北陸本線 長浜駅 徒歩29分 JR北陸本線 虎姫駅 徒歩68分 JR北陸本線 田村駅 徒歩70分 滋賀県長浜市相撲町 | 詳細を見る | |
アパート レオパレスMY中山(1K/1階) | |||||||
![]() | 4.2万円 7,000円 | なし 4.2万円 | 1K 23.72m2 | 築22年 | JR北陸本線 虎姫駅 徒歩54分 JR北陸本線 田村駅 徒歩59分 滋賀県長浜市八幡中山町 | 詳細を見る | |








